Property
Account |
| Property ID: | 25754 | Abbreviated Legal Description: | HOMESTEAD VILLAGE P.U.D. PHASE 1A LOT 36 |
| Parcel Number: | 350735710036 | Agent Code: | |
| Type: | Real | | |
| Tax Area: | 74 - CP-250-FB | Land Use Code | 11 |
| Open Space: | N | DFL | N |
| Historic Property: | N | Remodel Property: | N |
| Multi-Family Redevelopment: | N | | |
| Township: | 7 | Section: | 35 |
| Range: | 35 |
Location |
| Address: | 1320 SW RIPARIAN CT WA 99324 | Mapsco: | |
| Neighborhood: | A SFR | Map ID: | |
| Neighborhood CD: | 113011 |
Owner |
| Name: | WINTERS CORINNE | Owner ID: | 63629 |
| Mailing Address: | 1042 N HAYMER LOOP SEQUIM, WA 98382 | % Ownership: | 100.0000000000% |
| | | Exemptions: | SNR/DSBL |
Taxes and Assessment Details
Values
| (+) Improvement Homesite Value: | + | $222,040 | |
| (+) Improvement Non-Homesite Value: | + | $0 | |
| (+) Land Homesite Value: | + | $55,000 | |
| (+) Land Non-Homesite Value: | + | $0 | |
| (+) Curr Use (HS): | + | $0 | $0 |
| (+) Curr Use (NHS): | + | $0 | $0 |
| | | -------------------------- | |
| (=) Market Value: | = | $277,040 | |
| (–) Productivity Loss: | – | $0 | |
| | | -------------------------- | |
| (=) Subtotal: | = | $277,040 | |
| (+) Senior Appraised Value: | + | $138,560 | |
| (+) Non-Senior Appraised Value: | + | $0 | |
| | | -------------------------- | |
| (=) Total Appraised Value: | = | $138,560 | |
| (–) Senior Exemption Loss: | – | $83,136 | |
| (–) Exemption Loss: | – | $0 | |
| | | -------------------------- | |
| (=) Taxable Value: | = | $55,424 | |
Taxing Jurisdiction
| Owner: | WINTERS CORINNE | | |
| % Ownership: | 100.0000000000% | | |
| Total Value: | $277,040 | | |
| Tax Area: | 74 - CP-250-FB |
| CERFD | CURRENT EXPENSE REFUND 010 | 0.0000000000 | $277,040 | $55,424 | $0.00 | | |
| CURREXP | CURRENT EXPENSE 010 | 1.0175366760 | $277,040 | $55,424 | $56.40 | | |
| HUMNSERV | HUMAN SERVICES 119 | 0.0250000000 | $277,040 | $55,424 | $1.39 | | |
| SLDREL | SOLDIERS RELIEF 121 | 0.0155990005 | $277,040 | $55,424 | $0.86 | | |
| COLLPLBOND | C OF CP BOND 644 | 0.0000000000 | $277,040 | $0 | $0.00 | | |
| COLLPLGEN | CITY OF CP 632 | 1.4453819216 | $277,040 | $55,424 | $80.11 | | |
| EMERGSER | EMS 147 | 0.3792580840 | $277,040 | $55,424 | $21.02 | | |
| EMSRFD | EMS REFUND 147 | 0.0000000000 | $277,040 | $55,424 | $0.00 | | |
| RURALLIB | RURAL LIBRARY 623 | 0.3710609029 | $277,040 | $55,424 | $20.57 | | |
| PORTRFD | PORT REFUND 640 | 0.0000000000 | $277,040 | $55,424 | $0.00 | | |
| PORTWWGEN | PORT OF WW 640 | 0.2460186015 | $277,040 | $55,424 | $13.64 | | |
| SD250BOND | SD #250 BOND 773 | 0.0000000000 | $277,040 | $0 | $0.00 | | |
| SD250GEN | SD #250 GENERAL 770 | 0.0000000000 | $277,040 | $0 | $0.00 | | |
| ST2 | STATE SCHOOL PART 2 600 | 0.0000000000 | $277,040 | $0 | $0.00 | | |
| STATESCHL | STATE SCHOOL 600 | 1.5158548041 | $277,040 | $55,424 | $84.01 | | |
| STREFUND | STATE REFUND LEVY 603 | 0.0000000000 | $277,040 | $55,424 | $0.00 | | |
| | Total Tax Rate: | 5.0157099906 | | | | | |
| | | | | Taxes w/Current Exemptions: | $278.00 | | |
| | | | | Taxes w/o Exemptions: | $2,800.99 | | |
Improvement / Building
| Improvement #1: | RESIDENTIAL | State Code: | 11 | 832.0 sqft | Value: | $222,040 |
| Exterior Wall: | HARDBOARD | Heating/Cooling: | WARM & COOLED AIR | | Number of Bathrooms: | 1 | Number of Bedrooms: | 2 | | Plumbing: | 6 | Roof Covering: | COMP SHINGLE |
|
| | Type | Description | Class CD | Sub Class CD | Year Built | Area |
| | MA | Main Area | 1 | 30 | 2009 | 832.0 |
| | SI1 | SITE IMPROVEMENT | 1 | 30 | 2009 | 2.0 |
| | ATG | Attached Garage | 1 | 30 | 2009 | 280.0 |
| | WOD | Wood Deck | 1 | 30 | 2009 | 144.0 |
| | RPO | OPEN PORCH W/ROOF | 1 | 30 | 2009 | 68.0 |
Sketch
Property Image
Land
| 1 | RES 1 | Converted: Residential | 0.0997 | 4345.00 | 0.00 | 0.00 | 1.00 | $55,000 | $0 |
Roll Value History
| 2026 | N/A | N/A | N/A | N/A | N/A |
| 2025 | $155,430 | $125,000 | $0 | $280,430 | $55,424 |
| 2024 | $222,040 | $55,000 | $0 | $277,040 | $55,424 |
| 2023 | $222,040 | $55,000 | $0 | $277,040 | $55,424 |
| 2022 | $201,850 | $55,000 | $0 | $256,850 | $55,424 |
| 2021 | $149,520 | $55,000 | $0 | $204,520 | $55,424 |
| 2020 | $124,600 | $55,000 | $0 | $179,600 | $55,424 |
| 2019 | $153,500 | $26,100 | $0 | $179,600 | $55,424 |
| 2018 | $118,080 | $26,100 | $0 | $144,180 | $55,424 |
| 2017 | $112,460 | $26,100 | $0 | $138,560 | $55,424 |
| 2016 | $107,100 | $26,100 | $0 | $133,200 | $133,200 |
| 2015 | $107,100 | $26,100 | $0 | $133,200 | $133,200 |
| 2014 | $107,100 | $26,100 | $0 | $133,200 | $133,200 |
| 2013 | $107,100 | $26,100 | $0 | $133,200 | $133,200 |
| 2012 | $107,100 | $26,100 | $0 | $0 | $0 |
| 2011 | $102,000 | $26,100 | $0 | $0 | $0 |
| 2010 | $0 | $26,100 | $0 | $0 | $0 |
| 2009 | $0 | $4,900 | $0 | $0 | $0 |
| 2008 | $107,100 | $26,100 | $0 | $0 | $0 |
Deed and Sales History
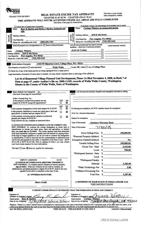
| 1 | 08/01/2018 | SWD | STATUTORY WARRANTY DEED | BARBRE RORY B & DARLA J | WINTERS CORINNE | | | $190,000.00 | 135232 | 2018-06230 |
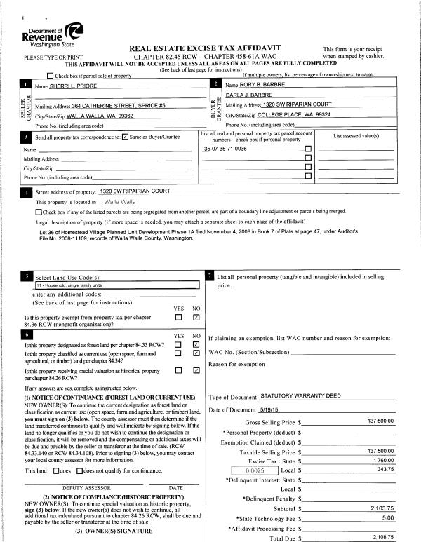
| 2 | 05/20/2015 | SWD | STATUTORY WARRANTY DEED | PRIORE SHERRI L | BARBRE RORY B & DARLA J | | | $137,500.00 | 128014 | 2015-04268 |
| 3 | 11/23/2009 | WARRANTY D | WARRANTY DEED | HAYDEN HOMES LLC | PRIORE, SHERRI L | | | | 117512 | 2009-11488 |
| 4 | 10/20/2009 | WARRANTY D | WARRANTY DEED | HAYDEN HOMES LLC | PRIORE, SHERRI L | | | $135,580.00 | 117512 | 2009-10388 |
| 5 | 11/14/2008 | QCD | QUIT CLAIM DEED | HAYDEN ENTERPRISES INC | HAYDEN HOMES LLC | | | | 115964 | 2008-11380 |
Payout Agreement
| No payout information available.. |