Property
Account |
| Property ID: | 25746 | Abbreviated Legal Description: | HOMESTEAD VILLAGE P.U.D. PHASE 1A LOT 29 |
| Parcel Number: | 350735710029 | Agent Code: | |
| Type: | Real | | |
| Tax Area: | 74 - CP-250-FB | Land Use Code | 11 |
| Open Space: | N | DFL | N |
| Historic Property: | N | Remodel Property: | N |
| Multi-Family Redevelopment: | N | | |
| Township: | 7 | Section: | 35 |
| Range: | 35 |
Location |
| Address: | 1261 SW GREELEY ST WA 99324 | Mapsco: | |
| Neighborhood: | A SFR | Map ID: | |
| Neighborhood CD: | 113011 |
Owner |
| Name: | BANKS KARL E & CAROLYN B | Owner ID: | 62191 |
| Mailing Address: | 1261 SW GREELEY ST COLLEGE PLACE, WA 99324 | % Ownership: | 100.0000000000% |
| | | Exemptions: | |
Taxes and Assessment Details
Values
| (+) Improvement Homesite Value: | + | $0 | |
| (+) Improvement Non-Homesite Value: | + | $279,350 | |
| (+) Land Homesite Value: | + | $0 | |
| (+) Land Non-Homesite Value: | + | $55,000 | |
| (+) Curr Use (HS): | + | $0 | $0 |
| (+) Curr Use (NHS): | + | $0 | $0 |
| | | -------------------------- | |
| (=) Market Value: | = | $334,350 | |
| (–) Productivity Loss: | – | $0 | |
| | | -------------------------- | |
| (=) Subtotal: | = | $334,350 | |
| (+) Senior Appraised Value: | + | $0 | |
| (+) Non-Senior Appraised Value: | + | $334,350 | |
| | | -------------------------- | |
| (=) Total Appraised Value: | = | $334,350 | |
| (–) Senior Exemption Loss: | – | $0 | |
| (–) Exemption Loss: | – | $0 | |
| | | -------------------------- | |
| (=) Taxable Value: | = | $334,350 | |
Taxing Jurisdiction
| Owner: | BANKS KARL E & CAROLYN B | | |
| % Ownership: | 100.0000000000% | | |
| Total Value: | $334,350 | | |
| Tax Area: | 74 - CP-250-FB |
| CERFD | CURRENT EXPENSE REFUND 010 | 0.0000000000 | $334,350 | $334,350 | $0.00 | | |
| CURREXP | CURRENT EXPENSE 010 | 1.0175366760 | $334,350 | $334,350 | $340.21 | | |
| HUMNSERV | HUMAN SERVICES 119 | 0.0250000000 | $334,350 | $334,350 | $8.36 | | |
| SLDREL | SOLDIERS RELIEF 121 | 0.0155990005 | $334,350 | $334,350 | $5.22 | | |
| COLLPLBOND | C OF CP BOND 644 | 0.4374241808 | $334,350 | $334,350 | $146.25 | | |
| COLLPLGEN | CITY OF CP 632 | 1.4453819216 | $334,350 | $334,350 | $483.26 | | |
| EMERGSER | EMS 147 | 0.3792580840 | $334,350 | $334,350 | $126.80 | | |
| EMSRFD | EMS REFUND 147 | 0.0000000000 | $334,350 | $334,350 | $0.00 | | |
| RURALLIB | RURAL LIBRARY 623 | 0.3710609029 | $334,350 | $334,350 | $124.06 | | |
| PORTRFD | PORT REFUND 640 | 0.0000000000 | $334,350 | $334,350 | $0.00 | | |
| PORTWWGEN | PORT OF WW 640 | 0.2460186015 | $334,350 | $334,350 | $82.26 | | |
| SD250BOND | SD #250 BOND 773 | 1.4560608159 | $334,350 | $334,350 | $486.83 | | |
| SD250GEN | SD #250 GENERAL 770 | 2.3880724087 | $334,350 | $334,350 | $798.45 | | |
| ST2 | STATE SCHOOL PART 2 600 | 0.8131451643 | $334,350 | $334,350 | $271.88 | | |
| STATESCHL | STATE SCHOOL 600 | 1.5158548041 | $334,350 | $334,350 | $506.83 | | |
| STREFUND | STATE REFUND LEVY 603 | 0.0000000000 | $334,350 | $334,350 | $0.00 | | |
| | Total Tax Rate: | 10.1104125603 | | | | | |
| | | | | Taxes w/Current Exemptions: | $3,380.41 | | |
| | | | | Taxes w/o Exemptions: | $3,380.41 | | |
Improvement / Building
| Improvement #1: | RESIDENTIAL | State Code: | 11 | 1244.0 sqft | Value: | $279,350 |
| Exterior Wall: | HARDBOARD | Heating/Cooling: | WARM & COOLED AIR | | Number of Bathrooms: | 2 | Number of Bedrooms: | 3 | | Plumbing: | 10 | Roof Covering: | COMP SHINGLE |
|
| | Type | Description | Class CD | Sub Class CD | Year Built | Area |
| | MA | Main Area | 1 | 30 | 2009 | 1244.0 |
| | SI1 | SITE IMPROVEMENT | 1 | 30 | 2009 | 2.0 |
| | ATG | Attached Garage | 1 | 30 | 2009 | 400.0 |
| | RPO | OPEN PORCH W/ROOF | 1 | 30 | 2009 | 20.0 |
Sketch
Property Image
Land
| 1 | RES 1 | Converted: Residential | 0.1333 | 5805.00 | 0.00 | 0.00 | 1.00 | $55,000 | $0 |
Roll Value History
| 2026 | N/A | N/A | N/A | N/A | N/A |
| 2025 | $215,100 | $125,000 | $0 | $340,100 | $340,100 |
| 2024 | $307,280 | $55,000 | $0 | $362,280 | $362,280 |
| 2023 | $279,350 | $55,000 | $0 | $334,350 | $334,350 |
| 2022 | $253,950 | $55,000 | $0 | $308,950 | $308,950 |
| 2021 | $199,960 | $55,000 | $0 | $254,960 | $254,960 |
| 2020 | $173,880 | $55,000 | $0 | $228,880 | $228,880 |
| 2019 | $194,080 | $34,800 | $0 | $228,880 | $228,880 |
| 2018 | $149,290 | $34,800 | $0 | $184,090 | $184,090 |
| 2017 | $142,180 | $34,800 | $0 | $176,980 | $176,980 |
| 2016 | $135,410 | $34,800 | $0 | $170,210 | $170,210 |
| 2015 | $135,410 | $34,800 | $0 | $170,210 | $170,210 |
| 2014 | $123,100 | $34,800 | $0 | $157,900 | $157,900 |
| 2013 | $123,100 | $34,800 | $0 | $157,900 | $157,900 |
| 2012 | $123,100 | $34,800 | $0 | $0 | $0 |
| 2011 | $123,100 | $34,800 | $0 | $0 | $0 |
| 2010 | $49,800 | $34,800 | $0 | $0 | $0 |
| 2009 | $0 | $5,000 | $0 | $0 | $0 |
| 2008 | $123,100 | $34,800 | $0 | $0 | $0 |
Deed and Sales History
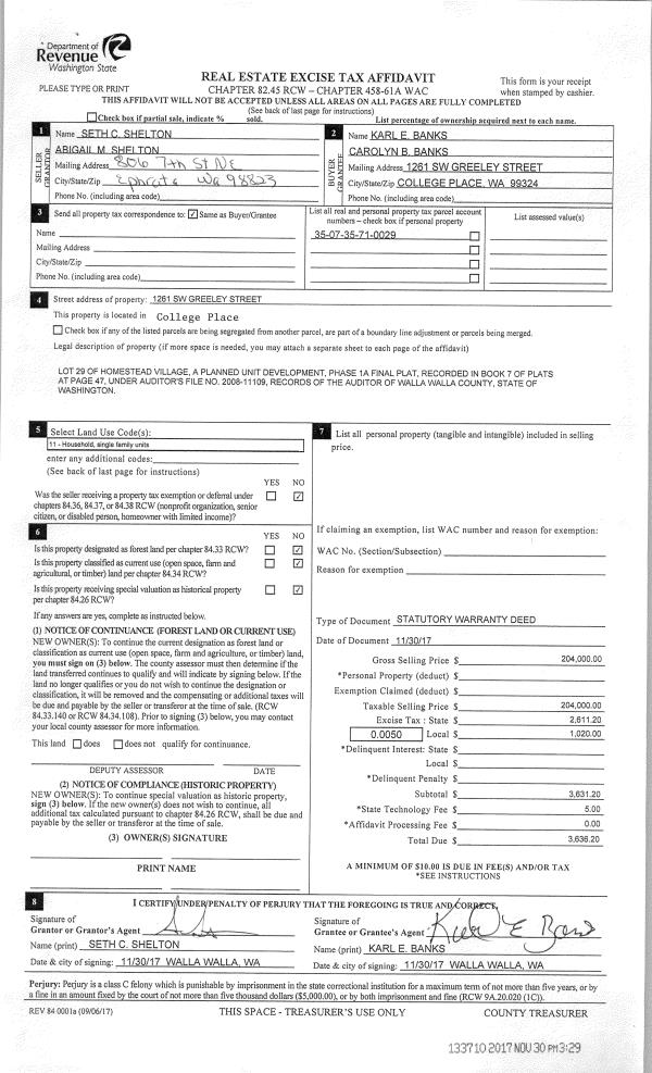
| 1 | 11/30/2017 | SWD | STATUTORY WARRANTY DEED | SHELTON SETH C & ABIGAIL M | BANKS KARL E & CAROLYN B | | | $204,000.00 | 133710 | 2017-09586 |
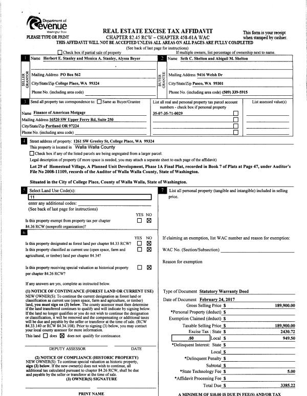
| 2 | 02/28/2017 | SWD | STATUTORY WARRANTY DEED | STANLEY HERBERT E & MONICA A | SHELTON SETH C & ABIGAIL M | | | $189,900.00 | 131962 | 2017-01574 |
| 3 | 09/09/2009 | WARRANTY D | WARRANTY DEED | HAYDEN HOMES LLC | STANLEY, HERBERT E & MONICA A | | | $158,910.00 | 117312 | 2009-09104 |
| 4 | 11/14/2008 | QCD | QUIT CLAIM DEED | HAYDEN ENTERPRISES INC | HAYDEN HOMES LLC | | | | 115964 | 2008-11380 |
Payout Agreement
| No payout information available.. |