Property
Account |
| Property ID: | 25745 | Abbreviated Legal Description: | HOMESTEAD VILLAGE P.U.D. PHASE 1A LOT 27 |
| Parcel Number: | 350735710027 | Agent Code: | |
| Type: | Real | | |
| Tax Area: | 74 - CP-250-FB | Land Use Code | 11 |
| Open Space: | N | DFL | N |
| Historic Property: | N | Remodel Property: | N |
| Multi-Family Redevelopment: | N | | |
| Township: | 7 | Section: | 35 |
| Range: | 35 |
Location |
| Address: | 1241 SW GREELEY ST WA 99324 | Mapsco: | |
| Neighborhood: | A SFR | Map ID: | |
| Neighborhood CD: | 113011 |
Owner |
| Name: | RODRIGUEZ MANUEL | Owner ID: | 64146 |
| Mailing Address: | 1241 SW GREELEY ST COLLEGE PLACE, WA 99324 | % Ownership: | 100.0000000000% |
| | | Exemptions: | |
Taxes and Assessment Details
Values
| (+) Improvement Homesite Value: | + | $0 | |
| (+) Improvement Non-Homesite Value: | + | $290,300 | |
| (+) Land Homesite Value: | + | $0 | |
| (+) Land Non-Homesite Value: | + | $55,000 | |
| (+) Curr Use (HS): | + | $0 | $0 |
| (+) Curr Use (NHS): | + | $0 | $0 |
| | | -------------------------- | |
| (=) Market Value: | = | $345,300 | |
| (–) Productivity Loss: | – | $0 | |
| | | -------------------------- | |
| (=) Subtotal: | = | $345,300 | |
| (+) Senior Appraised Value: | + | $0 | |
| (+) Non-Senior Appraised Value: | + | $345,300 | |
| | | -------------------------- | |
| (=) Total Appraised Value: | = | $345,300 | |
| (–) Senior Exemption Loss: | – | $0 | |
| (–) Exemption Loss: | – | $0 | |
| | | -------------------------- | |
| (=) Taxable Value: | = | $345,300 | |
Taxing Jurisdiction
| Owner: | RODRIGUEZ MANUEL | | |
| % Ownership: | 100.0000000000% | | |
| Total Value: | $345,300 | | |
| Tax Area: | 74 - CP-250-FB |
| CERFD | CURRENT EXPENSE REFUND 010 | 0.0000000000 | $345,300 | $345,300 | $0.00 | | |
| CURREXP | CURRENT EXPENSE 010 | 1.0175366760 | $345,300 | $345,300 | $351.36 | | |
| HUMNSERV | HUMAN SERVICES 119 | 0.0250000000 | $345,300 | $345,300 | $8.63 | | |
| SLDREL | SOLDIERS RELIEF 121 | 0.0155990005 | $345,300 | $345,300 | $5.39 | | |
| COLLPLBOND | C OF CP BOND 644 | 0.4374241808 | $345,300 | $345,300 | $151.04 | | |
| COLLPLGEN | CITY OF CP 632 | 1.4453819216 | $345,300 | $345,300 | $499.09 | | |
| EMERGSER | EMS 147 | 0.3792580840 | $345,300 | $345,300 | $130.96 | | |
| EMSRFD | EMS REFUND 147 | 0.0000000000 | $345,300 | $345,300 | $0.00 | | |
| RURALLIB | RURAL LIBRARY 623 | 0.3710609029 | $345,300 | $345,300 | $128.13 | | |
| PORTRFD | PORT REFUND 640 | 0.0000000000 | $345,300 | $345,300 | $0.00 | | |
| PORTWWGEN | PORT OF WW 640 | 0.2460186015 | $345,300 | $345,300 | $84.95 | | |
| SD250BOND | SD #250 BOND 773 | 1.4560608159 | $345,300 | $345,300 | $502.78 | | |
| SD250GEN | SD #250 GENERAL 770 | 2.3880724087 | $345,300 | $345,300 | $824.60 | | |
| ST2 | STATE SCHOOL PART 2 600 | 0.8131451643 | $345,300 | $345,300 | $280.78 | | |
| STATESCHL | STATE SCHOOL 600 | 1.5158548041 | $345,300 | $345,300 | $523.42 | | |
| STREFUND | STATE REFUND LEVY 603 | 0.0000000000 | $345,300 | $345,300 | $0.00 | | |
| | Total Tax Rate: | 10.1104125603 | | | | | |
| | | | | Taxes w/Current Exemptions: | $3,491.13 | | |
| | | | | Taxes w/o Exemptions: | $3,491.13 | | |
Improvement / Building
| Improvement #1: | RESIDENTIAL | State Code: | 11 | 1244.0 sqft | Value: | $290,300 |
| Exterior Wall: | HARDBOARD | Heating/Cooling: | WARM & COOLED AIR | | Number of Bathrooms: | 2 | Number of Bedrooms: | 3 | | Plumbing: | 10 | Roof Covering: | COMP SHINGLE |
|
| | Type | Description | Class CD | Sub Class CD | Year Built | Area |
| | MA | Main Area | 1 | 30 | 2009 | 1244.0 |
| | SI1 | SITE IMPROVEMENT | 1 | 30 | 2009 | 2.5 |
| | ATG | Attached Garage | 1 | 30 | 2009 | 400.0 |
| | RPO | OPEN PORCH W/ROOF | 1 | 30 | 2009 | 20.0 |
Sketch
Property Image
Land
| 1 | RES 1 | Converted: Residential | 0.1033 | 4500.00 | 0.00 | 0.00 | 1.00 | $55,000 | $0 |
Roll Value History
| 2026 | N/A | N/A | N/A | N/A | N/A |
| 2025 | $223,530 | $125,000 | $0 | $348,530 | $348,530 |
| 2024 | $319,330 | $55,000 | $0 | $374,330 | $374,330 |
| 2023 | $290,300 | $55,000 | $0 | $345,300 | $345,300 |
| 2022 | $263,910 | $55,000 | $0 | $318,910 | $318,910 |
| 2021 | $207,800 | $55,000 | $0 | $262,800 | $262,800 |
| 2020 | $173,170 | $55,000 | $0 | $228,170 | $228,170 |
| 2019 | $201,170 | $27,000 | $0 | $228,170 | $228,170 |
| 2018 | $154,750 | $27,000 | $0 | $181,750 | $181,750 |
| 2017 | $147,380 | $27,000 | $0 | $174,380 | $174,380 |
| 2016 | $140,360 | $27,000 | $0 | $167,360 | $167,360 |
| 2015 | $140,360 | $27,000 | $0 | $167,360 | $167,360 |
| 2014 | $127,600 | $27,000 | $0 | $154,600 | $154,600 |
| 2013 | $127,600 | $27,000 | $0 | $154,600 | $154,600 |
| 2012 | $127,600 | $27,000 | $0 | $0 | $0 |
| 2011 | $120,200 | $27,000 | $0 | $0 | $0 |
| 2010 | $120,200 | $27,000 | $0 | $0 | $0 |
| 2009 | $0 | $5,000 | $0 | $0 | $0 |
| 2008 | $127,600 | $27,000 | $0 | $0 | $0 |
Deed and Sales History
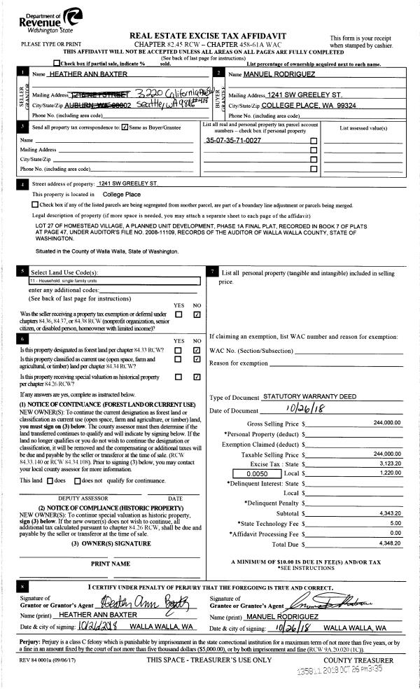
| 1 | 10/26/2018 | SWD | STATUTORY WARRANTY DEED | BAXTER HEATHER ANN | RODRIGUEZ MANUEL | | | $244,000.00 | 135811 | 2018-08876 |
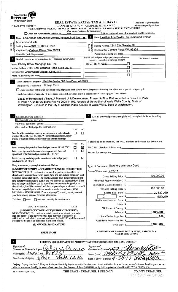
| 2 | 05/01/2017 | SWD | STATUTORY WARRANTY DEED | ARMES ERIC | BAXTER HEATHER ANN | | | $190,000.00 | 132305 | 2017-03270 |
| 3 | 05/13/2009 | WARRANTY D | WARRANTY DEED | HAYDEN HOMES LLC | ARMES, ERIC | | | $153,015.00 | 116733 | 2009-04772 |
| 4 | 11/14/2008 | QCD | QUIT CLAIM DEED | HAYDEN ENTERPRISES INC | HAYDEN HOMES LLC | | | | 115964 | 2008-11380 |
Payout Agreement
| No payout information available.. |