Property
Account |
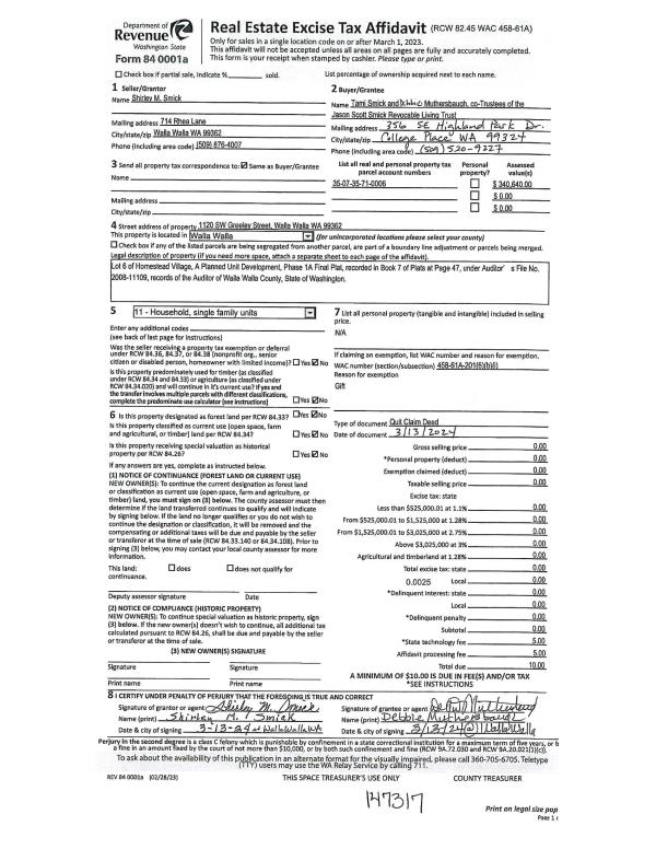
| Property ID: | 25736 | Abbreviated Legal Description: | HOMESTEAD VILLAGE P.U.D. PHASE 1A LOT 6 |
| Parcel Number: | 350735710006 | Agent Code: | |
| Type: | Real | | |
| Tax Area: | 74 - CP-250-FB | Land Use Code | 11 |
| Open Space: | N | DFL | N |
| Historic Property: | N | Remodel Property: | N |
| Multi-Family Redevelopment: | N | | |
| Township: | 7 | Section: | 35 |
| Range: | 35 |
Location |
| Address: | 1120 SW GREELEY ST WA 99324 | Mapsco: | |
| Neighborhood: | A SFR | Map ID: | |
| Neighborhood CD: | 113011 |
Owner |
| Name: | SMICK SHIRLEY M | Owner ID: | 53145 |
| Mailing Address: | 714 RHEA LN WALLA WALLA, WA 99362 | % Ownership: | 100.0000000000% |
| | | Exemptions: | |
Taxes and Assessment Details
Property Tax Information as of
02/21/2026
Click on "Statement Details" to expand or collapse a tax statement.
* Please enter a valid date ** Please enter a valid date *
Statement Details |
| | TOTAL: | $0.00 | $0.00 | $0.00 | $0.00 | $0.00 | $0.00 |
|
| | $0.00 | $0.00 | $0.00 | $0.00 | $0.00 | $0.00 |
Values
| (+) Improvement Homesite Value: | + | $0 | |
| (+) Improvement Non-Homesite Value: | + | $285,640 | |
| (+) Land Homesite Value: | + | $0 | |
| (+) Land Non-Homesite Value: | + | $55,000 | |
| (+) Curr Use (HS): | + | $0 | $0 |
| (+) Curr Use (NHS): | + | $0 | $0 |
| | | -------------------------- | |
| (=) Market Value: | = | $340,640 | |
| (–) Productivity Loss: | – | $0 | |
| | | -------------------------- | |
| (=) Subtotal: | = | $340,640 | |
| (+) Senior Appraised Value: | + | $0 | |
| (+) Non-Senior Appraised Value: | + | $340,640 | |
| | | -------------------------- | |
| (=) Total Appraised Value: | = | $340,640 | |
| (–) Senior Exemption Loss: | – | $0 | |
| (–) Exemption Loss: | – | $0 | |
| | | -------------------------- | |
| (=) Taxable Value: | = | $340,640 | |
Taxing Jurisdiction
| Owner: | SMICK SHIRLEY M | | |
| % Ownership: | 100.0000000000% | | |
| Total Value: | $340,640 | | |
| Tax Area: | 74 - CP-250-FB |
| CERFD | CURRENT EXPENSE REFUND 010 | 0.0000000000 | $340,640 | $340,640 | $0.00 | | |
| CURREXP | CURRENT EXPENSE 010 | 1.0175366760 | $340,640 | $340,640 | $346.61 | | |
| HUMNSERV | HUMAN SERVICES 119 | 0.0250000000 | $340,640 | $340,640 | $8.52 | | |
| SLDREL | SOLDIERS RELIEF 121 | 0.0155990005 | $340,640 | $340,640 | $5.31 | | |
| COLLPLBOND | C OF CP BOND 644 | 0.4374241808 | $340,640 | $340,640 | $149.00 | | |
| COLLPLGEN | CITY OF CP 632 | 1.4453819216 | $340,640 | $340,640 | $492.35 | | |
| EMERGSER | EMS 147 | 0.3792580840 | $340,640 | $340,640 | $129.19 | | |
| EMSRFD | EMS REFUND 147 | 0.0000000000 | $340,640 | $340,640 | $0.00 | | |
| RURALLIB | RURAL LIBRARY 623 | 0.3710609029 | $340,640 | $340,640 | $126.40 | | |
| PORTRFD | PORT REFUND 640 | 0.0000000000 | $340,640 | $340,640 | $0.00 | | |
| PORTWWGEN | PORT OF WW 640 | 0.2460186015 | $340,640 | $340,640 | $83.80 | | |
| SD250BOND | SD #250 BOND 773 | 1.4560608159 | $340,640 | $340,640 | $495.99 | | |
| SD250GEN | SD #250 GENERAL 770 | 2.3880724087 | $340,640 | $340,640 | $813.47 | | |
| ST2 | STATE SCHOOL PART 2 600 | 0.8131451643 | $340,640 | $340,640 | $276.99 | | |
| STATESCHL | STATE SCHOOL 600 | 1.5158548041 | $340,640 | $340,640 | $516.36 | | |
| STREFUND | STATE REFUND LEVY 603 | 0.0000000000 | $340,640 | $340,640 | $0.00 | | |
| | Total Tax Rate: | 10.1104125603 | | | | | |
| | | | | Taxes w/Current Exemptions: | $3,443.99 | | |
| | | | | Taxes w/o Exemptions: | $3,443.99 | | |
Improvement / Building
| Improvement #1: | RESIDENTIAL | State Code: | 11 | 1240.0 sqft | Value: | $285,640 |
| Exterior Wall: | PLYWOOD | Heating/Cooling: | WARM & COOLED AIR | | Number of Bathrooms: | 2 | Number of Bedrooms: | 3 | | Plumbing: | 11 | Roof Covering: | COMP SHINGLE |
|
| | Type | Description | Class CD | Sub Class CD | Year Built | Area |
| | MA | Main Area | 1 | 30 | 2008 | 1240.0 |
| | SI1 | SITE IMPROVEMENT | 1 | 30 | 2008 | 1.5 |
| | ATG | Attached Garage | 1 | 30 | 2008 | 400.0 |
| | GFP | GAS FIREPLACE | 1 | 30 | 2009 | 1.0 |
| | RPO | OPEN PORCH W/ROOF | 1 | 30 | 2008 | 20.0 |
Sketch
Property Image
Land
| 1 | RES 1 | Converted: Residential | 0.1100 | 4791.00 | 0.00 | 0.00 | 1.00 | $55,000 | $0 |
Roll Value History
| 2026 | N/A | N/A | N/A | N/A | N/A |
| 2025 | $219,940 | $125,000 | $0 | $344,940 | $344,940 |
| 2024 | $314,200 | $55,000 | $0 | $369,200 | $369,200 |
| 2023 | $285,640 | $55,000 | $0 | $340,640 | $340,640 |
| 2022 | $259,670 | $55,000 | $0 | $314,670 | $314,670 |
| 2021 | $204,460 | $55,000 | $0 | $259,460 | $259,460 |
| 2020 | $157,280 | $55,000 | $0 | $212,280 | $212,280 |
| 2019 | $183,580 | $28,700 | $0 | $212,280 | $212,280 |
| 2018 | $146,870 | $28,700 | $0 | $175,570 | $175,570 |
| 2017 | $139,870 | $28,700 | $0 | $168,570 | $168,570 |
| 2016 | $133,210 | $28,700 | $0 | $161,910 | $161,910 |
| 2015 | $133,210 | $28,700 | $0 | $161,910 | $161,910 |
| 2014 | $121,100 | $28,700 | $0 | $149,800 | $149,800 |
| 2013 | $121,100 | $28,700 | $0 | $149,800 | $149,800 |
| 2012 | $121,100 | $28,700 | $0 | $0 | $0 |
| 2011 | $121,100 | $28,700 | $0 | $0 | $0 |
| 2010 | $121,100 | $28,700 | $0 | $0 | $0 |
| 2009 | $0 | $5,000 | $0 | $0 | $0 |
| 2008 | $121,100 | $28,700 | $0 | $0 | $0 |
Deed and Sales History
| 1 | 03/29/2024 | QCD | QUIT CLAIM DEED | SMICK SHIRLEY M | SMICK JASON SCOTT REVOCABLE LIVING TRUST | | | | 147317 | 2024-01548 |
| 2 | 08/25/2016 | DEATH CERT | DEATH CERTIFICATE | | SMICK SHIRLEY M | | | | 0 | 2016-06830 |
| 3 | 08/25/2016 | COMMUNITY | COMMUNITY PROPERTY AGREEMENT | SMICK LORRELLD & SHIRLEY M | SMICK LORRELLD & SHIRLEY M | | | | 0 | 2016-06831 |
| 4 | 06/29/2015 | SWD | STATUTORY WARRANTY DEED | LONG SHAWN M | SMICK SHIRLEY M | | | $170,000.00 | 128274 | 2015-05519 |
| 5 | 09/14/2011 | QCD | QUIT CLAIM DEED | LONG, SHAWN & JESSICA | LONG, SHAWN M | | | $0.00 | 120690 | 2011-07166 |
| 6 | 02/27/2009 | WARRANTY D | WARRANTY DEED | HAYDEN HOMES LLC | LONG, SHAWN M | | | $154,355.00 | 116404 | 2009-01959 |
| 7 | 11/14/2008 | QCD | QUIT CLAIM DEED | HAYDEN ENTERPRISES INC | HAYDEN HOMES LLC | | | | 115964 | 2008-11380 |
Payout Agreement
| No payout information available.. |