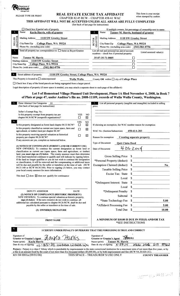
Property
Account |
| Property ID: | 25735 | Abbreviated Legal Description: | HOMESTEAD VILLAGE P.U.D. PHASE 1A LOT 5 |
| Parcel Number: | 350735710005 | Agent Code: | |
| Type: | Real | | |
| Tax Area: | 74 - CP-250-FB | Land Use Code | 11 |
| Open Space: | N | DFL | N |
| Historic Property: | N | Remodel Property: | N |
| Multi-Family Redevelopment: | N | | |
| Township: | 7 | Section: | 35 |
| Range: | 35 |
Location |
| Address: | 1110 SW GREELEY ST WA 99324 | Mapsco: | |
| Neighborhood: | A SFR | Map ID: | |
| Neighborhood CD: | 113011 |
Owner |
| Name: | FISHER HAILEY GRACE MARIE | Owner ID: | 67535 |
| Mailing Address: | TONY AND ANGEL FISHER 1110 SW GREELEY ST COLLEGE PLACE, WA 99324 | % Ownership: | 100.0000000000% |
| | | Exemptions: | |
Taxes and Assessment Details
Property Tax Information as of
02/21/2026
Click on "Statement Details" to expand or collapse a tax statement.
* Please enter a valid date ** Please enter a valid date *
Statement Details |
| | TOTAL: | $0.00 | $0.00 | $0.00 | $0.00 | $0.00 | $0.00 |
|
| | $0.00 | $0.00 | $0.00 | $0.00 | $0.00 | $0.00 |
Values
| (+) Improvement Homesite Value: | + | $0 | |
| (+) Improvement Non-Homesite Value: | + | $255,790 | |
| (+) Land Homesite Value: | + | $0 | |
| (+) Land Non-Homesite Value: | + | $55,000 | |
| (+) Curr Use (HS): | + | $0 | $0 |
| (+) Curr Use (NHS): | + | $0 | $0 |
| | | -------------------------- | |
| (=) Market Value: | = | $310,790 | |
| (–) Productivity Loss: | – | $0 | |
| | | -------------------------- | |
| (=) Subtotal: | = | $310,790 | |
| (+) Senior Appraised Value: | + | $0 | |
| (+) Non-Senior Appraised Value: | + | $310,790 | |
| | | -------------------------- | |
| (=) Total Appraised Value: | = | $310,790 | |
| (–) Senior Exemption Loss: | – | $0 | |
| (–) Exemption Loss: | – | $0 | |
| | | -------------------------- | |
| (=) Taxable Value: | = | $310,790 | |
Taxing Jurisdiction
| Owner: | FISHER HAILEY GRACE MARIE | | |
| % Ownership: | 100.0000000000% | | |
| Total Value: | $310,790 | | |
| Tax Area: | 74 - CP-250-FB |
| CERFD | CURRENT EXPENSE REFUND 010 | 0.0000000000 | $310,790 | $310,790 | $0.00 | | |
| CURREXP | CURRENT EXPENSE 010 | 1.0175366760 | $310,790 | $310,790 | $316.24 | | |
| HUMNSERV | HUMAN SERVICES 119 | 0.0250000000 | $310,790 | $310,790 | $7.77 | | |
| SLDREL | SOLDIERS RELIEF 121 | 0.0155990005 | $310,790 | $310,790 | $4.85 | | |
| COLLPLBOND | C OF CP BOND 644 | 0.4374241808 | $310,790 | $310,790 | $135.95 | | |
| COLLPLGEN | CITY OF CP 632 | 1.4453819216 | $310,790 | $310,790 | $449.21 | | |
| EMERGSER | EMS 147 | 0.3792580840 | $310,790 | $310,790 | $117.87 | | |
| EMSRFD | EMS REFUND 147 | 0.0000000000 | $310,790 | $310,790 | $0.00 | | |
| RURALLIB | RURAL LIBRARY 623 | 0.3710609029 | $310,790 | $310,790 | $115.32 | | |
| PORTRFD | PORT REFUND 640 | 0.0000000000 | $310,790 | $310,790 | $0.00 | | |
| PORTWWGEN | PORT OF WW 640 | 0.2460186015 | $310,790 | $310,790 | $76.46 | | |
| SD250BOND | SD #250 BOND 773 | 1.4560608159 | $310,790 | $310,790 | $452.53 | | |
| SD250GEN | SD #250 GENERAL 770 | 2.3880724087 | $310,790 | $310,790 | $742.19 | | |
| ST2 | STATE SCHOOL PART 2 600 | 0.8131451643 | $310,790 | $310,790 | $252.72 | | |
| STATESCHL | STATE SCHOOL 600 | 1.5158548041 | $310,790 | $310,790 | $471.11 | | |
| STREFUND | STATE REFUND LEVY 603 | 0.0000000000 | $310,790 | $310,790 | $0.00 | | |
| | Total Tax Rate: | 10.1104125603 | | | | | |
| | | | | Taxes w/Current Exemptions: | $3,142.22 | | |
| | | | | Taxes w/o Exemptions: | $3,142.22 | | |
Improvement / Building
| Improvement #1: | RESIDENTIAL | State Code: | 11 | 1032.0 sqft | Value: | $255,790 |
| Exterior Wall: | PLYWOOD | Heating/Cooling: | WARM & COOLED AIR | | Number of Bathrooms: | 2 | Number of Bedrooms: | 3 | | Plumbing: | 11 | Roof Covering: | COMP SHINGLE |
|
| | Type | Description | Class CD | Sub Class CD | Year Built | Area |
| | MA | Main Area | 1 | 30 | 2008 | 1032.0 |
| | SI1 | SITE IMPROVEMENT | 1 | 30 | 2008 | 2.0 |
| | ATG | Attached Garage | 1 | 30 | 2008 | 400.0 |
| | RPO | OPEN PORCH W/ROOF | 1 | 30 | 2008 | 24.0 |
Sketch
Property Image
Land
| 1 | RES 1 | Converted: Residential | 0.1202 | 5237.00 | 0.00 | 0.00 | 1.00 | $55,000 | $0 |
Roll Value History
| 2026 | N/A | N/A | N/A | N/A | N/A |
| 2025 | $179,050 | $125,000 | $0 | $304,050 | $304,050 |
| 2024 | $255,790 | $55,000 | $0 | $310,790 | $310,790 |
| 2023 | $255,790 | $55,000 | $0 | $310,790 | $310,790 |
| 2022 | $243,610 | $55,000 | $0 | $298,610 | $298,610 |
| 2021 | $187,390 | $55,000 | $0 | $242,390 | $242,390 |
| 2020 | $133,850 | $55,000 | $0 | $188,850 | $188,850 |
| 2019 | $157,450 | $31,400 | $0 | $188,850 | $188,850 |
| 2018 | $131,210 | $31,400 | $0 | $162,610 | $162,610 |
| 2017 | $131,210 | $31,400 | $0 | $162,610 | $162,610 |
| 2016 | $124,960 | $31,400 | $0 | $156,360 | $156,360 |
| 2015 | $124,960 | $31,400 | $0 | $156,360 | $156,360 |
| 2014 | $113,600 | $31,400 | $0 | $145,000 | $145,000 |
| 2013 | $113,600 | $31,400 | $0 | $145,000 | $145,000 |
| 2012 | $113,600 | $31,400 | $0 | $0 | $0 |
| 2011 | $108,000 | $31,400 | $0 | $0 | $0 |
| 2010 | $108,000 | $31,400 | $0 | $0 | $0 |
| 2009 | $0 | $5,000 | $0 | $0 | $0 |
| 2008 | $113,600 | $31,400 | $0 | $0 | $0 |
Deed and Sales History
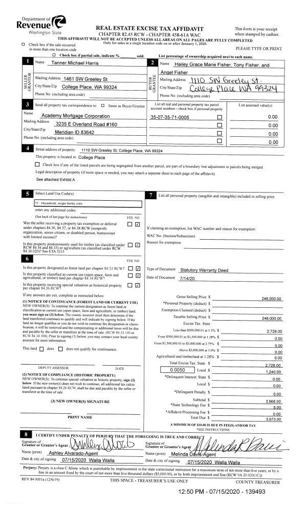
| 1 | 07/15/2020 | SWD | STATUTORY WARRANTY DEED | HARRIS TANNER M | FISHER HAILEY GRACE MARIE | | | $248,000.00 | 139493 | 2020-06771 |
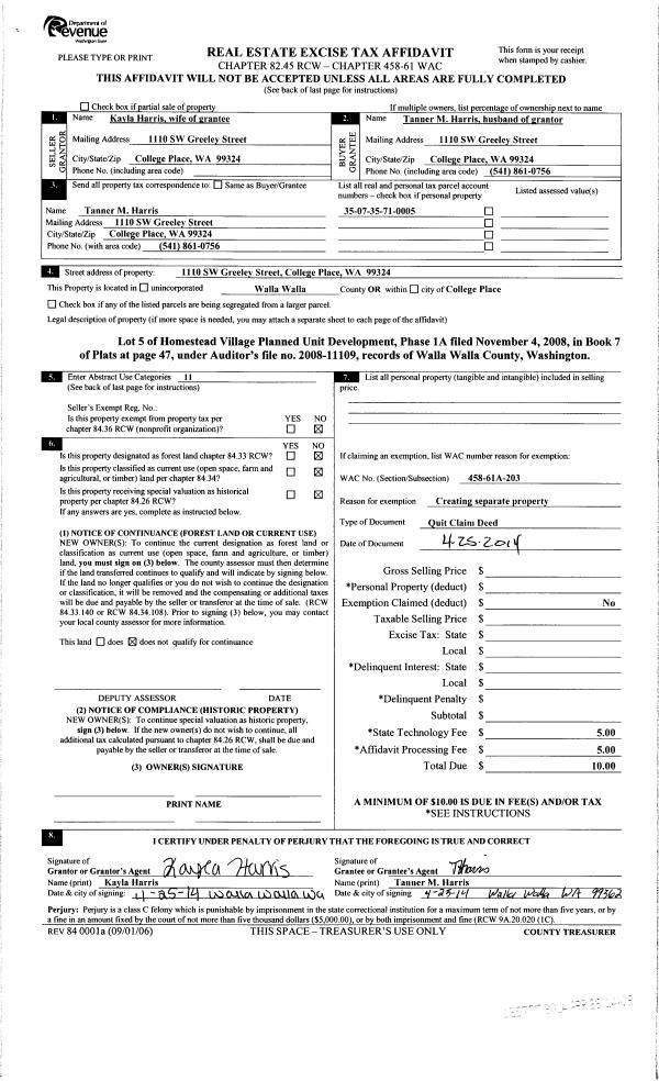
| 2 | 04/28/2014 | QCD | QUIT CLAIM DEED | | HARRIS TANNER M | | | | 125777 | 2014-02846 |
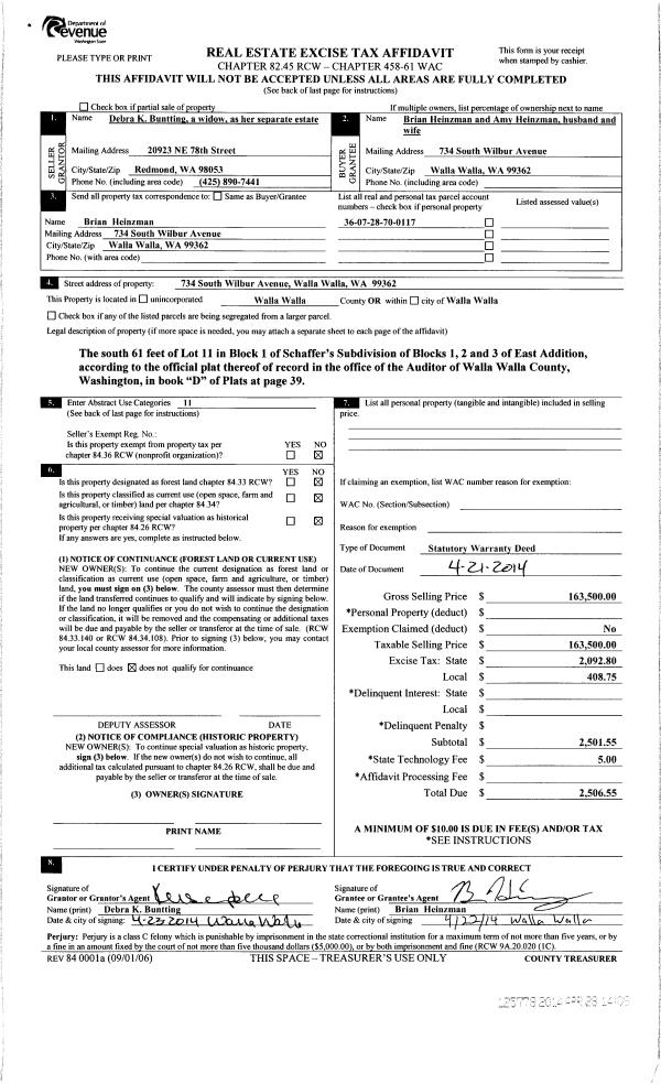
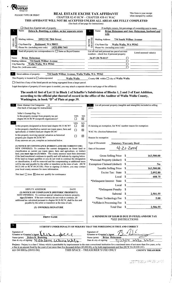
| 3 | 04/28/2014 | SWD | STATUTORY WARRANTY DEED | LUCKSTEAD AMY | HARRIS TANNER M | | | $159,900.00 | 125776 | 2014-02845 |
| 4 | 02/27/2009 | WARRANTY D | WARRANTY DEED | HAYDEN HOMES LLC | LUCKSTEAD, AMY | | | $146,955.00 | 116401 | 2009-01951 |
| 5 | 11/14/2008 | QCD | QUIT CLAIM DEED | HAYDEN ENTERPRISES INC | HAYDEN HOMES LLC | | | | 115964 | 2008-11380 |
Payout Agreement
| No payout information available.. |