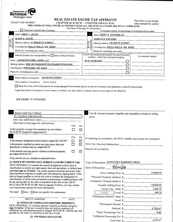
Property
Account |
| Property ID: | 25516 | Abbreviated Legal Description: | WILSON'S LOT 6 BLK 4;PLUS WLY 15' LOT 8 BLK 3 OF WENTSCH'S |
| Parcel Number: | 360716580407 | Agent Code: | |
| Type: | Real | | |
| Tax Area: | 5 - OL-140 | Land Use Code | 11 |
| Open Space: | N | DFL | N |
| Historic Property: | N | Remodel Property: | N |
| Multi-Family Redevelopment: | N | | |
| Township: | 7 | Section: | 16 |
| Range: | 36 |
Location |
| Address: | 736 WHITE ST WA 99362 | Mapsco: | |
| Neighborhood: | A-SFR | Map ID: | |
| Neighborhood CD: | 513011 |
Owner |
| Name: | STEVENS JUANITA S | Owner ID: | 68591 |
| Mailing Address: | 736 WHITE ST WALLA WALLA, WA 99362 | % Ownership: | 100.0000000000% |
| | | Exemptions: | |
Taxes and Assessment Details
Values
| (+) Improvement Homesite Value: | + | $0 | |
| (+) Improvement Non-Homesite Value: | + | $275,380 | |
| (+) Land Homesite Value: | + | $0 | |
| (+) Land Non-Homesite Value: | + | $38,880 | |
| (+) Curr Use (HS): | + | $0 | $0 |
| (+) Curr Use (NHS): | + | $0 | $0 |
| | | -------------------------- | |
| (=) Market Value: | = | $314,260 | |
| (–) Productivity Loss: | – | $0 | |
| | | -------------------------- | |
| (=) Subtotal: | = | $314,260 | |
| (+) Senior Appraised Value: | + | $0 | |
| (+) Non-Senior Appraised Value: | + | $314,260 | |
| | | -------------------------- | |
| (=) Total Appraised Value: | = | $314,260 | |
| (–) Senior Exemption Loss: | – | $0 | |
| (–) Exemption Loss: | – | $0 | |
| | | -------------------------- | |
| (=) Taxable Value: | = | $314,260 | |
Taxing Jurisdiction
| Owner: | STEVENS JUANITA S | | |
| % Ownership: | 100.0000000000% | | |
| Total Value: | $314,260 | | |
| Tax Area: | 5 - OL-140 |
| CERFD | CURRENT EXPENSE REFUND 010 | 0.0000000000 | $314,260 | $314,260 | $0.00 | | |
| CURREXP | CURRENT EXPENSE 010 | 1.0175366760 | $314,260 | $314,260 | $319.77 | | |
| HUMNSERV | HUMAN SERVICES 119 | 0.0250000000 | $314,260 | $314,260 | $7.86 | | |
| SLDREL | SOLDIERS RELIEF 121 | 0.0155990005 | $314,260 | $314,260 | $4.90 | | |
| EMERGSER | EMS 147 | 0.3792580840 | $314,260 | $314,260 | $119.19 | | |
| EMSRFD | EMS REFUND 147 | 0.0000000000 | $314,260 | $314,260 | $0.00 | | |
| PORTRFD | PORT REFUND 640 | 0.0000000000 | $314,260 | $314,260 | $0.00 | | |
| PORTWWGEN | PORT OF WW 640 | 0.2460186015 | $314,260 | $314,260 | $77.31 | | |
| SD140BOND | SD #140 BOND 764 | 0.8342371393 | $314,260 | $314,260 | $262.17 | | |
| SD140GEN | SD #140 GENERAL 760 | 2.0646500647 | $314,260 | $314,260 | $648.84 | | |
| ST2 | STATE SCHOOL PART 2 600 | 0.8131451643 | $314,260 | $314,260 | $255.54 | | |
| STATESCHL | STATE SCHOOL 600 | 1.5158548041 | $314,260 | $314,260 | $476.37 | | |
| STREFUND | STATE REFUND LEVY 603 | 0.0000000000 | $314,260 | $314,260 | $0.00 | | |
| CWWBOND | C OF WW BOND 643 | 0.2760494372 | $314,260 | $314,260 | $86.75 | | |
| CWWGEN | CITY OF WW 631 | 1.6100204973 | $314,260 | $314,260 | $505.97 | | |
| CWWRFD | CITY OF WALLA WALLA REFUND 631 | 0.0000000000 | $314,260 | $314,260 | $0.00 | | |
| | Total Tax Rate: | 8.7973694689 | | | | | |
| | | | | Taxes w/Current Exemptions: | $2,764.67 | | |
| | | | | Taxes w/o Exemptions: | $2,764.67 | | |
Improvement / Building
| Improvement #1: | RESIDENTIAL | State Code: | 11 | 910.0 sqft | Value: | $275,380 |
| Exterior Wall: | CEMENT FIBER | Heating/Cooling: | WARM & COOLED AIR | | Number of Bathrooms: | 2 | Number of Bedrooms: | 5 | | Plumbing: | 10 | Roof Covering: | COMP SHINGLE |
|
| | Type | Description | Class CD | Sub Class CD | Year Built | Area |
| | MA | Main Area | 1 | 30 | 1954 | 910.0 |
| | CPC | COVERED CARPORT/PATIO | 1 | 30 | 0 | 460.0 |
| | SI1 | SITE IMPROVEMENT | 1 | 30 | 0 | 1.5 |
| | BASE | BASEMENT | 1 | 30 | 1954 | 754.0 |
| | BPF | BASEMENT -PARTITIONED FINISH | 1 | 30 | 1954 | 754.0 |
| | RPS | PORCH W/STEPS,ROOF | 1 | 30 | 1954 | 30.0 |
Sketch
Property Image
Land
| 1 | RES 1 | Converted: Residential | 0.1428 | 6220.00 | 0.00 | 0.00 | 1.00 | $38,880 | $0 |
Roll Value History
| 2026 | N/A | N/A | N/A | N/A | N/A |
| 2025 | $260,930 | $62,200 | $0 | $323,130 | $323,130 |
| 2024 | $248,500 | $62,200 | $0 | $310,700 | $310,700 |
| 2023 | $275,380 | $38,880 | $0 | $314,260 | $314,260 |
| 2022 | $262,270 | $38,880 | $0 | $301,150 | $301,150 |
| 2021 | $228,060 | $38,880 | $0 | $266,940 | $266,940 |
| 2020 | $152,040 | $38,880 | $0 | $190,920 | $190,920 |
| 2019 | $152,040 | $38,880 | $0 | $190,920 | $190,920 |
| 2018 | $144,800 | $38,880 | $0 | $183,680 | $183,680 |
| 2017 | $155,810 | $24,900 | $0 | $180,710 | $180,710 |
| 2016 | $141,650 | $24,900 | $0 | $166,550 | $166,550 |
| 2015 | $128,770 | $24,900 | $0 | $153,670 | $153,670 |
| 2014 | $100,600 | $24,900 | $0 | $125,500 | $125,500 |
| 2013 | $100,600 | $24,900 | $0 | $125,500 | $125,500 |
| 2012 | $109,300 | $24,900 | $0 | $0 | $0 |
| 2011 | $109,300 | $24,900 | $0 | $0 | $0 |
| 2010 | $102,900 | $24,900 | $0 | $0 | $0 |
| 2009 | $117,000 | $25,000 | $0 | $0 | $0 |
| 2008 | $100,600 | $24,900 | $0 | $0 | $0 |
Deed and Sales History
| 1 | 12/30/2020 | QCD | QUIT CLAIM DEED | STEVENS TERRY E JR & JUANITA S | STEVENS JUANITA S | | | $0.00 | 140647 | 2020-14019 |
| 2 | 05/18/2015 | SWD | STATUTORY WARRANTY DEED | JACOB GREG T & ALANNA S | STEVENS TERRY E JR & JUANITA S | | | $179,900.00 | 128003 | 2015-04223 |
Payout Agreement
| No payout information available.. |