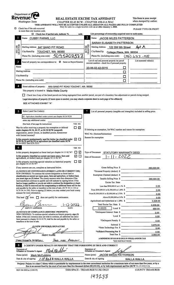
Property
Account |
| Property ID: | 25509 | Abbreviated Legal Description: | 2-6-33 LOT 3 OF SHORT PLAT (PTN W1/2SE1/4) LESS RDS |
| Parcel Number: | 330602420015 | Agent Code: | |
| Type: | Real | | |
| Tax Area: | 318 - 300-6-TM | Land Use Code | 83 |
| Open Space: | Y | DFL | N |
| Historic Property: | N | Remodel Property: | N |
| Multi-Family Redevelopment: | N | | |
| Township: | 6 | Section: | 2 |
| Range: | 33 |
Location |
| Address: | SAND PIT RD WA 99360 | Mapsco: | |
| Neighborhood: | 0 Farm | Map ID: | |
| Neighborhood CD: | 2220 |
Owner |
| Name: | PATTERSON JACOB MILES & SARAH ELISABETH | Owner ID: | 70966 |
| Mailing Address: | 122 SW 6TH ST COLLEGE PLACE, WA 99324 | % Ownership: | 100.0000000000% |
| | | Exemptions: | |
Taxes and Assessment Details
Values
| (+) Improvement Homesite Value: | + | $0 | |
| (+) Improvement Non-Homesite Value: | + | $0 | |
| (+) Land Homesite Value: | + | $0 | |
| (+) Land Non-Homesite Value: | + | $0 | |
| (+) Curr Use (HS): | + | $90,000 | $1,240 |
| (+) Curr Use (NHS): | + | $75,820 | $15,660 |
| | | -------------------------- | |
| (=) Market Value: | = | $165,820 | |
| (–) Productivity Loss: | – | $148,920 | |
| | | -------------------------- | |
| (=) Subtotal: | = | $16,900 | |
| (+) Senior Appraised Value: | + | $0 | |
| (+) Non-Senior Appraised Value: | + | $16,900 | |
| | | -------------------------- | |
| (=) Total Appraised Value: | = | $16,900 | |
| (–) Senior Exemption Loss: | – | $0 | |
| (–) Exemption Loss: | – | $0 | |
| | | -------------------------- | |
| (=) Taxable Value: | = | $16,900 | |
Taxing Jurisdiction
| Owner: | PATTERSON JACOB MILES & SARAH ELISABETH | | |
| % Ownership: | 100.0000000000% | | |
| Total Value: | $165,820 | | |
| Tax Area: | 318 - 300-6-TM |
| CERFD | CURRENT EXPENSE REFUND 010 | 0.0000000000 | $16,900 | $16,900 | $0.00 | | |
| CURREXP | CURRENT EXPENSE 010 | 1.0175366760 | $16,900 | $16,900 | $17.20 | | |
| HUMNSERV | HUMAN SERVICES 119 | 0.0250000000 | $16,900 | $16,900 | $0.42 | | |
| SLDREL | SOLDIERS RELIEF 121 | 0.0155990005 | $16,900 | $16,900 | $0.26 | | |
| EMERGSER | EMS 147 | 0.3792580840 | $16,900 | $16,900 | $6.41 | | |
| EMSRFD | EMS REFUND 147 | 0.0000000000 | $16,900 | $16,900 | $0.00 | | |
| FD6EXP | FD #6 EXPENSE 693 | 0.6692985746 | $16,900 | $16,900 | $11.31 | | |
| RLBRFD | RURAL LIBRARY REFUND 623 | 0.0000000000 | $16,900 | $16,900 | $0.00 | | |
| RURALLIB | RURAL LIBRARY 623 | 0.3710609029 | $16,900 | $16,900 | $6.27 | | |
| PORTRFD | PORT REFUND 640 | 0.0000000000 | $16,900 | $16,900 | $0.00 | | |
| PORTWWGEN | PORT OF WW 640 | 0.2460186015 | $16,900 | $16,900 | $4.16 | | |
| SD300BOND | SD #300 BOND 783 | 1.8964951620 | $16,900 | $16,900 | $32.05 | | |
| SD300GEN | SD #300 GENERAL 780 | 2.1198322866 | $16,900 | $16,900 | $35.83 | | |
| ST2 | STATE SCHOOL PART 2 600 | 0.8131451643 | $16,900 | $16,900 | $13.74 | | |
| STATESCHL | STATE SCHOOL 600 | 1.5158548041 | $16,900 | $16,900 | $25.62 | | |
| STREFUND | STATE REFUND LEVY 603 | 0.0000000000 | $16,900 | $16,900 | $0.00 | | |
| COROAD | COUNTY ROAD 115 | 1.6549953990 | $16,900 | $16,900 | $27.97 | | |
| CRPRD | COUNTY ROAD REFUND 115 | 0.0000000000 | $16,900 | $16,900 | $0.00 | | |
| | Total Tax Rate: | 10.7240946555 | | | | | |
| | | | | Taxes w/Current Exemptions: | $181.24 | | |
| | | | | Taxes w/o Exemptions: | $181.24 | | |
Improvement / Building
Sketch
| No sketches available for this property. |
Property Image
Land
| 1 | C1-I | Class 1 Irrigated | 12.4300 | 541450.80 | 0.00 | 0.00 | 1.00 | $75,820 | $15,660 |
| 2 | 90,000-HS2 | Homesite Use Value | 1.0000 | 0.00 | 0.00 | 0.00 | 1.00 | $90,000 | $1,240 |
| 3 | WASTE | Waste | 0.3400 | 0.00 | 0.00 | 0.00 | 1.00 | $0 | $0 |
Roll Value History
| 2026 | N/A | N/A | N/A | N/A | N/A |
| 2025 | $0 | $170,800 | $16,690 | $16,690 | $16,690 |
| 2024 | $0 | $168,310 | $16,980 | $16,980 | $16,980 |
| 2023 | $0 | $165,820 | $16,900 | $16,900 | $16,900 |
| 2022 | $0 | $158,370 | $16,340 | $16,340 | $16,340 |
| 2021 | $0 | $60,440 | $14,970 | $14,970 | $14,970 |
| 2020 | $0 | $48,350 | $15,280 | $15,280 | $15,280 |
| 2019 | $0 | $42,980 | $15,770 | $15,770 | $15,770 |
| 2018 | $0 | $41,630 | $16,060 | $16,060 | $16,060 |
| 2017 | $0 | $41,630 | $16,570 | $16,570 | $16,570 |
| 2016 | $0 | $41,630 | $16,640 | $16,640 | $16,640 |
| 2015 | $0 | $36,260 | $15,150 | $15,150 | $15,150 |
| 2014 | $0 | $36,260 | $15,150 | $15,150 | $15,150 |
| 2013 | $0 | $34,900 | $13,000 | $13,000 | $13,000 |
| 2012 | $0 | $10,400 | $0 | $0 | $0 |
| 2011 | $0 | $9,900 | $0 | $0 | $0 |
| 2010 | $0 | $10,200 | $0 | $0 | $0 |
| 2009 | $0 | $10,100 | $0 | $0 | $0 |
| 2008 | $0 | $12,700 | $0 | $0 | $0 |
| 2007 | $0 | $12,700 | $0 | $0 | $0 |
Deed and Sales History
| 1 | 01/12/2022 | SWD | STATUTORY WARRANTY DEED | CUBBY FARMS LLC | PATTERSON JACOB MILES & SARAH ELISABETH | | | $260,000.00 | 143238 | 2022-00397 |
| 2 | 11/24/2004 | WARRANTY D | WARRANTY DEED | "MC CUBBINS, GLENN M" | CUBBY FARMS LLC | | | | 106269 | 2004-13528 |
Payout Agreement
| No payout information available.. |