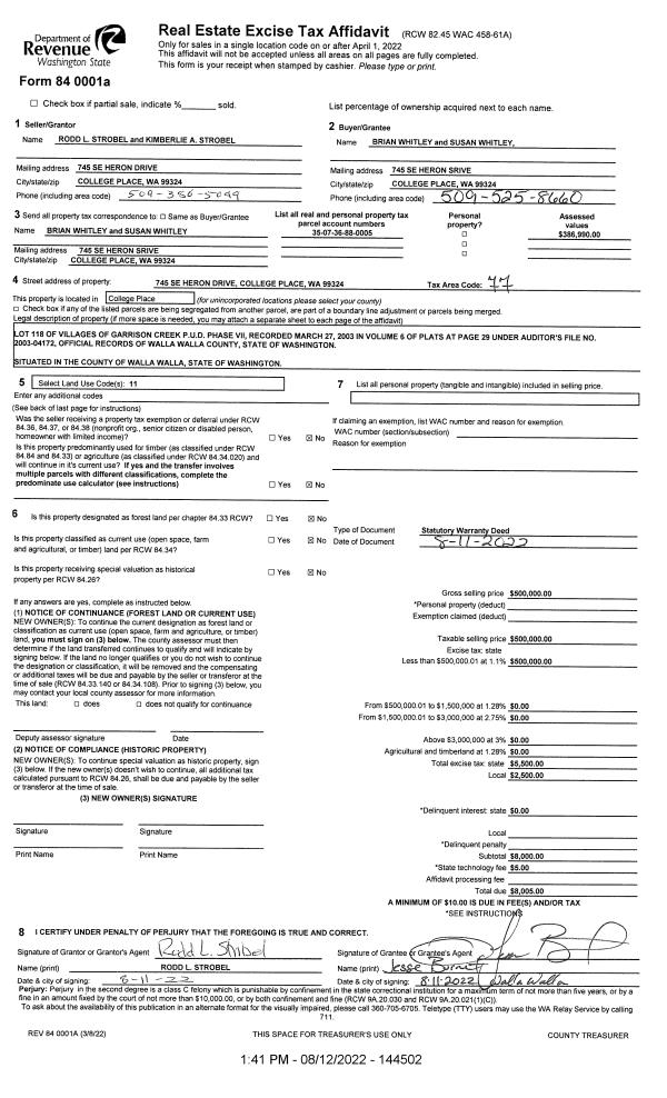
Property
Account |
| Property ID: | 2550 | Abbreviated Legal Description: | VILLAGES OF GARRISON CREEK P.U.D. PHASE VII LOT 118 |
| Parcel Number: | 350736880005 | Agent Code: | |
| Type: | Real | | |
| Tax Area: | 77 - CP-250-F | Land Use Code | 11 |
| Open Space: | N | DFL | N |
| Historic Property: | N | Remodel Property: | N |
| Multi-Family Redevelopment: | N | | |
| Township: | 7 | Section: | 36 |
| Range: | 35 |
Location |
| Address: | 745 SE HERON DR WA 99324 | Mapsco: | |
| Neighborhood: | G SFR | Map ID: | |
| Neighborhood CD: | 114011 |
Owner |
| Name: | WHITLEY BRIAN & SUSAN | Owner ID: | 72086 |
| Mailing Address: | 745 SE HERON DR COLLEGE PLACE, WA 99324 | % Ownership: | 100.0000000000% |
| | | Exemptions: | |
Taxes and Assessment Details
Property Tax Information as of
02/21/2026
Click on "Statement Details" to expand or collapse a tax statement.
* Please enter a valid date ** Please enter a valid date *
Statement Details |
| | TOTAL: | $0.00 | $0.00 | $0.00 | $0.00 | $0.00 | $0.00 |
|
| | $0.00 | $0.00 | $0.00 | $0.00 | $0.00 | $0.00 |
Values
| (+) Improvement Homesite Value: | + | $0 | |
| (+) Improvement Non-Homesite Value: | + | $409,480 | |
| (+) Land Homesite Value: | + | $0 | |
| (+) Land Non-Homesite Value: | + | $75,000 | |
| (+) Curr Use (HS): | + | $0 | $0 |
| (+) Curr Use (NHS): | + | $0 | $0 |
| | | -------------------------- | |
| (=) Market Value: | = | $484,480 | |
| (–) Productivity Loss: | – | $0 | |
| | | -------------------------- | |
| (=) Subtotal: | = | $484,480 | |
| (+) Senior Appraised Value: | + | $0 | |
| (+) Non-Senior Appraised Value: | + | $484,480 | |
| | | -------------------------- | |
| (=) Total Appraised Value: | = | $484,480 | |
| (–) Senior Exemption Loss: | – | $0 | |
| (–) Exemption Loss: | – | $0 | |
| | | -------------------------- | |
| (=) Taxable Value: | = | $484,480 | |
Taxing Jurisdiction
| Owner: | WHITLEY BRIAN & SUSAN | | |
| % Ownership: | 100.0000000000% | | |
| Total Value: | $484,480 | | |
| Tax Area: | 77 - CP-250-F |
| CERFD | CURRENT EXPENSE REFUND 010 | 0.0000000000 | $484,480 | $484,480 | $0.00 | | |
| CURREXP | CURRENT EXPENSE 010 | 1.0175366760 | $484,480 | $484,480 | $492.98 | | |
| HUMNSERV | HUMAN SERVICES 119 | 0.0250000000 | $484,480 | $484,480 | $12.11 | | |
| SLDREL | SOLDIERS RELIEF 121 | 0.0155990005 | $484,480 | $484,480 | $7.56 | | |
| COLLPLBOND | C OF CP BOND 644 | 0.4374241808 | $484,480 | $484,480 | $211.92 | | |
| COLLPLGEN | CITY OF CP 632 | 1.4453819216 | $484,480 | $484,480 | $700.26 | | |
| EMERGSER | EMS 147 | 0.3792580840 | $484,480 | $484,480 | $183.74 | | |
| EMSRFD | EMS REFUND 147 | 0.0000000000 | $484,480 | $484,480 | $0.00 | | |
| RURALLIB | RURAL LIBRARY 623 | 0.3710609029 | $484,480 | $484,480 | $179.77 | | |
| PORTRFD | PORT REFUND 640 | 0.0000000000 | $484,480 | $484,480 | $0.00 | | |
| PORTWWGEN | PORT OF WW 640 | 0.2460186015 | $484,480 | $484,480 | $119.19 | | |
| SD250BOND | SD #250 BOND 773 | 1.4560608159 | $484,480 | $484,480 | $705.43 | | |
| SD250GEN | SD #250 GENERAL 770 | 2.3880724087 | $484,480 | $484,480 | $1,156.97 | | |
| ST2 | STATE SCHOOL PART 2 600 | 0.8131451643 | $484,480 | $484,480 | $393.95 | | |
| STATESCHL | STATE SCHOOL 600 | 1.5158548041 | $484,480 | $484,480 | $734.40 | | |
| STREFUND | STATE REFUND LEVY 603 | 0.0000000000 | $484,480 | $484,480 | $0.00 | | |
| | Total Tax Rate: | 10.1104125603 | | | | | |
| | | | | Taxes w/Current Exemptions: | $4,898.28 | | |
| | | | | Taxes w/o Exemptions: | $4,898.28 | | |
Improvement / Building
| Improvement #1: | RESIDENTIAL | State Code: | 11 | 1736.0 sqft | Value: | $409,480 |
| Exterior Wall: | PLYWOOD | Heating/Cooling: | WARM & COOLED AIR | | Number of Bathrooms: | 2 | Number of Bedrooms: | 3 | | Plumbing: | 11 | Roof Covering: | COMP SHINGLE |
|
| | Type | Description | Class CD | Sub Class CD | Year Built | Area |
| | MA | Main Area | 1 | 40 | 2005 | 1736.0 |
| | SI1 | SITE IMPROVEMENT | 1 | 40 | 2005 | 3.0 |
| | ATG | Attached Garage | 1 | 40 | 2005 | 462.0 |
| | GFP | GAS FIREPLACE | 1 | 40 | 0 | 1.0 |
| | RPC | OPEN PORCH W/ROOF , CEILED | 1 | 40 | 0 | 111.0 |
| | RPC | OPEN PORCH W/ROOF , CEILED | 1 | 40 | 0 | 104.0 |
Sketch
Property Image
Land
| 1 | RES 1 | Converted: Residential | 0.1114 | 4851.00 | 0.00 | 0.00 | 1.00 | $75,000 | $0 |
Roll Value History
| 2026 | N/A | N/A | N/A | N/A | N/A |
| 2025 | $365,460 | $135,000 | $0 | $500,460 | $500,460 |
| 2024 | $429,960 | $75,000 | $0 | $504,960 | $504,960 |
| 2023 | $409,480 | $75,000 | $0 | $484,480 | $484,480 |
| 2022 | $389,980 | $75,000 | $0 | $464,980 | $464,980 |
| 2021 | $311,990 | $75,000 | $0 | $386,990 | $386,990 |
| 2020 | $239,990 | $75,000 | $0 | $314,990 | $314,990 |
| 2019 | $249,990 | $65,000 | $0 | $314,990 | $314,990 |
| 2018 | $227,270 | $65,000 | $0 | $292,270 | $292,270 |
| 2017 | $216,440 | $65,000 | $0 | $281,440 | $281,440 |
| 2016 | $206,140 | $65,000 | $0 | $271,140 | $271,140 |
| 2015 | $171,780 | $65,000 | $0 | $236,780 | $236,780 |
| 2014 | $163,600 | $65,000 | $0 | $228,600 | $228,600 |
| 2013 | $163,600 | $65,000 | $0 | $228,600 | $228,600 |
| 2012 | $170,700 | $65,000 | $0 | $0 | $0 |
| 2011 | $170,700 | $65,000 | $0 | $0 | $0 |
| 2010 | $170,700 | $65,000 | $0 | $0 | $0 |
| 2009 | $183,100 | $65,000 | $0 | $0 | $0 |
| 2008 | $196,600 | $35,000 | $0 | $0 | $0 |
| 2007 | $196,600 | $35,000 | $0 | $0 | $0 |
Deed and Sales History
| 1 | 08/12/2022 | SWD | STATUTORY WARRANTY DEED | STROBEL RODD L & KIMBERLIE A | WHITLEY BRIAN & SUSAN | | | $500,000.00 | 144502 | 2022-06796 |
| 2 | 06/04/2003 | WARRANTY D | WARRANTY DEED | PHASE FIVE DEVELOPMENT LLC | STROBEL, RODD L & KIMBERLIE A | | | $38,000.00 | 102256 | 2003-08238 |
Payout Agreement
| No payout information available.. |