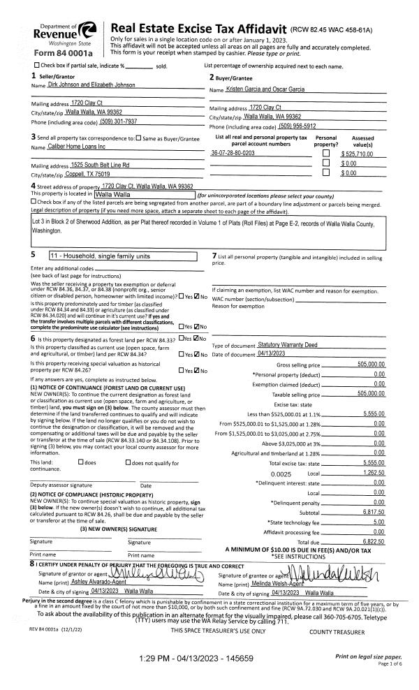
Property
Account |
| Property ID: | 25492 | Abbreviated Legal Description: | SHERWOOD ADDN LOT 3 BLK 2 |
| Parcel Number: | 360728800203 | Agent Code: | |
| Type: | Real | | |
| Tax Area: | 1 - OL-140-F | Land Use Code | 11 |
| Open Space: | N | DFL | N |
| Historic Property: | N | Remodel Property: | N |
| Multi-Family Redevelopment: | N | | |
| Township: | 7 | Section: | 28 |
| Range: | 36 |
Location |
| Address: | 1720 CLAY CT WA 99362 | Mapsco: | |
| Neighborhood: | G Res | Map ID: | |
| Neighborhood CD: | 614011 |
Owner |
| Name: | GARCIA KRISTEN & OSCAR | Owner ID: | 73438 |
| Mailing Address: | 1720 CLAY ST WALLA WALLA, WA 99362 | % Ownership: | 100.0000000000% |
| | | Exemptions: | |
Taxes and Assessment Details
Values
| (+) Improvement Homesite Value: | + | $0 | |
| (+) Improvement Non-Homesite Value: | + | $428,560 | |
| (+) Land Homesite Value: | + | $0 | |
| (+) Land Non-Homesite Value: | + | $97,150 | |
| (+) Curr Use (HS): | + | $0 | $0 |
| (+) Curr Use (NHS): | + | $0 | $0 |
| | | -------------------------- | |
| (=) Market Value: | = | $525,710 | |
| (–) Productivity Loss: | – | $0 | |
| | | -------------------------- | |
| (=) Subtotal: | = | $525,710 | |
| (+) Senior Appraised Value: | + | $0 | |
| (+) Non-Senior Appraised Value: | + | $525,710 | |
| | | -------------------------- | |
| (=) Total Appraised Value: | = | $525,710 | |
| (–) Senior Exemption Loss: | – | $0 | |
| (–) Exemption Loss: | – | $0 | |
| | | -------------------------- | |
| (=) Taxable Value: | = | $525,710 | |
Taxing Jurisdiction
| Owner: | GARCIA KRISTEN & OSCAR | | |
| % Ownership: | 100.0000000000% | | |
| Total Value: | $525,710 | | |
| Tax Area: | 1 - OL-140-F |
| CERFD | CURRENT EXPENSE REFUND 010 | 0.0000000000 | $525,710 | $525,710 | $0.00 | | |
| CURREXP | CURRENT EXPENSE 010 | 1.0175366760 | $525,710 | $525,710 | $534.93 | | |
| HUMNSERV | HUMAN SERVICES 119 | 0.0250000000 | $525,710 | $525,710 | $13.14 | | |
| SLDREL | SOLDIERS RELIEF 121 | 0.0155990005 | $525,710 | $525,710 | $8.20 | | |
| EMERGSER | EMS 147 | 0.3792580840 | $525,710 | $525,710 | $199.38 | | |
| EMSRFD | EMS REFUND 147 | 0.0000000000 | $525,710 | $525,710 | $0.00 | | |
| PORTRFD | PORT REFUND 640 | 0.0000000000 | $525,710 | $525,710 | $0.00 | | |
| PORTWWGEN | PORT OF WW 640 | 0.2460186015 | $525,710 | $525,710 | $129.33 | | |
| SD140BOND | SD #140 BOND 764 | 0.8342371393 | $525,710 | $525,710 | $438.57 | | |
| SD140GEN | SD #140 GENERAL 760 | 2.0646500647 | $525,710 | $525,710 | $1,085.41 | | |
| ST2 | STATE SCHOOL PART 2 600 | 0.8131451643 | $525,710 | $525,710 | $427.48 | | |
| STATESCHL | STATE SCHOOL 600 | 1.5158548041 | $525,710 | $525,710 | $796.90 | | |
| STREFUND | STATE REFUND LEVY 603 | 0.0000000000 | $525,710 | $525,710 | $0.00 | | |
| CWWBOND | C OF WW BOND 643 | 0.2760494372 | $525,710 | $525,710 | $145.12 | | |
| CWWGEN | CITY OF WW 631 | 1.6100204973 | $525,710 | $525,710 | $846.40 | | |
| CWWRFD | CITY OF WALLA WALLA REFUND 631 | 0.0000000000 | $525,710 | $525,710 | $0.00 | | |
| | Total Tax Rate: | 8.7973694689 | | | | | |
| | | | | Taxes w/Current Exemptions: | $4,624.86 | | |
| | | | | Taxes w/o Exemptions: | $4,624.86 | | |
Improvement / Building
| Improvement #1: | RESIDENTIAL | State Code: | 11 | 1811.0 sqft | Value: | $428,560 |
| Exterior Wall: | SIDING | Heating/Cooling: | WARM & COOLED AIR | | Number of Bathrooms: | 3 | Number of Bedrooms: | 4 | | Plumbing: | 15 | Roof Covering: | COMP SHINGLE |
|
| | Type | Description | Class CD | Sub Class CD | Year Built | Area |
| | MA | Main Area | 1 | 35 | 1979 | 1811.0 |
| | SI1 | SITE IMPROVEMENT | 1 | 35 | 1979 | 3.5 |
| | BASE | BASEMENT | 1 | 35 | 1979 | 912.0 |
| | BPF | BASEMENT -PARTITIONED FINISH | 1 | 35 | 1979 | 912.0 |
| | ATG | Attached Garage | 1 | 35 | 1979 | 540.0 |
| | CPC | COVERED CARPORT/PATIO | 1 | 35 | 1979 | 80.0 |
| | WOD | Wood Deck | 1 | 35 | 1979 | 400.0 |
| | RPC | OPEN PORCH W/ROOF , CEILED | 1 | 35 | 1979 | 25.0 |
Sketch
Property Image
Land
| 1 | RES 1 | Converted: Residential | 0.2230 | 9715.00 | 0.00 | 0.00 | 1.00 | $97,150 | $0 |
Roll Value History
| 2026 | N/A | N/A | N/A | N/A | N/A |
| 2025 | $419,040 | $116,580 | $0 | $535,620 | $535,620 |
| 2024 | $428,560 | $97,150 | $0 | $525,710 | $525,710 |
| 2023 | $428,560 | $97,150 | $0 | $525,710 | $525,710 |
| 2022 | $428,560 | $80,150 | $0 | $508,710 | $508,710 |
| 2021 | $329,660 | $80,150 | $0 | $409,810 | $409,810 |
| 2020 | $235,470 | $80,150 | $0 | $315,620 | $315,620 |
| 2019 | $235,470 | $80,150 | $0 | $315,620 | $315,620 |
| 2018 | $243,220 | $46,900 | $0 | $290,120 | $290,120 |
| 2017 | $231,640 | $46,900 | $0 | $278,540 | $278,540 |
| 2016 | $220,610 | $46,900 | $0 | $267,510 | $267,510 |
| 2015 | $220,610 | $46,900 | $0 | $267,510 | $267,510 |
| 2014 | $210,100 | $46,900 | $0 | $257,000 | $257,000 |
| 2013 | $210,100 | $46,900 | $0 | $257,000 | $257,000 |
| 2012 | $210,100 | $46,900 | $0 | $0 | $0 |
| 2011 | $210,100 | $46,900 | $0 | $0 | $0 |
| 2010 | $210,100 | $46,900 | $0 | $0 | $0 |
| 2009 | $260,200 | $46,900 | $0 | $0 | $0 |
| 2008 | $260,200 | $46,900 | $0 | $0 | $0 |
| 2007 | $166,000 | $35,000 | $0 | $0 | $0 |
Deed and Sales History
| 1 | 04/13/2023 | SWD | STATUTORY WARRANTY DEED | JOHNSON DIRK & ELIZABETH | GARCIA KRISTEN & OSCAR | | | $505,000.00 | 145659 | 2023-01953 |
| 2 | 10/29/2018 | SWD | STATUTORY WARRANTY DEED | SHELTON KENNETH | JOHNSON DIRK & ELIZABETH | | | $325,000.00 | 135820 | 2018-08954 |
| 3 | 10/01/2012 | WARRANTY D | WARRANTY DEED | SHELTON, LOIS R ESTATE OF | SHELTON, KENNETH | | | $0.00 | 0 | CC #12-4-00093-8 |
| 4 | 10/01/2012 | WARRANTY D | WARRANTY DEED | SHELTON, LOIS R ESTATE OF | SHELTON, KENNETH | | | $0.00 | 122740 | 2012-08646 |
| 5 | 10/15/2008 | WARRANTY D | WARRANTY DEED | ABENROTH, PAUL A | SHELTON, KENNETH & LOIS | | | $287,500.00 | 115825 | 2008-10492 |
| 6 | 07/24/2007 | QCD | QUIT CLAIM DEED | ABENROTH, REBECCA | ABENROTH, PAUL A | | | | 113327 | 2007-08518 |
| 7 | 11/06/1979 | WARRANTY D | WARRANTY DEED | | | | | $13,500.00 | 0 | 1147-910446 |
Payout Agreement
| No payout information available.. |