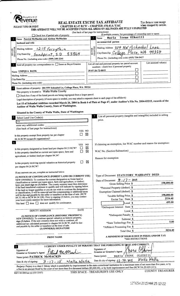
| 1 | 03/25/2015 | SWD | STATUTORY WARRANTY DEED | MC MACKIN PATRICK & ALETHEA | OLKERIIL MARIA IRENE | | | $198,000.00 | 127654 | 2015-02438 |
| 2 | 02/27/2009 | WARRANTY D | WARRANTY DEED | DEUTSCHE BANK NATIONAL TRUST C | MC MACKIN, PATRICK & ALETHEA | | | $199,000.00 | 116402 | 2009-01953 |
| 3 | 10/16/2008 | WARRANTY D | WARRANTY DEED | PALMER, RAND C & JAMIE J | DEUTSCHE BANK NATIONAL TRUST C | | | $172,500.00 | 115830 | 2008-10531 |
| 4 | 01/25/2006 | WARRANTY D | WARRANTY DEED | GLEIM, DOUGLAS L & YVONNE | PALMER, RAND C & JAMIE J | | | $222,400.00 | 109533 | 2006-00941 |
| 5 | 11/17/2004 | WARRANTY D | WARRANTY DEED | MAJERUS, DOUGLAS | GLEIM, DOUGLAS L & YVONNE | | | $182,900.00 | 106218 | 2004-13230 |
| 6 | 04/01/2004 | WARRANTY D | WARRANTY DEED | "SCHNABEL, HAROLD & JUNIS~TRUS | MAJERUS DOUGLAS & CHRISTINA M | | | | 104410 | 2004-03453 |