Property
Account |
| Property ID: | 25480 | Abbreviated Legal Description: | VALLEY HOMES PARCEL #183 |
| Parcel Number: | 360722560183 | Agent Code: | |
| Type: | Real | | |
| Tax Area: | 6 - OL-140-F-FB | Land Use Code | 11 |
| Open Space: | N | DFL | N |
| Historic Property: | N | Remodel Property: | N |
| Multi-Family Redevelopment: | N | | |
| Township: | 7 | Section: | 22 |
| Range: | 36 |
Location |
| Address: | 1665 E ALDER ST WA 99362 | Mapsco: | |
| Neighborhood: | A SFR | Map ID: | |
| Neighborhood CD: | 413011 |
Owner |
| Name: | KILIONA WILLIE & FAANIMO | Owner ID: | 69890 |
| Mailing Address: | 1665 E ALDER ST WALLA WALLA, WA 99362 | % Ownership: | 100.0000000000% |
| | | Exemptions: | |
Taxes and Assessment Details
Property Tax Information as of
02/21/2026
Click on "Statement Details" to expand or collapse a tax statement.
* Please enter a valid date ** Please enter a valid date *
Statement Details |
| | TOTAL: | $0.00 | $0.00 | $0.00 | $0.00 | $0.00 | $0.00 |
|
| | $0.00 | $0.00 | $0.00 | $0.00 | $0.00 | $0.00 |
Values
| (+) Improvement Homesite Value: | + | $0 | |
| (+) Improvement Non-Homesite Value: | + | $271,520 | |
| (+) Land Homesite Value: | + | $0 | |
| (+) Land Non-Homesite Value: | + | $83,100 | |
| (+) Curr Use (HS): | + | $0 | $0 |
| (+) Curr Use (NHS): | + | $0 | $0 |
| | | -------------------------- | |
| (=) Market Value: | = | $354,620 | |
| (–) Productivity Loss: | – | $0 | |
| | | -------------------------- | |
| (=) Subtotal: | = | $354,620 | |
| (+) Senior Appraised Value: | + | $0 | |
| (+) Non-Senior Appraised Value: | + | $354,620 | |
| | | -------------------------- | |
| (=) Total Appraised Value: | = | $354,620 | |
| (–) Senior Exemption Loss: | – | $0 | |
| (–) Exemption Loss: | – | $0 | |
| | | -------------------------- | |
| (=) Taxable Value: | = | $354,620 | |
Taxing Jurisdiction
| Owner: | KILIONA WILLIE & FAANIMO | | |
| % Ownership: | 100.0000000000% | | |
| Total Value: | $354,620 | | |
| Tax Area: | 6 - OL-140-F-FB |
| CERFD | CURRENT EXPENSE REFUND 010 | 0.0000000000 | $354,620 | $354,620 | $0.00 | | |
| CURREXP | CURRENT EXPENSE 010 | 1.0175366760 | $354,620 | $354,620 | $360.84 | | |
| HUMNSERV | HUMAN SERVICES 119 | 0.0250000000 | $354,620 | $354,620 | $8.87 | | |
| SLDREL | SOLDIERS RELIEF 121 | 0.0155990005 | $354,620 | $354,620 | $5.53 | | |
| EMERGSER | EMS 147 | 0.3792580840 | $354,620 | $354,620 | $134.49 | | |
| EMSRFD | EMS REFUND 147 | 0.0000000000 | $354,620 | $354,620 | $0.00 | | |
| PORTRFD | PORT REFUND 640 | 0.0000000000 | $354,620 | $354,620 | $0.00 | | |
| PORTWWGEN | PORT OF WW 640 | 0.2460186015 | $354,620 | $354,620 | $87.24 | | |
| SD140BOND | SD #140 BOND 764 | 0.8342371393 | $354,620 | $354,620 | $295.84 | | |
| SD140GEN | SD #140 GENERAL 760 | 2.0646500647 | $354,620 | $354,620 | $732.17 | | |
| ST2 | STATE SCHOOL PART 2 600 | 0.8131451643 | $354,620 | $354,620 | $288.36 | | |
| STATESCHL | STATE SCHOOL 600 | 1.5158548041 | $354,620 | $354,620 | $537.55 | | |
| STREFUND | STATE REFUND LEVY 603 | 0.0000000000 | $354,620 | $354,620 | $0.00 | | |
| CWWBOND | C OF WW BOND 643 | 0.2760494372 | $354,620 | $354,620 | $97.89 | | |
| CWWGEN | CITY OF WW 631 | 1.6100204973 | $354,620 | $354,620 | $570.95 | | |
| CWWRFD | CITY OF WALLA WALLA REFUND 631 | 0.0000000000 | $354,620 | $354,620 | $0.00 | | |
| | Total Tax Rate: | 8.7973694689 | | | | | |
| | | | | Taxes w/Current Exemptions: | $3,119.73 | | |
| | | | | Taxes w/o Exemptions: | $3,119.73 | | |
Improvement / Building
| Improvement #1: | RESIDENTIAL | State Code: | 11 | 1773.0 sqft | Value: | $271,520 |
| Exterior Wall: | PLYWOOD | Foundation: | SLAB FOUNDATION | | Heating/Cooling: | WARM & COOLED AIR | Number of Bathrooms: | 2.5 | | Number of Bedrooms: | 3 | Plumbing: | 12 | | Roof Covering: | COMP SHINGLE |   |   |
|
| | Type | Description | Class CD | Sub Class CD | Year Built | Area |
| | MA | Main Area | 1 | 30 | 1977 | 1773.0 |
| | CPCD | CARPORT/DIRT FLOOR | 1 | 30 | 0 | 322.0 |
| | SI1 | SITE IMPROVEMENT | 1 | 30 | 0 | 3.5 |
Sketch
Property Image
Land
| 1 | RES 1 | Converted: Residential | 0.3507 | 15275.00 | 0.00 | 0.00 | 1.00 | $83,100 | $0 |
Roll Value History
| 2026 | N/A | N/A | N/A | N/A | N/A |
| 2025 | $285,100 | $83,100 | $0 | $368,200 | $368,200 |
| 2024 | $285,100 | $83,100 | $0 | $368,200 | $368,200 |
| 2023 | $271,520 | $83,100 | $0 | $354,620 | $354,620 |
| 2022 | $258,460 | $56,820 | $0 | $315,280 | $315,280 |
| 2021 | $161,540 | $56,820 | $0 | $218,360 | $218,360 |
| 2020 | $134,620 | $56,820 | $0 | $191,440 | $191,440 |
| 2019 | $134,620 | $56,820 | $0 | $191,440 | $191,440 |
| 2018 | $122,380 | $56,820 | $0 | $179,200 | $179,200 |
| 2017 | $111,250 | $56,820 | $0 | $168,070 | $168,070 |
| 2016 | $108,300 | $44,000 | $0 | $152,300 | $152,300 |
| 2015 | $108,300 | $44,000 | $0 | $152,300 | $152,300 |
| 2014 | $108,300 | $44,000 | $0 | $152,300 | $152,300 |
| 2013 | $108,300 | $44,000 | $0 | $152,300 | $152,300 |
| 2012 | $108,300 | $44,000 | $0 | $0 | $0 |
| 2011 | $100,700 | $44,000 | $0 | $0 | $0 |
| 2010 | $100,700 | $44,000 | $0 | $0 | $0 |
| 2009 | $116,800 | $44,000 | $0 | $0 | $0 |
| 2008 | $116,800 | $44,000 | $0 | $0 | $0 |
| 2007 | $116,800 | $44,000 | $0 | $0 | $0 |
Deed and Sales History
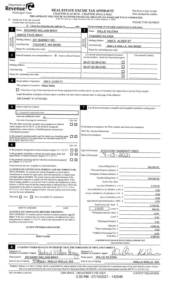
| 1 | 07/15/2021 | SWD | STATUTORY WARRANTY DEED | BRAY RICHARD W & JANICE F | KILIONA WILLIE & FAANIMO | | 2-PARCELS | $340,000.00 | 142046 | 2021-08623 |
|   | |
| 2 | 10/20/2008 | QCD | QUIT CLAIM DEED | BRAY, RICHARD W | BRAY, RICHARD W & JANICE F | | | | 115844 | 2008-10667 |
| 3 | 02/08/1988 | WARRANTY D | WARRANTY DEED | | | | | $49,000.00 | 0 | 1688-800815 |
Payout Agreement
| No payout information available.. |