Property
Account |
| Property ID: | 25474 | Abbreviated Legal Description: | MILBROOKE PARK LOT 41 BLK 3 |
| Parcel Number: | 360721650341 | Agent Code: | |
| Type: | Real | | |
| Tax Area: | 1 - OL-140-F | Land Use Code | 11 |
| Open Space: | N | DFL | N |
| Historic Property: | N | Remodel Property: | N |
| Multi-Family Redevelopment: | N | | |
| Township: | 7 | Section: | 21 |
| Range: | 36 |
Location |
| Address: | 202 CASCADE DR WA 99362 | Mapsco: | |
| Neighborhood: | A-Superior SFR | Map ID: | |
| Neighborhood CD: | 513211 |
Owner |
| Name: | DORSO DAVID R & AUDREY C | Owner ID: | 66123 |
| Mailing Address: | 202 CASCADE DR WALLA WALLA, WA 99362 | % Ownership: | 100.0000000000% |
| | | Exemptions: | |
Taxes and Assessment Details
Property Tax Information as of
02/21/2026
Click on "Statement Details" to expand or collapse a tax statement.
* Please enter a valid date ** Please enter a valid date *
Statement Details |
| | TOTAL: | $0.00 | $0.00 | $0.00 | $0.00 | $0.00 | $0.00 |
|
| | $0.00 | $0.00 | $0.00 | $0.00 | $0.00 | $0.00 |
Values
| (+) Improvement Homesite Value: | + | $0 | |
| (+) Improvement Non-Homesite Value: | + | $329,850 | |
| (+) Land Homesite Value: | + | $0 | |
| (+) Land Non-Homesite Value: | + | $41,200 | |
| (+) Curr Use (HS): | + | $0 | $0 |
| (+) Curr Use (NHS): | + | $0 | $0 |
| | | -------------------------- | |
| (=) Market Value: | = | $371,050 | |
| (–) Productivity Loss: | – | $0 | |
| | | -------------------------- | |
| (=) Subtotal: | = | $371,050 | |
| (+) Senior Appraised Value: | + | $0 | |
| (+) Non-Senior Appraised Value: | + | $371,050 | |
| | | -------------------------- | |
| (=) Total Appraised Value: | = | $371,050 | |
| (–) Senior Exemption Loss: | – | $0 | |
| (–) Exemption Loss: | – | $0 | |
| | | -------------------------- | |
| (=) Taxable Value: | = | $371,050 | |
Taxing Jurisdiction
| Owner: | DORSO DAVID R & AUDREY C | | |
| % Ownership: | 100.0000000000% | | |
| Total Value: | $371,050 | | |
| Tax Area: | 1 - OL-140-F |
| CERFD | CURRENT EXPENSE REFUND 010 | 0.0000000000 | $371,050 | $371,050 | $0.00 | | |
| CURREXP | CURRENT EXPENSE 010 | 1.0175366760 | $371,050 | $371,050 | $377.56 | | |
| HUMNSERV | HUMAN SERVICES 119 | 0.0250000000 | $371,050 | $371,050 | $9.28 | | |
| SLDREL | SOLDIERS RELIEF 121 | 0.0155990005 | $371,050 | $371,050 | $5.79 | | |
| EMERGSER | EMS 147 | 0.3792580840 | $371,050 | $371,050 | $140.72 | | |
| EMSRFD | EMS REFUND 147 | 0.0000000000 | $371,050 | $371,050 | $0.00 | | |
| PORTRFD | PORT REFUND 640 | 0.0000000000 | $371,050 | $371,050 | $0.00 | | |
| PORTWWGEN | PORT OF WW 640 | 0.2460186015 | $371,050 | $371,050 | $91.29 | | |
| SD140BOND | SD #140 BOND 764 | 0.8342371393 | $371,050 | $371,050 | $309.54 | | |
| SD140GEN | SD #140 GENERAL 760 | 2.0646500647 | $371,050 | $371,050 | $766.09 | | |
| ST2 | STATE SCHOOL PART 2 600 | 0.8131451643 | $371,050 | $371,050 | $301.72 | | |
| STATESCHL | STATE SCHOOL 600 | 1.5158548041 | $371,050 | $371,050 | $562.46 | | |
| STREFUND | STATE REFUND LEVY 603 | 0.0000000000 | $371,050 | $371,050 | $0.00 | | |
| CWWBOND | C OF WW BOND 643 | 0.2760494372 | $371,050 | $371,050 | $102.43 | | |
| CWWGEN | CITY OF WW 631 | 1.6100204973 | $371,050 | $371,050 | $597.40 | | |
| CWWRFD | CITY OF WALLA WALLA REFUND 631 | 0.0000000000 | $371,050 | $371,050 | $0.00 | | |
| | Total Tax Rate: | 8.7973694689 | | | | | |
| | | | | Taxes w/Current Exemptions: | $3,264.28 | | |
| | | | | Taxes w/o Exemptions: | $3,264.28 | | |
Improvement / Building
| Improvement #1: | RESIDENTIAL | State Code: | 11 | 1378.0 sqft | Value: | $329,850 |
| Exterior Wall: | VINYL | Heating/Cooling: | WARM & COOLED AIR | | Number of Bathrooms: | 2 | Number of Bedrooms: | 5 | | Plumbing: | 10 | Roof Covering: | COMP SHINGLE |
|
| | Type | Description | Class CD | Sub Class CD | Year Built | Area |
| | MA | Main Area | 1 | 30 | 1950 | 1378.0 |
| | SI1 | SITE IMPROVEMENT | 1 | 30 | 1950 | 2.5 |
| | BASE | BASEMENT | 1 | 30 | 1950 | 1120.0 |
| | BPF | BASEMENT -PARTITIONED FINISH | 1 | 30 | 1950 | 1120.0 |
| | D2F | Double 2 Story Fireplace | 1 | 30 | 1950 | 1.0 |
| | RPS | PORCH W/STEPS,ROOF | 1 | 30 | 1950 | 30.0 |
| | CPC | COVERED CARPORT/PATIO | 1 | 30 | 1950 | 224.0 |
| | DTG | Detached Garage | 1 | 30 | 1950 | 264.0 |
| | SMP | SWIMMING POOL | 1 | 30 | 1950 | 1.0 |
Sketch
Property Image
Land
| 1 | RES 1 | Converted: Residential | 0.1513 | 6592.00 | 0.00 | 0.00 | 1.00 | $41,200 | $0 |
Roll Value History
| 2026 | N/A | N/A | N/A | N/A | N/A |
| 2025 | $357,570 | $65,920 | $0 | $423,490 | $423,490 |
| 2024 | $340,540 | $65,920 | $0 | $406,460 | $406,460 |
| 2023 | $329,850 | $41,200 | $0 | $371,050 | $371,050 |
| 2022 | $314,150 | $41,200 | $0 | $355,350 | $355,350 |
| 2021 | $232,700 | $41,200 | $0 | $273,900 | $273,900 |
| 2020 | $179,000 | $41,200 | $0 | $220,200 | $220,200 |
| 2019 | $179,000 | $41,200 | $0 | $220,200 | $220,200 |
| 2018 | $179,000 | $41,200 | $0 | $220,200 | $220,200 |
| 2017 | $183,480 | $26,400 | $0 | $209,880 | $209,880 |
| 2016 | $152,900 | $26,400 | $0 | $179,300 | $179,300 |
| 2015 | $152,900 | $26,400 | $0 | $179,300 | $179,300 |
| 2014 | $152,900 | $26,400 | $0 | $179,300 | $179,300 |
| 2013 | $152,900 | $26,400 | $0 | $179,300 | $179,300 |
| 2012 | $162,600 | $26,400 | $0 | $0 | $0 |
| 2011 | $162,600 | $26,400 | $0 | $0 | $0 |
| 2010 | $153,600 | $26,400 | $0 | $0 | $0 |
| 2009 | $173,600 | $26,400 | $0 | $0 | $0 |
| 2008 | $147,500 | $26,400 | $0 | $0 | $0 |
| 2007 | $147,500 | $26,400 | $0 | $0 | $0 |
Deed and Sales History
| 1 | 10/21/2019 | SWD | STATUTORY WARRANTY DEED | ARELLANO CARLA J | DORSO DAVID R & AUDREY C | | | $265,000.00 | 137904 | 2019-08427 |
| 2 | 06/13/2017 | QCD | QUIT CLAIM DEED | CHRISTOFIDES PHILIP A | ARELLANO CARLA J | | | $0.00 | 132702 | 2017-05030 |
| 3 | 01/17/2017 | SWD | STATUTORY WARRANTY DEED | CLARK JUDY E | CHRISTOFIDES PHILIP A | | | $212,500.00 | 131778 | 2017-00439 |
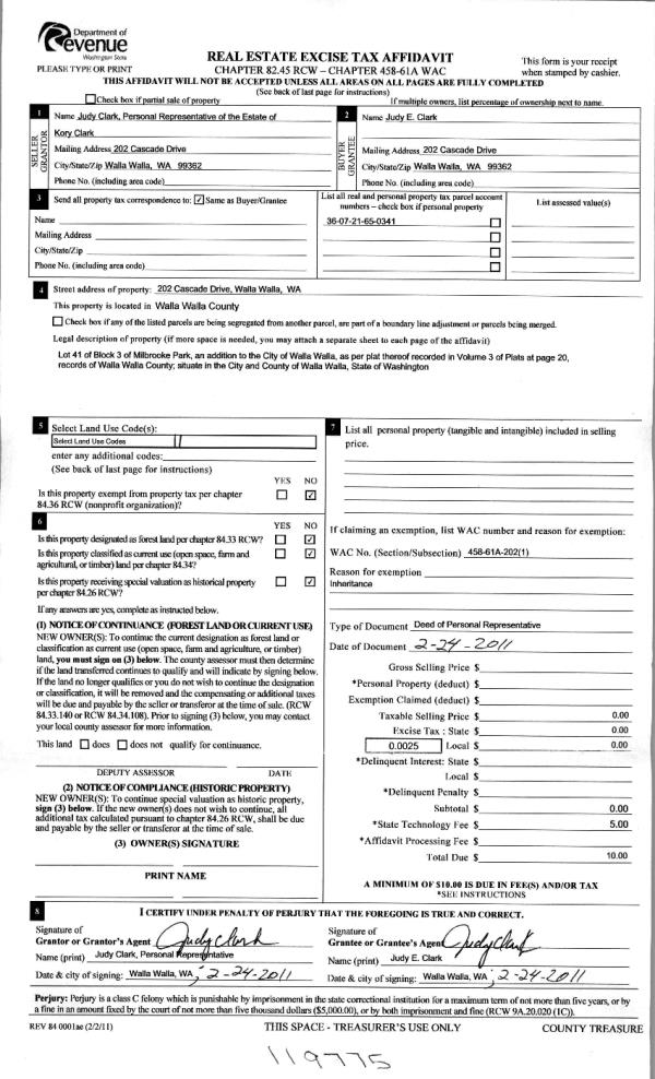
| 4 | 02/24/2011 | WARRANTY D | WARRANTY DEED | CLARK, KORY ESTATE OF | CLARK, JUDY E | | | | 119775 | 2011-01727 |
| 5 | 10/24/2008 | QCD | QUIT CLAIM DEED | CLARK, JUDY E (FORMERLY RESER) | CLARK, KORY R & JUDY E | | | | 115873 | 2008-10832 |
| 6 | 08/31/2005 | WARRANTY D | WARRANTY DEED | JENSEN, CRAIG J & NANCY M | RESER, JUDY E | | | $174,000.00 | 108373 | 2005-10802 |
| 7 | 04/28/2000 | WARRANTY D | WARRANTY DEED | | | | | $115,900.00 | 94982 | 2970-004073 |
Payout Agreement
| No payout information available.. |