Property
Account |
| Property ID: | 2547 | Abbreviated Legal Description: | PONTI'S ADDITION LOT 13 |
| Parcel Number: | 350726660013 | Agent Code: | |
| Type: | Real | | |
| Tax Area: | 311 - 250-4 | Land Use Code | 11 |
| Open Space: | N | DFL | N |
| Historic Property: | N | Remodel Property: | N |
| Multi-Family Redevelopment: | N | | |
| Township: | 7 | Section: | 26 |
| Range: | 35 |
Location |
| Address: | 1237 S HUSSEY ST WA 99324 | Mapsco: | |
| Neighborhood: | G SFR Rural/City Inf S | Map ID: | |
| Neighborhood CD: | 114212 |
Owner |
| Name: | WOLD JOSEPH A | Owner ID: | 56601 |
| Mailing Address: | 1237 S HUSSEY ST WALLA WALLA, WA 99362 | % Ownership: | 100.0000000000% |
| | | Exemptions: | |
Taxes and Assessment Details
Values
| (+) Improvement Homesite Value: | + | $79,700 | |
| (+) Improvement Non-Homesite Value: | + | $0 | |
| (+) Land Homesite Value: | + | $105,870 | |
| (+) Land Non-Homesite Value: | + | $0 | |
| (+) Curr Use (HS): | + | $0 | $0 |
| (+) Curr Use (NHS): | + | $0 | $0 |
| | | -------------------------- | |
| (=) Market Value: | = | $185,570 | |
| (–) Productivity Loss: | – | $0 | |
| | | -------------------------- | |
| (=) Subtotal: | = | $185,570 | |
| (+) Senior Appraised Value: | + | $0 | |
| (+) Non-Senior Appraised Value: | + | $185,570 | |
| | | -------------------------- | |
| (=) Total Appraised Value: | = | $185,570 | |
| (–) Senior Exemption Loss: | – | $0 | |
| (–) Exemption Loss: | – | $0 | |
| | | -------------------------- | |
| (=) Taxable Value: | = | $185,570 | |
Taxing Jurisdiction
| Owner: | WOLD JOSEPH A | | |
| % Ownership: | 100.0000000000% | | |
| Total Value: | $185,570 | | |
| Tax Area: | 311 - 250-4 |
| CERFD | CURRENT EXPENSE REFUND 010 | 0.0000000000 | $185,570 | $185,570 | $0.00 | | |
| CURREXP | CURRENT EXPENSE 010 | 1.0175366760 | $185,570 | $185,570 | $188.82 | | |
| HUMNSERV | HUMAN SERVICES 119 | 0.0250000000 | $185,570 | $185,570 | $4.64 | | |
| SLDREL | SOLDIERS RELIEF 121 | 0.0155990005 | $185,570 | $185,570 | $2.89 | | |
| EMERGSER | EMS 147 | 0.3792580840 | $185,570 | $185,570 | $70.38 | | |
| EMSRFD | EMS REFUND 147 | 0.0000000000 | $185,570 | $185,570 | $0.00 | | |
| FD4EXP | FD #4 EXPENSE 686 | 0.8836993059 | $185,570 | $185,570 | $163.99 | | |
| RLBRFD | RURAL LIBRARY REFUND 623 | 0.0000000000 | $185,570 | $185,570 | $0.00 | | |
| RURALLIB | RURAL LIBRARY 623 | 0.3710609029 | $185,570 | $185,570 | $68.86 | | |
| PORTRFD | PORT REFUND 640 | 0.0000000000 | $185,570 | $185,570 | $0.00 | | |
| PORTWWGEN | PORT OF WW 640 | 0.2460186015 | $185,570 | $185,570 | $45.65 | | |
| SD250BOND | SD #250 BOND 773 | 1.4560608159 | $185,570 | $185,570 | $270.20 | | |
| SD250GEN | SD #250 GENERAL 770 | 2.3880724087 | $185,570 | $185,570 | $443.15 | | |
| ST2 | STATE SCHOOL PART 2 600 | 0.8131451643 | $185,570 | $185,570 | $150.90 | | |
| STATESCHL | STATE SCHOOL 600 | 1.5158548041 | $185,570 | $185,570 | $281.30 | | |
| STREFUND | STATE REFUND LEVY 603 | 0.0000000000 | $185,570 | $185,570 | $0.00 | | |
| COROAD | COUNTY ROAD 115 | 1.6549953990 | $185,570 | $185,570 | $307.12 | | |
| CRPRD | COUNTY ROAD REFUND 115 | 0.0000000000 | $185,570 | $185,570 | $0.00 | | |
| | Total Tax Rate: | 10.7663011628 | | | | | |
| | | | | Taxes w/Current Exemptions: | $1,997.90 | | |
| | | | | Taxes w/o Exemptions: | $1,997.90 | | |
Improvement / Building
| Improvement #1: | RESIDENTIAL | State Code: | 11 | 1256.0 sqft | Value: | $79,700 |
| Exterior Wall: | METAL/STEEL | Heating/Cooling: | HEAT PUMP | | Number of Bathrooms: | 1 | Number of Bedrooms: | 3 | | Plumbing: | 6 | Roof Covering: | COMP SHINGLE |
|
| | Type | Description | Class CD | Sub Class CD | Year Built | Area |
| | MA | Main Area | 4 | 30 | 1912 | 1256.0 |
| | SI1 | SITE IMPROVEMENT | 4 | 30 | 1912 | 1.0 |
| | WDR | WOOD DECK W/ROOF | 4 | 30 | 1912 | 112.0 |
| | BASE | BASEMENT | 4 | 30 | 1912 | 400.0 |
| | UPFL | Upper Floor (included in main area) | 4 | 30 | 1912 | 552.0 |
Sketch
Property Image
Land
| 1 | RES 1 | Converted: Residential | 0.5128 | 22336.00 | 0.00 | 0.00 | 1.00 | $105,870 | $0 |
Roll Value History
| 2026 | N/A | N/A | N/A | N/A | N/A |
| 2025 | $79,700 | $155,680 | $0 | $235,380 | $235,380 |
| 2024 | $79,700 | $105,870 | $0 | $185,570 | $185,570 |
| 2023 | $79,700 | $105,870 | $0 | $185,570 | $185,570 |
| 2022 | $79,700 | $105,870 | $0 | $185,570 | $185,570 |
| 2021 | $69,300 | $105,870 | $0 | $175,170 | $175,170 |
| 2020 | $53,310 | $105,870 | $0 | $159,180 | $159,180 |
| 2019 | $84,180 | $75,000 | $0 | $159,180 | $159,180 |
| 2018 | $73,200 | $75,000 | $0 | $148,200 | $148,200 |
| 2017 | $73,200 | $75,000 | $0 | $148,200 | $148,200 |
| 2016 | $73,200 | $75,000 | $0 | $148,200 | $148,200 |
| 2015 | $73,200 | $75,000 | $0 | $148,200 | $148,200 |
| 2014 | $73,200 | $75,000 | $0 | $148,200 | $59,280 |
| 2013 | $73,200 | $75,000 | $0 | $148,200 | $96,330 |
| 2012 | $53,600 | $75,000 | $0 | $128,600 | $78,600 |
| 2011 | $54,000 | $90,000 | $0 | $144,000 | $57,600 |
| 2010 | $58,200 | $90,000 | $0 | $0 | $0 |
| 2009 | $56,000 | $100,000 | $0 | $0 | $0 |
| 2008 | $46,500 | $45,000 | $0 | $0 | $0 |
| 2007 | $46,500 | $45,000 | $0 | $0 | $0 |
Deed and Sales History
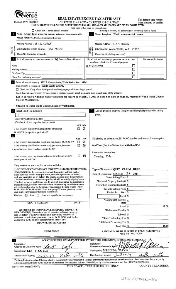
| 1 | 03/31/2017 | QCD | QUIT CLAIM DEED | PONTI R GARY & ALBERT C (BOB) | GREGOIRE ROBERT J | | | $0.00 | 132141 | 2017-02489 |
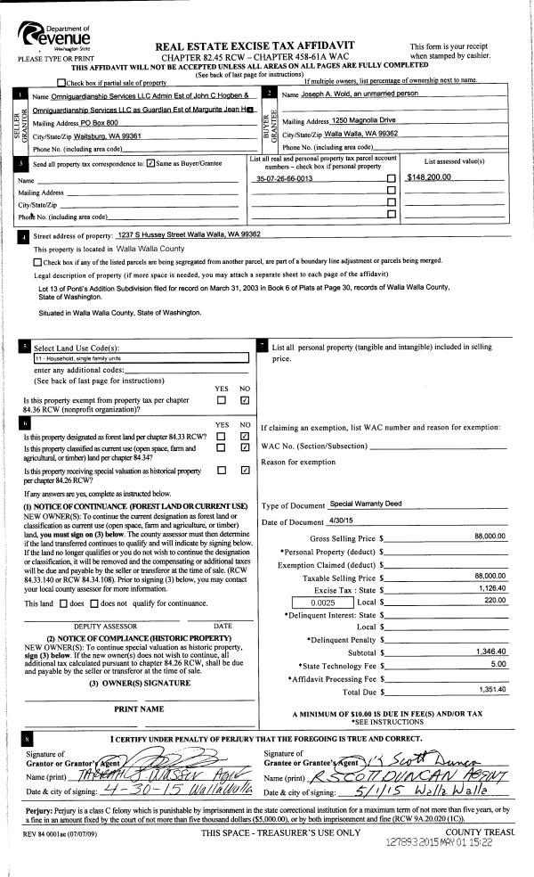
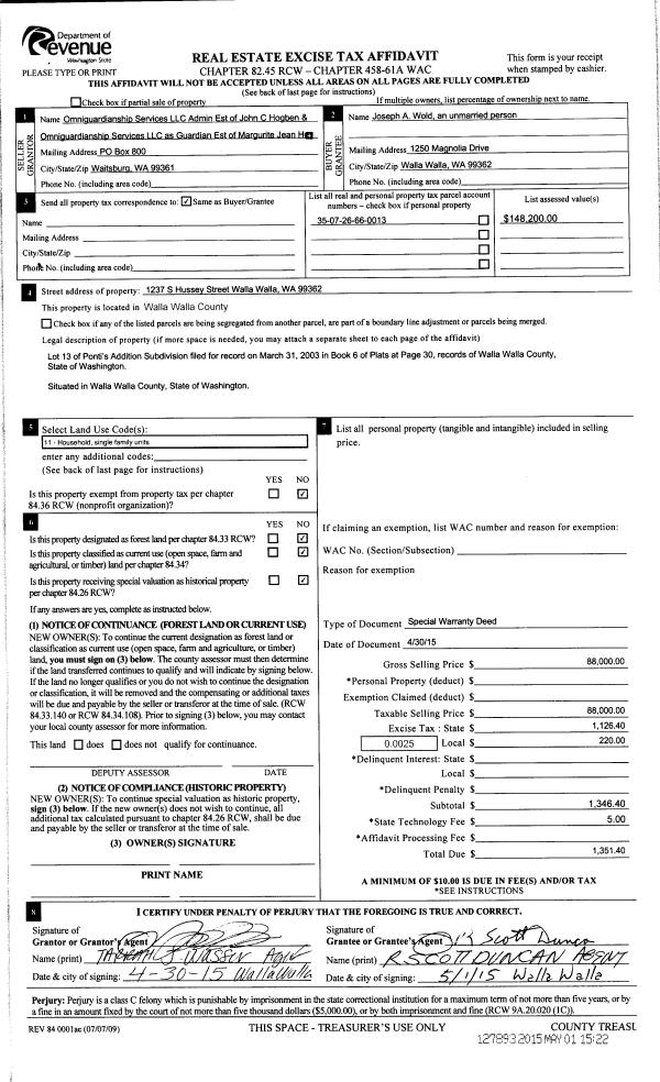
| 2 | 05/01/2015 | SWP | Special Warranty Deed | HOGBEN MARGUERITE ESTATE OF | WOLD JOSEPH A | | | $88,000.00 | 127893 | 2015-03664 |
Payout Agreement
| No payout information available.. |