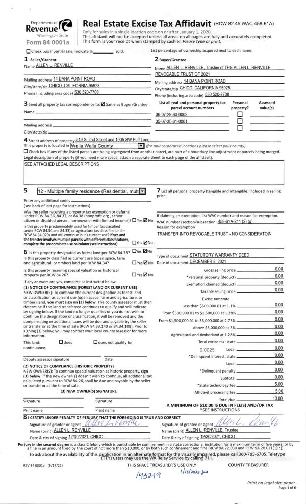
Property
Account |
| Property ID: | 25466 | Abbreviated Legal Description: | ELLIS'S ADDITION PARCEL 1 |
| Parcel Number: | 350735610001 | Agent Code: | |
| Type: | Real | | |
| Tax Area: | 75 - CP 250 | Land Use Code | 12 |
| Open Space: | N | DFL | N |
| Historic Property: | N | Remodel Property: | N |
| Multi-Family Redevelopment: | N | | |
| Township: | 7 | Section: | 35 |
| Range: | 35 |
Location |
| Address: | 1005 SW PUFF LN WA 99324 | Mapsco: | |
| Neighborhood: | A Apartment | Map ID: | |
| Neighborhood CD: | 113021 |
Owner |
| Name: | ALLEN L RENVILLE REVOCABLE TRUST | Owner ID: | 70984 |
| Mailing Address: | 14 DANA POINT RD CHICO, CA 95928 | % Ownership: | 100.0000000000% |
| | | Exemptions: | |
Taxes and Assessment Details
Values
| (+) Improvement Homesite Value: | + | $0 | |
| (+) Improvement Non-Homesite Value: | + | $330,710 | |
| (+) Land Homesite Value: | + | $0 | |
| (+) Land Non-Homesite Value: | + | $61,920 | |
| (+) Curr Use (HS): | + | $0 | $0 |
| (+) Curr Use (NHS): | + | $0 | $0 |
| | | -------------------------- | |
| (=) Market Value: | = | $392,630 | |
| (–) Productivity Loss: | – | $0 | |
| | | -------------------------- | |
| (=) Subtotal: | = | $392,630 | |
| (+) Senior Appraised Value: | + | $0 | |
| (+) Non-Senior Appraised Value: | + | $392,630 | |
| | | -------------------------- | |
| (=) Total Appraised Value: | = | $392,630 | |
| (–) Senior Exemption Loss: | – | $0 | |
| (–) Exemption Loss: | – | $0 | |
| | | -------------------------- | |
| (=) Taxable Value: | = | $392,630 | |
Taxing Jurisdiction
| Owner: | ALLEN L RENVILLE REVOCABLE TRUST | | |
| % Ownership: | 100.0000000000% | | |
| Total Value: | $392,630 | | |
| Tax Area: | 75 - CP 250 |
| CERFD | CURRENT EXPENSE REFUND 010 | 0.0000000000 | $392,630 | $392,630 | $0.00 | | |
| CURREXP | CURRENT EXPENSE 010 | 1.0175366760 | $392,630 | $392,630 | $399.52 | | |
| HUMNSERV | HUMAN SERVICES 119 | 0.0250000000 | $392,630 | $392,630 | $9.82 | | |
| SLDREL | SOLDIERS RELIEF 121 | 0.0155990005 | $392,630 | $392,630 | $6.12 | | |
| COLLPLBOND | C OF CP BOND 644 | 0.4374241808 | $392,630 | $392,630 | $171.75 | | |
| COLLPLGEN | CITY OF CP 632 | 1.4453819216 | $392,630 | $392,630 | $567.50 | | |
| EMERGSER | EMS 147 | 0.3792580840 | $392,630 | $392,630 | $148.91 | | |
| EMSRFD | EMS REFUND 147 | 0.0000000000 | $392,630 | $392,630 | $0.00 | | |
| RURALLIB | RURAL LIBRARY 623 | 0.3710609029 | $392,630 | $392,630 | $145.69 | | |
| PORTRFD | PORT REFUND 640 | 0.0000000000 | $392,630 | $392,630 | $0.00 | | |
| PORTWWGEN | PORT OF WW 640 | 0.2460186015 | $392,630 | $392,630 | $96.59 | | |
| SD250BOND | SD #250 BOND 773 | 1.4560608159 | $392,630 | $392,630 | $571.69 | | |
| SD250GEN | SD #250 GENERAL 770 | 2.3880724087 | $392,630 | $392,630 | $937.63 | | |
| ST2 | STATE SCHOOL PART 2 600 | 0.8131451643 | $392,630 | $392,630 | $319.27 | | |
| STATESCHL | STATE SCHOOL 600 | 1.5158548041 | $392,630 | $392,630 | $595.17 | | |
| STREFUND | STATE REFUND LEVY 603 | 0.0000000000 | $392,630 | $392,630 | $0.00 | | |
| | Total Tax Rate: | 10.1104125603 | | | | | |
| | | | | Taxes w/Current Exemptions: | $3,969.66 | | |
| | | | | Taxes w/o Exemptions: | $3,969.66 | | |
Improvement / Building
| Improvement #1: | RESIDENTIAL | State Code: | 12 | 3584.0 sqft | Value: | $330,710 |
| Exterior Wall: | HARDBOARD | Heating/Cooling: | FORCED AIR | | Number of Bathrooms: | 4 | Number of Bedrooms: | 8 | | Plumbing: | 20 | Roof Covering: | BUILT-UP ROCK |
|
| | Type | Description | Class CD | Sub Class CD | Year Built | Area |
| | MA | Main Area | 2 | 30 | 1978 | 3584.0 |
| | SI1 | SITE IMPROVEMENT | 2 | 30 | 1978 | 3.0 |
| | UPFL | Upper Floor (included in main area) | 2 | 30 | 1978 | 1792.0 |
| | BLS | STEEL BALCONY | 2 | 30 | 1978 | 338.0 |
| | EMS | EXT METAL STAIRS | 2 | 30 | 1978 | 1.0 |
| | SWP | Solid Wall Porch | 2 | 30 | 1978 | 224.0 |
Sketch
Property Image
Land
| 1 | RES 1 | Converted: Residential | 0.2583 | 11250.00 | 0.00 | 0.00 | 1.00 | $61,920 | $0 |
Roll Value History
| 2026 | N/A | N/A | N/A | N/A | N/A |
| 2025 | $335,200 | $92,700 | $0 | $427,900 | $427,900 |
| 2024 | $335,200 | $61,900 | $0 | $397,100 | $397,100 |
| 2023 | $330,710 | $61,920 | $0 | $392,630 | $392,630 |
| 2022 | $330,710 | $61,920 | $0 | $392,630 | $392,630 |
| 2021 | $275,590 | $61,920 | $0 | $337,510 | $337,510 |
| 2020 | $275,590 | $61,920 | $0 | $337,510 | $337,510 |
| 2019 | $289,310 | $48,200 | $0 | $337,510 | $337,510 |
| 2018 | $275,530 | $48,200 | $0 | $323,730 | $323,730 |
| 2017 | $211,950 | $48,200 | $0 | $260,150 | $260,150 |
| 2016 | $211,950 | $48,200 | $0 | $260,150 | $260,150 |
| 2015 | $211,950 | $48,200 | $0 | $260,150 | $260,150 |
| 2014 | $223,100 | $48,200 | $0 | $271,300 | $271,300 |
| 2013 | $223,100 | $48,200 | $0 | $271,300 | $271,300 |
| 2012 | $223,100 | $48,200 | $0 | $0 | $0 |
| 2011 | $223,100 | $48,200 | $0 | $0 | $0 |
| 2010 | $223,100 | $48,200 | $0 | $0 | $0 |
| 2009 | $223,100 | $48,200 | $0 | $0 | $0 |
| 2008 | $153,700 | $25,800 | $0 | $0 | $0 |
| 2007 | $153,700 | $25,800 | $0 | $0 | $0 |
Deed and Sales History
| 1 | 12/08/2021 | SWD | STATUTORY WARRANTY DEED | RENVILLE ALLEN LEW | ALLEN L RENVILLE REVOCABLE TRUST | 2 PARCELS | | $0.00 | 143219 | 2022-00319 |
| 2 | 05/20/2019 | SWD | STATUTORY WARRANTY DEED | LINGAS ALEX & RENIE | RENVILLE ALLEN LEW | | | $350,000.00 | 136908 | 2019-03394 |
| 3 | 10/10/2007 | WARRANTY D | WARRANTY DEED | KLINEFELTER, TERRY J & MELISSA | LINGAS, ALEX & RENIE | | | $330,000.00 | 113863 | 2007-11815 |
| 4 | 12/01/1998 | WARRANTY D | WARRANTY DEED | | | | | $150,000.00 | 91944 | 2789-815219 |
Payout Agreement
| No payout information available.. |