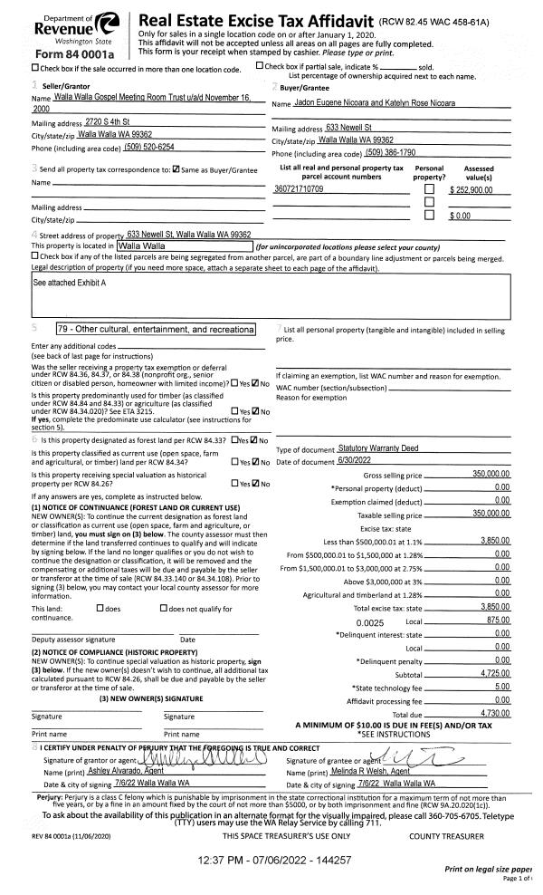
Property
Account |
| Property ID: | 25407 | Abbreviated Legal Description: | REEDS BLK 7 TAX 10 |
| Parcel Number: | 360721710709 | Agent Code: | |
| Type: | Real | | |
| Tax Area: | 1 - OL-140-F | Land Use Code | 11 |
| Open Space: | N | DFL | N |
| Historic Property: | N | Remodel Property: | N |
| Multi-Family Redevelopment: | N | | |
| Township: | 7 | Section: | 21 |
| Range: | 36 |
Location |
| Address: | 633 NEWELL ST WA 99362 | Mapsco: | |
| Neighborhood: | G-SFR | Map ID: | |
| Neighborhood CD: | 514011 |
Owner |
| Name: | NICOARA JADON EUGENE & KATELYN ROSE | Owner ID: | 71920 |
| Mailing Address: | 633 NEWELL ST WALLA WALLA, WA 99362 | % Ownership: | 100.0000000000% |
| | | Exemptions: | |
Taxes and Assessment Details
Values
| (+) Improvement Homesite Value: | + | $0 | |
| (+) Improvement Non-Homesite Value: | + | $245,800 | |
| (+) Land Homesite Value: | + | $0 | |
| (+) Land Non-Homesite Value: | + | $72,430 | |
| (+) Curr Use (HS): | + | $0 | $0 |
| (+) Curr Use (NHS): | + | $0 | $0 |
| | | -------------------------- | |
| (=) Market Value: | = | $318,230 | |
| (–) Productivity Loss: | – | $0 | |
| | | -------------------------- | |
| (=) Subtotal: | = | $318,230 | |
| (+) Senior Appraised Value: | + | $0 | |
| (+) Non-Senior Appraised Value: | + | $318,230 | |
| | | -------------------------- | |
| (=) Total Appraised Value: | = | $318,230 | |
| (–) Senior Exemption Loss: | – | $0 | |
| (–) Exemption Loss: | – | $0 | |
| | | -------------------------- | |
| (=) Taxable Value: | = | $318,230 | |
Taxing Jurisdiction
| Owner: | NICOARA JADON EUGENE & KATELYN ROSE | | |
| % Ownership: | 100.0000000000% | | |
| Total Value: | $318,230 | | |
| Tax Area: | 1 - OL-140-F |
| CERFD | CURRENT EXPENSE REFUND 010 | 0.0000000000 | $318,230 | $318,230 | $0.00 | | |
| CURREXP | CURRENT EXPENSE 010 | 1.0175366760 | $318,230 | $318,230 | $323.81 | | |
| HUMNSERV | HUMAN SERVICES 119 | 0.0250000000 | $318,230 | $318,230 | $7.96 | | |
| SLDREL | SOLDIERS RELIEF 121 | 0.0155990005 | $318,230 | $318,230 | $4.96 | | |
| EMERGSER | EMS 147 | 0.3792580840 | $318,230 | $318,230 | $120.69 | | |
| EMSRFD | EMS REFUND 147 | 0.0000000000 | $318,230 | $318,230 | $0.00 | | |
| PORTRFD | PORT REFUND 640 | 0.0000000000 | $318,230 | $318,230 | $0.00 | | |
| PORTWWGEN | PORT OF WW 640 | 0.2460186015 | $318,230 | $318,230 | $78.29 | | |
| SD140BOND | SD #140 BOND 764 | 0.8342371393 | $318,230 | $318,230 | $265.48 | | |
| SD140GEN | SD #140 GENERAL 760 | 2.0646500647 | $318,230 | $318,230 | $657.03 | | |
| ST2 | STATE SCHOOL PART 2 600 | 0.8131451643 | $318,230 | $318,230 | $258.77 | | |
| STATESCHL | STATE SCHOOL 600 | 1.5158548041 | $318,230 | $318,230 | $482.39 | | |
| STREFUND | STATE REFUND LEVY 603 | 0.0000000000 | $318,230 | $318,230 | $0.00 | | |
| CWWBOND | C OF WW BOND 643 | 0.2760494372 | $318,230 | $318,230 | $87.85 | | |
| CWWGEN | CITY OF WW 631 | 1.6100204973 | $318,230 | $318,230 | $512.36 | | |
| CWWRFD | CITY OF WALLA WALLA REFUND 631 | 0.0000000000 | $318,230 | $318,230 | $0.00 | | |
| | Total Tax Rate: | 8.7973694689 | | | | | |
| | | | | Taxes w/Current Exemptions: | $2,799.59 | | |
| | | | | Taxes w/o Exemptions: | $2,799.59 | | |
Improvement / Building
| Improvement #1: | RESIDENTIAL | State Code: | 11 | 2254.0 sqft | Value: | $245,800 |
| Exterior Wall: | HARDBOARD | Heating/Cooling: | HEAT PUMP | | Number of Bathrooms: | 2 | Number of Bedrooms: | 4 | | Plumbing: | 14 | Roof Covering: | COMP SHINGLE |
|
| | Type | Description | Class CD | Sub Class CD | Year Built | Area |
| | MA | Main Area | 1 | 30 | 1930 | 2254.0 |
| | BASE | BASEMENT | 1 | 30 | 1930 | 2254.0 |
| | BPF | BASEMENT -PARTITIONED FINISH | 1 | 30 | 1930 | 2254.0 |
| | RPO | OPEN PORCH W/ROOF | 1 | 30 | 1930 | 48.0 |
| | OUT | OUTSIDE BASEMENT ENTRY | 1 | 30 | 1930 | 1.0 |
| | PRKSTLA | PARK STALL AVERAGE | D | * | 1930 | 8.0 |
Sketch
Property Image
Land
| 1 | COM 1 | Converted: Commercial | 0.2293 | 9990.00 | 0.00 | 0.00 | 1.00 | $72,430 | $0 |
Roll Value History
| 2026 | N/A | N/A | N/A | N/A | N/A |
| 2025 | $596,460 | $109,900 | $0 | $706,360 | $706,360 |
| 2024 | $397,300 | $109,900 | $0 | $507,200 | $507,200 |
| 2023 | $245,800 | $72,430 | $0 | $318,230 | $318,230 |
| 2022 | $180,470 | $72,430 | $0 | $252,900 | $252,900 |
| 2021 | $163,000 | $89,900 | $0 | $252,900 | $0 |
| 2020 | $163,000 | $89,900 | $0 | $252,900 | $0 |
| 2019 | $163,000 | $89,900 | $0 | $252,900 | $0 |
| 2018 | $163,000 | $89,900 | $0 | $252,900 | $0 |
| 2017 | $155,800 | $89,900 | $0 | $245,700 | $0 |
| 2016 | $100,000 | $89,900 | $0 | $189,900 | $0 |
| 2015 | $100,000 | $89,900 | $0 | $189,900 | $0 |
| 2014 | $100,000 | $89,900 | $0 | $189,900 | $0 |
| 2013 | $100,000 | $89,900 | $0 | $189,900 | $0 |
| 2012 | $0 | $0 | $0 | $0 | $0 |
| 2011 | $0 | $0 | $0 | $0 | $0 |
| 2010 | $0 | $0 | $0 | $0 | $0 |
| 2009 | $0 | $0 | $0 | $0 | $0 |
| 2008 | $0 | $0 | $0 | $0 | $0 |
| 2007 | $0 | $0 | $0 | $0 | $0 |
Deed and Sales History
| 1 | 07/06/2022 | SWD | STATUTORY WARRANTY DEED | W W GOSPEL MEETING ROOM TRUST | NICOARA JADON EUGENE & KATELYN ROSE | | | $350,000.00 | 144257 | 2022-05700 |
| 2 | 01/01/1941 | QCD | QUIT CLAIM DEED | | | | | $0.00 | 0 | 2080-261489 |
Payout Agreement
| No payout information available.. |