Property
Account |
| Property ID: | 25386 | Abbreviated Legal Description: | ROBERTS TAX 1 BLK 1 |
| Parcel Number: | 360729870101 | Agent Code: | |
| Type: | Real | | |
| Tax Area: | 1 - OL-140-F | Land Use Code | 53 |
| Open Space: | N | DFL | N |
| Historic Property: | N | Remodel Property: | N |
| Multi-Family Redevelopment: | N | | |
| Township: | 7 | Section: | 29 |
| Range: | 36 |
Location |
| Address: | 217 E ALDER ST WA 99362 | Mapsco: | |
| Neighborhood: | WW Downtown Core Area #2 | Map ID: | |
| Neighborhood CD: | 5342 |
Owner |
| Name: | LOOK LIKE GIANTS LLC | Owner ID: | 70647 |
| Mailing Address: | PO BOX 52865 BELLEVUE, WA 98015 | % Ownership: | 100.0000000000% |
| | | Exemptions: | |
Taxes and Assessment Details
Property Tax Information as of
02/21/2026
Click on "Statement Details" to expand or collapse a tax statement.
* Please enter a valid date ** Please enter a valid date *
Statement Details |
| | TOTAL: | $0.00 | $0.00 | $0.00 | $0.00 | $0.00 | $0.00 |
|
| | $0.00 | $0.00 | $0.00 | $0.00 | $0.00 | $0.00 |
Values
| (+) Improvement Homesite Value: | + | $0 | |
| (+) Improvement Non-Homesite Value: | + | $835,400 | |
| (+) Land Homesite Value: | + | $0 | |
| (+) Land Non-Homesite Value: | + | $96,400 | |
| (+) Curr Use (HS): | + | $0 | $0 |
| (+) Curr Use (NHS): | + | $0 | $0 |
| | | -------------------------- | |
| (=) Market Value: | = | $931,800 | |
| (–) Productivity Loss: | – | $0 | |
| | | -------------------------- | |
| (=) Subtotal: | = | $931,800 | |
| (+) Senior Appraised Value: | + | $0 | |
| (+) Non-Senior Appraised Value: | + | $931,800 | |
| | | -------------------------- | |
| (=) Total Appraised Value: | = | $931,800 | |
| (–) Senior Exemption Loss: | – | $0 | |
| (–) Exemption Loss: | – | $0 | |
| | | -------------------------- | |
| (=) Taxable Value: | = | $931,800 | |
Taxing Jurisdiction
| Owner: | LOOK LIKE GIANTS LLC | | |
| % Ownership: | 100.0000000000% | | |
| Total Value: | $931,800 | | |
| Tax Area: | 1 - OL-140-F |
| CERFD | CURRENT EXPENSE REFUND 010 | 0.0000000000 | $931,800 | $931,800 | $0.00 | | |
| CURREXP | CURRENT EXPENSE 010 | 1.0175366760 | $931,800 | $931,800 | $948.14 | | |
| HUMNSERV | HUMAN SERVICES 119 | 0.0250000000 | $931,800 | $931,800 | $23.30 | | |
| SLDREL | SOLDIERS RELIEF 121 | 0.0155990005 | $931,800 | $931,800 | $14.54 | | |
| EMERGSER | EMS 147 | 0.3792580840 | $931,800 | $931,800 | $353.39 | | |
| EMSRFD | EMS REFUND 147 | 0.0000000000 | $931,800 | $931,800 | $0.00 | | |
| PORTRFD | PORT REFUND 640 | 0.0000000000 | $931,800 | $931,800 | $0.00 | | |
| PORTWWGEN | PORT OF WW 640 | 0.2460186015 | $931,800 | $931,800 | $229.24 | | |
| SD140BOND | SD #140 BOND 764 | 0.8342371393 | $931,800 | $931,800 | $777.34 | | |
| SD140GEN | SD #140 GENERAL 760 | 2.0646500647 | $931,800 | $931,800 | $1,923.84 | | |
| ST2 | STATE SCHOOL PART 2 600 | 0.8131451643 | $931,800 | $931,800 | $757.69 | | |
| STATESCHL | STATE SCHOOL 600 | 1.5158548041 | $931,800 | $931,800 | $1,412.47 | | |
| STREFUND | STATE REFUND LEVY 603 | 0.0000000000 | $931,800 | $931,800 | $0.00 | | |
| CWWBOND | C OF WW BOND 643 | 0.2760494372 | $931,800 | $931,800 | $257.22 | | |
| CWWGEN | CITY OF WW 631 | 1.6100204973 | $931,800 | $931,800 | $1,500.22 | | |
| CWWRFD | CITY OF WALLA WALLA REFUND 631 | 0.0000000000 | $931,800 | $931,800 | $0.00 | | |
| | Total Tax Rate: | 8.7973694689 | | | | | |
| | | | | Taxes w/Current Exemptions: | $8,197.39 | | |
| | | | | Taxes w/o Exemptions: | $8,197.39 | | |
Improvement / Building
| Improvement #1: | COMMERCIAL | State Code: | 53 | 7576.0 sqft | Value: | $835,400 |
| | Type | Description | Class CD | Sub Class CD | Year Built | Area |
| | MA | Main Area | D | * | 1920 | 7576.0 |
| | SI1 | SITE IMPROVEMENT | D | * | 1920 | 9.0 |
Sketch
Property Image
Land
| 1 | COM 1 | Converted: Commercial | 0.2011 | 8760.00 | 0.00 | 0.00 | 1.00 | $96,400 | $0 |
Roll Value History
| 2026 | N/A | N/A | N/A | N/A | N/A |
| 2025 | $1,160,200 | $113,900 | $0 | $1,274,100 | $1,274,100 |
| 2024 | $1,160,200 | $113,900 | $0 | $1,274,100 | $1,274,100 |
| 2023 | $835,400 | $96,400 | $0 | $931,800 | $931,800 |
| 2022 | $835,400 | $96,400 | $0 | $931,800 | $931,800 |
| 2021 | $827,800 | $96,400 | $0 | $924,200 | $924,200 |
| 2020 | $827,800 | $96,400 | $0 | $924,200 | $0 |
| 2019 | $827,800 | $96,400 | $0 | $924,200 | $0 |
| 2018 | $827,800 | $96,400 | $0 | $924,200 | $0 |
| 2017 | $827,800 | $96,360 | $0 | $924,160 | $0 |
| 2016 | $827,800 | $96,360 | $0 | $924,160 | $0 |
| 2015 | $827,800 | $87,600 | $0 | $915,400 | $0 |
| 2014 | $827,800 | $87,600 | $0 | $915,400 | $0 |
| 2013 | $827,800 | $87,600 | $0 | $915,400 | $0 |
| 2012 | $0 | $0 | $0 | $0 | $0 |
| 2011 | $0 | $0 | $0 | $0 | $0 |
| 2010 | $0 | $0 | $0 | $0 | $0 |
| 2009 | $0 | $0 | $0 | $0 | $0 |
| 2008 | $0 | $0 | $0 | $0 | $0 |
| 2007 | $0 | $0 | $0 | $0 | $0 |
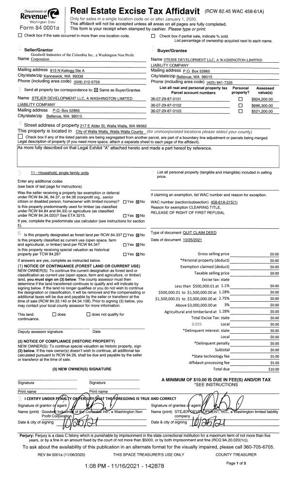
Deed and Sales History
| 1 | 11/16/2021 | SWD | STATUTORY WARRANTY DEED | GOODWILL INDUSTRIES OF | LOOK LIKE GIANTS LLC | | 3-PARCELS | $3,125,000.00 | 142879 | 2021-13642 |
|   | |
| 2 | 11/16/2021 | QCD | QUIT CLAIM DEED | STEJER DEVELOPMENT LLC | GOODWILL INDUSTRIES OF | | 3-PARCELS | $0.00 | 142878 | 2021-13641 |
| 3 | 11/16/2021 | QCD | QUIT CLAIM DEED | STEJER DEVELOPMENT LLC | GOODWILL INDUSTRIES OF | | | | 142878 | 2021-13641 |
| 4 | 06/13/1979 | WARRANTY D | WARRANTY DEED | | | | | $25,000.00 | 0 | 1067-905496 |
Payout Agreement
| No payout information available.. |