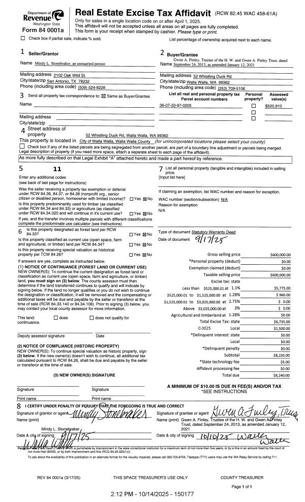
Property
Account |
| Property ID: | 25354 | Abbreviated Legal Description: | TRIPLE CREEK MEADOWS PHASE 1 LOT 5 BLOCK 2 |
| Parcel Number: | 360733970205 | Agent Code: | |
| Type: | Real | | |
| Tax Area: | 5 - OL-140 | Land Use Code | 11 |
| Open Space: | N | DFL | N |
| Historic Property: | N | Remodel Property: | N |
| Multi-Family Redevelopment: | N | | |
| Township: | 7 | Section: | 33 |
| Range: | 36 |
Location |
| Address: | 52 WHISTLING DUCK RD WA 99362 | Mapsco: | |
| Neighborhood: | G Res Rural/City Inf | Map ID: | |
| Neighborhood CD: | 614012 |
Owner |
| Name: | STONEBRAKER MINDY L | Owner ID: | 47772 |
| Mailing Address: | 52 WHISTLING DUCK RD WALLA WALLA, WA 99362 | % Ownership: | 100.0000000000% |
| | | Exemptions: | |
Taxes and Assessment Details
Property Tax Information as of
02/21/2026
Click on "Statement Details" to expand or collapse a tax statement.
* Please enter a valid date ** Please enter a valid date *
Statement Details |
| | TOTAL: | $0.00 | $0.00 | $0.00 | $0.00 | $0.00 | $0.00 |
|
| | $0.00 | $0.00 | $0.00 | $0.00 | $0.00 | $0.00 |
Values
| (+) Improvement Homesite Value: | + | $0 | |
| (+) Improvement Non-Homesite Value: | + | $420,910 | |
| (+) Land Homesite Value: | + | $0 | |
| (+) Land Non-Homesite Value: | + | $100,000 | |
| (+) Curr Use (HS): | + | $0 | $0 |
| (+) Curr Use (NHS): | + | $0 | $0 |
| | | -------------------------- | |
| (=) Market Value: | = | $520,910 | |
| (–) Productivity Loss: | – | $0 | |
| | | -------------------------- | |
| (=) Subtotal: | = | $520,910 | |
| (+) Senior Appraised Value: | + | $0 | |
| (+) Non-Senior Appraised Value: | + | $520,910 | |
| | | -------------------------- | |
| (=) Total Appraised Value: | = | $520,910 | |
| (–) Senior Exemption Loss: | – | $0 | |
| (–) Exemption Loss: | – | $0 | |
| | | -------------------------- | |
| (=) Taxable Value: | = | $520,910 | |
Taxing Jurisdiction
| Owner: | STONEBRAKER MINDY L | | |
| % Ownership: | 100.0000000000% | | |
| Total Value: | $520,910 | | |
| Tax Area: | 5 - OL-140 |
| CERFD | CURRENT EXPENSE REFUND 010 | 0.0000000000 | $520,910 | $520,910 | $0.00 | | |
| CURREXP | CURRENT EXPENSE 010 | 1.0175366760 | $520,910 | $520,910 | $530.05 | | |
| HUMNSERV | HUMAN SERVICES 119 | 0.0250000000 | $520,910 | $520,910 | $13.02 | | |
| SLDREL | SOLDIERS RELIEF 121 | 0.0155990005 | $520,910 | $520,910 | $8.13 | | |
| EMERGSER | EMS 147 | 0.3792580840 | $520,910 | $520,910 | $197.56 | | |
| EMSRFD | EMS REFUND 147 | 0.0000000000 | $520,910 | $520,910 | $0.00 | | |
| PORTRFD | PORT REFUND 640 | 0.0000000000 | $520,910 | $520,910 | $0.00 | | |
| PORTWWGEN | PORT OF WW 640 | 0.2460186015 | $520,910 | $520,910 | $128.15 | | |
| SD140BOND | SD #140 BOND 764 | 0.8342371393 | $520,910 | $520,910 | $434.56 | | |
| SD140GEN | SD #140 GENERAL 760 | 2.0646500647 | $520,910 | $520,910 | $1,075.50 | | |
| ST2 | STATE SCHOOL PART 2 600 | 0.8131451643 | $520,910 | $520,910 | $423.58 | | |
| STATESCHL | STATE SCHOOL 600 | 1.5158548041 | $520,910 | $520,910 | $789.62 | | |
| STREFUND | STATE REFUND LEVY 603 | 0.0000000000 | $520,910 | $520,910 | $0.00 | | |
| CWWBOND | C OF WW BOND 643 | 0.2760494372 | $520,910 | $520,910 | $143.80 | | |
| CWWGEN | CITY OF WW 631 | 1.6100204973 | $520,910 | $520,910 | $838.68 | | |
| CWWRFD | CITY OF WALLA WALLA REFUND 631 | 0.0000000000 | $520,910 | $520,910 | $0.00 | | |
| | Total Tax Rate: | 8.7973694689 | | | | | |
| | | | | Taxes w/Current Exemptions: | $4,582.65 | | |
| | | | | Taxes w/o Exemptions: | $4,582.65 | | |
Improvement / Building
| Improvement #1: | RESIDENTIAL | State Code: | 11 | 2070.0 sqft | Value: | $420,910 |
| Exterior Wall: | PLYWOOD | Heating/Cooling: | WARM & COOLED AIR | | Number of Bathrooms: | 2 | Number of Bedrooms: | 3 | | Plumbing: | 9 | Roof Covering: | COMP SHINGLE |
|
| | Type | Description | Class CD | Sub Class CD | Year Built | Area |
| | MA | Main Area | 1 | 35 | 2007 | 2070.0 |
| | SI1 | SITE IMPROVEMENT | 1 | 35 | 2007 | 4.0 |
| | ATG | Attached Garage | 1 | 35 | 2007 | 483.0 |
| | RPC | OPEN PORCH W/ROOF , CEILED | 1 | 35 | 2007 | 45.0 |
| | RPO | OPEN PORCH W/ROOF | 1 | 35 | 2007 | 170.0 |
| | GFP | GAS FIREPLACE | 1 | 35 | 2007 | 1.0 |
Sketch
Property Image
Land
| 1 | RES 1 | Converted: Residential | 0.2205 | 9605.00 | 0.00 | 0.00 | 1.00 | $100,000 | $0 |
Roll Value History
| 2026 | N/A | N/A | N/A | N/A | N/A |
| 2025 | $428,690 | $125,000 | $0 | $553,690 | $553,690 |
| 2024 | $420,910 | $100,000 | $0 | $520,910 | $520,910 |
| 2023 | $420,910 | $100,000 | $0 | $520,910 | $520,910 |
| 2022 | $366,010 | $85,000 | $0 | $451,010 | $451,010 |
| 2021 | $305,010 | $85,000 | $0 | $390,010 | $390,010 |
| 2020 | $210,350 | $85,000 | $0 | $295,350 | $295,350 |
| 2019 | $210,350 | $85,000 | $0 | $295,350 | $295,350 |
| 2018 | $244,360 | $50,000 | $0 | $294,360 | $294,360 |
| 2017 | $244,360 | $50,000 | $0 | $294,360 | $294,360 |
| 2016 | $212,490 | $50,000 | $0 | $262,490 | $262,490 |
| 2015 | $212,490 | $50,000 | $0 | $262,490 | $262,490 |
| 2014 | $206,300 | $50,000 | $0 | $256,300 | $256,300 |
| 2013 | $206,300 | $50,000 | $0 | $256,300 | $256,300 |
| 2012 | $178,000 | $55,000 | $0 | $0 | $0 |
| 2011 | $178,000 | $55,000 | $0 | $0 | $0 |
| 2010 | $178,000 | $55,000 | $0 | $0 | $0 |
| 2009 | $207,500 | $65,000 | $0 | $0 | $0 |
| 2008 | $207,500 | $65,000 | $0 | $0 | $0 |
| 2007 | $0 | $900 | $0 | $0 | $0 |
Deed and Sales History
| 1 | 10/14/2025 | SWD | STATUTORY WARRANTY DEED | STONEBRAKER MINDY L | GWEN A FINLEY TRUST | | | $600,000.00 | 150177 | 2025-06298 |
| 2 | 09/30/2009 | WARRANTY D | WARRANTY DEED | KELLOGG, KELLOGG, HERNANDEZ P. | STONEBRAKER, MINDY | | | $237,700.00 | 117410 | 2009-09765 |
| 3 | 09/30/2008 | QCD | QUIT CLAIM DEED | MAJERUS, DOUGLAS | KELLOGG, KELLOGG, HERNANDEZ P. | | | $0.00 | 115731 | 2008-10019 |
Payout Agreement
| No payout information available.. |