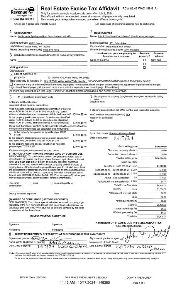
Property
Account |
| Property ID: | 25336 | Abbreviated Legal Description: | 27-7-36 PARCEL #54 |
| Parcel Number: | 360727240054 | Agent Code: | |
| Type: | Real | | |
| Tax Area: | 1 - OL-140-F | Land Use Code | 11 |
| Open Space: | N | DFL | N |
| Historic Property: | N | Remodel Property: | N |
| Multi-Family Redevelopment: | N | | |
| Township: | 7 | Section: | 27 |
| Range: | 36 |
Location |
| Address: | 931 SCHOOL AVE WA 99362 | Mapsco: | |
| Neighborhood: | G+ Res | Map ID: | |
| Neighborhood CD: | 414211 |
Owner |
| Name: | SPARLING GUILLERMO O | Owner ID: | 60812 |
| Mailing Address: | 931 SCHOOL AVE WALLA WALLA, WA 99362 | % Ownership: | 100.0000000000% |
| | | Exemptions: | |
Taxes and Assessment Details
Values
| (+) Improvement Homesite Value: | + | $0 | |
| (+) Improvement Non-Homesite Value: | + | $250,270 | |
| (+) Land Homesite Value: | + | $0 | |
| (+) Land Non-Homesite Value: | + | $101,530 | |
| (+) Curr Use (HS): | + | $0 | $0 |
| (+) Curr Use (NHS): | + | $0 | $0 |
| | | -------------------------- | |
| (=) Market Value: | = | $351,800 | |
| (–) Productivity Loss: | – | $0 | |
| | | -------------------------- | |
| (=) Subtotal: | = | $351,800 | |
| (+) Senior Appraised Value: | + | $0 | |
| (+) Non-Senior Appraised Value: | + | $351,800 | |
| | | -------------------------- | |
| (=) Total Appraised Value: | = | $351,800 | |
| (–) Senior Exemption Loss: | – | $0 | |
| (–) Exemption Loss: | – | $0 | |
| | | -------------------------- | |
| (=) Taxable Value: | = | $351,800 | |
Taxing Jurisdiction
| Owner: | SPARLING GUILLERMO O | | |
| % Ownership: | 100.0000000000% | | |
| Total Value: | $351,800 | | |
| Tax Area: | 1 - OL-140-F |
| CERFD | CURRENT EXPENSE REFUND 010 | 0.0000000000 | $351,800 | $351,800 | $0.00 | | |
| CURREXP | CURRENT EXPENSE 010 | 1.0175366760 | $351,800 | $351,800 | $357.97 | | |
| HUMNSERV | HUMAN SERVICES 119 | 0.0250000000 | $351,800 | $351,800 | $8.80 | | |
| SLDREL | SOLDIERS RELIEF 121 | 0.0155990005 | $351,800 | $351,800 | $5.49 | | |
| EMERGSER | EMS 147 | 0.3792580840 | $351,800 | $351,800 | $133.42 | | |
| EMSRFD | EMS REFUND 147 | 0.0000000000 | $351,800 | $351,800 | $0.00 | | |
| PORTRFD | PORT REFUND 640 | 0.0000000000 | $351,800 | $351,800 | $0.00 | | |
| PORTWWGEN | PORT OF WW 640 | 0.2460186015 | $351,800 | $351,800 | $86.55 | | |
| SD140BOND | SD #140 BOND 764 | 0.8342371393 | $351,800 | $351,800 | $293.48 | | |
| SD140GEN | SD #140 GENERAL 760 | 2.0646500647 | $351,800 | $351,800 | $726.34 | | |
| ST2 | STATE SCHOOL PART 2 600 | 0.8131451643 | $351,800 | $351,800 | $286.06 | | |
| STATESCHL | STATE SCHOOL 600 | 1.5158548041 | $351,800 | $351,800 | $533.28 | | |
| STREFUND | STATE REFUND LEVY 603 | 0.0000000000 | $351,800 | $351,800 | $0.00 | | |
| CWWBOND | C OF WW BOND 643 | 0.2760494372 | $351,800 | $351,800 | $97.11 | | |
| CWWGEN | CITY OF WW 631 | 1.6100204973 | $351,800 | $351,800 | $566.41 | | |
| CWWRFD | CITY OF WALLA WALLA REFUND 631 | 0.0000000000 | $351,800 | $351,800 | $0.00 | | |
| | Total Tax Rate: | 8.7973694689 | | | | | |
| | | | | Taxes w/Current Exemptions: | $3,094.91 | | |
| | | | | Taxes w/o Exemptions: | $3,094.91 | | |
Improvement / Building
| Improvement #1: | RESIDENTIAL | State Code: | 11 | 1103.0 sqft | Value: | $250,270 |
| Exterior Wall: | SIDING | Heating/Cooling: | WARM & COOLED AIR | | Number of Bathrooms: | 2 | Number of Bedrooms: | 3 | | Plumbing: | 9 | Roof Covering: | COMP SHINGLE |
|
| | Type | Description | Class CD | Sub Class CD | Year Built | Area |
| | MA | Main Area | 1 | 30 | 1948 | 1103.0 |
| | SI1 | SITE IMPROVEMENT | 1 | 30 | 0 | 2.5 |
| | BASE | BASEMENT | 1 | 30 | 1948 | 1103.0 |
| | BPF | BASEMENT -PARTITIONED FINISH | 1 | 30 | 1948 | 1103.0 |
| | OSP | Open | 1 | 30 | 1948 | 35.0 |
Sketch
Property Image
Land
| 1 | RES 1 | Converted: Residential | 0.2525 | 11000.00 | 0.00 | 0.00 | 1.00 | $101,530 | $0 |
Roll Value History
| 2026 | N/A | N/A | N/A | N/A | N/A |
| 2025 | $287,810 | $101,530 | $0 | $389,340 | $389,340 |
| 2024 | $250,270 | $101,530 | $0 | $351,800 | $351,800 |
| 2023 | $250,270 | $101,530 | $0 | $351,800 | $351,800 |
| 2022 | $283,410 | $57,530 | $0 | $340,940 | $340,940 |
| 2021 | $188,940 | $57,530 | $0 | $246,470 | $246,470 |
| 2020 | $134,960 | $57,530 | $0 | $192,490 | $192,490 |
| 2019 | $134,960 | $57,530 | $0 | $192,490 | $192,490 |
| 2018 | $134,960 | $57,530 | $0 | $192,490 | $192,490 |
| 2017 | $128,530 | $57,530 | $0 | $186,060 | $186,060 |
| 2016 | $138,060 | $48,000 | $0 | $186,060 | $186,060 |
| 2015 | $106,200 | $48,000 | $0 | $154,200 | $154,200 |
| 2014 | $106,200 | $48,000 | $0 | $154,200 | $154,200 |
| 2013 | $106,200 | $48,000 | $0 | $154,200 | $154,200 |
| 2012 | $106,200 | $48,000 | $0 | $0 | $0 |
| 2011 | $107,300 | $48,000 | $0 | $0 | $0 |
| 2010 | $107,300 | $48,000 | $0 | $0 | $0 |
| 2009 | $124,500 | $48,000 | $0 | $0 | $0 |
| 2008 | $124,500 | $48,000 | $0 | $0 | $0 |
| 2007 | $72,800 | $25,500 | $0 | $0 | $0 |
Deed and Sales History
| 1 | 10/17/2024 | SWD | STATUTORY WARRANTY DEED | SPARLING GUILLERMO O | DUVALL JOHN F & CHARY SHAYE G | | | $400,000.00 | 148390 | 2024-06050 |
| 2 | 04/21/2017 | WARRANTY D | WARRANTY DEED | SPARLING GUILLERMO O | SPARLING GUILLERMO O | | | $0.00 | 132316 | 2017-03330 |
| 3 | 10/08/2008 | WARRANTY D | WARRANTY DEED | VOTH, RICK | SPARLING, GUILLERMO O | | | $167,000.00 | 115777 | 2008-10285 |
| 4 | 10/06/2008 | QCD | QUIT CLAIM DEED | VOTH, RICK | VOTH, RICK | | | $0.00 | 115766 | 2008-10235 |
| 5 | 08/19/2004 | WARRANTY D | WARRANTY DEED | BOSLEY, JOHNNIE B & M K TRUST | VOTH, RICK | | | $480,000.00 | 105540 | 105540--- |
| 6 | 11/07/1980 | QCD | QUIT CLAIM DEED | | | | | $0.00 | 0 | 1258-008945 |
Payout Agreement
| No payout information available.. |