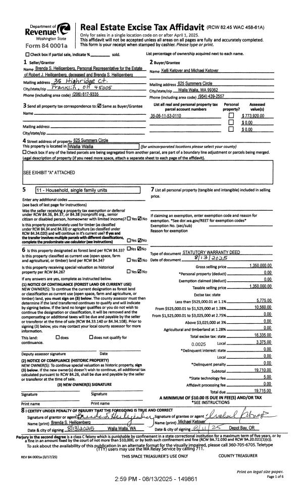
Property
Account |
| Property ID: | 25321 | Abbreviated Legal Description: | HILL TOP ACRES PHASE 2 LOT 10 BLOCK 1 |
| Parcel Number: | 350611530110 | Agent Code: | |
| Type: | Real | | |
| Tax Area: | 311 - 250-4 | Land Use Code | 11 |
| Open Space: | N | DFL | N |
| Historic Property: | N | Remodel Property: | N |
| Multi-Family Redevelopment: | N | | |
| Township: | 6 | Section: | 11 |
| Range: | 35 |
Location |
| Address: | 625 SUMMERS CIRCLE WA 99324 | Mapsco: | |
| Neighborhood: | G SFR Rural | Map ID: | |
| Neighborhood CD: | 214013 |
Owner |
| Name: | HEILIGENBERG ROBERT J & BRENDA S | Owner ID: | 46427 |
| Mailing Address: | 625 SUMMERS CIR WALLA WALLA, WA 99362 | % Ownership: | 100.0000000000% |
| | | Exemptions: | |
Taxes and Assessment Details
Values
| (+) Improvement Homesite Value: | + | $0 | |
| (+) Improvement Non-Homesite Value: | + | $647,790 | |
| (+) Land Homesite Value: | + | $0 | |
| (+) Land Non-Homesite Value: | + | $126,130 | |
| (+) Curr Use (HS): | + | $0 | $0 |
| (+) Curr Use (NHS): | + | $0 | $0 |
| | | -------------------------- | |
| (=) Market Value: | = | $773,920 | |
| (–) Productivity Loss: | – | $0 | |
| | | -------------------------- | |
| (=) Subtotal: | = | $773,920 | |
| (+) Senior Appraised Value: | + | $0 | |
| (+) Non-Senior Appraised Value: | + | $773,920 | |
| | | -------------------------- | |
| (=) Total Appraised Value: | = | $773,920 | |
| (–) Senior Exemption Loss: | – | $0 | |
| (–) Exemption Loss: | – | $0 | |
| | | -------------------------- | |
| (=) Taxable Value: | = | $773,920 | |
Taxing Jurisdiction
| Owner: | HEILIGENBERG ROBERT J & BRENDA S | | |
| % Ownership: | 100.0000000000% | | |
| Total Value: | $773,920 | | |
| Tax Area: | 311 - 250-4 |
| CERFD | CURRENT EXPENSE REFUND 010 | 0.0000000000 | $773,920 | $773,920 | $0.00 | | |
| CURREXP | CURRENT EXPENSE 010 | 1.0175366760 | $773,920 | $773,920 | $787.49 | | |
| HUMNSERV | HUMAN SERVICES 119 | 0.0250000000 | $773,920 | $773,920 | $19.35 | | |
| SLDREL | SOLDIERS RELIEF 121 | 0.0155990005 | $773,920 | $773,920 | $12.07 | | |
| EMERGSER | EMS 147 | 0.3792580840 | $773,920 | $773,920 | $293.52 | | |
| EMSRFD | EMS REFUND 147 | 0.0000000000 | $773,920 | $773,920 | $0.00 | | |
| FD4EXP | FD #4 EXPENSE 686 | 0.8836993059 | $773,920 | $773,920 | $683.91 | | |
| RLBRFD | RURAL LIBRARY REFUND 623 | 0.0000000000 | $773,920 | $773,920 | $0.00 | | |
| RURALLIB | RURAL LIBRARY 623 | 0.3710609029 | $773,920 | $773,920 | $287.17 | | |
| PORTRFD | PORT REFUND 640 | 0.0000000000 | $773,920 | $773,920 | $0.00 | | |
| PORTWWGEN | PORT OF WW 640 | 0.2460186015 | $773,920 | $773,920 | $190.40 | | |
| SD250BOND | SD #250 BOND 773 | 1.4560608159 | $773,920 | $773,920 | $1,126.87 | | |
| SD250GEN | SD #250 GENERAL 770 | 2.3880724087 | $773,920 | $773,920 | $1,848.18 | | |
| ST2 | STATE SCHOOL PART 2 600 | 0.8131451643 | $773,920 | $773,920 | $629.31 | | |
| STATESCHL | STATE SCHOOL 600 | 1.5158548041 | $773,920 | $773,920 | $1,173.15 | | |
| STREFUND | STATE REFUND LEVY 603 | 0.0000000000 | $773,920 | $773,920 | $0.00 | | |
| COROAD | COUNTY ROAD 115 | 1.6549953990 | $773,920 | $773,920 | $1,280.83 | | |
| CRPRD | COUNTY ROAD REFUND 115 | 0.0000000000 | $773,920 | $773,920 | $0.00 | | |
| | Total Tax Rate: | 10.7663011628 | | | | | |
| | | | | Taxes w/Current Exemptions: | $8,332.25 | | |
| | | | | Taxes w/o Exemptions: | $8,332.25 | | |
Improvement / Building
| Improvement #1: | RESIDENTIAL | State Code: | 11 | 2055.0 sqft | Value: | $647,790 |
| Exterior Wall: | SIDING | Heating/Cooling: | HEAT PUMP | | Number of Bathrooms: | 3 | Number of Bedrooms: | 4 | | Plumbing: | 19 | Roof Covering: | METAL ROOFING |
|
| | Type | Description | Class CD | Sub Class CD | Year Built | Area |
| | MA | Main Area | 11 | 50 | 2015 | 2055.0 |
| | SI1 | SITE IMPROVEMENT | 11 | 50 | 2015 | 5.0 |
| | BASE | BASEMENT | 11 | 50 | 2015 | 1863.0 |
| | BPF | BASEMENT -PARTITIONED FINISH | 11 | 50 | 2015 | 1315.0 |
| | GFP | GAS FIREPLACE | 11 | 50 | 2015 | 2.0 |
| | RPO | OPEN PORCH W/ROOF | 11 | 50 | 2015 | 56.0 |
| | RPC | OPEN PORCH W/ROOF , CEILED | 11 | 50 | 2015 | 143.0 |
| | WOD | Wood Deck | 11 | 50 | 2015 | 130.0 |
| | WOD | Wood Deck | 11 | 50 | 2015 | 144.0 |
| | RPO | OPEN PORCH W/ROOF | 11 | 50 | 2015 | 312.0 |
| | ATG | Attached Garage | 11 | 50 | 2015 | 864.0 |
| | BONU | BONUS ROOM W/FINISH | 11 | 50 | 2015 | 256.0 |
Sketch
Property Image
Land
| 1 | RES 1 | Converted: Residential | 2.1500 | 93654.00 | 0.00 | 0.00 | 1.00 | $126,130 | $0 |
Roll Value History
| 2026 | N/A | N/A | N/A | N/A | N/A |
| 2025 | $906,910 | $126,130 | $0 | $1,033,040 | $1,033,040 |
| 2024 | $647,790 | $126,130 | $0 | $773,920 | $773,920 |
| 2023 | $647,790 | $126,130 | $0 | $773,920 | $773,920 |
| 2022 | $647,790 | $126,130 | $0 | $773,920 | $773,920 |
| 2021 | $431,860 | $126,130 | $0 | $557,990 | $557,990 |
| 2020 | $388,170 | $90,000 | $0 | $478,170 | $478,170 |
| 2019 | $388,170 | $90,000 | $0 | $478,170 | $478,170 |
| 2018 | $388,170 | $90,000 | $0 | $478,170 | $478,170 |
| 2017 | $388,170 | $90,000 | $0 | $478,170 | $478,170 |
| 2016 | $388,170 | $90,000 | $0 | $478,170 | $478,170 |
| 2015 | $277,480 | $90,000 | $0 | $367,480 | $367,480 |
| 2014 | $0 | $90,000 | $0 | $90,000 | $90,000 |
| 2013 | $0 | $90,000 | $0 | $90,000 | $90,000 |
| 2012 | $0 | $135,000 | $0 | $0 | $0 |
| 2011 | $0 | $135,000 | $0 | $0 | $0 |
| 2010 | $0 | $155,000 | $0 | $0 | $0 |
| 2009 | $0 | $155,000 | $0 | $0 | $0 |
| 2008 | $0 | $8,300 | $0 | $0 | $0 |
| 2007 | $0 | $8,300 | $0 | $0 | $0 |
Deed and Sales History
| 1 | 08/13/2025 | SWD | STATUTORY WARRANTY DEED | HEILIGENBERG ROBERT J & BRENDA S | KETOVER KELLI & MICHAEL | | | $1,350,000.00 | 149861 | 2025-04816 |
| 2 | 09/30/2008 | WARRANTY D | WARRANTY DEED | GRAND VISTA ESTATE DEV LLC | HEILIGENBERG, ROBERT J & BREND | | | $169,000.00 | 115719 | 2008-09986 |
Payout Agreement
| No payout information available.. |