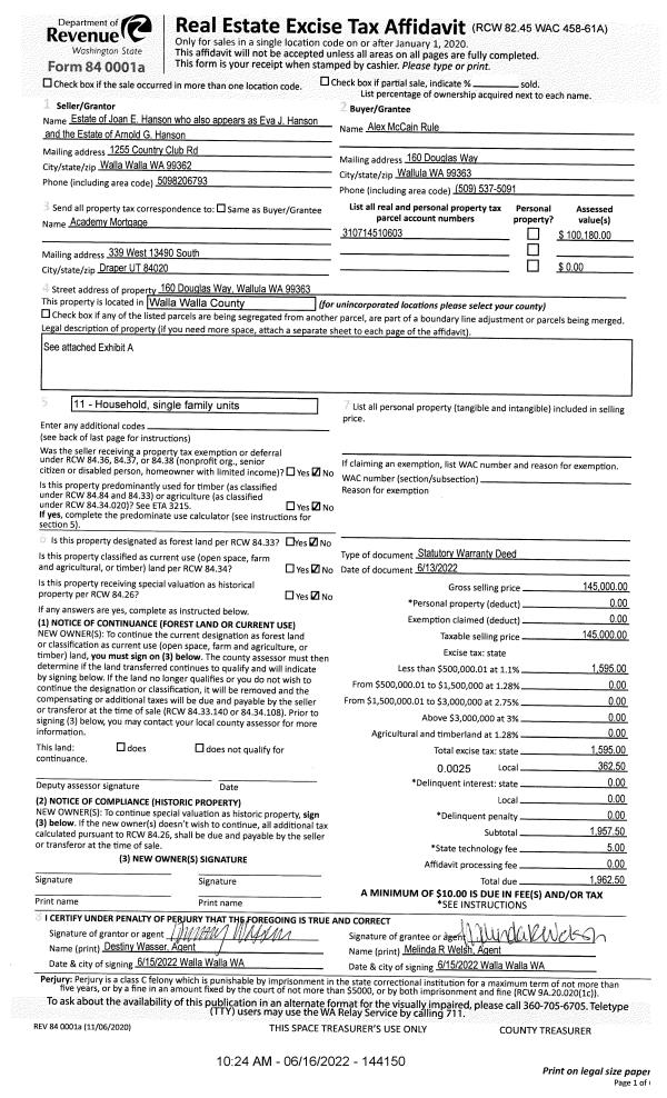
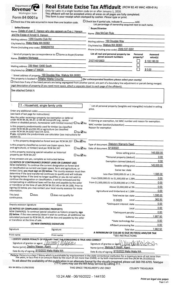
Property
Account |
| Property ID: | 25307 | Abbreviated Legal Description: | WALLULA TOWNSITE LOTS 3 & 4 BLK 6 LOT 5 BLK 6 |
| Parcel Number: | 310714510603 | Agent Code: | |
| Type: | Real | | |
| Tax Area: | 327 - 400-5-WI-C-M | Land Use Code | 11 |
| Open Space: | N | DFL | N |
| Historic Property: | N | Remodel Property: | N |
| Multi-Family Redevelopment: | N | | |
| Township: | 7 | Section: | 14 |
| Range: | 31 |
Location |
| Address: | 160 DOUGLAS WAY WA 99363 | Mapsco: | |
| Neighborhood: | Wallula A SFR | Map ID: | |
| Neighborhood CD: | 213811 |
Owner |
| Name: | RULE ALEX MCCAIN | Owner ID: | 71813 |
| Mailing Address: | 160 DOUGLAS WAY WALLULA, WA 99363 | % Ownership: | 100.0000000000% |
| | | Exemptions: | |
Taxes and Assessment Details
Values
| (+) Improvement Homesite Value: | + | $0 | |
| (+) Improvement Non-Homesite Value: | + | $114,050 | |
| (+) Land Homesite Value: | + | $0 | |
| (+) Land Non-Homesite Value: | + | $29,340 | |
| (+) Curr Use (HS): | + | $0 | $0 |
| (+) Curr Use (NHS): | + | $0 | $0 |
| | | -------------------------- | |
| (=) Market Value: | = | $143,390 | |
| (–) Productivity Loss: | – | $0 | |
| | | -------------------------- | |
| (=) Subtotal: | = | $143,390 | |
| (+) Senior Appraised Value: | + | $0 | |
| (+) Non-Senior Appraised Value: | + | $143,390 | |
| | | -------------------------- | |
| (=) Total Appraised Value: | = | $143,390 | |
| (–) Senior Exemption Loss: | – | $0 | |
| (–) Exemption Loss: | – | $0 | |
| | | -------------------------- | |
| (=) Taxable Value: | = | $143,390 | |
Taxing Jurisdiction
| Owner: | RULE ALEX MCCAIN | | |
| % Ownership: | 100.0000000000% | | |
| Total Value: | $143,390 | | |
| Tax Area: | 327 - 400-5-WI-C-M |
| CERFD | CURRENT EXPENSE REFUND 010 | 0.0000000000 | $143,390 | $143,390 | $0.00 | | |
| CURREXP | CURRENT EXPENSE 010 | 1.0175366760 | $143,390 | $143,390 | $145.90 | | |
| HUMNSERV | HUMAN SERVICES 119 | 0.0250000000 | $143,390 | $143,390 | $3.58 | | |
| SLDREL | SOLDIERS RELIEF 121 | 0.0155990005 | $143,390 | $143,390 | $2.24 | | |
| EMERGSER | EMS 147 | 0.3792580840 | $143,390 | $143,390 | $54.38 | | |
| EMSRFD | EMS REFUND 147 | 0.0000000000 | $143,390 | $143,390 | $0.00 | | |
| FD5EXP | FD #5 EXPENSE 689 | 1.2045331840 | $143,390 | $143,390 | $172.72 | | |
| RLBRFD | RURAL LIBRARY REFUND 623 | 0.0000000000 | $143,390 | $143,390 | $0.00 | | |
| RURALLIB | RURAL LIBRARY 623 | 0.3710609029 | $143,390 | $143,390 | $53.21 | | |
| PORTRFD | PORT REFUND 640 | 0.0000000000 | $143,390 | $143,390 | $0.00 | | |
| PORTWWGEN | PORT OF WW 640 | 0.2460186015 | $143,390 | $143,390 | $35.28 | | |
| SD400BOND | SD #400 BOND 793 | 0.0000000000 | $143,390 | $143,390 | $0.00 | | |
| SD400CAP | SD #400 CP 792 | 0.3443722657 | $143,390 | $143,390 | $49.38 | | |
| SD400GEN | SD #400 GENERAL 790 | 1.9278469916 | $143,390 | $143,390 | $276.43 | | |
| ST2 | STATE SCHOOL PART 2 600 | 0.8131451643 | $143,390 | $143,390 | $116.60 | | |
| STATESCHL | STATE SCHOOL 600 | 1.5158548041 | $143,390 | $143,390 | $217.36 | | |
| STREFUND | STATE REFUND LEVY 603 | 0.0000000000 | $143,390 | $143,390 | $0.00 | | |
| COROAD | COUNTY ROAD 115 | 1.6549953990 | $143,390 | $143,390 | $237.31 | | |
| CRPRD | COUNTY ROAD REFUND 115 | 0.0000000000 | $143,390 | $143,390 | $0.00 | | |
| | Total Tax Rate: | 9.5152210736 | | | | | |
| | | | | Taxes w/Current Exemptions: | $1,364.39 | | |
| | | | | Taxes w/o Exemptions: | $1,364.39 | | |
Improvement / Building
| Improvement #1: | RESIDENTIAL | State Code: | 11 | 903.0 sqft | Value: | $114,050 |
| Exterior Wall: | VINYL | Heating/Cooling: | FORCED AIR | | Number of Bathrooms: | 1 | Number of Bedrooms: | 2 | | Plumbing: | 6 | Roof Covering: | COMP SHINGLE |
|
| | Type | Description | Class CD | Sub Class CD | Year Built | Area |
| | MA | Main Area | 1 | 20 | 1965 | 903.0 |
| | SI1 | SITE IMPROVEMENT | 1 | 20 | 1965 | 1.0 |
| | WOD | Wood Deck | 1 | 20 | 1965 | 348.0 |
| | DTG | Detached Garage | 1 | 20 | 1965 | 576.0 |
Sketch
Property Image
Land
| 1 | RES 1 | Converted: Residential | 0.3254 | 14175.00 | 0.00 | 0.00 | 1.00 | $29,340 | $0 |
Roll Value History
| 2026 | N/A | N/A | N/A | N/A | N/A |
| 2025 | $125,460 | $29,340 | $0 | $154,800 | $154,800 |
| 2024 | $125,460 | $29,340 | $0 | $154,800 | $154,800 |
| 2023 | $114,050 | $29,340 | $0 | $143,390 | $143,390 |
| 2022 | $99,180 | $29,340 | $0 | $128,520 | $128,520 |
| 2021 | $70,840 | $29,340 | $0 | $100,180 | $100,180 |
| 2020 | $68,000 | $9,800 | $0 | $77,800 | $77,800 |
| 2019 | $68,000 | $9,800 | $0 | $77,800 | $77,800 |
| 2018 | $61,820 | $9,800 | $0 | $71,620 | $71,620 |
| 2017 | $61,820 | $9,800 | $0 | $71,620 | $71,620 |
| 2016 | $61,820 | $9,800 | $0 | $71,620 | $71,620 |
| 2015 | $56,200 | $9,800 | $0 | $66,000 | $66,000 |
| 2014 | $56,200 | $9,800 | $0 | $66,000 | $66,000 |
| 2013 | $56,200 | $9,800 | $0 | $66,000 | $66,000 |
| 2012 | $56,200 | $9,800 | $0 | $0 | $0 |
| 2011 | $45,200 | $9,800 | $0 | $0 | $0 |
| 2010 | $45,200 | $9,800 | $0 | $0 | $0 |
| 2009 | $41,800 | $8,200 | $0 | $0 | $0 |
| 2008 | $41,800 | $8,200 | $0 | $0 | $0 |
| 2007 | $41,800 | $8,200 | $0 | $0 | $0 |
Deed and Sales History
| 1 | 06/16/2022 | SWD | STATUTORY WARRANTY DEED | HANSON ARNOLD G ESTATE OF | RULE ALEX MCCAIN | | | $145,000.00 | 144150 | 2022-05101 |
| 2 | 02/19/1974 | WARRANTY D | WARRANTY DEED | | | | | | 0 | 1305-34974 |
Payout Agreement
| No payout information available.. |