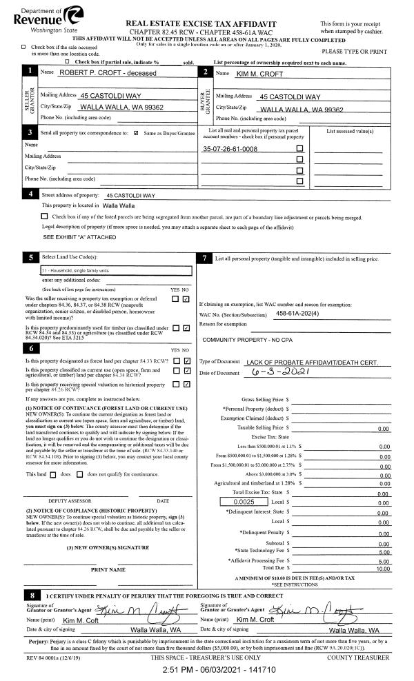
Property
Account |
| Property ID: | 25300 | Abbreviated Legal Description: | NEEDLE'S ADDITION LOT 8 |
| Parcel Number: | 350726610008 | Agent Code: | |
| Type: | Real | | |
| Tax Area: | 311 - 250-4 | Land Use Code | 11 |
| Open Space: | N | DFL | N |
| Historic Property: | N | Remodel Property: | N |
| Multi-Family Redevelopment: | N | | |
| Township: | 7 | Section: | 26 |
| Range: | 35 |
Location |
| Address: | 45 CASTOLDI WAY WA 99324 | Mapsco: | |
| Neighborhood: | MH A Rural/City Infl | Map ID: | |
| Neighborhood CD: | 313062 |
Owner |
| Name: | LANGLEY JASON | Owner ID: | 69537 |
| Mailing Address: | NICOLE RAVER 45 CASTOLDI WAY WALLA WALLA, WA 99362 | % Ownership: | 100.0000000000% |
| | | Exemptions: | |
Taxes and Assessment Details
Property Tax Information as of
02/21/2026
Click on "Statement Details" to expand or collapse a tax statement.
* Please enter a valid date ** Please enter a valid date *
Statement Details |
| | TOTAL: | $0.00 | $0.00 | $0.00 | $0.00 | $0.00 | $0.00 |
|
| | $0.00 | $0.00 | $0.00 | $0.00 | $0.00 | $0.00 |
Values
| (+) Improvement Homesite Value: | + | $0 | |
| (+) Improvement Non-Homesite Value: | + | $286,160 | |
| (+) Land Homesite Value: | + | $0 | |
| (+) Land Non-Homesite Value: | + | $130,000 | |
| (+) Curr Use (HS): | + | $0 | $0 |
| (+) Curr Use (NHS): | + | $0 | $0 |
| | | -------------------------- | |
| (=) Market Value: | = | $416,160 | |
| (–) Productivity Loss: | – | $0 | |
| | | -------------------------- | |
| (=) Subtotal: | = | $416,160 | |
| (+) Senior Appraised Value: | + | $0 | |
| (+) Non-Senior Appraised Value: | + | $416,160 | |
| | | -------------------------- | |
| (=) Total Appraised Value: | = | $416,160 | |
| (–) Senior Exemption Loss: | – | $0 | |
| (–) Exemption Loss: | – | $0 | |
| | | -------------------------- | |
| (=) Taxable Value: | = | $416,160 | |
Taxing Jurisdiction
| Owner: | LANGLEY JASON | | |
| % Ownership: | 100.0000000000% | | |
| Total Value: | $416,160 | | |
| Tax Area: | 311 - 250-4 |
| CERFD | CURRENT EXPENSE REFUND 010 | 0.0000000000 | $416,160 | $416,160 | $0.00 | | |
| CURREXP | CURRENT EXPENSE 010 | 1.0175366760 | $416,160 | $416,160 | $423.46 | | |
| HUMNSERV | HUMAN SERVICES 119 | 0.0250000000 | $416,160 | $416,160 | $10.40 | | |
| SLDREL | SOLDIERS RELIEF 121 | 0.0155990005 | $416,160 | $416,160 | $6.49 | | |
| EMERGSER | EMS 147 | 0.3792580840 | $416,160 | $416,160 | $157.83 | | |
| EMSRFD | EMS REFUND 147 | 0.0000000000 | $416,160 | $416,160 | $0.00 | | |
| FD4EXP | FD #4 EXPENSE 686 | 0.8836993059 | $416,160 | $416,160 | $367.76 | | |
| RLBRFD | RURAL LIBRARY REFUND 623 | 0.0000000000 | $416,160 | $416,160 | $0.00 | | |
| RURALLIB | RURAL LIBRARY 623 | 0.3710609029 | $416,160 | $416,160 | $154.42 | | |
| PORTRFD | PORT REFUND 640 | 0.0000000000 | $416,160 | $416,160 | $0.00 | | |
| PORTWWGEN | PORT OF WW 640 | 0.2460186015 | $416,160 | $416,160 | $102.38 | | |
| SD250BOND | SD #250 BOND 773 | 1.4560608159 | $416,160 | $416,160 | $605.95 | | |
| SD250GEN | SD #250 GENERAL 770 | 2.3880724087 | $416,160 | $416,160 | $993.82 | | |
| ST2 | STATE SCHOOL PART 2 600 | 0.8131451643 | $416,160 | $416,160 | $338.40 | | |
| STATESCHL | STATE SCHOOL 600 | 1.5158548041 | $416,160 | $416,160 | $630.84 | | |
| STREFUND | STATE REFUND LEVY 603 | 0.0000000000 | $416,160 | $416,160 | $0.00 | | |
| COROAD | COUNTY ROAD 115 | 1.6549953990 | $416,160 | $416,160 | $688.74 | | |
| CRPRD | COUNTY ROAD REFUND 115 | 0.0000000000 | $416,160 | $416,160 | $0.00 | | |
| | Total Tax Rate: | 10.7663011628 | | | | | |
| | | | | Taxes w/Current Exemptions: | $4,480.49 | | |
| | | | | Taxes w/o Exemptions: | $4,480.49 | | |
Improvement / Building
| Improvement #1: | MANUFACTURED HOME | State Code: | 11 | 2682.0 sqft | Value: | $286,160 |
| Exterior Wall: | LAP SIDING | Heating/Cooling: | HEAT PUMP | | Number of Bathrooms: | 2 | Number of Bedrooms: | 4 | | Plumbing: | 10 | Roof Covering: | COMP SHINGLE |
|
| | Type | Description | Class CD | Sub Class CD | Year Built | Area |
| | MOBHOME | MANUFACTURD HOMES | 1 | 50 | 2005 | 2682.0 |
| | GFP | GAS FIREPLACE | 1 | 50 | 0 | 1.0 |
| | MI1 | MH SET-UP COSTS | 1 | 50 | 0 | 2.0 |
| | ATG | Attached Garage | 1 | 50 | 2005 | 648.0 |
Sketch
Property Image
Land
| 1 | RES 1 | Converted: Residential | 1.0000 | 43581.00 | 0.00 | 0.00 | 1.00 | $130,000 | $0 |
Roll Value History
| 2026 | N/A | N/A | N/A | N/A | N/A |
| 2025 | $409,200 | $130,000 | $0 | $539,200 | $539,200 |
| 2024 | $372,000 | $130,000 | $0 | $502,000 | $502,000 |
| 2023 | $286,160 | $130,000 | $0 | $416,160 | $416,160 |
| 2022 | $260,140 | $130,000 | $0 | $390,140 | $390,140 |
| 2021 | $288,510 | $75,000 | $0 | $363,510 | $363,510 |
| 2020 | $262,280 | $75,000 | $0 | $337,280 | $337,280 |
| 2019 | $262,280 | $75,000 | $0 | $337,280 | $337,280 |
| 2018 | $249,790 | $75,000 | $0 | $324,790 | $324,790 |
| 2017 | $208,160 | $75,000 | $0 | $283,160 | $283,160 |
| 2016 | $208,160 | $75,000 | $0 | $283,160 | $283,160 |
| 2015 | $206,700 | $75,000 | $0 | $281,700 | $281,700 |
| 2014 | $206,700 | $75,000 | $0 | $281,700 | $281,700 |
| 2013 | $206,700 | $75,000 | $0 | $281,700 | $281,700 |
| 2012 | $193,300 | $75,000 | $0 | $0 | $0 |
| 2011 | $193,300 | $75,000 | $0 | $0 | $0 |
| 2010 | $161,000 | $75,000 | $0 | $0 | $0 |
| 2009 | $197,200 | $65,000 | $0 | $0 | $0 |
| 2008 | $173,500 | $45,000 | $0 | $0 | $0 |
| 2007 | $173,500 | $45,000 | $0 | $0 | $0 |
Deed and Sales History
| 1 | 06/03/2021 | SWD | STATUTORY WARRANTY DEED | CROFT KIM M | LANGLEY JASON | | | $410,000.00 | 141711 | 2021-06762 |
| 2 | 06/03/2021 | LOPA | LACK OF PROBATE AFFIDAVIT | CROFT ROBERT P & KIM M | CROFT KIM M | | | $0.00 | 141710 | 2021-06761 |
| 3 | 04/01/2011 | WARRANTY D | WARRANTY DEED | GUERRA, EDGAR R & DEBBIE L | METRO NORTHWEST LP | | | $0.00 | 119965 | -119965 |
| 4 | 07/02/2010 | WARRANTY D | WARRANTY DEED | GUERRA, EDGAR R & DEBBIE L | CROFT, ROBERT P & KIM | | | $285,000.00 | 118705 | 2010-05146 |
| 5 | 09/09/1996 | WARRANTY D | WARRANTY DEED | | | | | $108,000.00 | 86840 | 2449-609136 |
Payout Agreement
| No payout information available.. |