Property
Account |
| Property ID: | 25295 | Abbreviated Legal Description: | REEVES SUB OF BLA ORCH TRACT E LOT 3 BLK 21 LESS N 50' |
| Parcel Number: | 350726552119 | Agent Code: | |
| Type: | Real | | |
| Tax Area: | 311 - 250-4 | Land Use Code | 11 |
| Open Space: | N | DFL | N |
| Historic Property: | N | Remodel Property: | N |
| Multi-Family Redevelopment: | N | | |
| Township: | 7 | Section: | 26 |
| Range: | 35 |
Location |
| Address: | 671 NW EVANS AVE WA 99324 | Mapsco: | |
| Neighborhood: | A SFR Rural/City Infl | Map ID: | |
| Neighborhood CD: | 313012 |
Owner |
| Name: | HILDRETH SARA | Owner ID: | 69445 |
| Mailing Address: | 671 NW EVANS AVE WALLA WALLA, WA 99362 | % Ownership: | 100.0000000000% |
| | | Exemptions: | |
Taxes and Assessment Details
Values
| (+) Improvement Homesite Value: | + | $0 | |
| (+) Improvement Non-Homesite Value: | + | $260,430 | |
| (+) Land Homesite Value: | + | $0 | |
| (+) Land Non-Homesite Value: | + | $89,870 | |
| (+) Curr Use (HS): | + | $0 | $0 |
| (+) Curr Use (NHS): | + | $0 | $0 |
| | | -------------------------- | |
| (=) Market Value: | = | $350,300 | |
| (–) Productivity Loss: | – | $0 | |
| | | -------------------------- | |
| (=) Subtotal: | = | $350,300 | |
| (+) Senior Appraised Value: | + | $0 | |
| (+) Non-Senior Appraised Value: | + | $350,300 | |
| | | -------------------------- | |
| (=) Total Appraised Value: | = | $350,300 | |
| (–) Senior Exemption Loss: | – | $0 | |
| (–) Exemption Loss: | – | $0 | |
| | | -------------------------- | |
| (=) Taxable Value: | = | $350,300 | |
Taxing Jurisdiction
| Owner: | HILDRETH SARA | | |
| % Ownership: | 100.0000000000% | | |
| Total Value: | $350,300 | | |
| Tax Area: | 311 - 250-4 |
| CERFD | CURRENT EXPENSE REFUND 010 | 0.0000000000 | $350,300 | $350,300 | $0.00 | | |
| CURREXP | CURRENT EXPENSE 010 | 1.0175366760 | $350,300 | $350,300 | $356.44 | | |
| HUMNSERV | HUMAN SERVICES 119 | 0.0250000000 | $350,300 | $350,300 | $8.76 | | |
| SLDREL | SOLDIERS RELIEF 121 | 0.0155990005 | $350,300 | $350,300 | $5.46 | | |
| EMERGSER | EMS 147 | 0.3792580840 | $350,300 | $350,300 | $132.85 | | |
| EMSRFD | EMS REFUND 147 | 0.0000000000 | $350,300 | $350,300 | $0.00 | | |
| FD4EXP | FD #4 EXPENSE 686 | 0.8836993059 | $350,300 | $350,300 | $309.56 | | |
| RLBRFD | RURAL LIBRARY REFUND 623 | 0.0000000000 | $350,300 | $350,300 | $0.00 | | |
| RURALLIB | RURAL LIBRARY 623 | 0.3710609029 | $350,300 | $350,300 | $129.98 | | |
| PORTRFD | PORT REFUND 640 | 0.0000000000 | $350,300 | $350,300 | $0.00 | | |
| PORTWWGEN | PORT OF WW 640 | 0.2460186015 | $350,300 | $350,300 | $86.18 | | |
| SD250BOND | SD #250 BOND 773 | 1.4560608159 | $350,300 | $350,300 | $510.06 | | |
| SD250GEN | SD #250 GENERAL 770 | 2.3880724087 | $350,300 | $350,300 | $836.54 | | |
| ST2 | STATE SCHOOL PART 2 600 | 0.8131451643 | $350,300 | $350,300 | $284.84 | | |
| STATESCHL | STATE SCHOOL 600 | 1.5158548041 | $350,300 | $350,300 | $531.00 | | |
| STREFUND | STATE REFUND LEVY 603 | 0.0000000000 | $350,300 | $350,300 | $0.00 | | |
| COROAD | COUNTY ROAD 115 | 1.6549953990 | $350,300 | $350,300 | $579.74 | | |
| CRPRD | COUNTY ROAD REFUND 115 | 0.0000000000 | $350,300 | $350,300 | $0.00 | | |
| | Total Tax Rate: | 10.7663011628 | | | | | |
| | | | | Taxes w/Current Exemptions: | $3,771.41 | | |
| | | | | Taxes w/o Exemptions: | $3,771.41 | | |
Improvement / Building
| Improvement #1: | RESIDENTIAL | State Code: | 11 | 1077.0 sqft | Value: | $260,430 |
| Exterior Wall: | VINYL | Heating/Cooling: | FORCED AIR | | Number of Bathrooms: | 1 | Number of Bedrooms: | 3 | | Plumbing: | 6 | Roof Covering: | COMP SHINGLE |
|
| | Type | Description | Class CD | Sub Class CD | Year Built | Area |
| | MA | Main Area | 1 | 30 | 1921 | 1077.0 |
| | POL2 | POLE BUILDING-CONCRETE | 1 | 30 | 2008 | 288.0 |
| | SI1 | SITE IMPROVEMENT | 1 | 30 | 0 | 3.5 |
| | BASE | BASEMENT | 1 | 30 | 1921 | 540.0 |
| | LEAN TO | LEAN TO | 1 | 25 | 1921 | 200.0 |
| | UTST | Utility Storage Shed | 1 | 25 | 1921 | 140.0 |
| | RPS | PORCH W/STEPS,ROOF | 1 | 30 | 1921 | 15.0 |
| | DTG | Detached Garage | 1 | 35 | 1921 | 660.0 |
Sketch
Property Image
Land
| 1 | RES 1 | Converted: Residential | 0.5119 | 22300.00 | 0.00 | 0.00 | 1.00 | $89,870 | $0 |
Roll Value History
| 2026 | N/A | N/A | N/A | N/A | N/A |
| 2025 | $312,510 | $89,870 | $0 | $402,380 | $402,380 |
| 2024 | $260,430 | $89,870 | $0 | $350,300 | $350,300 |
| 2023 | $260,430 | $89,870 | $0 | $350,300 | $350,300 |
| 2022 | $236,750 | $89,870 | $0 | $326,620 | $326,620 |
| 2021 | $182,570 | $57,600 | $0 | $240,170 | $240,170 |
| 2020 | $140,440 | $57,600 | $0 | $198,040 | $198,040 |
| 2019 | $140,440 | $57,600 | $0 | $198,040 | $198,040 |
| 2018 | $127,670 | $57,600 | $0 | $185,270 | $185,270 |
| 2017 | $121,590 | $57,600 | $0 | $179,190 | $179,190 |
| 2016 | $115,800 | $57,600 | $0 | $173,400 | $173,400 |
| 2015 | $54,450 | $57,600 | $0 | $112,050 | $112,050 |
| 2014 | $36,300 | $57,600 | $0 | $93,900 | $93,900 |
| 2013 | $36,300 | $57,600 | $0 | $93,900 | $93,900 |
| 2012 | $36,300 | $57,600 | $0 | $0 | $0 |
| 2011 | $36,300 | $57,600 | $0 | $0 | $0 |
| 2010 | $36,300 | $57,600 | $0 | $0 | $0 |
| 2009 | $68,600 | $35,700 | $0 | $0 | $0 |
| 2008 | $47,700 | $35,700 | $0 | $0 | $0 |
| 2007 | $47,700 | $35,700 | $0 | $0 | $0 |
Deed and Sales History
| 1 | 05/19/2021 | QCD | QUIT CLAIM DEED | HILDRETH BRYANT | HILDRETH SARA | | | | 141579 | 2021-06063 |
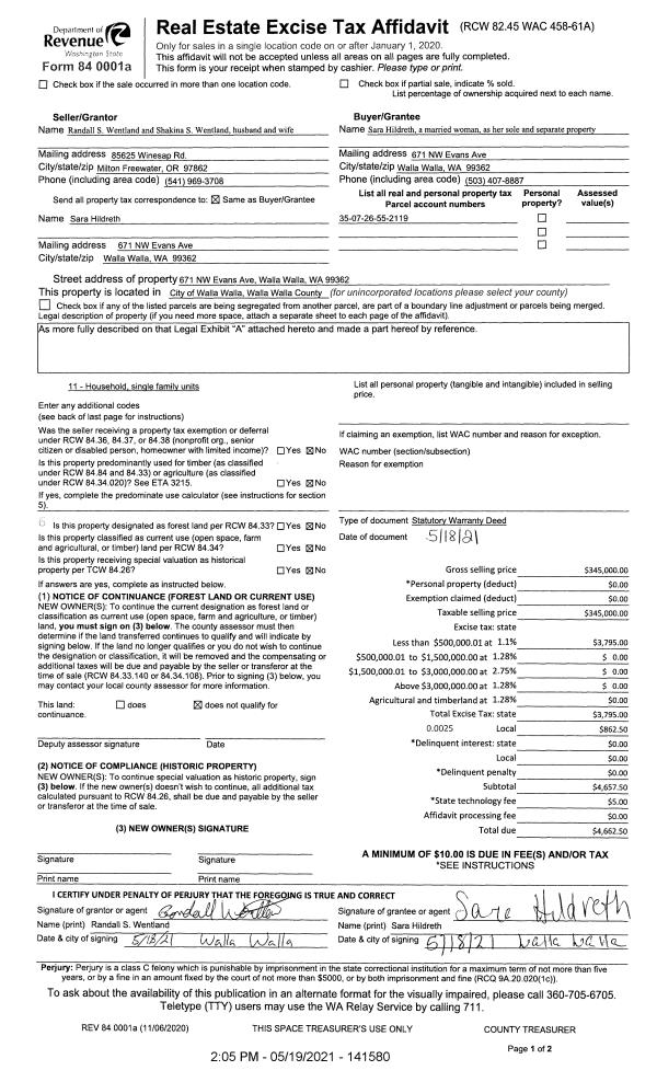
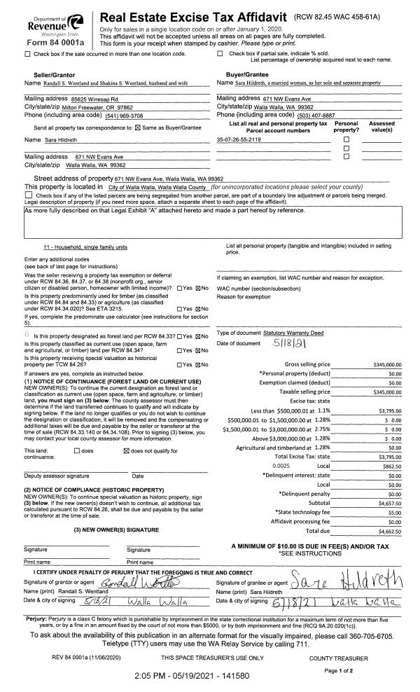
| 2 | 05/19/2021 | SWD | STATUTORY WARRANTY DEED | WENTLAND RANDALL S & SHAKINA S | HILDRETH SARA | | | $345,000.00 | 141580 | 2021-06064 |
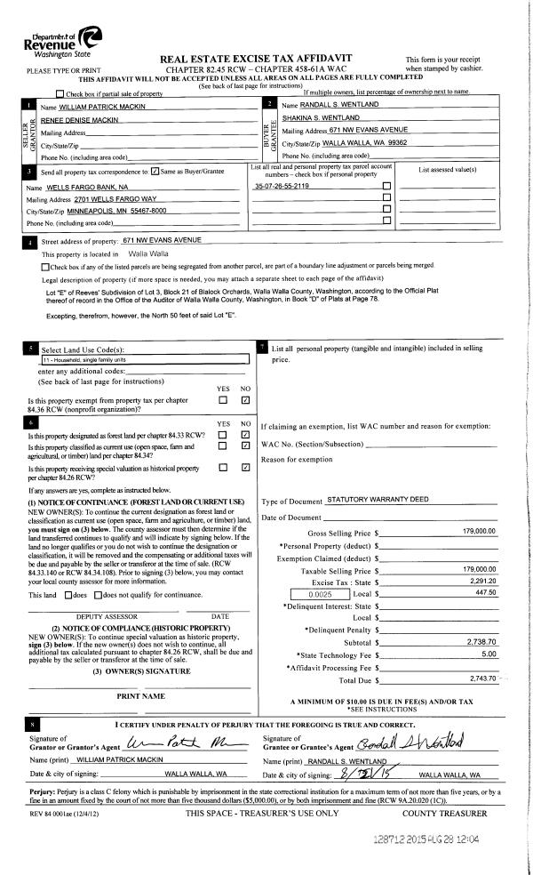
| 3 | 08/28/2015 | SWD | STATUTORY WARRANTY DEED | MACKIN WILLIAM & RENEE | WENTLAND RANDALL S & SHAKINA S | | | $179,000.00 | 128712 | 2015-07565 |
| 4 | 08/03/2001 | WARRANTY D | WARRANTY DEED | | | | | $0.00 | 81652 | 3170-108370 |
Payout Agreement
| No payout information available.. |