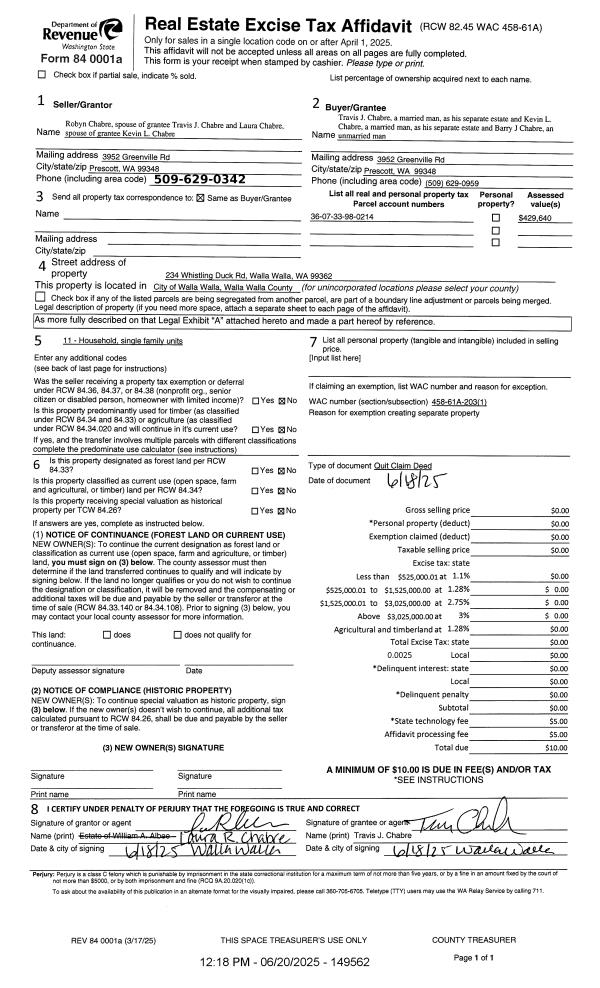
Property
Account |
| Property ID: | 25282 | Abbreviated Legal Description: | TRIPLE CREEK MEADOWS PHASE 2 LOT 23 BLOCK 2 |
| Parcel Number: | 360733980214 | Agent Code: | |
| Type: | Real | | |
| Tax Area: | 5 - OL-140 | Land Use Code | 11 |
| Open Space: | N | DFL | N |
| Historic Property: | N | Remodel Property: | N |
| Multi-Family Redevelopment: | N | | |
| Township: | 7 | Section: | 33 |
| Range: | 36 |
Location |
| Address: | 234 WHISTLING DUCK RD WA 99362 | Mapsco: | |
| Neighborhood: | G Res Rural/City Inf | Map ID: | |
| Neighborhood CD: | 614012 |
Owner |
| Name: | ALBEE WILLIAM A | Owner ID: | 66974 |
| Mailing Address: | 234 WHISTLING DUCK RD WALLA WALLA, WA 99362 | % Ownership: | 100.0000000000% |
| | | Exemptions: | |
Taxes and Assessment Details
Values
| (+) Improvement Homesite Value: | + | $0 | |
| (+) Improvement Non-Homesite Value: | + | $329,640 | |
| (+) Land Homesite Value: | + | $0 | |
| (+) Land Non-Homesite Value: | + | $100,000 | |
| (+) Curr Use (HS): | + | $0 | $0 |
| (+) Curr Use (NHS): | + | $0 | $0 |
| | | -------------------------- | |
| (=) Market Value: | = | $429,640 | |
| (–) Productivity Loss: | – | $0 | |
| | | -------------------------- | |
| (=) Subtotal: | = | $429,640 | |
| (+) Senior Appraised Value: | + | $0 | |
| (+) Non-Senior Appraised Value: | + | $429,640 | |
| | | -------------------------- | |
| (=) Total Appraised Value: | = | $429,640 | |
| (–) Senior Exemption Loss: | – | $0 | |
| (–) Exemption Loss: | – | $0 | |
| | | -------------------------- | |
| (=) Taxable Value: | = | $429,640 | |
Taxing Jurisdiction
| Owner: | ALBEE WILLIAM A | | |
| % Ownership: | 100.0000000000% | | |
| Total Value: | $429,640 | | |
| Tax Area: | 5 - OL-140 |
| CERFD | CURRENT EXPENSE REFUND 010 | 0.0000000000 | $429,640 | $429,640 | $0.00 | | |
| CURREXP | CURRENT EXPENSE 010 | 1.0175366760 | $429,640 | $429,640 | $437.17 | | |
| HUMNSERV | HUMAN SERVICES 119 | 0.0250000000 | $429,640 | $429,640 | $10.74 | | |
| SLDREL | SOLDIERS RELIEF 121 | 0.0155990005 | $429,640 | $429,640 | $6.70 | | |
| EMERGSER | EMS 147 | 0.3792580840 | $429,640 | $429,640 | $162.94 | | |
| EMSRFD | EMS REFUND 147 | 0.0000000000 | $429,640 | $429,640 | $0.00 | | |
| PORTRFD | PORT REFUND 640 | 0.0000000000 | $429,640 | $429,640 | $0.00 | | |
| PORTWWGEN | PORT OF WW 640 | 0.2460186015 | $429,640 | $429,640 | $105.70 | | |
| SD140BOND | SD #140 BOND 764 | 0.8342371393 | $429,640 | $429,640 | $358.42 | | |
| SD140GEN | SD #140 GENERAL 760 | 2.0646500647 | $429,640 | $429,640 | $887.06 | | |
| ST2 | STATE SCHOOL PART 2 600 | 0.8131451643 | $429,640 | $429,640 | $349.36 | | |
| STATESCHL | STATE SCHOOL 600 | 1.5158548041 | $429,640 | $429,640 | $651.27 | | |
| STREFUND | STATE REFUND LEVY 603 | 0.0000000000 | $429,640 | $429,640 | $0.00 | | |
| CWWBOND | C OF WW BOND 643 | 0.2760494372 | $429,640 | $429,640 | $118.60 | | |
| CWWGEN | CITY OF WW 631 | 1.6100204973 | $429,640 | $429,640 | $691.73 | | |
| CWWRFD | CITY OF WALLA WALLA REFUND 631 | 0.0000000000 | $429,640 | $429,640 | $0.00 | | |
| | Total Tax Rate: | 8.7973694689 | | | | | |
| | | | | Taxes w/Current Exemptions: | $3,779.69 | | |
| | | | | Taxes w/o Exemptions: | $3,779.69 | | |
Improvement / Building
| Improvement #1: | RESIDENTIAL | State Code: | 11 | 1634.0 sqft | Value: | $329,640 |
| Exterior Wall: | PLYWOOD | Heating/Cooling: | WARM & COOLED AIR | | Number of Bathrooms: | 2 | Number of Bedrooms: | 3 | | Plumbing: | 12 | Roof Covering: | COMP SHINGLE |
|
| | Type | Description | Class CD | Sub Class CD | Year Built | Area |
| | MA | Main Area | 1 | 35 | 2008 | 1634.0 |
| | SI1 | SITE IMPROVEMENT | 1 | 35 | 2008 | 3.5 |
| | ATG | Attached Garage | 1 | 35 | 2008 | 740.0 |
| | GFP | GAS FIREPLACE | 1 | 35 | 2008 | 1.0 |
| | RPC | OPEN PORCH W/ROOF , CEILED | 1 | 35 | 2008 | 97.0 |
Sketch
Property Image
Land
| 1 | RES 1 | Converted: Residential | 0.2204 | 9600.00 | 0.00 | 0.00 | 1.00 | $100,000 | $0 |
Roll Value History
| 2026 | N/A | N/A | N/A | N/A | N/A |
| 2025 | $346,990 | $125,000 | $0 | $471,990 | $471,990 |
| 2024 | $329,640 | $100,000 | $0 | $429,640 | $429,640 |
| 2023 | $329,640 | $100,000 | $0 | $429,640 | $429,640 |
| 2022 | $299,670 | $85,000 | $0 | $384,670 | $384,670 |
| 2021 | $260,580 | $85,000 | $0 | $345,580 | $345,580 |
| 2020 | $186,130 | $85,000 | $0 | $271,130 | $271,130 |
| 2019 | $186,130 | $85,000 | $0 | $271,130 | $271,130 |
| 2018 | $200,650 | $50,000 | $0 | $250,650 | $250,650 |
| 2017 | $200,650 | $50,000 | $0 | $250,650 | $250,650 |
| 2016 | $174,480 | $50,000 | $0 | $224,480 | $224,480 |
| 2015 | $174,480 | $50,000 | $0 | $224,480 | $224,480 |
| 2014 | $169,400 | $50,000 | $0 | $219,400 | $219,400 |
| 2013 | $169,400 | $50,000 | $0 | $219,400 | $219,400 |
| 2012 | $203,100 | $55,000 | $0 | $0 | $0 |
| 2011 | $203,100 | $55,000 | $0 | $0 | $0 |
| 2010 | $203,100 | $55,000 | $0 | $0 | $0 |
| 2009 | $84,800 | $65,000 | $0 | $0 | $0 |
| 2008 | $0 | $65,000 | $0 | $0 | $0 |
| 2007 | $169,400 | $50,000 | $0 | $0 | $0 |
Deed and Sales History
| 1 | 06/20/2025 | QCD | QUIT CLAIM DEED | | CHABRE TRAVIS J & | | | $0.00 | 149562 | 2025-03493 |
| 2 | 06/20/2025 | BARGAIN & | BARGAIN & SALE DEED | ALBEE WILLIAM A | CHABRE TRAVIS J & | | | $460,000.00 | 149561 | 2025-03490 |
| 3 | 04/08/2020 | DEATH CERT | DEATH CERTIFICATE | ALBEE SUSAN JANE | | | | | 0 | 2020-03044 |
| 4 | 07/24/2017 | COMMUNITY | COMMUNITY PROPERTY AGREEMENT | ALBEE WILLIAM A & SUSAN J | ALBEE WILLIAM A & SUSAN J | | | | 0 | 2017-05604 |
| 5 | 09/24/2008 | WARRANTY D | WARRANTY DEED | MAJERUS, DOUGLAS | ALBEE, WILLIAM A & SUSAN J | | | $264,700.00 | 115694 | 2008-09814 |
Payout Agreement
| No payout information available.. |