Property
Account |
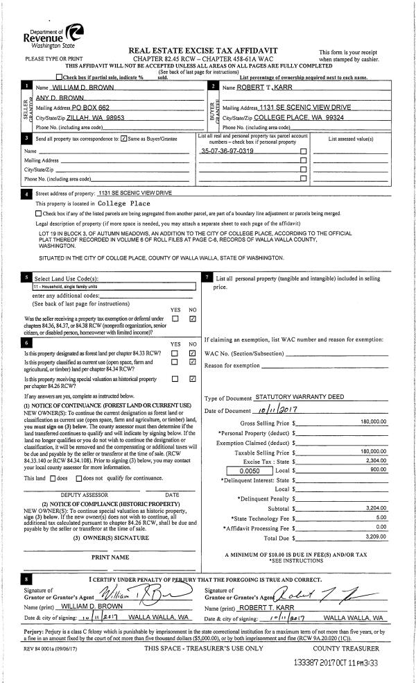
| Property ID: | 2515 | Abbreviated Legal Description: | AUTUMN MEADOWS LT 19 BLK 3 |
| Parcel Number: | 350736970319 | Agent Code: | |
| Type: | Real | | |
| Tax Area: | 77 - CP-250-F | Land Use Code | 11 |
| Open Space: | N | DFL | N |
| Historic Property: | N | Remodel Property: | N |
| Multi-Family Redevelopment: | N | | |
| Township: | 7 | Section: | 36 |
| Range: | 35 |
Location |
| Address: | 1131 SE SCENIC VIEW DR WA 99324 | Mapsco: | |
| Neighborhood: | A SFR | Map ID: | |
| Neighborhood CD: | 113011 |
Owner |
| Name: | KARR ROBERT T | Owner ID: | 61878 |
| Mailing Address: | 1131 SE SCENIC VIEW DR COLLEGE PLACE, WA 99324 | % Ownership: | 100.0000000000% |
| | | Exemptions: | |
Taxes and Assessment Details
Values
| (+) Improvement Homesite Value: | + | $0 | |
| (+) Improvement Non-Homesite Value: | + | $273,880 | |
| (+) Land Homesite Value: | + | $0 | |
| (+) Land Non-Homesite Value: | + | $70,000 | |
| (+) Curr Use (HS): | + | $0 | $0 |
| (+) Curr Use (NHS): | + | $0 | $0 |
| | | -------------------------- | |
| (=) Market Value: | = | $343,880 | |
| (–) Productivity Loss: | – | $0 | |
| | | -------------------------- | |
| (=) Subtotal: | = | $343,880 | |
| (+) Senior Appraised Value: | + | $0 | |
| (+) Non-Senior Appraised Value: | + | $343,880 | |
| | | -------------------------- | |
| (=) Total Appraised Value: | = | $343,880 | |
| (–) Senior Exemption Loss: | – | $0 | |
| (–) Exemption Loss: | – | $0 | |
| | | -------------------------- | |
| (=) Taxable Value: | = | $343,880 | |
Taxing Jurisdiction
| Owner: | KARR ROBERT T | | |
| % Ownership: | 100.0000000000% | | |
| Total Value: | $343,880 | | |
| Tax Area: | 77 - CP-250-F |
| CERFD | CURRENT EXPENSE REFUND 010 | 0.0000000000 | $343,880 | $343,880 | $0.00 | | |
| CURREXP | CURRENT EXPENSE 010 | 1.0175366760 | $343,880 | $343,880 | $349.91 | | |
| HUMNSERV | HUMAN SERVICES 119 | 0.0250000000 | $343,880 | $343,880 | $8.60 | | |
| SLDREL | SOLDIERS RELIEF 121 | 0.0155990005 | $343,880 | $343,880 | $5.36 | | |
| COLLPLBOND | C OF CP BOND 644 | 0.4374241808 | $343,880 | $343,880 | $150.42 | | |
| COLLPLGEN | CITY OF CP 632 | 1.4453819216 | $343,880 | $343,880 | $497.04 | | |
| EMERGSER | EMS 147 | 0.3792580840 | $343,880 | $343,880 | $130.42 | | |
| EMSRFD | EMS REFUND 147 | 0.0000000000 | $343,880 | $343,880 | $0.00 | | |
| RURALLIB | RURAL LIBRARY 623 | 0.3710609029 | $343,880 | $343,880 | $127.60 | | |
| PORTRFD | PORT REFUND 640 | 0.0000000000 | $343,880 | $343,880 | $0.00 | | |
| PORTWWGEN | PORT OF WW 640 | 0.2460186015 | $343,880 | $343,880 | $84.60 | | |
| SD250BOND | SD #250 BOND 773 | 1.4560608159 | $343,880 | $343,880 | $500.71 | | |
| SD250GEN | SD #250 GENERAL 770 | 2.3880724087 | $343,880 | $343,880 | $821.21 | | |
| ST2 | STATE SCHOOL PART 2 600 | 0.8131451643 | $343,880 | $343,880 | $279.62 | | |
| STATESCHL | STATE SCHOOL 600 | 1.5158548041 | $343,880 | $343,880 | $521.27 | | |
| STREFUND | STATE REFUND LEVY 603 | 0.0000000000 | $343,880 | $343,880 | $0.00 | | |
| | Total Tax Rate: | 10.1104125603 | | | | | |
| | | | | Taxes w/Current Exemptions: | $3,476.76 | | |
| | | | | Taxes w/o Exemptions: | $3,476.76 | | |
Improvement / Building
| Improvement #1: | RESIDENTIAL | State Code: | 11 | 1240.0 sqft | Value: | $273,880 |
| Exterior Wall: | PLYWOOD | Heating/Cooling: | WARM & COOLED AIR | | Number of Bathrooms: | 2 | Number of Bedrooms: | 3 | | Plumbing: | 9 | Roof Covering: | COMP SHINGLE |
|
| | Type | Description | Class CD | Sub Class CD | Year Built | Area |
| | MA | Main Area | 1 | 30 | 2003 | 1240.0 |
| | SI1 | SITE IMPROVEMENT | 1 | 30 | 2003 | 1.5 |
| | ATG | Attached Garage | 1 | 30 | 2003 | 400.0 |
| | RPC | OPEN PORCH W/ROOF , CEILED | 1 | 30 | 2003 | 120.0 |
| | WOD | Wood Deck | 1 | 30 | 2003 | 160.0 |
| | GFP | GAS FIREPLACE | 1 | 30 | 2003 | 1.0 |
Sketch
Property Image
Land
| 1 | RES 1 | Converted: Residential | 0.1398 | 6090.00 | 0.00 | 0.00 | 1.00 | $70,000 | $0 |
Roll Value History
| 2026 | N/A | N/A | N/A | N/A | N/A |
| 2025 | $213,630 | $125,000 | $0 | $338,630 | $338,630 |
| 2024 | $273,880 | $70,000 | $0 | $343,880 | $343,880 |
| 2023 | $273,880 | $70,000 | $0 | $343,880 | $343,880 |
| 2022 | $238,160 | $70,000 | $0 | $308,160 | $308,160 |
| 2021 | $176,420 | $70,000 | $0 | $246,420 | $246,420 |
| 2020 | $117,610 | $70,000 | $0 | $187,610 | $187,610 |
| 2019 | $132,610 | $55,000 | $0 | $187,610 | $187,610 |
| 2018 | $120,560 | $55,000 | $0 | $175,560 | $175,560 |
| 2017 | $115,920 | $55,000 | $0 | $170,920 | $170,920 |
| 2016 | $100,800 | $55,000 | $0 | $155,800 | $155,800 |
| 2015 | $96,000 | $55,000 | $0 | $151,000 | $151,000 |
| 2014 | $80,000 | $55,000 | $0 | $135,000 | $135,000 |
| 2013 | $77,700 | $55,000 | $0 | $132,700 | $132,700 |
| 2012 | $92,400 | $55,000 | $0 | $0 | $0 |
| 2011 | $100,200 | $55,000 | $0 | $0 | $0 |
| 2010 | $100,200 | $55,000 | $0 | $0 | $0 |
| 2009 | $117,400 | $55,000 | $0 | $0 | $0 |
| 2008 | $90,900 | $30,000 | $0 | $0 | $0 |
| 2007 | $90,900 | $30,000 | $0 | $0 | $0 |
Deed and Sales History
| 1 | 06/13/2025 | SWD | STATUTORY WARRANTY DEED | KARR ROBERT T | ANDREASEN RUSSELL & TAMEIKA MICHELLE | | | $349,900.00 | 149533 | 2025-03339 |
| 2 | 10/11/2017 | SWD | STATUTORY WARRANTY DEED | BROWN WILLIAM D & AMY D | KARR ROBERT T | | | $180,000.00 | 133387 | 2017-08086 |
| 3 | 08/28/2008 | WARRANTY D | WARRANTY DEED | RIGGS, ANTHONY R & JENNIFER R | BROWN, WILLIAM D & AMY D | | | $174,000.00 | 115567 | 2008-08911 |
| 4 | 06/16/2003 | WARRANTY D | WARRANTY DEED | HAYDEN ENTERPRISES INC | RIGGS, ANTHONY R & JENNIFER R | | | $121,555.00 | 102343 | 2003-08916 |
| 5 | 08/21/2002 | WARRANTY D | WARRANTY DEED | VILLAGE PARK COLLEGE PLACE~LLC | | | | | 100199 | 2002-09391 |
Payout Agreement
| No payout information available.. |