Property
Account |
| Property ID: | 25103 | Abbreviated Legal Description: | EJ PONTI'S GREEN ACRES LOT 24 |
| Parcel Number: | 350726600024 | Agent Code: | |
| Type: | Real | | |
| Tax Area: | 75 - CP 250 | Land Use Code | 11 |
| Open Space: | N | DFL | N |
| Historic Property: | N | Remodel Property: | N |
| Multi-Family Redevelopment: | N | | |
| Township: | 7 | Section: | 26 |
| Range: | 35 |
Location |
| Address: | 164 NW DESTITO CT WA 99324 | Mapsco: | |
| Neighborhood: | A SFR | Map ID: | |
| Neighborhood CD: | 113011 |
Owner |
| Name: | LANG-MOUR LLC | Owner ID: | 66122 |
| Mailing Address: | 307 S 9TH ST STE 101 WALLA WALLA, WA 99362 | % Ownership: | 100.0000000000% |
| | | Exemptions: | |
Taxes and Assessment Details
Values
| (+) Improvement Homesite Value: | + | $0 | |
| (+) Improvement Non-Homesite Value: | + | $352,430 | |
| (+) Land Homesite Value: | + | $0 | |
| (+) Land Non-Homesite Value: | + | $70,000 | |
| (+) Curr Use (HS): | + | $0 | $0 |
| (+) Curr Use (NHS): | + | $0 | $0 |
| | | -------------------------- | |
| (=) Market Value: | = | $422,430 | |
| (–) Productivity Loss: | – | $0 | |
| | | -------------------------- | |
| (=) Subtotal: | = | $422,430 | |
| (+) Senior Appraised Value: | + | $0 | |
| (+) Non-Senior Appraised Value: | + | $422,430 | |
| | | -------------------------- | |
| (=) Total Appraised Value: | = | $422,430 | |
| (–) Senior Exemption Loss: | – | $0 | |
| (–) Exemption Loss: | – | $0 | |
| | | -------------------------- | |
| (=) Taxable Value: | = | $422,430 | |
Taxing Jurisdiction
| Owner: | LANG-MOUR LLC | | |
| % Ownership: | 100.0000000000% | | |
| Total Value: | $422,430 | | |
| Tax Area: | 75 - CP 250 |
| CERFD | CURRENT EXPENSE REFUND 010 | 0.0000000000 | $422,430 | $422,430 | $0.00 | | |
| CURREXP | CURRENT EXPENSE 010 | 1.0175366760 | $422,430 | $422,430 | $429.84 | | |
| HUMNSERV | HUMAN SERVICES 119 | 0.0250000000 | $422,430 | $422,430 | $10.56 | | |
| SLDREL | SOLDIERS RELIEF 121 | 0.0155990005 | $422,430 | $422,430 | $6.59 | | |
| COLLPLBOND | C OF CP BOND 644 | 0.4374241808 | $422,430 | $422,430 | $184.78 | | |
| COLLPLGEN | CITY OF CP 632 | 1.4453819216 | $422,430 | $422,430 | $610.57 | | |
| EMERGSER | EMS 147 | 0.3792580840 | $422,430 | $422,430 | $160.21 | | |
| EMSRFD | EMS REFUND 147 | 0.0000000000 | $422,430 | $422,430 | $0.00 | | |
| RURALLIB | RURAL LIBRARY 623 | 0.3710609029 | $422,430 | $422,430 | $156.75 | | |
| PORTRFD | PORT REFUND 640 | 0.0000000000 | $422,430 | $422,430 | $0.00 | | |
| PORTWWGEN | PORT OF WW 640 | 0.2460186015 | $422,430 | $422,430 | $103.93 | | |
| SD250BOND | SD #250 BOND 773 | 1.4560608159 | $422,430 | $422,430 | $615.08 | | |
| SD250GEN | SD #250 GENERAL 770 | 2.3880724087 | $422,430 | $422,430 | $1,008.79 | | |
| ST2 | STATE SCHOOL PART 2 600 | 0.8131451643 | $422,430 | $422,430 | $343.50 | | |
| STATESCHL | STATE SCHOOL 600 | 1.5158548041 | $422,430 | $422,430 | $640.34 | | |
| STREFUND | STATE REFUND LEVY 603 | 0.0000000000 | $422,430 | $422,430 | $0.00 | | |
| | Total Tax Rate: | 10.1104125603 | | | | | |
| | | | | Taxes w/Current Exemptions: | $4,270.94 | | |
| | | | | Taxes w/o Exemptions: | $4,270.94 | | |
Improvement / Building
| Improvement #1: | RESIDENTIAL | State Code: | 11 | 2626.0 sqft | Value: | $352,430 |
| Exterior Wall: | PLYWOOD | Heating/Cooling: | WARM & COOLED AIR | | Number of Bathrooms: | 4 | Number of Bedrooms: | 4 | | Plumbing: | 15 | Roof Covering: | COMP SHINGLE |
|
| | Type | Description | Class CD | Sub Class CD | Year Built | Area |
| | MA | Main Area | 2 | 40 | 1997 | 2626.0 |
| | UPFL | Upper Floor (included in main area) | 2 | 40 | 1997 | 1173.0 |
| | SI1 | SITE IMPROVEMENT | 2 | 40 | 1997 | 3.0 |
| | BASE | BASEMENT | 2 | 40 | 1997 | 1134.0 |
| | BPF | BASEMENT -PARTITIONED FINISH | 2 | 40 | 1997 | 962.0 |
| | ATG | Attached Garage | 2 | 40 | 1997 | 554.0 |
| | WOD | Wood Deck | 2 | 40 | 1997 | 359.0 |
| | RPC | OPEN PORCH W/ROOF , CEILED | 2 | 40 | 1997 | 150.0 |
| | GFP | GAS FIREPLACE | 2 | 40 | 1997 | 1.0 |
Sketch
Property Image
Land
| 1 | RES 1 | Converted: Residential | 0.1666 | 7256.00 | 0.00 | 0.00 | 1.00 | $70,000 | $0 |
Roll Value History
| 2026 | N/A | N/A | N/A | N/A | N/A |
| 2025 | $412,340 | $130,000 | $0 | $542,340 | $542,340 |
| 2024 | $458,160 | $70,000 | $0 | $528,160 | $528,160 |
| 2023 | $352,430 | $70,000 | $0 | $422,430 | $422,430 |
| 2022 | $352,430 | $70,000 | $0 | $422,430 | $422,430 |
| 2021 | $352,430 | $70,000 | $0 | $422,430 | $422,430 |
| 2020 | $271,100 | $70,000 | $0 | $341,100 | $341,100 |
| 2019 | $286,100 | $55,000 | $0 | $341,100 | $341,100 |
| 2018 | $248,830 | $55,000 | $0 | $303,830 | $303,830 |
| 2017 | $216,370 | $55,000 | $0 | $271,370 | $271,370 |
| 2016 | $216,370 | $55,000 | $0 | $271,370 | $271,370 |
| 2015 | $196,700 | $55,000 | $0 | $251,700 | $251,700 |
| 2014 | $196,700 | $55,000 | $0 | $251,700 | $251,700 |
| 2013 | $196,700 | $55,000 | $0 | $251,700 | $251,700 |
| 2012 | $196,700 | $55,000 | $0 | $0 | $0 |
| 2011 | $177,400 | $55,000 | $0 | $0 | $0 |
| 2010 | $177,400 | $55,000 | $0 | $0 | $0 |
| 2009 | $203,200 | $55,000 | $0 | $0 | $0 |
| 2008 | $150,700 | $30,000 | $0 | $0 | $0 |
| 2007 | $150,700 | $30,000 | $0 | $0 | $0 |
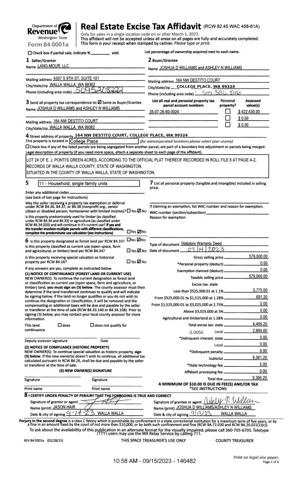
Deed and Sales History
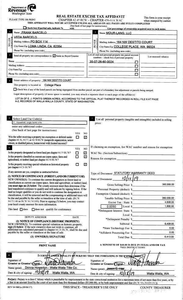
| 1 | 09/15/2023 | SWD | STATUTORY WARRANTY DEED | LANG-MOUR LLC | WILLIAMS JOSHUA D & ASHLEY N | | | $579,000.00 | 146482 | 2023-05393 |
| 2 | 10/18/2019 | SWD | STATUTORY WARRANTY DEED | BARCELO FRANK & VEDA L | LANG-MOUR LLC | | | $360,000.00 | 137902 | 2019-08393 |
| 3 | 10/03/2008 | WARRANTY D | WARRANTY DEED | ACCREDITED HOME LENDERS INC | BARCELO, FRANK & VEDA L | | | $230,000.00 | 115761 | 2008-10160 |
| 4 | 09/05/2008 | WARRANTY D | WARRANTY DEED | NORTHWEST TRUSTEE SERVICES INC | ACCREDITED HOME LENDERS INC | | | $219,902.00 | 115602 | 2008-09166 |
| 5 | 08/05/1996 | WARRANTY D | WARRANTY DEED | | | | | $23,000.00 | 86658 | 2439-607924 |
Payout Agreement
| No payout information available.. |