Property
Account |
| Property ID: | 25076 | Abbreviated Legal Description: | CHASE W 48.15' OF LOT 5 BLK 4 LESS ALLEY |
| Parcel Number: | 360729580405 | Agent Code: | |
| Type: | Real | | |
| Tax Area: | 1 - OL-140-F | Land Use Code | 11 |
| Open Space: | N | DFL | N |
| Historic Property: | N | Remodel Property: | N |
| Multi-Family Redevelopment: | N | | |
| Township: | 7 | Section: | 29 |
| Range: | 36 |
Location |
| Address: | 129 W MAPLE ST WA 99362 | Mapsco: | |
| Neighborhood: | Fair Res | Map ID: | |
| Neighborhood CD: | 612011 |
Owner |
| Name: | HYATT NICOLE C | Owner ID: | 71199 |
| Mailing Address: | 129 W MAPLE ST WALLA WALLA, WA 99362 | % Ownership: | 100.0000000000% |
| | | Exemptions: | |
Taxes and Assessment Details
Property Tax Information as of
02/21/2026
Click on "Statement Details" to expand or collapse a tax statement.
* Please enter a valid date ** Please enter a valid date *
Statement Details |
| | TOTAL: | $0.00 | $0.00 | $0.00 | $0.00 | $0.00 | $0.00 |
|
| | $0.00 | $0.00 | $0.00 | $0.00 | $0.00 | $0.00 |
Values
| (+) Improvement Homesite Value: | + | $0 | |
| (+) Improvement Non-Homesite Value: | + | $218,640 | |
| (+) Land Homesite Value: | + | $0 | |
| (+) Land Non-Homesite Value: | + | $69,120 | |
| (+) Curr Use (HS): | + | $0 | $0 |
| (+) Curr Use (NHS): | + | $0 | $0 |
| | | -------------------------- | |
| (=) Market Value: | = | $287,760 | |
| (–) Productivity Loss: | – | $0 | |
| | | -------------------------- | |
| (=) Subtotal: | = | $287,760 | |
| (+) Senior Appraised Value: | + | $0 | |
| (+) Non-Senior Appraised Value: | + | $287,760 | |
| | | -------------------------- | |
| (=) Total Appraised Value: | = | $287,760 | |
| (–) Senior Exemption Loss: | – | $0 | |
| (–) Exemption Loss: | – | $0 | |
| | | -------------------------- | |
| (=) Taxable Value: | = | $287,760 | |
Taxing Jurisdiction
| Owner: | HYATT NICOLE C | | |
| % Ownership: | 100.0000000000% | | |
| Total Value: | $287,760 | | |
| Tax Area: | 1 - OL-140-F |
| CERFD | CURRENT EXPENSE REFUND 010 | 0.0000000000 | $287,760 | $287,760 | $0.00 | | |
| CURREXP | CURRENT EXPENSE 010 | 1.0175366760 | $287,760 | $287,760 | $292.81 | | |
| HUMNSERV | HUMAN SERVICES 119 | 0.0250000000 | $287,760 | $287,760 | $7.19 | | |
| SLDREL | SOLDIERS RELIEF 121 | 0.0155990005 | $287,760 | $287,760 | $4.49 | | |
| EMERGSER | EMS 147 | 0.3792580840 | $287,760 | $287,760 | $109.14 | | |
| EMSRFD | EMS REFUND 147 | 0.0000000000 | $287,760 | $287,760 | $0.00 | | |
| PORTRFD | PORT REFUND 640 | 0.0000000000 | $287,760 | $287,760 | $0.00 | | |
| PORTWWGEN | PORT OF WW 640 | 0.2460186015 | $287,760 | $287,760 | $70.79 | | |
| SD140BOND | SD #140 BOND 764 | 0.8342371393 | $287,760 | $287,760 | $240.06 | | |
| SD140GEN | SD #140 GENERAL 760 | 2.0646500647 | $287,760 | $287,760 | $594.12 | | |
| ST2 | STATE SCHOOL PART 2 600 | 0.8131451643 | $287,760 | $287,760 | $233.99 | | |
| STATESCHL | STATE SCHOOL 600 | 1.5158548041 | $287,760 | $287,760 | $436.20 | | |
| STREFUND | STATE REFUND LEVY 603 | 0.0000000000 | $287,760 | $287,760 | $0.00 | | |
| CWWBOND | C OF WW BOND 643 | 0.2760494372 | $287,760 | $287,760 | $79.44 | | |
| CWWGEN | CITY OF WW 631 | 1.6100204973 | $287,760 | $287,760 | $463.30 | | |
| CWWRFD | CITY OF WALLA WALLA REFUND 631 | 0.0000000000 | $287,760 | $287,760 | $0.00 | | |
| | Total Tax Rate: | 8.7973694689 | | | | | |
| | | | | Taxes w/Current Exemptions: | $2,531.53 | | |
| | | | | Taxes w/o Exemptions: | $2,531.53 | | |
Improvement / Building
| Improvement #1: | RESIDENTIAL | State Code: | 11 | 999.0 sqft | Value: | $218,640 |
| Exterior Wall: | SIDING | Heating/Cooling: | HEAT PUMP | | Number of Bathrooms: | 1 | Number of Bedrooms: | 2 | | Plumbing: | 7 | Roof Covering: | COMP SHINGLE |
|
| | Type | Description | Class CD | Sub Class CD | Year Built | Area |
| | MA | Main Area | 1 | 20 | 1910 | 999.0 |
| | SI1 | SITE IMPROVEMENT | 1 | 20 | 1910 | 1.0 |
| | WDR | WOOD DECK W/ROOF | 1 | 20 | 1910 | 189.0 |
| | BASE | BASEMENT | 1 | 20 | 1910 | 144.0 |
| | BPF | BASEMENT -PARTITIONED FINISH | 1 | 20 | 1910 | 144.0 |
Sketch
Property Image
Land
| 1 | RES 1 | Converted: Residential | 0.2479 | 10800.00 | 0.00 | 0.00 | 1.00 | $69,120 | $0 |
Roll Value History
| 2026 | N/A | N/A | N/A | N/A | N/A |
| 2025 | $212,560 | $86,720 | $0 | $299,280 | $299,280 |
| 2024 | $218,640 | $69,120 | $0 | $287,760 | $287,760 |
| 2023 | $218,640 | $69,120 | $0 | $287,760 | $287,760 |
| 2022 | $208,230 | $54,220 | $0 | $262,450 | $262,450 |
| 2021 | $138,820 | $54,220 | $0 | $193,040 | $193,040 |
| 2020 | $112,480 | $54,220 | $0 | $166,700 | $166,700 |
| 2019 | $112,480 | $54,220 | $0 | $166,700 | $166,700 |
| 2018 | $44,140 | $47,800 | $0 | $91,940 | $91,940 |
| 2017 | $40,130 | $47,800 | $0 | $87,930 | $87,930 |
| 2016 | $36,480 | $47,800 | $0 | $84,280 | $0 |
| 2015 | $30,400 | $47,800 | $0 | $78,200 | $0 |
| 2014 | $30,400 | $47,800 | $0 | $78,200 | $0 |
| 2013 | $30,400 | $47,800 | $0 | $78,200 | $0 |
| 2012 | $0 | $0 | $0 | $0 | $0 |
| 2011 | $0 | $0 | $0 | $0 | $0 |
| 2010 | $0 | $0 | $0 | $0 | $0 |
| 2009 | $0 | $0 | $0 | $0 | $0 |
| 2008 | $70,000 | $47,800 | $0 | $0 | $0 |
| 2007 | $41,600 | $20,200 | $0 | $0 | $0 |
Deed and Sales History
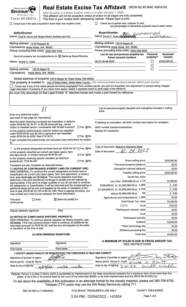
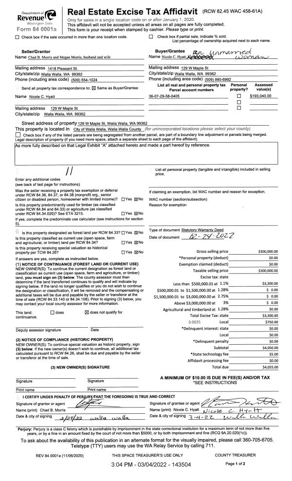
| 1 | 03/04/2022 | SWD | STATUTORY WARRANTY DEED | MORRIS CHAD B & MEGAN | HYATT NICOLE C | | | $300,000.00 | 143504 | 2022-01904 |
| 2 | 08/28/2019 | SWD | STATUTORY WARRANTY DEED | CRICHTON GRANT G & MARTA M | MORRIS CHAD B & MEGAN | | | $180,000.00 | 137571 | 2019-06641 |
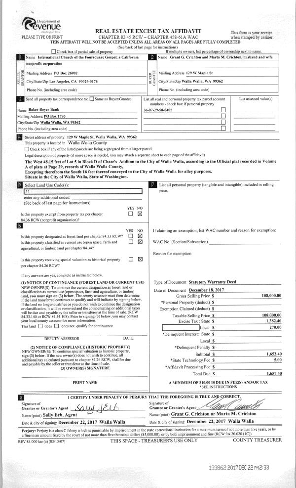
| 3 | 12/22/2017 | SWD | STATUTORY WARRANTY DEED | INTERNATIONAL CHURCH OF THE | CRICHTON GRANT G & MARTA M | | | $108,000.00 | 133862 | 2017-10328 |
| 4 | 05/18/1976 | WARRANTY D | WARRANTY DEED | | | | | $19,900.00 | 0 | 4105-53944 |
Payout Agreement
| No payout information available.. |