Property
Account |
| Property ID: | 25023 | Abbreviated Legal Description: | BRYANTS LOT 13 BLK 5 |
| Parcel Number: | 360728530513 | Agent Code: | |
| Type: | Real | | |
| Tax Area: | 1 - OL-140-F | Land Use Code | 11 |
| Open Space: | N | DFL | N |
| Historic Property: | N | Remodel Property: | N |
| Multi-Family Redevelopment: | N | | |
| Township: | 7 | Section: | 28 |
| Range: | 36 |
Location |
| Address: | 555 LOCUST ST WA 99362 | Mapsco: | |
| Neighborhood: | A Res | Map ID: | |
| Neighborhood CD: | 613011 |
Owner |
| Name: | REDWOOD HOLDINGS LLC | Owner ID: | 73351 |
| Mailing Address: | 2015 MANHATTAN BEACH BLVD #100 REDONDO BEACH, CA 90278 | % Ownership: | 100.0000000000% |
| | | Exemptions: | |
Taxes and Assessment Details
Values
| (+) Improvement Homesite Value: | + | $0 | |
| (+) Improvement Non-Homesite Value: | + | $299,560 | |
| (+) Land Homesite Value: | + | $0 | |
| (+) Land Non-Homesite Value: | + | $70,000 | |
| (+) Curr Use (HS): | + | $0 | $0 |
| (+) Curr Use (NHS): | + | $0 | $0 |
| | | -------------------------- | |
| (=) Market Value: | = | $369,560 | |
| (–) Productivity Loss: | – | $0 | |
| | | -------------------------- | |
| (=) Subtotal: | = | $369,560 | |
| (+) Senior Appraised Value: | + | $0 | |
| (+) Non-Senior Appraised Value: | + | $369,560 | |
| | | -------------------------- | |
| (=) Total Appraised Value: | = | $369,560 | |
| (–) Senior Exemption Loss: | – | $0 | |
| (–) Exemption Loss: | – | $0 | |
| | | -------------------------- | |
| (=) Taxable Value: | = | $369,560 | |
Taxing Jurisdiction
| Owner: | REDWOOD HOLDINGS LLC | | |
| % Ownership: | 100.0000000000% | | |
| Total Value: | $369,560 | | |
| Tax Area: | 1 - OL-140-F |
| CERFD | CURRENT EXPENSE REFUND 010 | 0.0000000000 | $369,560 | $369,560 | $0.00 | | |
| CURREXP | CURRENT EXPENSE 010 | 1.0175366760 | $369,560 | $369,560 | $376.04 | | |
| HUMNSERV | HUMAN SERVICES 119 | 0.0250000000 | $369,560 | $369,560 | $9.24 | | |
| SLDREL | SOLDIERS RELIEF 121 | 0.0155990005 | $369,560 | $369,560 | $5.76 | | |
| EMERGSER | EMS 147 | 0.3792580840 | $369,560 | $369,560 | $140.16 | | |
| EMSRFD | EMS REFUND 147 | 0.0000000000 | $369,560 | $369,560 | $0.00 | | |
| PORTRFD | PORT REFUND 640 | 0.0000000000 | $369,560 | $369,560 | $0.00 | | |
| PORTWWGEN | PORT OF WW 640 | 0.2460186015 | $369,560 | $369,560 | $90.92 | | |
| SD140BOND | SD #140 BOND 764 | 0.8342371393 | $369,560 | $369,560 | $308.30 | | |
| SD140GEN | SD #140 GENERAL 760 | 2.0646500647 | $369,560 | $369,560 | $763.01 | | |
| ST2 | STATE SCHOOL PART 2 600 | 0.8131451643 | $369,560 | $369,560 | $300.51 | | |
| STATESCHL | STATE SCHOOL 600 | 1.5158548041 | $369,560 | $369,560 | $560.20 | | |
| STREFUND | STATE REFUND LEVY 603 | 0.0000000000 | $369,560 | $369,560 | $0.00 | | |
| CWWBOND | C OF WW BOND 643 | 0.2760494372 | $369,560 | $369,560 | $102.02 | | |
| CWWGEN | CITY OF WW 631 | 1.6100204973 | $369,560 | $369,560 | $595.00 | | |
| CWWRFD | CITY OF WALLA WALLA REFUND 631 | 0.0000000000 | $369,560 | $369,560 | $0.00 | | |
| | Total Tax Rate: | 8.7973694689 | | | | | |
| | | | | Taxes w/Current Exemptions: | $3,251.16 | | |
| | | | | Taxes w/o Exemptions: | $3,251.16 | | |
Improvement / Building
| Improvement #1: | RESIDENTIAL | State Code: | 11 | 1896.0 sqft | Value: | $299,560 |
| Exterior Wall: | METAL/STEEL | Heating/Cooling: | WARM & COOLED AIR | | Number of Bathrooms: | 1 | Number of Bedrooms: | 5 | | Plumbing: | 7 | Roof Covering: | COMP SHINGLE |
|
| | Type | Description | Class CD | Sub Class CD | Year Built | Area |
| | MA | Main Area | 4 | 30 | 1914 | 1896.0 |
| | UPFL | Upper Floor (included in main area) | 4 | 30 | 1914 | 524.0 |
| | SI1 | SITE IMPROVEMENT | 4 | 30 | 1914 | 1.5 |
| | BASE | BASEMENT | 4 | 30 | 1914 | 898.0 |
| | PRC | PORCH W STEPS, ROOF,CEILED | 4 | 30 | 1914 | 21.0 |
Sketch
Property Image
Land
| 1 | RES 1 | Converted: Residential | 0.1377 | 6000.00 | 0.00 | 0.00 | 1.00 | $70,000 | $0 |
Roll Value History
| 2026 | N/A | N/A | N/A | N/A | N/A |
| 2025 | $256,630 | $66,000 | $0 | $322,630 | $322,630 |
| 2024 | $239,650 | $70,000 | $0 | $309,650 | $309,650 |
| 2023 | $299,560 | $70,000 | $0 | $369,560 | $369,560 |
| 2022 | $299,560 | $55,000 | $0 | $354,560 | $354,560 |
| 2021 | $206,590 | $55,000 | $0 | $261,590 | $261,590 |
| 2020 | $129,120 | $55,000 | $0 | $184,120 | $184,120 |
| 2019 | $129,120 | $55,000 | $0 | $184,120 | $184,120 |
| 2018 | $136,380 | $36,000 | $0 | $172,380 | $172,380 |
| 2017 | $129,890 | $36,000 | $0 | $165,890 | $57,696 |
| 2016 | $108,240 | $36,000 | $0 | $144,240 | $57,696 |
| 2015 | $108,240 | $36,000 | $0 | $144,240 | $57,696 |
| 2014 | $98,400 | $36,000 | $0 | $134,400 | $134,400 |
| 2013 | $98,400 | $36,000 | $0 | $134,400 | $134,400 |
| 2012 | $98,400 | $36,000 | $0 | $0 | $0 |
| 2011 | $98,400 | $36,000 | $0 | $0 | $0 |
| 2010 | $98,400 | $36,000 | $0 | $0 | $0 |
| 2009 | $113,300 | $36,000 | $0 | $0 | $0 |
| 2008 | $113,300 | $36,000 | $0 | $0 | $0 |
| 2007 | $94,700 | $18,000 | $0 | $0 | $0 |
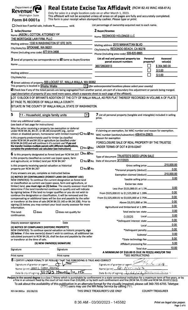
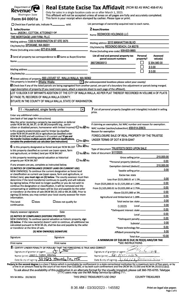
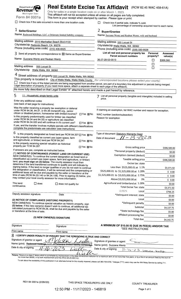
Deed and Sales History
| 1 | 11/17/2023 | SWD | STATUTORY WARRANTY DEED | REDWOOD HOLDINGS LLC | WENTZ SUZZANA & REUBEN | | | $306,500.00 | 146819 | 2023-06767 |
| 2 | 03/30/2023 | TRUSTEES D | TRUSTEE'S DEED | HARDIN DONNA LEE | REDWOOD HOLDINGS LLC | | | $210,000.00 | 145582 | 2023-01600 |
| 3 | 09/19/2008 | WARRANTY D | WARRANTY DEED | HARDIN, BETTY ESTATE OF | HARDIN, DONNA LEE | | | | 115669 | 2008-09677 |
| 4 | 08/26/1970 | WARRANTY D | WARRANTY DEED | | | | | $16,500.00 | 0 | 3370-509851 |
Payout Agreement
| No payout information available.. |