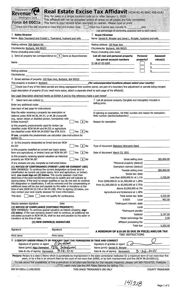
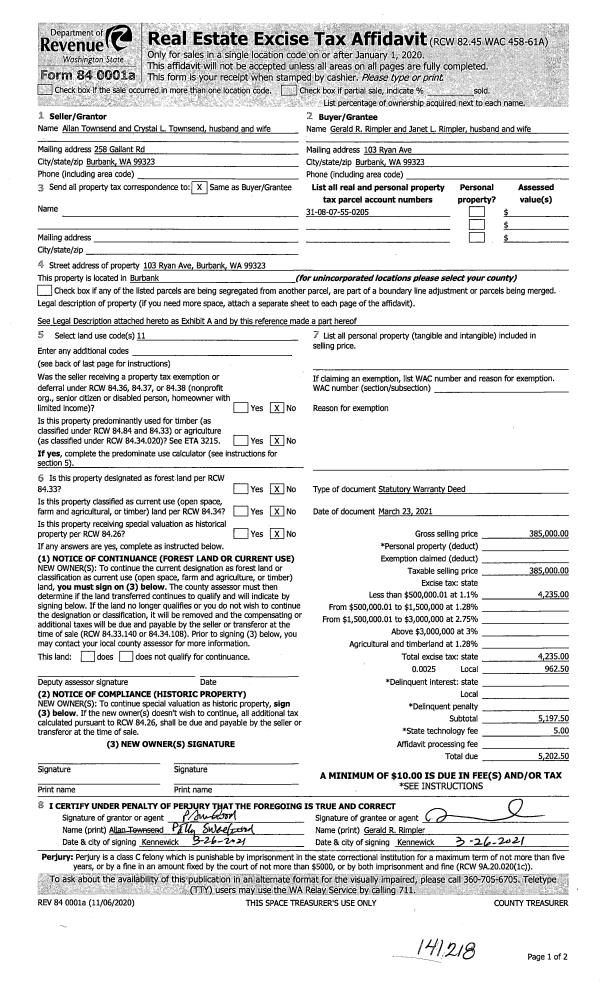
Property
Account |
| Property ID: | 2496 | Abbreviated Legal Description: | ARLENES #2 LOT 5 BLK 2 |
| Parcel Number: | 310807550205 | Agent Code: | |
| Type: | Real | | |
| Tax Area: | 328 - 400-M-5 | Land Use Code | 11 |
| Open Space: | N | DFL | N |
| Historic Property: | N | Remodel Property: | N |
| Multi-Family Redevelopment: | N | | |
| Township: | 8 | Section: | 7 |
| Range: | 31 |
Location |
| Address: | 103 RYAN AVE WA 99323 | Mapsco: | |
| Neighborhood: | G BURBANK SFR | Map ID: | |
| Neighborhood CD: | 214711 |
Owner |
| Name: | RIMPLER GERALD R & JANET L | Owner ID: | 69088 |
| Mailing Address: | 103 RYAN AVE BURBANK, WA 99323 | % Ownership: | 100.0000000000% |
| | | Exemptions: | |
Taxes and Assessment Details
Property Tax Information as of
02/21/2026
Click on "Statement Details" to expand or collapse a tax statement.
* Please enter a valid date ** Please enter a valid date *
Statement Details |
| | TOTAL: | $0.00 | $0.00 | $0.00 | $0.00 | $0.00 | $0.00 |
|
| | $0.00 | $0.00 | $0.00 | $0.00 | $0.00 | $0.00 |
Values
| (+) Improvement Homesite Value: | + | $0 | |
| (+) Improvement Non-Homesite Value: | + | $385,970 | |
| (+) Land Homesite Value: | + | $0 | |
| (+) Land Non-Homesite Value: | + | $75,000 | |
| (+) Curr Use (HS): | + | $0 | $0 |
| (+) Curr Use (NHS): | + | $0 | $0 |
| | | -------------------------- | |
| (=) Market Value: | = | $460,970 | |
| (–) Productivity Loss: | – | $0 | |
| | | -------------------------- | |
| (=) Subtotal: | = | $460,970 | |
| (+) Senior Appraised Value: | + | $0 | |
| (+) Non-Senior Appraised Value: | + | $460,970 | |
| | | -------------------------- | |
| (=) Total Appraised Value: | = | $460,970 | |
| (–) Senior Exemption Loss: | – | $0 | |
| (–) Exemption Loss: | – | $0 | |
| | | -------------------------- | |
| (=) Taxable Value: | = | $460,970 | |
Taxing Jurisdiction
| Owner: | RIMPLER GERALD R & JANET L | | |
| % Ownership: | 100.0000000000% | | |
| Total Value: | $460,970 | | |
| Tax Area: | 328 - 400-M-5 |
| CERFD | CURRENT EXPENSE REFUND 010 | 0.0000000000 | $460,970 | $460,970 | $0.00 | | |
| CURREXP | CURRENT EXPENSE 010 | 1.0175366760 | $460,970 | $460,970 | $469.05 | | |
| HUMNSERV | HUMAN SERVICES 119 | 0.0250000000 | $460,970 | $460,970 | $11.52 | | |
| SLDREL | SOLDIERS RELIEF 121 | 0.0155990005 | $460,970 | $460,970 | $7.19 | | |
| EMERGSER | EMS 147 | 0.3792580840 | $460,970 | $460,970 | $174.83 | | |
| EMSRFD | EMS REFUND 147 | 0.0000000000 | $460,970 | $460,970 | $0.00 | | |
| FD5EXP | FD #5 EXPENSE 689 | 1.2045331840 | $460,970 | $460,970 | $555.25 | | |
| RLBRFD | RURAL LIBRARY REFUND 623 | 0.0000000000 | $460,970 | $460,970 | $0.00 | | |
| RURALLIB | RURAL LIBRARY 623 | 0.3710609029 | $460,970 | $460,970 | $171.05 | | |
| PORTRFD | PORT REFUND 640 | 0.0000000000 | $460,970 | $460,970 | $0.00 | | |
| PORTWWGEN | PORT OF WW 640 | 0.2460186015 | $460,970 | $460,970 | $113.41 | | |
| SD400BOND | SD #400 BOND 793 | 0.0000000000 | $460,970 | $460,970 | $0.00 | | |
| SD400CAP | SD #400 CP 792 | 0.3443722657 | $460,970 | $460,970 | $158.75 | | |
| SD400GEN | SD #400 GENERAL 790 | 1.9278469916 | $460,970 | $460,970 | $888.68 | | |
| ST2 | STATE SCHOOL PART 2 600 | 0.8131451643 | $460,970 | $460,970 | $374.84 | | |
| STATESCHL | STATE SCHOOL 600 | 1.5158548041 | $460,970 | $460,970 | $698.76 | | |
| STREFUND | STATE REFUND LEVY 603 | 0.0000000000 | $460,970 | $460,970 | $0.00 | | |
| COROAD | COUNTY ROAD 115 | 1.6549953990 | $460,970 | $460,970 | $762.90 | | |
| CRPRD | COUNTY ROAD REFUND 115 | 0.0000000000 | $460,970 | $460,970 | $0.00 | | |
| | Total Tax Rate: | 9.5152210736 | | | | | |
| | | | | Taxes w/Current Exemptions: | $4,386.23 | | |
| | | | | Taxes w/o Exemptions: | $4,386.23 | | |
Improvement / Building
| Improvement #1: | RESIDENTIAL | State Code: | 11 | 1948.0 sqft | Value: | $385,970 |
| Exterior Wall: | PLYWOOD | Heating/Cooling: | WARM & COOLED AIR | | Number of Bathrooms: | 3 | Number of Bedrooms: | 5 | | Plumbing: | 12 | Roof Covering: | COMP SHINGLE |
|
| | Type | Description | Class CD | Sub Class CD | Year Built | Area |
| | MA | Main Area | 1 | 35 | 1980 | 1948.0 |
| | SI1 | SITE IMPROVEMENT | 1 | 35 | 1980 | 1.5 |
| | POL3 | POLE BUILDING-CON,ELEC,INSU | 1 | 35 | 2009 | 600.0 |
| | S1F | Single One Story Fireplace | 1 | 35 | 1980 | 1.0 |
| | OSP | Open | 1 | 35 | 1980 | 30.0 |
| | CPC | COVERED CARPORT/PATIO | 1 | 35 | 2009 | 96.0 |
Sketch
Property Image
Land
| 1 | RES 1 | Converted: Residential | 0.7438 | 32400.00 | 0.00 | 0.00 | 1.00 | $75,000 | $0 |
Roll Value History
| 2026 | N/A | N/A | N/A | N/A | N/A |
| 2025 | $405,270 | $75,000 | $0 | $480,270 | $480,270 |
| 2024 | $385,970 | $75,000 | $0 | $460,970 | $460,970 |
| 2023 | $385,970 | $75,000 | $0 | $460,970 | $460,970 |
| 2022 | $308,770 | $75,000 | $0 | $383,770 | $383,770 |
| 2021 | $294,070 | $75,000 | $0 | $369,070 | $369,070 |
| 2020 | $214,830 | $35,000 | $0 | $249,830 | $249,830 |
| 2019 | $214,830 | $35,000 | $0 | $249,830 | $249,830 |
| 2018 | $186,810 | $35,000 | $0 | $221,810 | $221,810 |
| 2017 | $177,910 | $35,000 | $0 | $212,910 | $212,910 |
| 2016 | $169,440 | $35,000 | $0 | $204,440 | $204,440 |
| 2015 | $161,370 | $35,000 | $0 | $196,370 | $196,370 |
| 2014 | $146,700 | $35,000 | $0 | $181,700 | $181,700 |
| 2013 | $146,700 | $35,000 | $0 | $181,700 | $181,700 |
| 2012 | $111,200 | $35,000 | $0 | $0 | $0 |
| 2011 | $97,900 | $35,000 | $0 | $0 | $0 |
| 2010 | $97,900 | $35,000 | $0 | $0 | $0 |
| 2009 | $116,700 | $25,000 | $0 | $0 | $0 |
| 2008 | $93,100 | $25,000 | $0 | $0 | $0 |
| 2007 | $93,100 | $25,000 | $0 | $0 | $0 |
Deed and Sales History
| 1 | 03/31/2021 | SWD | STATUTORY WARRANTY DEED | TOWNSEND ALLAN | RIMPLER GERALD R & JANET L | | | $385,000.00 | 141218 | 2021-03713 |
| 2 | 05/15/2006 | WARRANTY D | WARRANTY DEED | BOWELL, JORDAN R & REBECCA S | TOWNSEND, ALLAN | | | $152,000.00 | 110251 | 2006-05557 |
| 3 | 05/15/2006 | QCD | QUIT CLAIM DEED | TOWNSEND, TIFFANY | TOWNSEND, ALLAN | | | | 110250 | 2006-05556 |
| 4 | 05/12/2003 | WARRANTY D | WARRANTY DEED | BARTLETT, CHERYL L | BOWELL, JORDAN R & REBECCA S | | | $112,000.00 | 102057 | 2003-06901 |
| 5 | 06/29/1987 | WARRANTY D | WARRANTY DEED | | | | | $59,648.00 | 0 | 1658-704999 |
Payout Agreement
| No payout information available.. |