Property
Account |
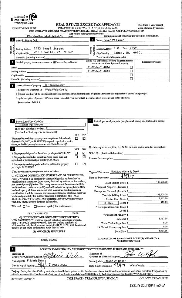
| Property ID: | 24941 | Abbreviated Legal Description: | WALLULA TOWNSHIP LOT 14 BLK 10 |
| Parcel Number: | 310714511014 | Agent Code: | |
| Type: | Real | | |
| Tax Area: | 327 - 400-5-WI-C-M | Land Use Code | 91 |
| Open Space: | N | DFL | N |
| Historic Property: | N | Remodel Property: | N |
| Multi-Family Redevelopment: | N | | |
| Township: | 7 | Section: | 14 |
| Range: | 31 |
Location |
| Address: | 194 COLUMBIA WAY WA 99323 | Mapsco: | |
| Neighborhood: | Wallula A Contig | Map ID: | |
| Neighborhood CD: | 213897 |
Owner |
| Name: | BAKER STEVEN W | Owner ID: | 61688 |
| Mailing Address: | PO BOX 2552 PASCO, WA 99301 | % Ownership: | 100.0000000000% |
| | | Exemptions: | |
Taxes and Assessment Details
Property Tax Information as of
02/21/2026
Click on "Statement Details" to expand or collapse a tax statement.
* Please enter a valid date ** Please enter a valid date *
Statement Details |
| | TOTAL: | $0.00 | $0.00 | $0.00 | $0.00 | $0.00 | $0.00 |
|
| | $0.00 | $0.00 | $0.00 | $0.00 | $0.00 | $0.00 |
Values
| (+) Improvement Homesite Value: | + | $0 | |
| (+) Improvement Non-Homesite Value: | + | $0 | |
| (+) Land Homesite Value: | + | $0 | |
| (+) Land Non-Homesite Value: | + | $8,180 | |
| (+) Curr Use (HS): | + | $0 | $0 |
| (+) Curr Use (NHS): | + | $0 | $0 |
| | | -------------------------- | |
| (=) Market Value: | = | $8,180 | |
| (–) Productivity Loss: | – | $0 | |
| | | -------------------------- | |
| (=) Subtotal: | = | $8,180 | |
| (+) Senior Appraised Value: | + | $0 | |
| (+) Non-Senior Appraised Value: | + | $8,180 | |
| | | -------------------------- | |
| (=) Total Appraised Value: | = | $8,180 | |
| (–) Senior Exemption Loss: | – | $0 | |
| (–) Exemption Loss: | – | $0 | |
| | | -------------------------- | |
| (=) Taxable Value: | = | $8,180 | |
Taxing Jurisdiction
| Owner: | BAKER STEVEN W | | |
| % Ownership: | 100.0000000000% | | |
| Total Value: | $8,180 | | |
| Tax Area: | 327 - 400-5-WI-C-M |
| CERFD | CURRENT EXPENSE REFUND 010 | 0.0000000000 | $8,180 | $8,180 | $0.00 | | |
| CURREXP | CURRENT EXPENSE 010 | 0.9851088983 | $8,180 | $8,180 | $8.06 | | |
| HUMNSERV | HUMAN SERVICES 119 | 0.0250000000 | $8,180 | $8,180 | $0.20 | | |
| SLDREL | SOLDIERS RELIEF 121 | 0.0155990000 | $8,180 | $8,180 | $0.13 | | |
| EMERGSER | EMS 147 | 0.3676811629 | $8,180 | $8,180 | $3.01 | | |
| EMSRFD | EMS REFUND 147 | 0.0000000000 | $8,180 | $8,180 | $0.00 | | |
| FD5EXP | FD #5 EXPENSE 689 | 1.1687305128 | $8,180 | $8,180 | $9.56 | | |
| RLBRFD | RURAL LIBRARY REFUND 623 | 0.0000000000 | $8,180 | $8,180 | $0.00 | | |
| RURALLIB | RURAL LIBRARY 623 | 0.3601547782 | $8,180 | $8,180 | $2.95 | | |
| PORTRFD | PORT REFUND 640 | 0.0000000000 | $8,180 | $8,180 | $0.00 | | |
| PORTWWGEN | PORT OF WW 640 | 0.2344301070 | $8,180 | $8,180 | $1.92 | | |
| SD400BOND | SD #400 BOND 793 | 0.0000000000 | $8,180 | $8,180 | $0.00 | | |
| SD400CAP | SD #400 CP 792 | 0.3211981044 | $8,180 | $8,180 | $2.63 | | |
| SD400GEN | SD #400 GENERAL 790 | 2.1312438929 | $8,180 | $8,180 | $17.43 | | |
| ST2 | STATE SCHOOL PART 2 600 | 0.8853714103 | $8,180 | $8,180 | $7.24 | | |
| STATESCHL | STATE SCHOOL 600 | 1.6424571473 | $8,180 | $8,180 | $13.44 | | |
| STREFUND | STATE REFUND LEVY 603 | 0.0000000000 | $8,180 | $8,180 | $0.00 | | |
| COROAD | COUNTY ROAD 115 | 1.6137667997 | $8,180 | $8,180 | $13.20 | | |
| CRPRD | COUNTY ROAD REFUND 115 | 0.0000000000 | $8,180 | $8,180 | $0.00 | | |
| | Total Tax Rate: | 9.7507418138 | | | | | |
| | | | | Taxes w/Current Exemptions: | $79.77 | | |
| | | | | Taxes w/o Exemptions: | $79.77 | | |
Improvement / Building
Sketch
| No sketches available for this property. |
Property Image
Land
| 1 | RES 1 | Converted: Residential | 0.1085 | 4725.00 | 0.00 | 0.00 | 1.00 | $8,180 | $0 |
Roll Value History
| 2026 | N/A | N/A | N/A | N/A | N/A |
| 2025 | $0 | $8,180 | $0 | $8,180 | $8,180 |
| 2024 | $0 | $8,180 | $0 | $8,180 | $8,180 |
| 2023 | $0 | $8,180 | $0 | $8,180 | $8,180 |
| 2022 | $0 | $8,180 | $0 | $8,180 | $8,180 |
| 2021 | $0 | $8,180 | $0 | $8,180 | $8,180 |
| 2020 | $0 | $3,300 | $0 | $3,300 | $3,300 |
| 2019 | $0 | $3,300 | $0 | $3,300 | $3,300 |
| 2018 | $0 | $3,300 | $0 | $3,300 | $3,300 |
| 2017 | $0 | $3,300 | $0 | $3,300 | $3,300 |
| 2016 | $0 | $3,300 | $0 | $3,300 | $3,300 |
| 2015 | $0 | $3,300 | $0 | $3,300 | $3,300 |
| 2014 | $0 | $3,300 | $0 | $3,300 | $3,300 |
| 2013 | $0 | $3,300 | $0 | $3,300 | $3,300 |
| 2012 | $0 | $3,300 | $0 | $0 | $0 |
| 2011 | $0 | $3,300 | $0 | $0 | $0 |
| 2010 | $0 | $3,300 | $0 | $0 | $0 |
| 2009 | $0 | $2,100 | $0 | $0 | $0 |
| 2008 | $0 | $2,100 | $0 | $0 | $0 |
| 2007 | $0 | $2,100 | $0 | $0 | $0 |
Deed and Sales History
| 1 | 09/08/2017 | SWD | STATUTORY WARRANTY DEED | DELU F MARIE | BAKER STEVEN W | | 2-PARCELS | $199,500.00 | 133176 | 2017-07069 |
|   | |
| 2 | 07/16/1997 | WARRANTY D | WARRANTY DEED | | | | | | 88519 | 2549-706430 |
Payout Agreement
| No payout information available.. |