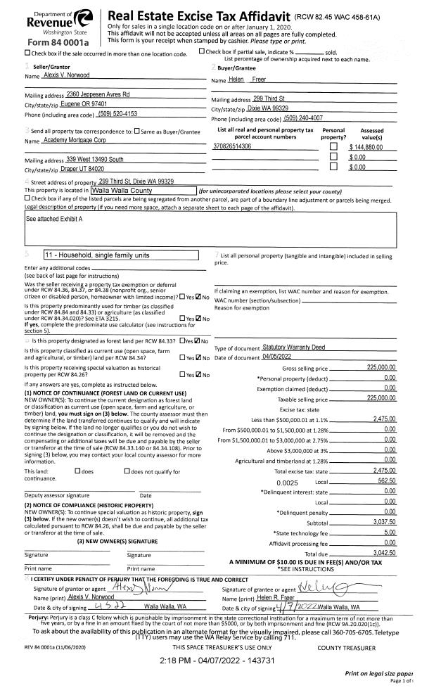
Property
Account |
| Property ID: | 24794 | Abbreviated Legal Description: | DIXIE LOTS 6 THRU 8 BLK 43 |
| Parcel Number: | 370826514306 | Agent Code: | |
| Type: | Real | | |
| Tax Area: | 310 - 101-8 | Land Use Code | 11 |
| Open Space: | N | DFL | N |
| Historic Property: | N | Remodel Property: | N |
| Multi-Family Redevelopment: | N | | |
| Township: | 8 | Section: | 26 |
| Range: | 37 |
Location |
| Address: | 299 THIRD ST WA 99329 | Mapsco: | |
| Neighborhood: | A Dixie MH | Map ID: | |
| Neighborhood CD: | 413561 |
Owner |
| Name: | FREER HELEN | Owner ID: | 71423 |
| Mailing Address: | PO BOX 221 DIXIE, WA 99329 | % Ownership: | 100.0000000000% |
| | | Exemptions: | |
Taxes and Assessment Details
Property Tax Information as of
02/21/2026
Click on "Statement Details" to expand or collapse a tax statement.
* Please enter a valid date ** Please enter a valid date *
Statement Details |
| | TOTAL: | $0.00 | $0.00 | $0.00 | $0.00 | $0.00 | $0.00 |
|
| | $0.00 | $0.00 | $0.00 | $0.00 | $0.00 | $0.00 |
Values
| (+) Improvement Homesite Value: | + | $0 | |
| (+) Improvement Non-Homesite Value: | + | $171,590 | |
| (+) Land Homesite Value: | + | $0 | |
| (+) Land Non-Homesite Value: | + | $39,750 | |
| (+) Curr Use (HS): | + | $0 | $0 |
| (+) Curr Use (NHS): | + | $0 | $0 |
| | | -------------------------- | |
| (=) Market Value: | = | $211,340 | |
| (–) Productivity Loss: | – | $0 | |
| | | -------------------------- | |
| (=) Subtotal: | = | $211,340 | |
| (+) Senior Appraised Value: | + | $0 | |
| (+) Non-Senior Appraised Value: | + | $211,340 | |
| | | -------------------------- | |
| (=) Total Appraised Value: | = | $211,340 | |
| (–) Senior Exemption Loss: | – | $0 | |
| (–) Exemption Loss: | – | $0 | |
| | | -------------------------- | |
| (=) Taxable Value: | = | $211,340 | |
Taxing Jurisdiction
| Owner: | FREER HELEN | | |
| % Ownership: | 100.0000000000% | | |
| Total Value: | $211,340 | | |
| Tax Area: | 310 - 101-8 |
| CERFD | CURRENT EXPENSE REFUND 010 | 0.0000000000 | $211,340 | $211,340 | $0.00 | | |
| CURREXP | CURRENT EXPENSE 010 | 1.0175366760 | $211,340 | $211,340 | $215.05 | | |
| HUMNSERV | HUMAN SERVICES 119 | 0.0250000000 | $211,340 | $211,340 | $5.28 | | |
| SLDREL | SOLDIERS RELIEF 121 | 0.0155990005 | $211,340 | $211,340 | $3.30 | | |
| EMERGSER | EMS 147 | 0.3792580840 | $211,340 | $211,340 | $80.15 | | |
| EMSRFD | EMS REFUND 147 | 0.0000000000 | $211,340 | $211,340 | $0.00 | | |
| FD8EXP | FD #8 EXPENSE 697 | 0.6647992540 | $211,340 | $211,340 | $140.50 | | |
| RLBRFD | RURAL LIBRARY REFUND 623 | 0.0000000000 | $211,340 | $211,340 | $0.00 | | |
| RURALLIB | RURAL LIBRARY 623 | 0.3710609029 | $211,340 | $211,340 | $78.42 | | |
| PORTRFD | PORT REFUND 640 | 0.0000000000 | $211,340 | $211,340 | $0.00 | | |
| PORTWWGEN | PORT OF WW 640 | 0.2460186015 | $211,340 | $211,340 | $51.99 | | |
| SD101CAP | SD #101 CAP 752 | 0.5894423472 | $211,340 | $211,340 | $124.57 | | |
| SD101GEN | SD #101 GENERAL 750 | 0.7455117868 | $211,340 | $211,340 | $157.56 | | |
| ST2 | STATE SCHOOL PART 2 600 | 0.8131451643 | $211,340 | $211,340 | $171.85 | | |
| STATESCHL | STATE SCHOOL 600 | 1.5158548041 | $211,340 | $211,340 | $320.36 | | |
| STREFUND | STATE REFUND LEVY 603 | 0.0000000000 | $211,340 | $211,340 | $0.00 | | |
| COROAD | COUNTY ROAD 115 | 1.6549953990 | $211,340 | $211,340 | $349.77 | | |
| CRPRD | COUNTY ROAD REFUND 115 | 0.0000000000 | $211,340 | $211,340 | $0.00 | | |
| | Total Tax Rate: | 8.0382220203 | | | | | |
| | | | | Taxes w/Current Exemptions: | $1,698.80 | | |
| | | | | Taxes w/o Exemptions: | $1,698.80 | | |
Improvement / Building
| Improvement #1: | MANUFACTURED HOME | State Code: | 11 | 1152.0 sqft | Value: | $171,590 |
| Exterior Wall: | METAL/STEEL | Heating/Cooling: | WARM & COOLED AIR | | Number of Bathrooms: | 2 | Number of Bedrooms: | 3 | | Plumbing: | 8 | Roof Covering: | COMP SHINGLE |
|
| | Type | Description | Class CD | Sub Class CD | Year Built | Area |
| | MOBHOME | MANUFACTURD HOMES | 1 | 30 | 1978 | 1152.0 |
| | MI1 | MH SET-UP COSTS | 1 | 30 | 1978 | 1.0 |
| | WOD | Wood Deck | 1 | 30 | 1978 | 168.0 |
| | DTG | Detached Garage | 1 | 30 | 1978 | 520.0 |
Sketch
Property Image
Land
| 1 | RES 1 | Converted: Residential | 0.3444 | 15000.00 | 0.00 | 0.00 | 1.00 | $39,750 | $0 |
Roll Value History
| 2026 | N/A | N/A | N/A | N/A | N/A |
| 2025 | $180,170 | $39,750 | $0 | $219,920 | $219,920 |
| 2024 | $171,590 | $39,750 | $0 | $211,340 | $211,340 |
| 2023 | $171,590 | $39,750 | $0 | $211,340 | $211,340 |
| 2022 | $153,120 | $27,100 | $0 | $180,220 | $180,220 |
| 2021 | $117,780 | $27,100 | $0 | $144,880 | $144,880 |
| 2020 | $112,170 | $27,100 | $0 | $139,270 | $139,270 |
| 2019 | $112,170 | $27,100 | $0 | $139,270 | $139,270 |
| 2018 | $106,830 | $27,100 | $0 | $133,930 | $133,930 |
| 2017 | $97,120 | $27,100 | $0 | $124,220 | $124,220 |
| 2016 | $43,160 | $27,100 | $0 | $70,260 | $70,260 |
| 2015 | $43,160 | $27,100 | $0 | $70,260 | $70,260 |
| 2014 | $41,100 | $27,100 | $0 | $68,200 | $68,200 |
| 2013 | $41,100 | $27,100 | $0 | $68,200 | $68,200 |
| 2012 | $41,100 | $27,100 | $0 | $0 | $0 |
| 2011 | $34,500 | $27,100 | $0 | $0 | $0 |
| 2010 | $34,500 | $27,100 | $0 | $0 | $0 |
| 2009 | $44,100 | $17,500 | $0 | $0 | $0 |
| 2008 | $44,100 | $17,500 | $0 | $0 | $0 |
| 2007 | $44,100 | $17,500 | $0 | $0 | $0 |
Deed and Sales History
| 1 | 04/07/2022 | SWD | STATUTORY WARRANTY DEED | NORWOOD ALEXIS V | FREER HELEN | | | $225,000.00 | 143731 | 2022-02926 |
| 2 | 08/25/2017 | SWD | STATUTORY WARRANTY DEED | YAW JAMES L & CHARITY A | NORWOOD ALEXIS V | | | $139,000.00 | 133079 | 2017-06634 |
Payout Agreement
| No payout information available.. |