Property
Account |
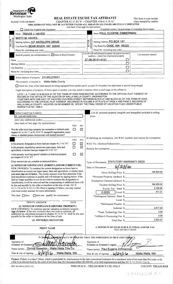
| Property ID: | 24793 | Abbreviated Legal Description: | DIXIE LOTS 1 AND 2 BLK 41 LOTS 11 AND 12 BLK 41 PLUS 1/2 VACCOCHRAN ST |
| Parcel Number: | 370826514101 | Agent Code: | |
| Type: | Real | | |
| Tax Area: | 310 - 101-8 | Land Use Code | 11 |
| Open Space: | N | DFL | N |
| Historic Property: | N | Remodel Property: | N |
| Multi-Family Redevelopment: | N | | |
| Township: | 8 | Section: | 26 |
| Range: | 37 |
Location |
| Address: | 215 THIRD ST WA 99329 | Mapsco: | |
| Neighborhood: | A Dixie MH | Map ID: | |
| Neighborhood CD: | 413561 |
Owner |
| Name: | ZIMMERMAN PAUL EUGENE | Owner ID: | 59047 |
| Mailing Address: | PO BOX 187 DIXIE, WA 99329 | % Ownership: | 100.0000000000% |
| | | Exemptions: | |
Taxes and Assessment Details
Values
| (+) Improvement Homesite Value: | + | $0 | |
| (+) Improvement Non-Homesite Value: | + | $219,430 | |
| (+) Land Homesite Value: | + | $0 | |
| (+) Land Non-Homesite Value: | + | $49,400 | |
| (+) Curr Use (HS): | + | $0 | $0 |
| (+) Curr Use (NHS): | + | $0 | $0 |
| | | -------------------------- | |
| (=) Market Value: | = | $268,830 | |
| (–) Productivity Loss: | – | $0 | |
| | | -------------------------- | |
| (=) Subtotal: | = | $268,830 | |
| (+) Senior Appraised Value: | + | $0 | |
| (+) Non-Senior Appraised Value: | + | $268,830 | |
| | | -------------------------- | |
| (=) Total Appraised Value: | = | $268,830 | |
| (–) Senior Exemption Loss: | – | $0 | |
| (–) Exemption Loss: | – | $0 | |
| | | -------------------------- | |
| (=) Taxable Value: | = | $268,830 | |
Taxing Jurisdiction
| Owner: | ZIMMERMAN PAUL EUGENE | | |
| % Ownership: | 100.0000000000% | | |
| Total Value: | $268,830 | | |
| Tax Area: | 310 - 101-8 |
| CERFD | CURRENT EXPENSE REFUND 010 | 0.0000000000 | $268,830 | $268,830 | $0.00 | | |
| CURREXP | CURRENT EXPENSE 010 | 1.0175366760 | $268,830 | $268,830 | $273.54 | | |
| HUMNSERV | HUMAN SERVICES 119 | 0.0250000000 | $268,830 | $268,830 | $6.72 | | |
| SLDREL | SOLDIERS RELIEF 121 | 0.0155990005 | $268,830 | $268,830 | $4.19 | | |
| EMERGSER | EMS 147 | 0.3792580840 | $268,830 | $268,830 | $101.96 | | |
| EMSRFD | EMS REFUND 147 | 0.0000000000 | $268,830 | $268,830 | $0.00 | | |
| FD8EXP | FD #8 EXPENSE 697 | 0.6647992540 | $268,830 | $268,830 | $178.72 | | |
| RLBRFD | RURAL LIBRARY REFUND 623 | 0.0000000000 | $268,830 | $268,830 | $0.00 | | |
| RURALLIB | RURAL LIBRARY 623 | 0.3710609029 | $268,830 | $268,830 | $99.75 | | |
| PORTRFD | PORT REFUND 640 | 0.0000000000 | $268,830 | $268,830 | $0.00 | | |
| PORTWWGEN | PORT OF WW 640 | 0.2460186015 | $268,830 | $268,830 | $66.14 | | |
| SD101CAP | SD #101 CAP 752 | 0.5894423472 | $268,830 | $268,830 | $158.46 | | |
| SD101GEN | SD #101 GENERAL 750 | 0.7455117868 | $268,830 | $268,830 | $200.42 | | |
| ST2 | STATE SCHOOL PART 2 600 | 0.8131451643 | $268,830 | $268,830 | $218.60 | | |
| STATESCHL | STATE SCHOOL 600 | 1.5158548041 | $268,830 | $268,830 | $407.51 | | |
| STREFUND | STATE REFUND LEVY 603 | 0.0000000000 | $268,830 | $268,830 | $0.00 | | |
| COROAD | COUNTY ROAD 115 | 1.6549953990 | $268,830 | $268,830 | $444.91 | | |
| CRPRD | COUNTY ROAD REFUND 115 | 0.0000000000 | $268,830 | $268,830 | $0.00 | | |
| | Total Tax Rate: | 8.0382220203 | | | | | |
| | | | | Taxes w/Current Exemptions: | $2,160.92 | | |
| | | | | Taxes w/o Exemptions: | $2,160.92 | | |
Improvement / Building
| Improvement #1: | MANUFACTURED HOME | State Code: | 11 | 1458.0 sqft | Value: | $219,430 |
| Exterior Wall: | PLYWOOD | Heating/Cooling: | HEAT PUMP | | Number of Bathrooms: | 2 | Number of Bedrooms: | 3 | | Plumbing: | 8 | Roof Covering: | COMP SHINGLE |
|
| | Type | Description | Class CD | Sub Class CD | Year Built | Area |
| | MOBHOME | MANUFACTURD HOMES | 1 | 40 | 1997 | 1458.0 |
| | MI1 | MH SET-UP COSTS | 1 | 40 | 1997 | 1.0 |
| | OSP | Open | 1 | 40 | 1997 | 32.0 |
| | BONU | BONUS ROOM W/FINISH | 1 | 40 | 1997 | 182.0 |
| | DTG | Detached Garage | 1 | 40 | 1997 | 960.0 |
Sketch
Property Image
Land
| 1 | RES 1 | Converted: Residential | 0.5969 | 26000.00 | 0.00 | 0.00 | 1.00 | $49,400 | $0 |
Roll Value History
| 2026 | N/A | N/A | N/A | N/A | N/A |
| 2025 | $230,400 | $49,400 | $0 | $279,800 | $279,800 |
| 2024 | $219,430 | $49,400 | $0 | $268,830 | $268,830 |
| 2023 | $219,430 | $49,400 | $0 | $268,830 | $268,830 |
| 2022 | $195,990 | $31,700 | $0 | $227,690 | $227,690 |
| 2021 | $130,660 | $31,700 | $0 | $162,360 | $162,360 |
| 2020 | $130,660 | $31,700 | $0 | $162,360 | $162,360 |
| 2019 | $130,660 | $31,700 | $0 | $162,360 | $162,360 |
| 2018 | $130,660 | $31,700 | $0 | $162,360 | $162,360 |
| 2017 | $130,660 | $31,700 | $0 | $162,360 | $162,360 |
| 2016 | $130,200 | $31,700 | $0 | $161,900 | $161,900 |
| 2015 | $130,200 | $31,700 | $0 | $161,900 | $161,900 |
| 2014 | $124,000 | $31,700 | $0 | $155,700 | $155,700 |
| 2013 | $124,000 | $31,700 | $0 | $155,700 | $155,700 |
| 2012 | $124,000 | $31,700 | $0 | $0 | $0 |
| 2011 | $115,600 | $31,700 | $0 | $0 | $0 |
| 2010 | $80,400 | $31,700 | $0 | $0 | $0 |
| 2009 | $93,300 | $18,800 | $0 | $0 | $0 |
| 2008 | $70,900 | $18,800 | $0 | $0 | $0 |
| 2007 | $70,900 | $18,800 | $0 | $0 | $0 |
Deed and Sales History
| 1 | 06/28/2016 | SWD | STATUTORY WARRANTY DEED | HAYES TRAVIS J & MISTY M | ZIMMERMAN PAUL EUGENE | | | $164,525.00 | 130508 | 2016-04978 |
| 2 | 07/18/2008 | WARRANTY D | WARRANTY DEED | YAW, RALPH L & LYNNE M | HAYES, TRAVIS J & MISTY M | | | $180,370.00 | 115351 | 2008-07356 |
Payout Agreement
| No payout information available.. |