Property
Account |
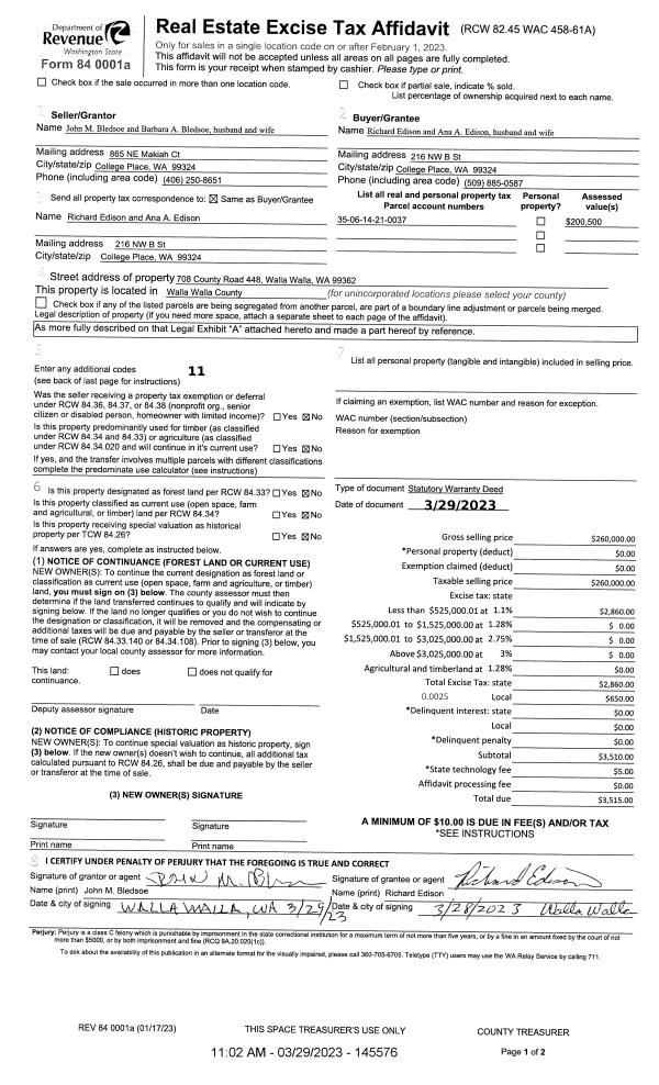
| Property ID: | 24786 | Abbreviated Legal Description: | 14-6-35 LOT D1 OF S/P (PTN TAX 4)(PT GOV LOT 2) |
| Parcel Number: | 350614210037 | Agent Code: | |
| Type: | Real | | |
| Tax Area: | 311 - 250-4 | Land Use Code | 91 |
| Open Space: | N | DFL | N |
| Historic Property: | N | Remodel Property: | N |
| Multi-Family Redevelopment: | N | | |
| Township: | 6 | Section: | 14 |
| Range: | 35 |
Location |
| Address: | 708 COUNTY RD 448 WA 99324 | Mapsco: | |
| Neighborhood: | LAND ONLY RURAL | Map ID: | |
| Neighborhood CD: | 215093 |
Owner |
| Name: | EDISON RICHARD & ANA A | Owner ID: | 73267 |
| Mailing Address: | 216 NW B ST COLLEGE PLACE, WA 99324 | % Ownership: | 100.0000000000% |
| | | Exemptions: | |
Taxes and Assessment Details
Property Tax Information as of
02/01/2026
Click on "Statement Details" to expand or collapse a tax statement.
* Please enter a valid date ** Please enter a valid date *
Statement Details |
| | TOTAL: | $0.00 | $0.00 | $0.00 | $0.00 | $0.00 | $0.00 |
|
| | $0.00 | $0.00 | $0.00 | $0.00 | $0.00 | $0.00 |
Values
| (+) Improvement Homesite Value: | + | $0 | |
| (+) Improvement Non-Homesite Value: | + | $0 | |
| (+) Land Homesite Value: | + | $0 | |
| (+) Land Non-Homesite Value: | + | $150,000 | |
| (+) Curr Use (HS): | + | $0 | $0 |
| (+) Curr Use (NHS): | + | $0 | $0 |
| | | -------------------------- | |
| (=) Market Value: | = | $150,000 | |
| (–) Productivity Loss: | – | $0 | |
| | | -------------------------- | |
| (=) Subtotal: | = | $150,000 | |
| (+) Senior Appraised Value: | + | $0 | |
| (+) Non-Senior Appraised Value: | + | $150,000 | |
| | | -------------------------- | |
| (=) Total Appraised Value: | = | $150,000 | |
| (–) Senior Exemption Loss: | – | $0 | |
| (–) Exemption Loss: | – | $0 | |
| | | -------------------------- | |
| (=) Taxable Value: | = | $150,000 | |
Taxing Jurisdiction
| Owner: | EDISON RICHARD & ANA A | | |
| % Ownership: | 100.0000000000% | | |
| Total Value: | $150,000 | | |
| Tax Area: | 311 - 250-4 |
| CERFD | CURRENT EXPENSE REFUND 010 | 0.0000000000 | $150,000 | $150,000 | $0.00 | | |
| CURREXP | CURRENT EXPENSE 010 | 1.0175366760 | $150,000 | $150,000 | $152.63 | | |
| HUMNSERV | HUMAN SERVICES 119 | 0.0250000000 | $150,000 | $150,000 | $3.75 | | |
| SLDREL | SOLDIERS RELIEF 121 | 0.0155990005 | $150,000 | $150,000 | $2.34 | | |
| EMERGSER | EMS 147 | 0.3792580840 | $150,000 | $150,000 | $56.89 | | |
| EMSRFD | EMS REFUND 147 | 0.0000000000 | $150,000 | $150,000 | $0.00 | | |
| FD4EXP | FD #4 EXPENSE 686 | 0.8836993059 | $150,000 | $150,000 | $132.55 | | |
| RLBRFD | RURAL LIBRARY REFUND 623 | 0.0000000000 | $150,000 | $150,000 | $0.00 | | |
| RURALLIB | RURAL LIBRARY 623 | 0.3710609029 | $150,000 | $150,000 | $55.66 | | |
| PORTRFD | PORT REFUND 640 | 0.0000000000 | $150,000 | $150,000 | $0.00 | | |
| PORTWWGEN | PORT OF WW 640 | 0.2460186015 | $150,000 | $150,000 | $36.90 | | |
| SD250BOND | SD #250 BOND 773 | 1.4560608159 | $150,000 | $150,000 | $218.41 | | |
| SD250GEN | SD #250 GENERAL 770 | 2.3880724087 | $150,000 | $150,000 | $358.21 | | |
| ST2 | STATE SCHOOL PART 2 600 | 0.8131451643 | $150,000 | $150,000 | $121.97 | | |
| STATESCHL | STATE SCHOOL 600 | 1.5158548041 | $150,000 | $150,000 | $227.38 | | |
| STREFUND | STATE REFUND LEVY 603 | 0.0000000000 | $150,000 | $150,000 | $0.00 | | |
| COROAD | COUNTY ROAD 115 | 1.6549953990 | $150,000 | $150,000 | $248.25 | | |
| CRPRD | COUNTY ROAD REFUND 115 | 0.0000000000 | $150,000 | $150,000 | $0.00 | | |
| | Total Tax Rate: | 10.7663011628 | | | | | |
| | | | | Taxes w/Current Exemptions: | $1,614.94 | | |
| | | | | Taxes w/o Exemptions: | $1,614.94 | | |
Improvement / Building
Sketch
| No sketches available for this property. |
Property Image
Land
| 1 | RES 1 | Converted: Residential | 1.0000 | 0.00 | 0.00 | 0.00 | 1.00 | $150,000 | $0 |
Roll Value History
| 2026 | N/A | N/A | N/A | N/A | N/A |
| 2025 | $0 | $150,000 | $0 | $150,000 | $150,000 |
| 2024 | $0 | $150,000 | $0 | $150,000 | $150,000 |
| 2023 | $0 | $150,000 | $0 | $150,000 | $150,000 |
| 2022 | $50,500 | $150,000 | $0 | $200,500 | $200,500 |
| 2021 | $42,080 | $150,000 | $0 | $192,080 | $192,080 |
| 2020 | $86,680 | $75,000 | $0 | $161,680 | $161,680 |
| 2019 | $86,680 | $75,000 | $0 | $161,680 | $161,680 |
| 2018 | $66,680 | $75,000 | $0 | $141,680 | $141,680 |
| 2017 | $63,500 | $75,000 | $0 | $138,500 | $138,500 |
| 2016 | $45,360 | $75,000 | $0 | $120,360 | $120,360 |
| 2015 | $43,200 | $75,000 | $0 | $118,200 | $118,200 |
| 2014 | $43,200 | $75,000 | $0 | $118,200 | $118,200 |
| 2013 | $43,200 | $75,000 | $0 | $118,200 | $118,200 |
| 2012 | $43,200 | $75,000 | $0 | $0 | $0 |
| 2011 | $43,200 | $75,000 | $0 | $0 | $0 |
| 2010 | $43,200 | $75,000 | $0 | $0 | $0 |
| 2009 | $78,200 | $45,000 | $0 | $0 | $0 |
| 2008 | $34,500 | $45,000 | $0 | $0 | $0 |
| 2007 | $34,500 | $45,000 | $0 | $0 | $0 |
Deed and Sales History
| 1 | 11/01/2024 | SWD | STATUTORY WARRANTY DEED | EDISON RICHARD & ANA A | BECKER JOSEPH E & TANYA SORENSON-BECKER | | | $269,900.00 | 148462 | 2024-06392 |
| 2 | 03/29/2023 | SWD | STATUTORY WARRANTY DEED | BLEDSOE JOHN M & BARBARA A | EDISON RICHARD & ANA A | | | $260,000.00 | 145576 | 2023-01584 |
| 3 | 05/25/2022 | MH AFFIDAV | MOBILE HOME AFFIDAVIT | DRONE GARY C | BLEDSOE JOHN M & BARBARA A | | | | 144024 | MHAFF-144024 |
| 4 | 03/25/2022 | MH AFFIDAV | MOBILE HOME AFFIDAVIT | DRONE GARY C | BLEDSOE JOHN M & BARBARA A | | | | 143618 | MHAFF-143618 |
| 5 | 03/25/2022 | SWD | STATUTORY WARRANTY DEED | DRONE GARY C | BLEDSOE JOHN M & BARBARA A | | | $225,000.00 | 143617 | 2022-02480 |
| 6 | 12/23/2014 | MH | MOBILE HOME | DRONE GARY C & MARGOT L | DRONE GARY C | | | $0.00 | 127166 | MHAFF-127166 |
Payout Agreement
| No payout information available.. |