Property
Account |
| Property ID: | 24758 | Abbreviated Legal Description: | HARRISON & RAY INC ADD LOT 22 BLK 4 |
| Parcel Number: | 300812570422 | Agent Code: | |
| Type: | Real | | |
| Tax Area: | 331 - 400-M-5-W4 | Land Use Code | 11 |
| Open Space: | N | DFL | N |
| Historic Property: | N | Remodel Property: | N |
| Multi-Family Redevelopment: | N | | |
| Township: | 8 | Section: | 12 |
| Range: | 30 |
Location |
| Address: | 139 COLUMBIA RD WA 99323 | Mapsco: | |
| Neighborhood: | Burbank A MH | Map ID: | |
| Neighborhood CD: | 213761 |
Owner |
| Name: | GUEVARA LILIA GONZALEZ | Owner ID: | 70357 |
| Mailing Address: | 485 COLEMAN PASS NE LUDOWICI, GA 31316 | % Ownership: | 100.0000000000% |
| | | Exemptions: | |
Taxes and Assessment Details
Property Tax Information as of
02/21/2026
Click on "Statement Details" to expand or collapse a tax statement.
* Please enter a valid date ** Please enter a valid date *
Statement Details |
| | TOTAL: | $0.00 | $0.00 | $0.00 | $0.00 | $0.00 | $0.00 |
|
| | $0.00 | $0.00 | $0.00 | $0.00 | $0.00 | $0.00 |
Values
| (+) Improvement Homesite Value: | + | $0 | |
| (+) Improvement Non-Homesite Value: | + | $22,280 | |
| (+) Land Homesite Value: | + | $0 | |
| (+) Land Non-Homesite Value: | + | $60,190 | |
| (+) Curr Use (HS): | + | $0 | $0 |
| (+) Curr Use (NHS): | + | $0 | $0 |
| | | -------------------------- | |
| (=) Market Value: | = | $82,470 | |
| (–) Productivity Loss: | – | $0 | |
| | | -------------------------- | |
| (=) Subtotal: | = | $82,470 | |
| (+) Senior Appraised Value: | + | $0 | |
| (+) Non-Senior Appraised Value: | + | $82,470 | |
| | | -------------------------- | |
| (=) Total Appraised Value: | = | $82,470 | |
| (–) Senior Exemption Loss: | – | $0 | |
| (–) Exemption Loss: | – | $0 | |
| | | -------------------------- | |
| (=) Taxable Value: | = | $82,470 | |
Taxing Jurisdiction
| Owner: | GUEVARA LILIA GONZALEZ | | |
| % Ownership: | 100.0000000000% | | |
| Total Value: | $82,470 | | |
| Tax Area: | 331 - 400-M-5-W4 |
| CERFD | CURRENT EXPENSE REFUND 010 | 0.0000000000 | $82,470 | $82,470 | $0.00 | | |
| CURREXP | CURRENT EXPENSE 010 | 1.0175366760 | $82,470 | $82,470 | $83.92 | | |
| HUMNSERV | HUMAN SERVICES 119 | 0.0250000000 | $82,470 | $82,470 | $2.06 | | |
| SLDREL | SOLDIERS RELIEF 121 | 0.0155990005 | $82,470 | $82,470 | $1.29 | | |
| EMERGSER | EMS 147 | 0.3792580840 | $82,470 | $82,470 | $31.28 | | |
| EMSRFD | EMS REFUND 147 | 0.0000000000 | $82,470 | $82,470 | $0.00 | | |
| FD5EXP | FD #5 EXPENSE 689 | 1.2045331840 | $82,470 | $82,470 | $99.34 | | |
| RLBRFD | RURAL LIBRARY REFUND 623 | 0.0000000000 | $82,470 | $82,470 | $0.00 | | |
| RURALLIB | RURAL LIBRARY 623 | 0.3710609029 | $82,470 | $82,470 | $30.60 | | |
| PORTRFD | PORT REFUND 640 | 0.0000000000 | $82,470 | $82,470 | $0.00 | | |
| PORTWWGEN | PORT OF WW 640 | 0.2460186015 | $82,470 | $82,470 | $20.29 | | |
| SD400BOND | SD #400 BOND 793 | 0.0000000000 | $82,470 | $82,470 | $0.00 | | |
| SD400CAP | SD #400 CP 792 | 0.3443722657 | $82,470 | $82,470 | $28.40 | | |
| SD400GEN | SD #400 GENERAL 790 | 1.9278469916 | $82,470 | $82,470 | $158.99 | | |
| ST2 | STATE SCHOOL PART 2 600 | 0.8131451643 | $82,470 | $82,470 | $67.06 | | |
| STATESCHL | STATE SCHOOL 600 | 1.5158548041 | $82,470 | $82,470 | $125.01 | | |
| STREFUND | STATE REFUND LEVY 603 | 0.0000000000 | $82,470 | $82,470 | $0.00 | | |
| COROAD | COUNTY ROAD 115 | 1.6549953990 | $82,470 | $82,470 | $136.49 | | |
| CRPRD | COUNTY ROAD REFUND 115 | 0.0000000000 | $82,470 | $82,470 | $0.00 | | |
| | Total Tax Rate: | 9.5152210736 | | | | | |
| | | | | Taxes w/Current Exemptions: | $784.73 | | |
| | | | | Taxes w/o Exemptions: | $784.73 | | |
Improvement / Building
| Improvement #1: | MANUFACTURED HOME | State Code: | 11 | 1252.0 sqft | Value: | $22,280 |
| Exterior Wall: | RIBBED ALUMINUM | Heating/Cooling: | FORCED AIR | | Number of Bathrooms: | 1 | Number of Bedrooms: | 2 | | Plumbing: | 7 | Roof Covering: | GALVANIZED METAL |
|
| | Type | Description | Class CD | Sub Class CD | Year Built | Area |
| | MOBHOME | MANUFACTURD HOMES | 1 | 20 | 1969 | 1252.0 |
| | MI1 | MH SET-UP COSTS | 1 | 20 | 1969 | 1.0 |
| | WOD | Wood Deck | 1 | 20 | 1969 | 96.0 |
Sketch
Property Image
Land
| 1 | RES 1 | Converted: Residential | 0.3177 | 13837.00 | 0.00 | 0.00 | 1.00 | $60,190 | $0 |
Roll Value History
| 2026 | N/A | N/A | N/A | N/A | N/A |
| 2025 | $20,050 | $60,190 | $0 | $80,240 | $80,240 |
| 2024 | $22,280 | $60,190 | $0 | $82,470 | $82,470 |
| 2023 | $22,280 | $60,190 | $0 | $82,470 | $82,470 |
| 2022 | $22,280 | $60,190 | $0 | $82,470 | $82,470 |
| 2021 | $22,280 | $60,190 | $0 | $82,470 | $82,470 |
| 2020 | $51,540 | $23,400 | $0 | $74,940 | $74,940 |
| 2019 | $51,540 | $23,400 | $0 | $74,940 | $74,940 |
| 2018 | $39,650 | $23,400 | $0 | $63,050 | $63,050 |
| 2017 | $28,320 | $23,400 | $0 | $51,720 | $51,720 |
| 2016 | $14,160 | $23,400 | $0 | $37,560 | $37,560 |
| 2015 | $11,800 | $23,400 | $0 | $35,200 | $35,200 |
| 2014 | $11,800 | $23,400 | $0 | $35,200 | $35,200 |
| 2013 | $11,800 | $23,400 | $0 | $35,200 | $35,200 |
| 2012 | $18,000 | $23,400 | $0 | $0 | $0 |
| 2011 | $28,400 | $23,400 | $0 | $0 | $0 |
| 2010 | $28,400 | $23,400 | $0 | $0 | $0 |
| 2009 | $34,500 | $19,500 | $0 | $0 | $0 |
| 2008 | $31,900 | $19,500 | $0 | $0 | $0 |
| 2007 | $31,900 | $19,500 | $0 | $0 | $0 |
Deed and Sales History
| 1 | 03/18/2025 | MH AFFIDAV | MOBILE HOME AFFIDAVIT | GUEVARA LILIA GONZALEZ | BRISENO JOSE JUAN GUTIERREZ | | | | 149085 | MHAFF-149085 |
| 2 | 03/18/2025 | QCD | QUIT CLAIM DEED | GUEVARA LILIA GONZALEZ | BRISENO JOSE JUAN GUTIERREZ | | | $80,000.00 | 149084 | 2025-01423 |
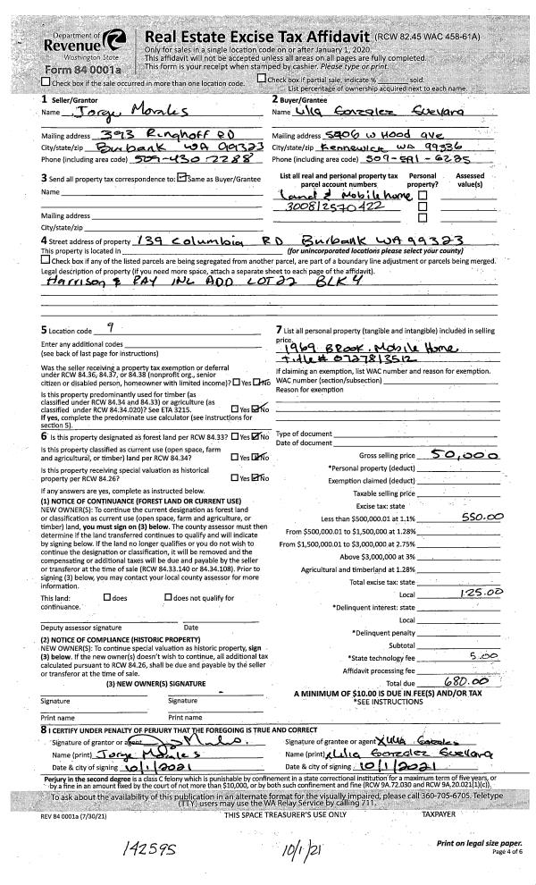
| 3 | 10/01/2021 | MH AFFIDAV | MOBILE HOME AFFIDAVIT | MORALES JORGE A | GUEVARA LILIA GONZALEZ | | | | 142596 | MHAFF-142596 |
| 4 | 10/01/2021 | QCD | QUIT CLAIM DEED | MORALES JORGE A | GUEVARA LILIA GONZALEZ | | | $50,000.00 | 142595 | 2021-12060 |
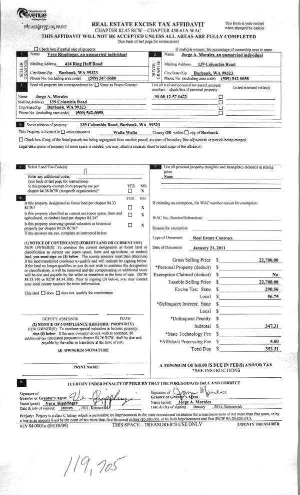
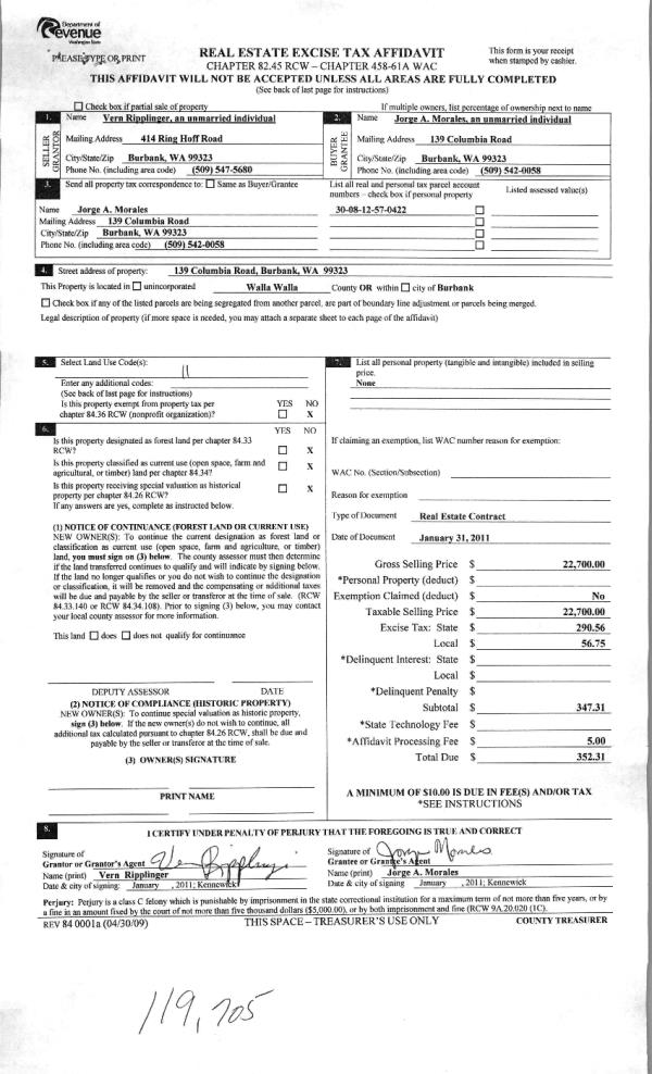
| 5 | 03/15/2012 | WARRANTY D | WARRANTY DEED | RIPPLINGER, VERN | MORALES, JORGE A | | | | 119705 | 2012-02170 |
| 6 | 02/04/2011 | WARRANTY D | WARRANTY DEED | RIPPLINGER, VERN | MORALES, JORGE A | | | $22,700.00 | 119705 | 2011-01153 |
| 7 | 02/04/2011 | WARRANTY D | WARRANTY DEED | RIPPLINGER, VERN | MORALES, JORGES A | | | $0.00 | 119706 | -119706 |
| 8 | 09/28/2007 | WARRANTY D | WARRANTY DEED | WASHINGTON MUTUAL BANK | RIPPLINGER, VERN | | | $18,000.00 | 113782 | 2007-11351 |
| 9 | 08/31/2006 | WARRANTY D | WARRANTY DEED | NORTHWEST TRUSTEE SERVICES INC | WASHINGTON MUTUAL BANK | | | $31,884.00 | 111122 | 2006-10562 |
| 10 | 07/23/2004 | QCD | QUIT CLAIM DEED | HORROCKS, BEVERLY J | MORA, TAMMY | | | | 105314 | 2004-08364 |
| 11 | 10/19/1994 | WARRANTY D | WARRANTY DEED | | | | | $51,500.00 | 82838 | 2249-412226 |
Payout Agreement
| No payout information available.. |