Property
Account |
| Property ID: | 24744 | Abbreviated Legal Description: | COLUMBIA VIEW #3 LOT 8 BLK 5 |
| Parcel Number: | 300812550508 | Agent Code: | |
| Type: | Real | | |
| Tax Area: | 328 - 400-M-5 | Land Use Code | 11 |
| Open Space: | N | DFL | N |
| Historic Property: | N | Remodel Property: | N |
| Multi-Family Redevelopment: | N | | |
| Township: | 8 | Section: | 12 |
| Range: | 30 |
Location |
| Address: | 393 RINGHOFF RD WA 99323 | Mapsco: | |
| Neighborhood: | Burbank A MH | Map ID: | |
| Neighborhood CD: | 213761 |
Owner |
| Name: | SANDOVAL ALMA A | Owner ID: | 72144 |
| Mailing Address: | 393 RINGHOFF RD BURBANK, WA 99323 | % Ownership: | 100.0000000000% |
| | | Exemptions: | |
Taxes and Assessment Details
Property Tax Information as of
02/21/2026
Click on "Statement Details" to expand or collapse a tax statement.
* Please enter a valid date ** Please enter a valid date *
Statement Details |
| | TOTAL: | $0.00 | $0.00 | $0.00 | $0.00 | $0.00 | $0.00 |
|
| | $0.00 | $0.00 | $0.00 | $0.00 | $0.00 | $0.00 |
Values
| (+) Improvement Homesite Value: | + | $0 | |
| (+) Improvement Non-Homesite Value: | + | $148,830 | |
| (+) Land Homesite Value: | + | $0 | |
| (+) Land Non-Homesite Value: | + | $70,000 | |
| (+) Curr Use (HS): | + | $0 | $0 |
| (+) Curr Use (NHS): | + | $0 | $0 |
| | | -------------------------- | |
| (=) Market Value: | = | $218,830 | |
| (–) Productivity Loss: | – | $0 | |
| | | -------------------------- | |
| (=) Subtotal: | = | $218,830 | |
| (+) Senior Appraised Value: | + | $0 | |
| (+) Non-Senior Appraised Value: | + | $218,830 | |
| | | -------------------------- | |
| (=) Total Appraised Value: | = | $218,830 | |
| (–) Senior Exemption Loss: | – | $0 | |
| (–) Exemption Loss: | – | $0 | |
| | | -------------------------- | |
| (=) Taxable Value: | = | $218,830 | |
Taxing Jurisdiction
| Owner: | SANDOVAL ALMA A | | |
| % Ownership: | 100.0000000000% | | |
| Total Value: | $218,830 | | |
| Tax Area: | 328 - 400-M-5 |
| CERFD | CURRENT EXPENSE REFUND 010 | 0.0000000000 | $218,830 | $218,830 | $0.00 | | |
| CURREXP | CURRENT EXPENSE 010 | 1.0175366760 | $218,830 | $218,830 | $222.67 | | |
| HUMNSERV | HUMAN SERVICES 119 | 0.0250000000 | $218,830 | $218,830 | $5.47 | | |
| SLDREL | SOLDIERS RELIEF 121 | 0.0155990005 | $218,830 | $218,830 | $3.41 | | |
| EMERGSER | EMS 147 | 0.3792580840 | $218,830 | $218,830 | $82.99 | | |
| EMSRFD | EMS REFUND 147 | 0.0000000000 | $218,830 | $218,830 | $0.00 | | |
| FD5EXP | FD #5 EXPENSE 689 | 1.2045331840 | $218,830 | $218,830 | $263.59 | | |
| RLBRFD | RURAL LIBRARY REFUND 623 | 0.0000000000 | $218,830 | $218,830 | $0.00 | | |
| RURALLIB | RURAL LIBRARY 623 | 0.3710609029 | $218,830 | $218,830 | $81.20 | | |
| PORTRFD | PORT REFUND 640 | 0.0000000000 | $218,830 | $218,830 | $0.00 | | |
| PORTWWGEN | PORT OF WW 640 | 0.2460186015 | $218,830 | $218,830 | $53.84 | | |
| SD400BOND | SD #400 BOND 793 | 0.0000000000 | $218,830 | $218,830 | $0.00 | | |
| SD400CAP | SD #400 CP 792 | 0.3443722657 | $218,830 | $218,830 | $75.36 | | |
| SD400GEN | SD #400 GENERAL 790 | 1.9278469916 | $218,830 | $218,830 | $421.87 | | |
| ST2 | STATE SCHOOL PART 2 600 | 0.8131451643 | $218,830 | $218,830 | $177.94 | | |
| STATESCHL | STATE SCHOOL 600 | 1.5158548041 | $218,830 | $218,830 | $331.71 | | |
| STREFUND | STATE REFUND LEVY 603 | 0.0000000000 | $218,830 | $218,830 | $0.00 | | |
| COROAD | COUNTY ROAD 115 | 1.6549953990 | $218,830 | $218,830 | $362.16 | | |
| CRPRD | COUNTY ROAD REFUND 115 | 0.0000000000 | $218,830 | $218,830 | $0.00 | | |
| | Total Tax Rate: | 9.5152210736 | | | | | |
| | | | | Taxes w/Current Exemptions: | $2,082.21 | | |
| | | | | Taxes w/o Exemptions: | $2,082.21 | | |
Improvement / Building
| Improvement #1: | MANUFACTURED HOME | State Code: | 11 | 1344.0 sqft | Value: | $148,830 |
| Exterior Wall: | PLYWOOD | Heating/Cooling: | WARM & COOLED AIR | | Number of Bathrooms: | 2 | Number of Bedrooms: | 3 | | Plumbing: | 8 | Roof Covering: | GALVANIZED METAL |
|
| | Type | Description | Class CD | Sub Class CD | Year Built | Area |
| | MOBHOME | MANUFACTURD HOMES | 1 | 20 | 1976 | 1344.0 |
| | MI1 | MH SET-UP COSTS | 1 | 20 | 1976 | 1.0 |
| | UTST | Utility Storage Shed | 1 | 20 | 1976 | 375.0 |
| | WOD | Wood Deck | 1 | 20 | 1976 | 54.0 |
Sketch
Property Image
Land
| 1 | RES 1 | Converted: Residential | 1.0000 | 0.00 | 0.00 | 0.00 | 1.00 | $70,000 | $0 |
Roll Value History
| 2026 | N/A | N/A | N/A | N/A | N/A |
| 2025 | $148,830 | $70,000 | $0 | $218,830 | $218,830 |
| 2024 | $148,830 | $70,000 | $0 | $218,830 | $218,830 |
| 2023 | $148,830 | $70,000 | $0 | $218,830 | $218,830 |
| 2022 | $148,830 | $70,000 | $0 | $218,830 | $218,830 |
| 2021 | $64,710 | $70,000 | $0 | $134,710 | $134,710 |
| 2020 | $22,000 | $38,300 | $0 | $60,300 | $60,300 |
| 2019 | $22,000 | $38,300 | $0 | $60,300 | $60,300 |
| 2018 | $20,950 | $38,300 | $0 | $59,250 | $59,250 |
| 2017 | $19,950 | $38,300 | $0 | $58,250 | $58,250 |
| 2016 | $6,650 | $38,300 | $0 | $44,950 | $44,950 |
| 2015 | $13,300 | $38,300 | $0 | $51,600 | $51,600 |
| 2014 | $13,300 | $38,300 | $0 | $51,600 | $51,600 |
| 2013 | $13,300 | $38,300 | $0 | $51,600 | $51,600 |
| 2012 | $13,300 | $38,300 | $0 | $0 | $0 |
| 2011 | $13,300 | $38,300 | $0 | $0 | $0 |
| 2010 | $13,300 | $38,300 | $0 | $0 | $0 |
| 2009 | $14,500 | $35,000 | $0 | $0 | $0 |
| 2008 | $14,500 | $35,000 | $0 | $0 | $0 |
| 2007 | $14,500 | $35,000 | $0 | $0 | $0 |
Deed and Sales History
| 1 | 08/29/2022 | MH AFFIDAV | MOBILE HOME AFFIDAVIT | MORALES JORGE & MIREYA | SANDOVAL ALMA A | | | | 144579 | MHAFF-144579 |
| 2 | 08/29/2022 | QCD | QUIT CLAIM DEED | MORALES JORGE & MIREYA | SANDOVAL ALMA A | | | $50,000.00 | 144578 | 2022-07229 |
| 3 | 08/29/2022 | FUL | FULFILLMENT DEED | RIPPLINGER VERN | MORALES JORGE & MIREYA | | | | 0 | 2022-07229 |
| 4 | 01/07/2021 | FUL | FULFILLMENT DEED | RIPPLINGER VERN | MORALES JORGE & MIREYA | | | | 131729 | 2021-00227 |
| 5 | 01/06/2017 | MH AFFIDAV | MOBILE HOME AFFIDAVIT | RIPPLINGER VERN | MORALES JORGE & MIREYA | | | | 131731 | MHAFF-131731 |
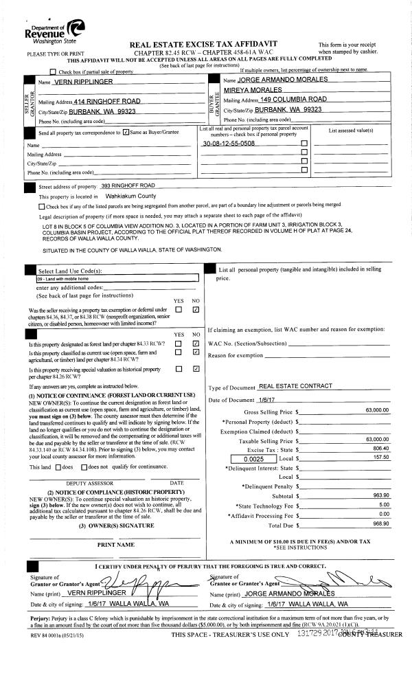
| 6 | 01/06/2017 | REAL ESTAT | REAL ESTATE CONTRACT | RIPPLINGER VERN | MORALES JORGE & MIREYA | | | $63,000.00 | 131729 | 2017-00178 |
| 7 | 05/15/2015 | MH AFFIDAV | MOBILE HOME AFFIDAVIT | VIEYRA LUIS S | RIPPLINGER VERN | | | | 127981 | MHAFF-127981 |
| 8 | 05/15/2015 | SWD | STATUTORY WARRANTY DEED | VIEYRA LUIS S | RIPPLINGER VERN | | | $33,000.00 | 127980 | 2015-04134 |
Payout Agreement
| No payout information available.. |