| 1 | 07/28/2021 | SACD | SELLER'S ASSG OF CONTRACT&DEED | STALDER GERALD L & PEGGY L | STALDER GERALD L | | | | 142031 | 2021-08564 |
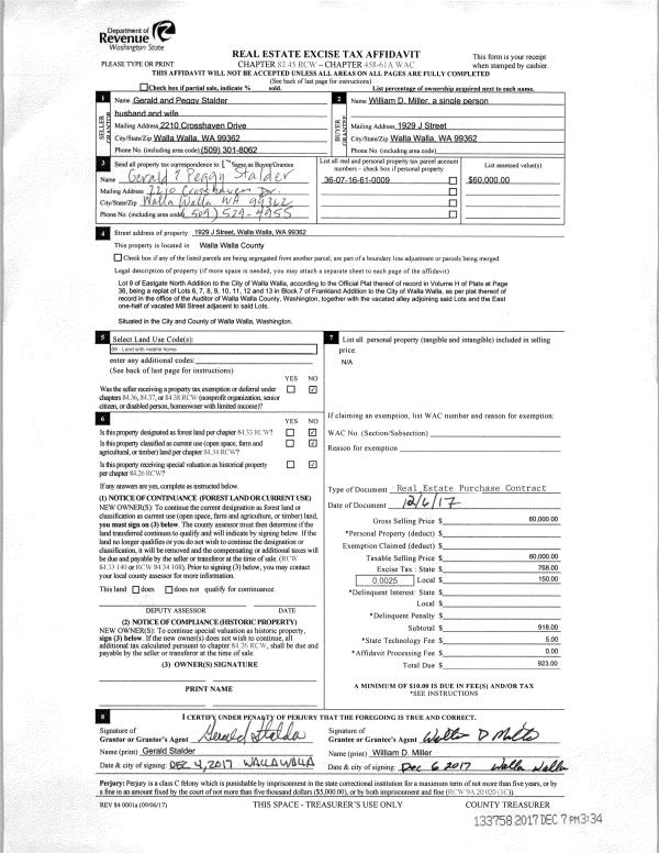
| 2 | 12/07/2017 | REAL ESTAT | REAL ESTATE CONTRACT | STALDER GERALD L & PEGGY L | MILLER WILLIAM D | | | $60,000.00 | 133758 | 2017-09829 |
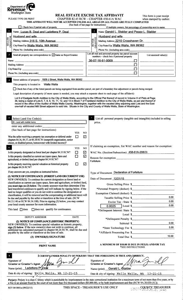
| 3 | 12/21/2015 | DECF | DECLARATION OF FOREFEITURE | DEAL LUCAS B & LADETTRA P | STALDER GERALD L & PEGGY L | | | $0.00 | 129374 | 2015-10861 |
| 4 | 02/28/2011 | WARRANTY D | WARRANTY DEED | STALDER, GERALD L & PEGGY L | DEAL, LUCAS B & LADETTRA P | | | $85,000.00 | 119804 | 2011-01849 |
| 5 | 02/28/2011 | WARRANTY D | WARRANTY DEED | STALDER, GERALD L & PEGGY L | DEAL, LUCAS B & LADETTERA P | | | $0.00 | 119805 | -119805 |
| 6 | 08/24/2009 | QCD | QUIT CLAIM DEED | STALDER, PEGGY L AS TRUSTEE OF | STALDER, GERALD L & PEGGY L | | | | 117221 | 2009-08579 |
| 7 | 06/08/2006 | WARRANTY D | WARRANTY DEED | CORBETT, DAVID | STALDER, PEGGY L AS TRUSTEE OF | | | $65,000.00 | 110466 | 2006-06654 |
| 8 | 05/09/2006 | WARRANTY D | WARRANTY DEED | FISCHER, WENDY R | CORBETT, DAVID | | | $42,500.00 | 110216 | 2006-05302 |
| 9 | 04/26/2006 | WARRANTY D | WARRANTY DEED | MILLER, RALPH D & JOAN E | BRANNOCK, NEIL & WENDY | | | | 89982 | 2006-04686 |
| 10 | 03/05/1998 | WARRANTY D | WARRANTY DEED | | | | | $40,000.00 | 89982 | 2639-802308 |