Property
Account |
| Property ID: | 24725 | Abbreviated Legal Description: | 29-7-35 LOT 2 OF SHORTPLAT (ELY 330' OF WLY 1/2 OF SE1/4SE1/4LESS RD |
| Parcel Number: | 350729440005 | Agent Code: | |
| Type: | Real | | |
| Tax Area: | 311 - 250-4 | Land Use Code | 81 |
| Open Space: | N | DFL | N |
| Historic Property: | N | Remodel Property: | N |
| Multi-Family Redevelopment: | N | | |
| Township: | 7 | Section: | 29 |
| Range: | 35 |
Location |
| Address: | 76 LAST CHANCE RD WA 99324 | Mapsco: | |
| Neighborhood: | 0 Farm | Map ID: | |
| Neighborhood CD: | 3230 |
Owner |
| Name: | HINER GENE E & NICKI L | Owner ID: | 61594 |
| Mailing Address: | 76 LAST CHANCE RD WALLA WALLA, WA 99362 | % Ownership: | 100.0000000000% |
| | | Exemptions: | |
Taxes and Assessment Details
Values
| (+) Improvement Homesite Value: | + | $0 | |
| (+) Improvement Non-Homesite Value: | + | $336,880 | |
| (+) Land Homesite Value: | + | $120,000 | |
| (+) Land Non-Homesite Value: | + | $45,000 | |
| (+) Curr Use (HS): | + | $0 | $0 |
| (+) Curr Use (NHS): | + | $0 | $0 |
| | | -------------------------- | |
| (=) Market Value: | = | $501,880 | |
| (–) Productivity Loss: | – | $0 | |
| | | -------------------------- | |
| (=) Subtotal: | = | $501,880 | |
| (+) Senior Appraised Value: | + | $0 | |
| (+) Non-Senior Appraised Value: | + | $501,880 | |
| | | -------------------------- | |
| (=) Total Appraised Value: | = | $501,880 | |
| (–) Senior Exemption Loss: | – | $0 | |
| (–) Exemption Loss: | – | $0 | |
| | | -------------------------- | |
| (=) Taxable Value: | = | $501,880 | |
Taxing Jurisdiction
| Owner: | HINER GENE E & NICKI L | | |
| % Ownership: | 100.0000000000% | | |
| Total Value: | $501,880 | | |
| Tax Area: | 311 - 250-4 |
| CERFD | CURRENT EXPENSE REFUND 010 | 0.0000000000 | $501,880 | $501,880 | $0.00 | | |
| CURREXP | CURRENT EXPENSE 010 | 1.0175366760 | $501,880 | $501,880 | $510.68 | | |
| HUMNSERV | HUMAN SERVICES 119 | 0.0250000000 | $501,880 | $501,880 | $12.55 | | |
| SLDREL | SOLDIERS RELIEF 121 | 0.0155990005 | $501,880 | $501,880 | $7.83 | | |
| EMERGSER | EMS 147 | 0.3792580840 | $501,880 | $501,880 | $190.34 | | |
| EMSRFD | EMS REFUND 147 | 0.0000000000 | $501,880 | $501,880 | $0.00 | | |
| FD4EXP | FD #4 EXPENSE 686 | 0.8836993059 | $501,880 | $501,880 | $443.51 | | |
| RLBRFD | RURAL LIBRARY REFUND 623 | 0.0000000000 | $501,880 | $501,880 | $0.00 | | |
| RURALLIB | RURAL LIBRARY 623 | 0.3710609029 | $501,880 | $501,880 | $186.23 | | |
| PORTRFD | PORT REFUND 640 | 0.0000000000 | $501,880 | $501,880 | $0.00 | | |
| PORTWWGEN | PORT OF WW 640 | 0.2460186015 | $501,880 | $501,880 | $123.47 | | |
| SD250BOND | SD #250 BOND 773 | 1.4560608159 | $501,880 | $501,880 | $730.77 | | |
| SD250GEN | SD #250 GENERAL 770 | 2.3880724087 | $501,880 | $501,880 | $1,198.53 | | |
| ST2 | STATE SCHOOL PART 2 600 | 0.8131451643 | $501,880 | $501,880 | $408.10 | | |
| STATESCHL | STATE SCHOOL 600 | 1.5158548041 | $501,880 | $501,880 | $760.78 | | |
| STREFUND | STATE REFUND LEVY 603 | 0.0000000000 | $501,880 | $501,880 | $0.00 | | |
| COROAD | COUNTY ROAD 115 | 1.6549953990 | $501,880 | $501,880 | $830.61 | | |
| CRPRD | COUNTY ROAD REFUND 115 | 0.0000000000 | $501,880 | $501,880 | $0.00 | | |
| | Total Tax Rate: | 10.7663011628 | | | | | |
| | | | | Taxes w/Current Exemptions: | $5,403.40 | | |
| | | | | Taxes w/o Exemptions: | $5,403.40 | | |
Improvement / Building
| Improvement #1: | MANUFACTURED HOME | State Code: | 81 | 1920.0 sqft | Value: | $336,880 |
| Exterior Wall: | PLYWOOD | Heating/Cooling: | HEAT PUMP | | Number of Bathrooms: | 2 | Number of Bedrooms: | 3 | | Plumbing: | 10 | Roof Covering: | COMP SHINGLE |
|
| | Type | Description | Class CD | Sub Class CD | Year Built | Area |
| | MOBHOME | MANUFACTURD HOMES | 1 | 40 | 2006 | 1920.0 |
| | MI1 | MH SET-UP COSTS | 1 | 40 | 2006 | 1.0 |
| | WDR | WOOD DECK W/ROOF | 1 | 40 | 2006 | 320.0 |
| | POLE | POLE UTILITY BUILDING | 1 | 40 | 2009 | 2774.0 |
| | UTIL-STOR | UTILITY STORAGE | 1 | 40 | 2006 | 180.0 |
| | LOAF-SHED | LOAFING SHED | 1 | 40 | 2006 | 360.0 |
| | RESUTST | RESIDENTIAL UTILITY STORAGE | 1 | 40 | 2006 | 150.0 |
| | LOAF-SHED | LOAFING SHED | 1 | 40 | 2006 | 720.0 |
| | POL3 | POLE BUILDING-CON,ELEC,INSU | 1 | 40 | 2006 | 1152.0 |
Sketch
Property Image
Land
| 1 | HS-120,000 | Homesite 120,000 | 1.0000 | 0.00 | 0.00 | 0.00 | 1.00 | $120,000 | $0 |
| 2 | 5000-C1-I | 5000-C1 Irrigation | 9.0000 | 0.00 | 0.00 | 0.00 | 1.00 | $45,000 | $0 |
Roll Value History
| 2026 | N/A | N/A | N/A | N/A | N/A |
| 2025 | $336,880 | $165,000 | $0 | $501,880 | $501,880 |
| 2024 | $336,880 | $165,000 | $0 | $501,880 | $501,880 |
| 2023 | $336,880 | $165,000 | $0 | $501,880 | $501,880 |
| 2022 | $263,330 | $165,000 | $0 | $428,330 | $428,330 |
| 2021 | $178,640 | $120,000 | $0 | $298,640 | $298,640 |
| 2020 | $178,640 | $120,000 | $0 | $298,640 | $298,640 |
| 2019 | $178,640 | $120,000 | $0 | $298,640 | $298,640 |
| 2018 | $178,640 | $120,000 | $0 | $298,640 | $298,640 |
| 2017 | $178,640 | $120,000 | $0 | $298,640 | $298,640 |
| 2016 | $178,640 | $120,000 | $0 | $298,640 | $298,640 |
| 2015 | $123,100 | $120,000 | $0 | $243,100 | $243,100 |
| 2014 | $123,100 | $120,000 | $0 | $243,100 | $243,100 |
| 2013 | $123,100 | $120,000 | $45,000 | $243,100 | $243,100 |
| 2012 | $123,100 | $120,000 | $0 | $0 | $0 |
| 2011 | $120,600 | $120,000 | $0 | $0 | $0 |
| 2010 | $128,300 | $120,000 | $0 | $0 | $0 |
| 2009 | $122,000 | $120,000 | $0 | $0 | $0 |
| 2008 | $130,700 | $81,000 | $0 | $0 | $0 |
| 2007 | $130,700 | $81,000 | $0 | $0 | $0 |
Deed and Sales History
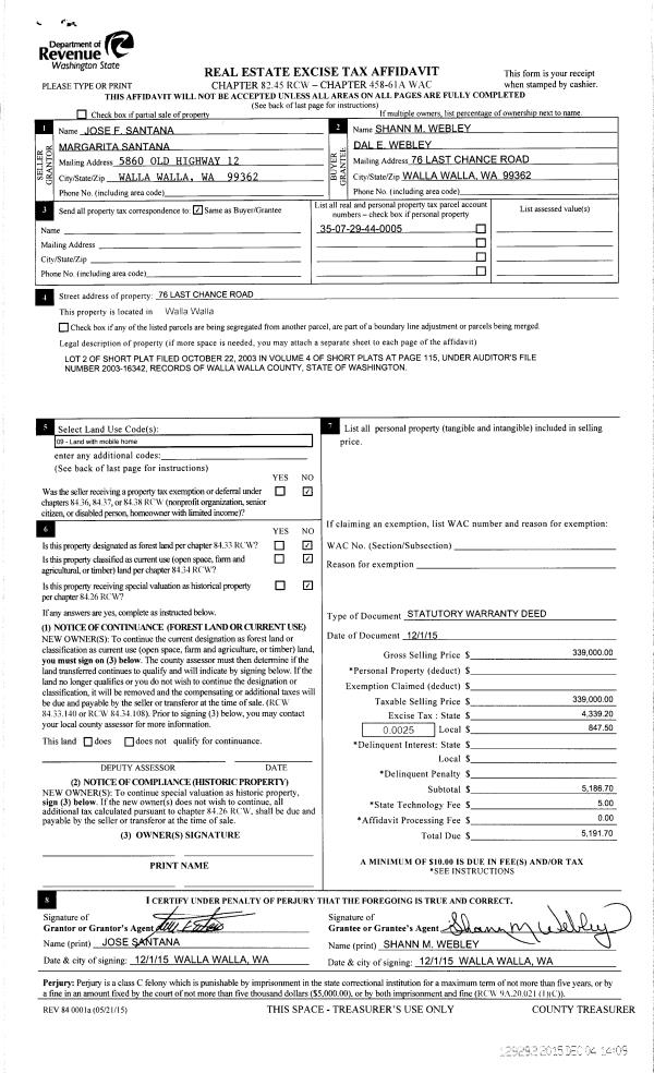
| 1 | 03/25/2022 | SWD | STATUTORY WARRANTY DEED | WEBLEY SHANN M | HINER GENE E & NICKI L | | | $700,000.00 | 143624 | 2022-02501 |
| 2 | 12/04/2015 | SWD | STATUTORY WARRANTY DEED | SANTANA JOSE F & MARGARITA | WEBLEY SHANN M | | | $339,000.00 | 129292 | 2015-10401 |
| 3 | 04/14/2006 | QCD | QUIT CLAIM DEED | SANTANA, FELIX E | SANTANA, JOSE F & MARGARITA | | | | 110036 | 2006-04251 |
| 4 | 01/14/2005 | WARRANTY D | WARRANTY DEED | FRANKLIN, THADDEAUS D | SANTANA, FELIX E | | | $76,000.00 | 106613 | 2005-00589 |
Payout Agreement
| No payout information available.. |