Property
Account |
| Property ID: | 2468 | Abbreviated Legal Description: | HANSON'S PLUS VAC ST, LOTS 1 THRU 4 BLK 12 |
| Parcel Number: | 330734541201 | Agent Code: | |
| Type: | Real | | |
| Tax Area: | 318 - 300-6-TM | Land Use Code | 83 |
| Open Space: | Y | DFL | N |
| Historic Property: | N | Remodel Property: | N |
| Multi-Family Redevelopment: | N | | |
| Township: | 7 | Section: | 34 |
| Range: | 33 |
Location |
| Address: | WA 99360 | Mapsco: | |
| Neighborhood: | 0 Farm | Map ID: | |
| Neighborhood CD: | 2220 |
Owner |
| Name: | BOB & ANNA REA LIVING TRUST | Owner ID: | 72100 |
| Mailing Address: | 78 TOUCHET GARDENA RD TOUCHET, WA 99360 | % Ownership: | 100.0000000000% |
| | | Exemptions: | |
Taxes and Assessment Details
Property Tax Information as of
02/21/2026
Click on "Statement Details" to expand or collapse a tax statement.
* Please enter a valid date ** Please enter a valid date *
Statement Details |
| | TOTAL: | $0.00 | $0.00 | $0.00 | $0.00 | $0.00 | $0.00 |
|
| | $0.00 | $0.00 | $0.00 | $0.00 | $0.00 | $0.00 |
Values
| (+) Improvement Homesite Value: | + | N/A | |
| (+) Improvement Non-Homesite Value: | + | N/A | |
| (+) Land Homesite Value: | + | N/A | |
| (+) Land Non-Homesite Value: | + | N/A | Ag / Timber Use Value |
| (+) Curr Use (HS): | + | N/A | N/A |
| (+) Curr Use (NHS): | + | N/A | N/A |
| | | -------------------------- | |
| (=) Market Value: | = | N/A | |
| (–) Productivity Loss: | – | N/A | |
| | | -------------------------- | |
| (=) Subtotal: | = | N/A | |
| (+) Senior Appraised Value: | + | N/A | |
| (+) Non-Senior Appraised Value: | + | N/A | |
| | | -------------------------- | |
| (=) Total Appraised Value: | = | N/A | |
| (–) Senior Exemption Loss: | – | N/A | |
| (–) Exemption Loss: | – | N/A | |
| | | -------------------------- | |
| (=) Taxable Value: | = | N/A | |
Taxing Jurisdiction
| Owner: | BOB & ANNA REA LIVING TRUST | | |
| % Ownership: | 100.0000000000% | | |
| Total Value: | N/A | | |
| Tax Area: | 318 - 300-6-TM |
| CERFD | CURRENT EXPENSE REFUND 010 | N/A | N/A | N/A | N/A | | |
| CURREXP | CURRENT EXPENSE 010 | N/A | N/A | N/A | N/A | | |
| HUMNSERV | HUMAN SERVICES 119 | N/A | N/A | N/A | N/A | | |
| SLDREL | SOLDIERS RELIEF 121 | N/A | N/A | N/A | N/A | | |
| EMERGSER | EMS 147 | N/A | N/A | N/A | N/A | | |
| EMSRFD | EMS REFUND 147 | N/A | N/A | N/A | N/A | | |
| FD6EXP | FD #6 EXPENSE 693 | N/A | N/A | N/A | N/A | | |
| RLBRFD | RURAL LIBRARY REFUND 623 | N/A | N/A | N/A | N/A | | |
| RURALLIB | RURAL LIBRARY 623 | N/A | N/A | N/A | N/A | | |
| PORTRFD | PORT REFUND 640 | N/A | N/A | N/A | N/A | | |
| PORTWWGEN | PORT OF WW 640 | N/A | N/A | N/A | N/A | | |
| SD300BOND | SD #300 BOND 783 | N/A | N/A | N/A | N/A | | |
| SD300GEN | SD #300 GENERAL 780 | N/A | N/A | N/A | N/A | | |
| ST2 | STATE SCHOOL PART 2 600 | N/A | N/A | N/A | N/A | | |
| STATESCHL | STATE SCHOOL 600 | N/A | N/A | N/A | N/A | | |
| STREFUND | STATE REFUND LEVY 603 | N/A | N/A | N/A | N/A | | |
| COROAD | COUNTY ROAD 115 | N/A | N/A | N/A | N/A | | |
| CRPRD | COUNTY ROAD REFUND 115 | N/A | N/A | N/A | N/A | | |
| | Total Tax Rate: | N/A | | | | | |
| | | | | Taxes w/Current Exemptions: | N/A | | |
| | | | | Taxes w/o Exemptions: | N/A | | |
Improvement / Building
Sketch
| No sketches available for this property. |
Property Image
Land
| 1 | C2-I | Class 2 Irrigated | 9.5800 | 0.00 | 0.00 | 0.00 | 1.00 | N/A | N/A |
Roll Value History
| 2026 | N/A | N/A | N/A | N/A | N/A |
| 2025 | $0 | $55,560 | $10,720 | $10,720 | $10,720 |
| 2024 | $0 | $53,650 | $10,920 | $10,920 | $10,920 |
| 2023 | $0 | $51,730 | $10,860 | $10,860 | $10,860 |
| 2022 | $0 | $47,900 | $10,480 | $10,480 | $10,480 |
| 2021 | $0 | $43,110 | $10,680 | $10,680 | $10,680 |
| 2020 | $0 | $34,490 | $10,900 | $10,900 | $10,900 |
| 2019 | $0 | $30,660 | $11,250 | $11,250 | $11,250 |
| 2018 | $0 | $29,700 | $11,460 | $11,460 | $11,460 |
| 2017 | $0 | $29,700 | $11,820 | $11,820 | $11,820 |
| 2016 | $0 | $29,700 | $11,870 | $11,870 | $11,870 |
| 2015 | $0 | $25,870 | $10,810 | $10,810 | $10,810 |
| 2014 | $0 | $25,870 | $10,810 | $10,810 | $10,810 |
| 2013 | $0 | $24,900 | $9,300 | $9,300 | $9,300 |
| 2012 | $500 | $7,400 | $0 | $0 | $0 |
| 2011 | $500 | $7,100 | $0 | $0 | $0 |
| 2010 | $500 | $7,300 | $0 | $0 | $0 |
| 2009 | $500 | $7,200 | $0 | $0 | $0 |
| 2008 | $500 | $9,100 | $0 | $0 | $0 |
| 2007 | $500 | $9,100 | $0 | $0 | $0 |
Deed and Sales History
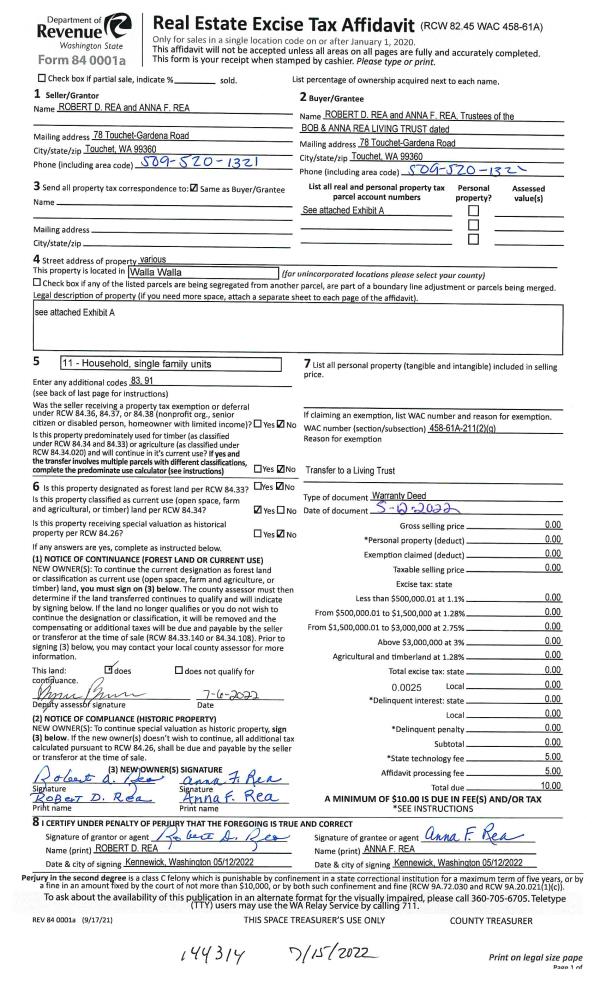
| 1 | 07/15/2022 | WARRANTY D | WARRANTY DEED | REA ROBERT D | BOB & ANNA REA LIVING TRUST | 10 PARCELS | | $0.00 | 144314 | 2022-06042 |
| 2 | 10/01/1976 | WARRANTY D | WARRANTY DEED | | | | | $40,000.00 | 0 | 4805-58123 |
|   | |
Payout Agreement
| No payout information available.. |