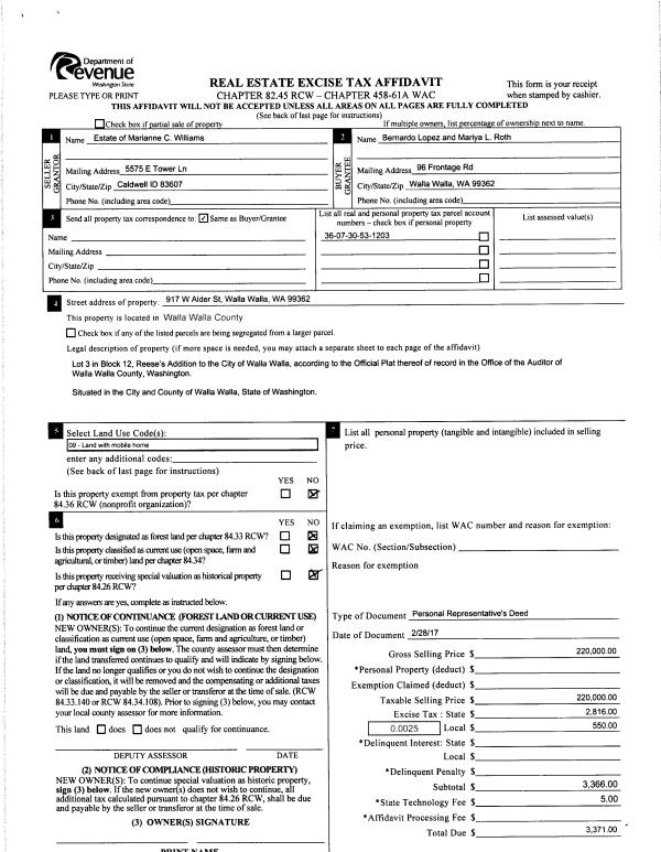
Property
Account |
| Property ID: | 24661 | Abbreviated Legal Description: | REESES LOT 3 BLK 12 |
| Parcel Number: | 360730531203 | Agent Code: | |
| Type: | Real | | |
| Tax Area: | 1 - OL-140-F | Land Use Code | 12 |
| Open Space: | N | DFL | N |
| Historic Property: | N | Remodel Property: | N |
| Multi-Family Redevelopment: | N | | |
| Township: | 7 | Section: | 30 |
| Range: | 36 |
Location |
| Address: | 917 W ALDER ST WA 99362 | Mapsco: | |
| Neighborhood: | A Duplex City | Map ID: | |
| Neighborhood CD: | 313031 |
Owner |
| Name: | ROTH MARIYA LEE | Owner ID: | 72978 |
| Mailing Address: | 4207 OLD MILTON HWY WALLA WALLA, WA 99362 | % Ownership: | 100.0000000000% |
| | | Exemptions: | |
Taxes and Assessment Details
Values
| (+) Improvement Homesite Value: | + | N/A | |
| (+) Improvement Non-Homesite Value: | + | N/A | |
| (+) Land Homesite Value: | + | N/A | |
| (+) Land Non-Homesite Value: | + | N/A | Ag / Timber Use Value |
| (+) Curr Use (HS): | + | N/A | N/A |
| (+) Curr Use (NHS): | + | N/A | N/A |
| | | -------------------------- | |
| (=) Market Value: | = | N/A | |
| (–) Productivity Loss: | – | N/A | |
| | | -------------------------- | |
| (=) Subtotal: | = | N/A | |
| (+) Senior Appraised Value: | + | N/A | |
| (+) Non-Senior Appraised Value: | + | N/A | |
| | | -------------------------- | |
| (=) Total Appraised Value: | = | N/A | |
| (–) Senior Exemption Loss: | – | N/A | |
| (–) Exemption Loss: | – | N/A | |
| | | -------------------------- | |
| (=) Taxable Value: | = | N/A | |
Taxing Jurisdiction
| Owner: | ROTH MARIYA LEE | | |
| % Ownership: | 100.0000000000% | | |
| Total Value: | N/A | | |
| Tax Area: | 1 - OL-140-F |
| CERFD | CURRENT EXPENSE REFUND 010 | N/A | N/A | N/A | N/A | | |
| CURREXP | CURRENT EXPENSE 010 | N/A | N/A | N/A | N/A | | |
| HUMNSERV | HUMAN SERVICES 119 | N/A | N/A | N/A | N/A | | |
| SLDREL | SOLDIERS RELIEF 121 | N/A | N/A | N/A | N/A | | |
| EMERGSER | EMS 147 | N/A | N/A | N/A | N/A | | |
| EMSRFD | EMS REFUND 147 | N/A | N/A | N/A | N/A | | |
| PORTRFD | PORT REFUND 640 | N/A | N/A | N/A | N/A | | |
| PORTWWGEN | PORT OF WW 640 | N/A | N/A | N/A | N/A | | |
| SD140BOND | SD #140 BOND 764 | N/A | N/A | N/A | N/A | | |
| SD140GEN | SD #140 GENERAL 760 | N/A | N/A | N/A | N/A | | |
| ST2 | STATE SCHOOL PART 2 600 | N/A | N/A | N/A | N/A | | |
| STATESCHL | STATE SCHOOL 600 | N/A | N/A | N/A | N/A | | |
| STREFUND | STATE REFUND LEVY 603 | N/A | N/A | N/A | N/A | | |
| CWWBOND | C OF WW BOND 643 | N/A | N/A | N/A | N/A | | |
| CWWGEN | CITY OF WW 631 | N/A | N/A | N/A | N/A | | |
| CWWRFD | CITY OF WALLA WALLA REFUND 631 | N/A | N/A | N/A | N/A | | |
| | Total Tax Rate: | N/A | | | | | |
| | | | | Taxes w/Current Exemptions: | N/A | | |
| | | | | Taxes w/o Exemptions: | N/A | | |
Improvement / Building
| Improvement #1: | RESIDENTIAL | State Code: | 12 | 2372.0 sqft | Value: | N/A |
| Exterior Wall: | HARDBOARD | Heating/Cooling: | WARM & COOLED AIR | | Number of Bathrooms: | 4 | Number of Bedrooms: | 4 | | Plumbing: | 16 | Roof Covering: | COMP SHINGLE |
|
| | Type | Description | Class CD | Sub Class CD | Year Built | Area |
| | MA | Main Area | 1 | 30 | 2006 | 2372.0 |
| | SI1 | SITE IMPROVEMENT | 1 | 30 | 2006 | 2.0 |
| | ATG | Attached Garage | 1 | 30 | 2006 | 288.0 |
| | ATG | Attached Garage | 1 | 30 | 2006 | 288.0 |
Sketch
Property Image
Land
| 1 | RES 1 | Converted: Residential | 0.1653 | 7200.00 | 0.00 | 0.00 | 1.00 | N/A | N/A |
Roll Value History
| 2026 | N/A | N/A | N/A | N/A | N/A |
| 2025 | $272,600 | $59,400 | $0 | $332,000 | $332,000 |
| 2024 | $272,600 | $59,400 | $0 | $332,000 | $332,000 |
| 2023 | $265,540 | $59,400 | $0 | $324,940 | $324,940 |
| 2022 | $230,900 | $59,400 | $0 | $290,300 | $290,300 |
| 2021 | $213,320 | $25,200 | $0 | $238,520 | $238,520 |
| 2020 | $193,930 | $25,200 | $0 | $219,130 | $219,130 |
| 2019 | $193,930 | $25,200 | $0 | $219,130 | $219,130 |
| 2018 | $184,690 | $25,200 | $0 | $209,890 | $209,890 |
| 2017 | $184,690 | $25,200 | $0 | $209,890 | $209,890 |
| 2016 | $160,600 | $25,200 | $0 | $185,800 | $185,800 |
| 2015 | $160,600 | $25,200 | $0 | $185,800 | $185,800 |
| 2014 | $160,600 | $25,200 | $0 | $185,800 | $185,800 |
| 2013 | $160,600 | $25,200 | $0 | $185,800 | $185,800 |
| 2012 | $160,600 | $25,200 | $0 | $0 | $0 |
| 2011 | $160,600 | $25,200 | $0 | $0 | $0 |
| 2010 | $155,900 | $25,200 | $0 | $0 | $0 |
| 2009 | $178,000 | $12,600 | $0 | $0 | $0 |
| 2008 | $178,000 | $12,600 | $0 | $0 | $0 |
| 2007 | $178,000 | $12,600 | $0 | $0 | $0 |
Deed and Sales History
| 1 | 06/22/2022 | QCD | QUIT CLAIM DEED | LOPEZ BERNARDO | ROTH MARIYA LEE | | 3-PARCELS | $0.00 | 144196 | 2022-05283 |
| 2 | 02/28/2017 | DPR | DEED OF PERSONAL REPRESENTATIVE | WILLIAMS MARIANNE C | LOPEZ BERNARDO | | | $220,000.00 | 131961 | 2017-01573 |
| 3 | 09/15/2011 | QCD | QUIT CLAIM DEED | WILLIAMS, MARIANNE LIVING TRST | WILLIAMS, MARIANNE C | | | | 120702 | 2011-07210 |
| 4 | 04/20/2005 | WARRANTY D | WARRANTY DEED | WILLIAMS, MARIANNE | WILLIAMS, MARIANNE LIVING TRST | | | | 107282 | 2005-04463 |
| 5 | 03/30/2005 | WARRANTY D | WARRANTY DEED | VOTH, RICK S | WILLIAMS, MARIANNE | | | $33,900.00 | 107091 | 2005-03563 |
| 6 | 12/09/2004 | WARRANTY D | WARRANTY DEED | BOHLMAN, ROBERT | VOTH RICK S | | | $88,000.00 | 106372 | 2004-14137 |
|   | |
| 7 | 05/09/2001 | WARRANTY D | WARRANTY DEED | | | | | | 97227 | 3130-105398 |
Payout Agreement
| No payout information available.. |