Property
Account |
| Property ID: | 2466 | Abbreviated Legal Description: | HANSON'S LOTS 1 THRU 4 BLK 9 PLUS 1/2 VAC ST |
| Parcel Number: | 330734540901 | Agent Code: | |
| Type: | Real | | |
| Tax Area: | 318 - 300-6-TM | Land Use Code | 83 |
| Open Space: | Y | DFL | N |
| Historic Property: | N | Remodel Property: | N |
| Multi-Family Redevelopment: | N | | |
| Township: | 7 | Section: | 34 |
| Range: | 33 |
Location |
| Address: | WA 99360 | Mapsco: | |
| Neighborhood: | 0 Farm | Map ID: | |
| Neighborhood CD: | 2220 |
Owner |
| Name: | BOB & ANNA REA LIVING TRUST | Owner ID: | 72100 |
| Mailing Address: | 78 TOUCHET GARDENA RD TOUCHET, WA 99360 | % Ownership: | 100.0000000000% |
| | | Exemptions: | |
Taxes and Assessment Details
Property Tax Information as of
02/21/2026
Click on "Statement Details" to expand or collapse a tax statement.
* Please enter a valid date ** Please enter a valid date *
Statement Details |
| | TOTAL: | $0.00 | $0.00 | $0.00 | $0.00 | $0.00 | $0.00 |
|
| | $0.00 | $0.00 | $0.00 | $0.00 | $0.00 | $0.00 |
Values
| (+) Improvement Homesite Value: | + | $0 | |
| (+) Improvement Non-Homesite Value: | + | $0 | |
| (+) Land Homesite Value: | + | $0 | |
| (+) Land Non-Homesite Value: | + | $0 | |
| (+) Curr Use (HS): | + | $0 | $0 |
| (+) Curr Use (NHS): | + | $50,000 | $9,650 |
| | | -------------------------- | |
| (=) Market Value: | = | $50,000 | |
| (–) Productivity Loss: | – | $40,350 | |
| | | -------------------------- | |
| (=) Subtotal: | = | $9,650 | |
| (+) Senior Appraised Value: | + | $0 | |
| (+) Non-Senior Appraised Value: | + | $9,650 | |
| | | -------------------------- | |
| (=) Total Appraised Value: | = | $9,650 | |
| (–) Senior Exemption Loss: | – | $0 | |
| (–) Exemption Loss: | – | $0 | |
| | | -------------------------- | |
| (=) Taxable Value: | = | $9,650 | |
Taxing Jurisdiction
| Owner: | BOB & ANNA REA LIVING TRUST | | |
| % Ownership: | 100.0000000000% | | |
| Total Value: | $50,000 | | |
| Tax Area: | 318 - 300-6-TM |
| CERFD | CURRENT EXPENSE REFUND 010 | 0.0000000000 | $9,650 | $9,650 | $0.00 | | |
| CURREXP | CURRENT EXPENSE 010 | 0.9851088983 | $9,650 | $9,650 | $9.51 | | |
| HUMNSERV | HUMAN SERVICES 119 | 0.0250000000 | $9,650 | $9,650 | $0.24 | | |
| SLDREL | SOLDIERS RELIEF 121 | 0.0155990000 | $9,650 | $9,650 | $0.15 | | |
| EMERGSER | EMS 147 | 0.3676811629 | $9,650 | $9,650 | $3.55 | | |
| EMSRFD | EMS REFUND 147 | 0.0000000000 | $9,650 | $9,650 | $0.00 | | |
| FD6EXP | FD #6 EXPENSE 693 | 0.6637564225 | $9,650 | $9,650 | $6.41 | | |
| RLBRFD | RURAL LIBRARY REFUND 623 | 0.0000000000 | $9,650 | $9,650 | $0.00 | | |
| RURALLIB | RURAL LIBRARY 623 | 0.3601547782 | $9,650 | $9,650 | $3.48 | | |
| PORTRFD | PORT REFUND 640 | 0.0000000000 | $9,650 | $9,650 | $0.00 | | |
| PORTWWGEN | PORT OF WW 640 | 0.2344301070 | $9,650 | $9,650 | $2.26 | | |
| SD300BOND | SD #300 BOND 783 | 1.9432820025 | $9,650 | $9,650 | $18.75 | | |
| SD300GEN | SD #300 GENERAL 780 | 2.2641297109 | $9,650 | $9,650 | $21.85 | | |
| ST2 | STATE SCHOOL PART 2 600 | 0.8853714103 | $9,650 | $9,650 | $8.54 | | |
| STATESCHL | STATE SCHOOL 600 | 1.6424571473 | $9,650 | $9,650 | $15.85 | | |
| STREFUND | STATE REFUND LEVY 603 | 0.0000000000 | $9,650 | $9,650 | $0.00 | | |
| COROAD | COUNTY ROAD 115 | 1.6137667997 | $9,650 | $9,650 | $15.57 | | |
| CRPRD | COUNTY ROAD REFUND 115 | 0.0000000000 | $9,650 | $9,650 | $0.00 | | |
| | Total Tax Rate: | 11.0007374396 | | | | | |
| | | | | Taxes w/Current Exemptions: | $106.16 | | |
| | | | | Taxes w/o Exemptions: | $106.16 | | |
Improvement / Building
Sketch
| No sketches available for this property. |
Property Image
Land
| 1 | C2-I | Class 2 Irrigated | 8.6200 | 0.00 | 0.00 | 0.00 | 1.00 | $50,000 | $9,650 |
Roll Value History
| 2026 | N/A | N/A | N/A | N/A | N/A |
| 2025 | $0 | $50,000 | $9,650 | $9,650 | $9,650 |
| 2024 | $0 | $48,270 | $9,830 | $9,830 | $9,830 |
| 2023 | $0 | $46,550 | $9,780 | $9,780 | $9,780 |
| 2022 | $0 | $43,100 | $9,430 | $9,430 | $9,430 |
| 2021 | $0 | $38,790 | $9,610 | $9,610 | $9,610 |
| 2020 | $0 | $31,030 | $9,810 | $9,810 | $9,810 |
| 2019 | $0 | $27,580 | $10,120 | $10,120 | $10,120 |
| 2018 | $0 | $26,720 | $10,310 | $10,310 | $10,310 |
| 2017 | $0 | $26,720 | $10,640 | $10,640 | $10,640 |
| 2016 | $0 | $26,720 | $10,680 | $10,680 | $10,680 |
| 2015 | $0 | $23,270 | $9,720 | $9,720 | $9,720 |
| 2014 | $0 | $23,270 | $9,720 | $9,720 | $9,720 |
| 2013 | $0 | $22,400 | $8,300 | $8,300 | $8,300 |
| 2012 | $0 | $6,600 | $0 | $0 | $0 |
| 2011 | $0 | $6,400 | $0 | $0 | $0 |
| 2010 | $0 | $6,600 | $0 | $0 | $0 |
| 2009 | $0 | $6,500 | $0 | $0 | $0 |
| 2008 | $0 | $8,200 | $0 | $0 | $0 |
| 2007 | $0 | $8,200 | $0 | $0 | $0 |
Deed and Sales History
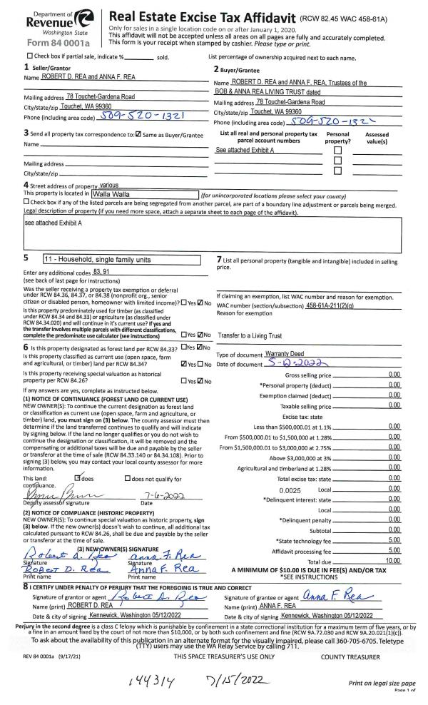
| 1 | 07/15/2022 | WARRANTY D | WARRANTY DEED | REA ROBERT D | BOB & ANNA REA LIVING TRUST | 10 PARCELS | | $0.00 | 144314 | 2022-06042 |
| 2 | 10/01/1976 | WARRANTY D | WARRANTY DEED | | | | | $40,000.00 | 0 | 4805-58123 |
|   | |
Payout Agreement
| No payout information available.. |