Property
Account |
| Property ID: | 24643 | Abbreviated Legal Description: | HARRISON SAGE SUBD LOT 8 BLK 3 |
| Parcel Number: | 300812560308 | Agent Code: | |
| Type: | Real | | |
| Tax Area: | 331 - 400-M-5-W4 | Land Use Code | 11 |
| Open Space: | N | DFL | N |
| Historic Property: | N | Remodel Property: | N |
| Multi-Family Redevelopment: | N | | |
| Township: | 8 | Section: | 12 |
| Range: | 30 |
Location |
| Address: | 125 REINKEN BLVD WA 99323 | Mapsco: | |
| Neighborhood: | Burbank A MH | Map ID: | |
| Neighborhood CD: | 213761 |
Owner |
| Name: | REYES JOSE RANGEL | Owner ID: | 59266 |
| Mailing Address: | GLORIA MUNGUIA CASTELLANOS 125 REINKEN BLVD BURBANK, WA 99323 | % Ownership: | 100.0000000000% |
| | | Exemptions: | |
Taxes and Assessment Details
Property Tax Information as of
02/21/2026
Click on "Statement Details" to expand or collapse a tax statement.
* Please enter a valid date ** Please enter a valid date *
Statement Details |
| | TOTAL: | $0.00 | $0.00 | $0.00 | $0.00 | $0.00 | $0.00 |
|
| | $0.00 | $0.00 | $0.00 | $0.00 | $0.00 | $0.00 |
Values
| (+) Improvement Homesite Value: | + | $0 | |
| (+) Improvement Non-Homesite Value: | + | $55,180 | |
| (+) Land Homesite Value: | + | $0 | |
| (+) Land Non-Homesite Value: | + | $63,650 | |
| (+) Curr Use (HS): | + | $0 | $0 |
| (+) Curr Use (NHS): | + | $0 | $0 |
| | | -------------------------- | |
| (=) Market Value: | = | $118,830 | |
| (–) Productivity Loss: | – | $0 | |
| | | -------------------------- | |
| (=) Subtotal: | = | $118,830 | |
| (+) Senior Appraised Value: | + | $0 | |
| (+) Non-Senior Appraised Value: | + | $118,830 | |
| | | -------------------------- | |
| (=) Total Appraised Value: | = | $118,830 | |
| (–) Senior Exemption Loss: | – | $0 | |
| (–) Exemption Loss: | – | $0 | |
| | | -------------------------- | |
| (=) Taxable Value: | = | $118,830 | |
Taxing Jurisdiction
| Owner: | REYES JOSE RANGEL | | |
| % Ownership: | 100.0000000000% | | |
| Total Value: | $118,830 | | |
| Tax Area: | 331 - 400-M-5-W4 |
| CERFD | CURRENT EXPENSE REFUND 010 | 0.0000000000 | $118,830 | $118,830 | $0.00 | | |
| CURREXP | CURRENT EXPENSE 010 | 1.0175366760 | $118,830 | $118,830 | $120.91 | | |
| HUMNSERV | HUMAN SERVICES 119 | 0.0250000000 | $118,830 | $118,830 | $2.97 | | |
| SLDREL | SOLDIERS RELIEF 121 | 0.0155990005 | $118,830 | $118,830 | $1.85 | | |
| EMERGSER | EMS 147 | 0.3792580840 | $118,830 | $118,830 | $45.07 | | |
| EMSRFD | EMS REFUND 147 | 0.0000000000 | $118,830 | $118,830 | $0.00 | | |
| FD5EXP | FD #5 EXPENSE 689 | 1.2045331840 | $118,830 | $118,830 | $143.13 | | |
| RLBRFD | RURAL LIBRARY REFUND 623 | 0.0000000000 | $118,830 | $118,830 | $0.00 | | |
| RURALLIB | RURAL LIBRARY 623 | 0.3710609029 | $118,830 | $118,830 | $44.09 | | |
| PORTRFD | PORT REFUND 640 | 0.0000000000 | $118,830 | $118,830 | $0.00 | | |
| PORTWWGEN | PORT OF WW 640 | 0.2460186015 | $118,830 | $118,830 | $29.23 | | |
| SD400BOND | SD #400 BOND 793 | 0.0000000000 | $118,830 | $118,830 | $0.00 | | |
| SD400CAP | SD #400 CP 792 | 0.3443722657 | $118,830 | $118,830 | $40.92 | | |
| SD400GEN | SD #400 GENERAL 790 | 1.9278469916 | $118,830 | $118,830 | $229.09 | | |
| ST2 | STATE SCHOOL PART 2 600 | 0.8131451643 | $118,830 | $118,830 | $96.63 | | |
| STATESCHL | STATE SCHOOL 600 | 1.5158548041 | $118,830 | $118,830 | $180.13 | | |
| STREFUND | STATE REFUND LEVY 603 | 0.0000000000 | $118,830 | $118,830 | $0.00 | | |
| COROAD | COUNTY ROAD 115 | 1.6549953990 | $118,830 | $118,830 | $196.66 | | |
| CRPRD | COUNTY ROAD REFUND 115 | 0.0000000000 | $118,830 | $118,830 | $0.00 | | |
| | Total Tax Rate: | 9.5152210736 | | | | | |
| | | | | Taxes w/Current Exemptions: | $1,130.68 | | |
| | | | | Taxes w/o Exemptions: | $1,130.68 | | |
Improvement / Building
| Improvement #1: | MANUFACTURED HOME | State Code: | 11 | 1020.0 sqft | Value: | $55,180 |
| Exterior Wall: | VINYL | Heating/Cooling: | WARM & COOLED AIR | | Number of Bathrooms: | 2 | Number of Bedrooms: | 2 | | Plumbing: | 8 | Roof Covering: | COMP SHINGLE |
|
| | Type | Description | Class CD | Sub Class CD | Year Built | Area |
| | MOBHOME | MANUFACTURD HOMES | 1 | 20 | 1976 | 1020.0 |
| | MI1 | MH SET-UP COSTS | 1 | 20 | 1976 | 1.0 |
| | WDR | WOOD DECK W/ROOF | 1 | 20 | 1976 | 225.0 |
| | POL2 | POLE BUILDING-CONCRETE | 1 | 20 | 1976 | 720.0 |
| | TOOL | TOOL SHED | 1 | 20 | 1976 | 100.0 |
Sketch
Property Image
Land
| 1 | RES 1 | Converted: Residential | 0.5686 | 24768.00 | 0.00 | 0.00 | 1.00 | $63,650 | $0 |
Roll Value History
| 2026 | N/A | N/A | N/A | N/A | N/A |
| 2025 | $99,320 | $63,650 | $0 | $162,970 | $162,970 |
| 2024 | $55,180 | $63,650 | $0 | $118,830 | $118,830 |
| 2023 | $55,180 | $63,650 | $0 | $118,830 | $118,830 |
| 2022 | $55,180 | $63,650 | $0 | $118,830 | $118,830 |
| 2021 | $55,180 | $63,650 | $0 | $118,830 | $118,830 |
| 2020 | $58,910 | $28,900 | $0 | $87,810 | $87,810 |
| 2019 | $58,910 | $28,900 | $0 | $87,810 | $87,810 |
| 2018 | $56,100 | $28,900 | $0 | $85,000 | $85,000 |
| 2017 | $56,100 | $28,900 | $0 | $85,000 | $85,000 |
| 2016 | $37,400 | $28,900 | $0 | $66,300 | $66,300 |
| 2015 | $37,400 | $28,900 | $0 | $66,300 | $66,300 |
| 2014 | $34,000 | $28,900 | $0 | $62,900 | $62,900 |
| 2013 | $34,000 | $28,900 | $0 | $62,900 | $62,900 |
| 2012 | $34,000 | $28,900 | $0 | $0 | $0 |
| 2011 | $34,000 | $28,900 | $0 | $0 | $0 |
| 2010 | $34,000 | $28,900 | $0 | $0 | $0 |
| 2009 | $36,100 | $28,500 | $0 | $0 | $0 |
| 2008 | $36,100 | $28,500 | $0 | $0 | $0 |
| 2007 | $36,100 | $28,500 | $0 | $0 | $0 |
Deed and Sales History
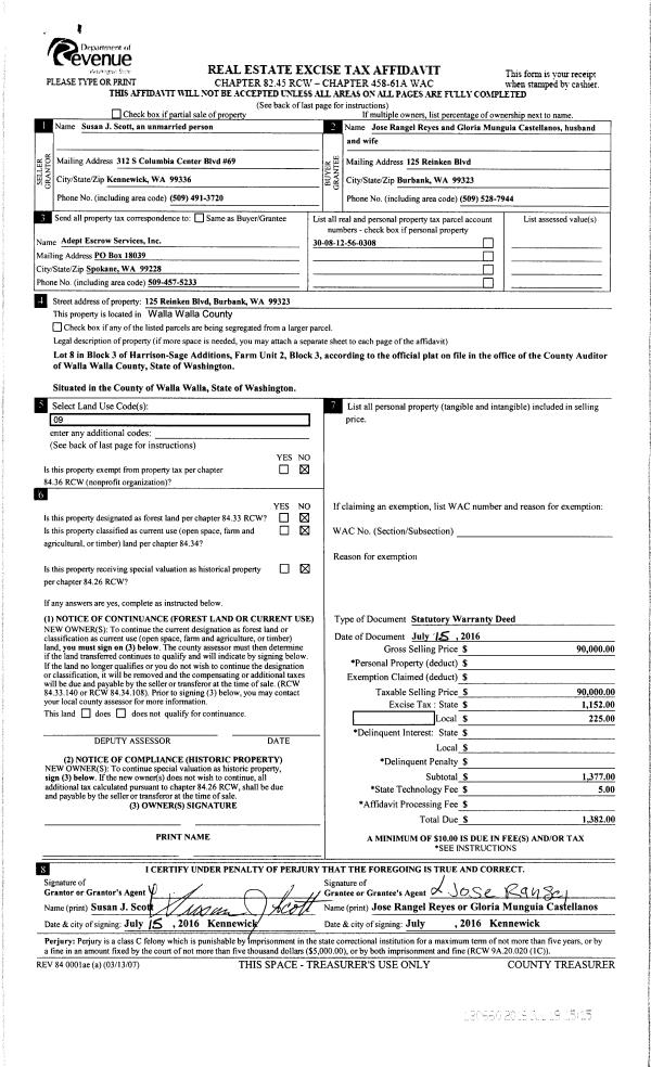
| 1 | 07/19/2016 | MH AFFIDAV | MOBILE HOME AFFIDAVIT | SCOTT HAROLD W & SUSAN J | REYES JOSE RANGEL | | | | 130661 | MHAFF-130661 |
| 2 | 07/19/2016 | SWD | STATUTORY WARRANTY DEED | SCOTT HAROLD W & SUSAN J | REYES JOSE RANGEL | | | $90,000.00 | 130660 | 2016-05653 |
| 3 | 07/19/2016 | AFFIDAVIT | AFFIDAVIT | | | | | | 0 | 2016-05652 |
| 4 | 10/01/2004 | WARRANTY D | WARRANTY DEED | SMITH, RALPH J | SCOTT, HAROLD W & SUSAN J | | | $69,000.00 | 105863 | 2004-11381 |
Payout Agreement
| No payout information available.. |