Property
Account |
| Property ID: | 24629 | Abbreviated Legal Description: | COLUMBIA VIEW #4 LOT 5 BLK 4 |
| Parcel Number: | 300812520405 | Agent Code: | |
| Type: | Real | | |
| Tax Area: | 328 - 400-M-5 | Land Use Code | 11 |
| Open Space: | N | DFL | N |
| Historic Property: | N | Remodel Property: | N |
| Multi-Family Redevelopment: | N | | |
| Township: | 8 | Section: | 12 |
| Range: | 30 |
Location |
| Address: | 340 HARRISON RD WA 99323 | Mapsco: | |
| Neighborhood: | Burbank A MH | Map ID: | |
| Neighborhood CD: | 213761 |
Owner |
| Name: | BRADY MARSHAL E | Owner ID: | 65046 |
| Mailing Address: | 340 HARRISON RD BURBANK, WA 99323 | % Ownership: | 100.0000000000% |
| | | Exemptions: | |
Taxes and Assessment Details
Values
| (+) Improvement Homesite Value: | + | $0 | |
| (+) Improvement Non-Homesite Value: | + | $305,570 | |
| (+) Land Homesite Value: | + | $0 | |
| (+) Land Non-Homesite Value: | + | $67,090 | |
| (+) Curr Use (HS): | + | $0 | $0 |
| (+) Curr Use (NHS): | + | $0 | $0 |
| | | -------------------------- | |
| (=) Market Value: | = | $372,660 | |
| (–) Productivity Loss: | – | $0 | |
| | | -------------------------- | |
| (=) Subtotal: | = | $372,660 | |
| (+) Senior Appraised Value: | + | $0 | |
| (+) Non-Senior Appraised Value: | + | $372,660 | |
| | | -------------------------- | |
| (=) Total Appraised Value: | = | $372,660 | |
| (–) Senior Exemption Loss: | – | $0 | |
| (–) Exemption Loss: | – | $0 | |
| | | -------------------------- | |
| (=) Taxable Value: | = | $372,660 | |
Taxing Jurisdiction
| Owner: | BRADY MARSHAL E | | |
| % Ownership: | 100.0000000000% | | |
| Total Value: | $372,660 | | |
| Tax Area: | 328 - 400-M-5 |
| CERFD | CURRENT EXPENSE REFUND 010 | 0.0000000000 | $372,660 | $372,660 | $0.00 | | |
| CURREXP | CURRENT EXPENSE 010 | 1.0175366760 | $372,660 | $372,660 | $379.20 | | |
| HUMNSERV | HUMAN SERVICES 119 | 0.0250000000 | $372,660 | $372,660 | $9.32 | | |
| SLDREL | SOLDIERS RELIEF 121 | 0.0155990005 | $372,660 | $372,660 | $5.81 | | |
| EMERGSER | EMS 147 | 0.3792580840 | $372,660 | $372,660 | $141.33 | | |
| EMSRFD | EMS REFUND 147 | 0.0000000000 | $372,660 | $372,660 | $0.00 | | |
| FD5EXP | FD #5 EXPENSE 689 | 1.2045331840 | $372,660 | $372,660 | $448.88 | | |
| RLBRFD | RURAL LIBRARY REFUND 623 | 0.0000000000 | $372,660 | $372,660 | $0.00 | | |
| RURALLIB | RURAL LIBRARY 623 | 0.3710609029 | $372,660 | $372,660 | $138.28 | | |
| PORTRFD | PORT REFUND 640 | 0.0000000000 | $372,660 | $372,660 | $0.00 | | |
| PORTWWGEN | PORT OF WW 640 | 0.2460186015 | $372,660 | $372,660 | $91.68 | | |
| SD400BOND | SD #400 BOND 793 | 0.0000000000 | $372,660 | $372,660 | $0.00 | | |
| SD400CAP | SD #400 CP 792 | 0.3443722657 | $372,660 | $372,660 | $128.33 | | |
| SD400GEN | SD #400 GENERAL 790 | 1.9278469916 | $372,660 | $372,660 | $718.43 | | |
| ST2 | STATE SCHOOL PART 2 600 | 0.8131451643 | $372,660 | $372,660 | $303.03 | | |
| STATESCHL | STATE SCHOOL 600 | 1.5158548041 | $372,660 | $372,660 | $564.90 | | |
| STREFUND | STATE REFUND LEVY 603 | 0.0000000000 | $372,660 | $372,660 | $0.00 | | |
| COROAD | COUNTY ROAD 115 | 1.6549953990 | $372,660 | $372,660 | $616.75 | | |
| CRPRD | COUNTY ROAD REFUND 115 | 0.0000000000 | $372,660 | $372,660 | $0.00 | | |
| | Total Tax Rate: | 9.5152210736 | | | | | |
| | | | | Taxes w/Current Exemptions: | $3,545.94 | | |
| | | | | Taxes w/o Exemptions: | $3,545.94 | | |
Improvement / Building
| Improvement #1: | MANUFACTURED HOME | State Code: | 11 | 2349.0 sqft | Value: | $305,570 |
| Exterior Wall: | SIDING | Heating/Cooling: | HEAT PUMP | | Number of Bathrooms: | 2 | Number of Bedrooms: | 3 | | Plumbing: | 12 | Roof Covering: | COMP SHINGLE |
|
| | Type | Description | Class CD | Sub Class CD | Year Built | Area |
| | MOBHOME | MANUFACTURD HOMES | 1 | 40 | 2010 | 2349.0 |
| | MI1 | MH SET-UP COSTS | 1 | 40 | 2010 | 1.0 |
| | POL1 | POLE BUILDING-GRAVEL | 1 | 40 | 2010 | 870.0 |
Sketch
Property Image
Land
| 1 | RES 1 | Converted: Residential | 0.7980 | 34760.00 | 0.00 | 0.00 | 1.00 | $67,090 | $0 |
Roll Value History
| 2026 | N/A | N/A | N/A | N/A | N/A |
| 2025 | $349,730 | $67,090 | $0 | $416,820 | $416,820 |
| 2024 | $320,850 | $67,090 | $0 | $387,940 | $387,940 |
| 2023 | $305,570 | $67,090 | $0 | $372,660 | $372,660 |
| 2022 | $291,020 | $67,090 | $0 | $358,110 | $358,110 |
| 2021 | $215,570 | $67,090 | $0 | $282,660 | $282,660 |
| 2020 | $196,070 | $35,000 | $0 | $231,070 | $231,070 |
| 2019 | $196,070 | $35,000 | $0 | $231,070 | $231,070 |
| 2018 | $196,070 | $35,000 | $0 | $231,070 | $231,070 |
| 2017 | $186,730 | $35,000 | $0 | $221,730 | $221,730 |
| 2016 | $177,840 | $35,000 | $0 | $212,840 | $212,840 |
| 2015 | $177,840 | $35,000 | $0 | $212,840 | $212,840 |
| 2014 | $148,200 | $35,000 | $0 | $183,200 | $183,200 |
| 2013 | $148,200 | $35,000 | $0 | $183,200 | $183,200 |
| 2012 | $131,500 | $35,000 | $0 | $0 | $0 |
| 2011 | $131,500 | $35,000 | $0 | $0 | $0 |
| 2010 | $7,600 | $35,000 | $0 | $0 | $0 |
| 2009 | $7,000 | $35,000 | $0 | $0 | $0 |
| 2008 | $7,000 | $35,000 | $0 | $0 | $0 |
| 2007 | $7,000 | $35,000 | $0 | $0 | $0 |
Deed and Sales History
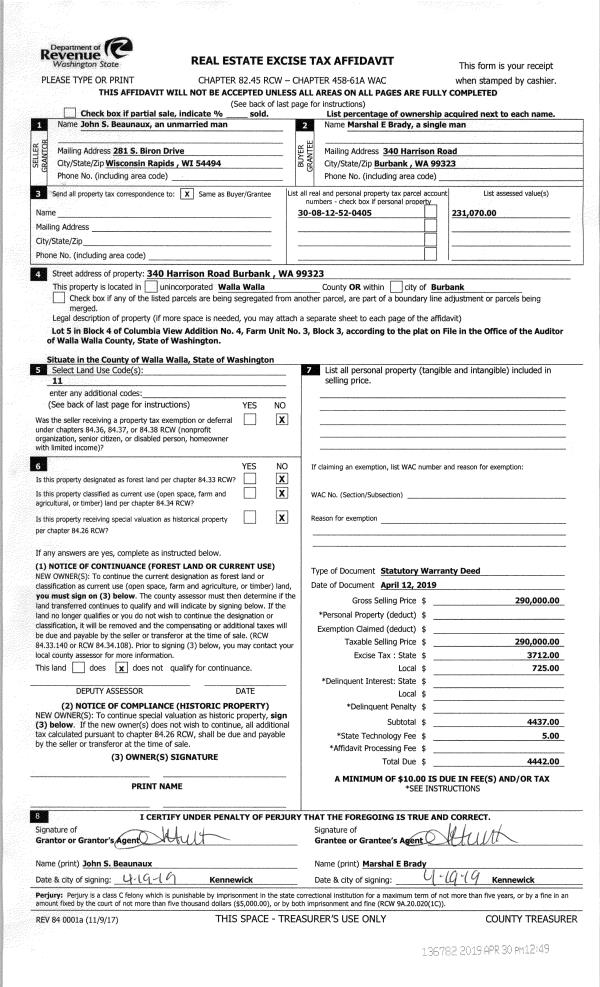
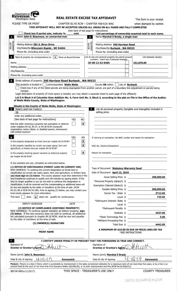
| 1 | 04/30/2019 | SWD | STATUTORY WARRANTY DEED | BEAUNAUX JOHN S | BRADY MARSHAL E | | | $290,000.00 | 136782 | 2019-02802 |
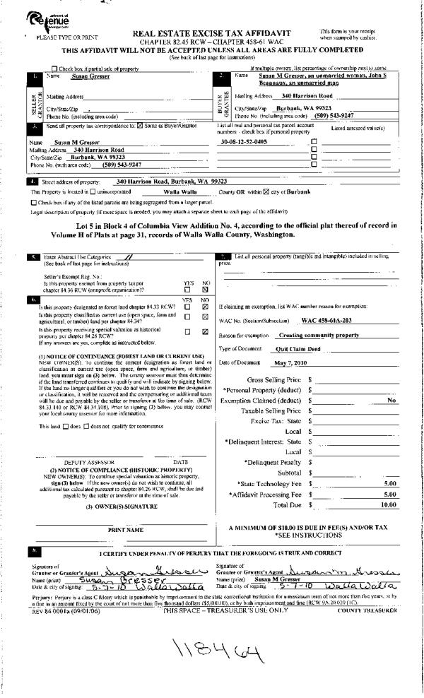
| 2 | 05/13/2010 | QCD | QUIT CLAIM DEED | GRESSER, SUSAN M | GRESSER, SUSAN M | | | | 118464 | 2010-03679 |
| 3 | 11/02/2007 | QCD | QUIT CLAIM DEED | GRESSER, FRANK B JR | GRESSER, SUSAN M | | | | 114020 | 2007-12713 |
Payout Agreement
| No payout information available.. |