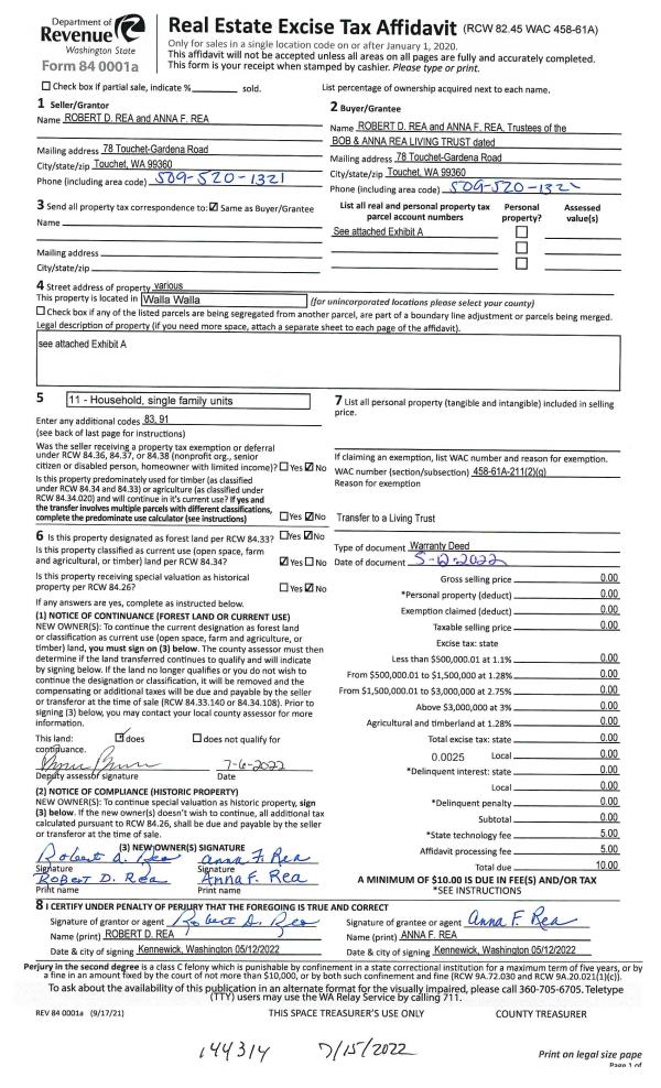
Property
Account |
| Property ID: | 2461 | Abbreviated Legal Description: | HANSON'S N1/2 OF LOT 5 BLK 1; N1/2 OF LOTS 7 & 8 BLK 1 |
| Parcel Number: | 330734540105 | Agent Code: | |
| Type: | Real | | |
| Tax Area: | 323 - 300-6-TM | Land Use Code | 82 |
| Open Space: | N | DFL | N |
| Historic Property: | N | Remodel Property: | N |
| Multi-Family Redevelopment: | N | | |
| Township: | 7 | Section: | 34 |
| Range: | 33 |
Location |
| Address: | WA 99360 | Mapsco: | |
| Neighborhood: | A Touchet/Lowden SFR | Map ID: | |
| Neighborhood CD: | 213611 |
Owner |
| Name: | BOB & ANNA REA LIVING TRUST | Owner ID: | 72100 |
| Mailing Address: | 78 TOUCHET GARDENA RD TOUCHET, WA 99360 | % Ownership: | 100.0000000000% |
| | | Exemptions: | |
Taxes and Assessment Details
Values
| (+) Improvement Homesite Value: | + | $0 | |
| (+) Improvement Non-Homesite Value: | + | $19,800 | |
| (+) Land Homesite Value: | + | $0 | |
| (+) Land Non-Homesite Value: | + | $9,930 | |
| (+) Curr Use (HS): | + | $0 | $0 |
| (+) Curr Use (NHS): | + | $0 | $0 |
| | | -------------------------- | |
| (=) Market Value: | = | $29,730 | |
| (–) Productivity Loss: | – | $0 | |
| | | -------------------------- | |
| (=) Subtotal: | = | $29,730 | |
| (+) Senior Appraised Value: | + | $0 | |
| (+) Non-Senior Appraised Value: | + | $29,730 | |
| | | -------------------------- | |
| (=) Total Appraised Value: | = | $29,730 | |
| (–) Senior Exemption Loss: | – | $0 | |
| (–) Exemption Loss: | – | $0 | |
| | | -------------------------- | |
| (=) Taxable Value: | = | $29,730 | |
Taxing Jurisdiction
| Owner: | BOB & ANNA REA LIVING TRUST | | |
| % Ownership: | 100.0000000000% | | |
| Total Value: | $29,730 | | |
| Tax Area: | 323 - 300-6-TM |
| CERFD | CURRENT EXPENSE REFUND 010 | 0.0000000000 | $29,730 | $29,730 | $0.00 | | |
| CURREXP | CURRENT EXPENSE 010 | 1.0175366760 | $29,730 | $29,730 | $30.25 | | |
| HUMNSERV | HUMAN SERVICES 119 | 0.0250000000 | $29,730 | $29,730 | $0.74 | | |
| SLDREL | SOLDIERS RELIEF 121 | 0.0155990005 | $29,730 | $29,730 | $0.46 | | |
| EMERGSER | EMS 147 | 0.3792580840 | $29,730 | $29,730 | $11.28 | | |
| EMSRFD | EMS REFUND 147 | 0.0000000000 | $29,730 | $29,730 | $0.00 | | |
| FD6EXP | FD #6 EXPENSE 693 | 0.6692985746 | $29,730 | $29,730 | $19.90 | | |
| RLBRFD | RURAL LIBRARY REFUND 623 | 0.0000000000 | $29,730 | $29,730 | $0.00 | | |
| RURALLIB | RURAL LIBRARY 623 | 0.3710609029 | $29,730 | $29,730 | $11.03 | | |
| PORTRFD | PORT REFUND 640 | 0.0000000000 | $29,730 | $29,730 | $0.00 | | |
| PORTWWGEN | PORT OF WW 640 | 0.2460186015 | $29,730 | $29,730 | $7.31 | | |
| SD300BOND | SD #300 BOND 783 | 1.8964951620 | $29,730 | $29,730 | $56.38 | | |
| SD300GEN | SD #300 GENERAL 780 | 2.1198322866 | $29,730 | $29,730 | $63.02 | | |
| ST2 | STATE SCHOOL PART 2 600 | 0.8131451643 | $29,730 | $29,730 | $24.17 | | |
| STATESCHL | STATE SCHOOL 600 | 1.5158548041 | $29,730 | $29,730 | $45.07 | | |
| STREFUND | STATE REFUND LEVY 603 | 0.0000000000 | $29,730 | $29,730 | $0.00 | | |
| COROAD | COUNTY ROAD 115 | 1.6549953990 | $29,730 | $29,730 | $49.20 | | |
| CRPRD | COUNTY ROAD REFUND 115 | 0.0000000000 | $29,730 | $29,730 | $0.00 | | |
| | Total Tax Rate: | 10.7240946555 | | | | | |
| | | | | Taxes w/Current Exemptions: | $318.81 | | |
| | | | | Taxes w/o Exemptions: | $318.81 | | |
Improvement / Building
| Improvement #1: | COMMERCIAL | State Code: | 82 | 3200.0 sqft | Value: | $19,800 |
| | Type | Description | Class CD | Sub Class CD | Year Built | Area |
| | MA | Main Area | D | * | 1967 | 3200.0 |
| | SI1 | SITE IMPROVEMENT | D | * | 1967 | 1.0 |
Sketch
Property Image
Land
| 1 | RES 1 | Converted: Residential | 0.2066 | 8999.50 | 0.00 | 0.00 | 1.00 | $9,930 | $0 |
Roll Value History
| 2026 | N/A | N/A | N/A | N/A | N/A |
| 2025 | $19,800 | $9,930 | $0 | $29,730 | $29,730 |
| 2024 | $19,800 | $9,930 | $0 | $29,730 | $29,730 |
| 2023 | $19,800 | $9,930 | $0 | $29,730 | $29,730 |
| 2022 | $19,800 | $9,930 | $0 | $29,730 | $29,730 |
| 2021 | $19,800 | $9,930 | $0 | $29,730 | $29,730 |
| 2020 | $33,800 | $3,300 | $0 | $37,100 | $37,100 |
| 2019 | $33,800 | $3,300 | $0 | $37,100 | $37,100 |
| 2018 | $33,800 | $3,300 | $0 | $37,100 | $37,100 |
| 2017 | $33,800 | $3,300 | $0 | $37,100 | $37,100 |
| 2016 | $33,800 | $3,300 | $0 | $37,100 | $37,100 |
| 2015 | $33,800 | $3,300 | $0 | $37,100 | $37,100 |
| 2014 | $33,800 | $3,300 | $0 | $37,100 | $37,100 |
| 2013 | $33,800 | $3,300 | $0 | $37,100 | $37,100 |
| 2012 | $33,800 | $3,300 | $0 | $0 | $0 |
| 2011 | $33,800 | $3,300 | $0 | $0 | $0 |
| 2010 | $33,800 | $3,300 | $0 | $0 | $0 |
| 2009 | $35,900 | $1,800 | $0 | $0 | $0 |
| 2008 | $35,900 | $1,800 | $0 | $0 | $0 |
| 2007 | $35,900 | $1,800 | $0 | $0 | $0 |
Deed and Sales History
| 1 | 07/15/2022 | WARRANTY D | WARRANTY DEED | REA ROBERT D | BOB & ANNA REA LIVING TRUST | 10 PARCELS | | $0.00 | 144314 | 2022-06042 |
| 2 | 05/12/1972 | WARRANTY D | WARRANTY DEED | | | | | $2,300.00 | 0 | 3450-521137 |
Payout Agreement
| No payout information available.. |