Property
Account |
| Property ID: | 24577 | Abbreviated Legal Description: | HARRISON RAY INC ADDN PARCEL #8 BLK 4 |
| Parcel Number: | 300812570408 | Agent Code: | |
| Type: | Real | | |
| Tax Area: | 331 - 400-M-5-W4 | Land Use Code | 11 |
| Open Space: | N | DFL | N |
| Historic Property: | N | Remodel Property: | N |
| Multi-Family Redevelopment: | N | | |
| Township: | 8 | Section: | 12 |
| Range: | 30 |
Location |
| Address: | 142 ADAIR RD WA 99323 | Mapsco: | |
| Neighborhood: | Burbank A MH | Map ID: | |
| Neighborhood CD: | 213761 |
Owner |
| Name: | BLEICHNER RICHARD T | Owner ID: | 65319 |
| Mailing Address: | ANGELA D GREEN 142 ADAIR RD BURBANK, WA 99324 | % Ownership: | 100.0000000000% |
| | | Exemptions: | |
Taxes and Assessment Details
Values
| (+) Improvement Homesite Value: | + | $0 | |
| (+) Improvement Non-Homesite Value: | + | $228,970 | |
| (+) Land Homesite Value: | + | $0 | |
| (+) Land Non-Homesite Value: | + | $60,190 | |
| (+) Curr Use (HS): | + | $0 | $0 |
| (+) Curr Use (NHS): | + | $0 | $0 |
| | | -------------------------- | |
| (=) Market Value: | = | $289,160 | |
| (–) Productivity Loss: | – | $0 | |
| | | -------------------------- | |
| (=) Subtotal: | = | $289,160 | |
| (+) Senior Appraised Value: | + | $0 | |
| (+) Non-Senior Appraised Value: | + | $289,160 | |
| | | -------------------------- | |
| (=) Total Appraised Value: | = | $289,160 | |
| (–) Senior Exemption Loss: | – | $0 | |
| (–) Exemption Loss: | – | $0 | |
| | | -------------------------- | |
| (=) Taxable Value: | = | $289,160 | |
Taxing Jurisdiction
| Owner: | BLEICHNER RICHARD T | | |
| % Ownership: | 100.0000000000% | | |
| Total Value: | $289,160 | | |
| Tax Area: | 331 - 400-M-5-W4 |
| CERFD | CURRENT EXPENSE REFUND 010 | 0.0000000000 | $289,160 | $289,160 | $0.00 | | |
| CURREXP | CURRENT EXPENSE 010 | 1.0175366760 | $289,160 | $289,160 | $294.23 | | |
| HUMNSERV | HUMAN SERVICES 119 | 0.0250000000 | $289,160 | $289,160 | $7.23 | | |
| SLDREL | SOLDIERS RELIEF 121 | 0.0155990005 | $289,160 | $289,160 | $4.51 | | |
| EMERGSER | EMS 147 | 0.3792580840 | $289,160 | $289,160 | $109.67 | | |
| EMSRFD | EMS REFUND 147 | 0.0000000000 | $289,160 | $289,160 | $0.00 | | |
| FD5EXP | FD #5 EXPENSE 689 | 1.2045331840 | $289,160 | $289,160 | $348.30 | | |
| RLBRFD | RURAL LIBRARY REFUND 623 | 0.0000000000 | $289,160 | $289,160 | $0.00 | | |
| RURALLIB | RURAL LIBRARY 623 | 0.3710609029 | $289,160 | $289,160 | $107.30 | | |
| PORTRFD | PORT REFUND 640 | 0.0000000000 | $289,160 | $289,160 | $0.00 | | |
| PORTWWGEN | PORT OF WW 640 | 0.2460186015 | $289,160 | $289,160 | $71.14 | | |
| SD400BOND | SD #400 BOND 793 | 0.0000000000 | $289,160 | $289,160 | $0.00 | | |
| SD400CAP | SD #400 CP 792 | 0.3443722657 | $289,160 | $289,160 | $99.58 | | |
| SD400GEN | SD #400 GENERAL 790 | 1.9278469916 | $289,160 | $289,160 | $557.46 | | |
| ST2 | STATE SCHOOL PART 2 600 | 0.8131451643 | $289,160 | $289,160 | $235.13 | | |
| STATESCHL | STATE SCHOOL 600 | 1.5158548041 | $289,160 | $289,160 | $438.32 | | |
| STREFUND | STATE REFUND LEVY 603 | 0.0000000000 | $289,160 | $289,160 | $0.00 | | |
| COROAD | COUNTY ROAD 115 | 1.6549953990 | $289,160 | $289,160 | $478.56 | | |
| CRPRD | COUNTY ROAD REFUND 115 | 0.0000000000 | $289,160 | $289,160 | $0.00 | | |
| | Total Tax Rate: | 9.5152210736 | | | | | |
| | | | | Taxes w/Current Exemptions: | $2,751.43 | | |
| | | | | Taxes w/o Exemptions: | $2,751.43 | | |
Improvement / Building
| Improvement #1: | MANUFACTURED HOME | State Code: | 11 | 1214.0 sqft | Value: | $228,970 |
| Exterior Wall: | METAL/STEEL | Heating/Cooling: | WARM & COOLED AIR | | Number of Bathrooms: | 2 | Number of Bedrooms: | 2 | | Plumbing: | 8 | Roof Covering: | COMP SHINGLE |
|
| | Type | Description | Class CD | Sub Class CD | Year Built | Area |
| | MOBHOME | MANUFACTURD HOMES | 1 | 30 | 1977 | 1214.0 |
| | MI1 | MH SET-UP COSTS | 1 | 30 | 1977 | 1.0 |
| | POL3 | POLE BUILDING-CON,ELEC,INSU | 1 | 30 | 1977 | 864.0 |
| | WOD | Wood Deck | 1 | 30 | 1977 | 60.0 |
Sketch
Property Image
Land
| 1 | RES 1 | Converted: Residential | 0.3177 | 13837.00 | 0.00 | 0.00 | 1.00 | $60,190 | $0 |
Roll Value History
| 2026 | N/A | N/A | N/A | N/A | N/A |
| 2025 | $228,970 | $60,190 | $0 | $289,160 | $289,160 |
| 2024 | $228,970 | $60,190 | $0 | $289,160 | $289,160 |
| 2023 | $228,970 | $60,190 | $0 | $289,160 | $289,160 |
| 2022 | $134,690 | $60,190 | $0 | $194,880 | $194,880 |
| 2021 | $134,690 | $60,190 | $0 | $194,880 | $194,880 |
| 2020 | $118,900 | $23,400 | $0 | $142,300 | $142,300 |
| 2019 | $118,900 | $23,400 | $0 | $142,300 | $142,300 |
| 2018 | $108,090 | $23,400 | $0 | $131,490 | $131,490 |
| 2017 | $83,150 | $23,400 | $0 | $106,550 | $35,390 |
| 2016 | $75,590 | $23,400 | $0 | $98,990 | $35,390 |
| 2015 | $71,990 | $23,400 | $0 | $95,390 | $35,390 |
| 2014 | $62,600 | $23,400 | $0 | $86,000 | $86,000 |
| 2013 | $62,600 | $23,400 | $0 | $86,000 | $86,000 |
| 2012 | $62,600 | $23,400 | $0 | $0 | $0 |
| 2011 | $62,600 | $23,400 | $0 | $0 | $0 |
| 2010 | $62,600 | $23,400 | $0 | $0 | $0 |
| 2009 | $72,200 | $19,500 | $0 | $0 | $0 |
| 2008 | $41,600 | $19,500 | $0 | $0 | $0 |
| 2007 | $41,600 | $19,500 | $0 | $0 | $0 |
Deed and Sales History
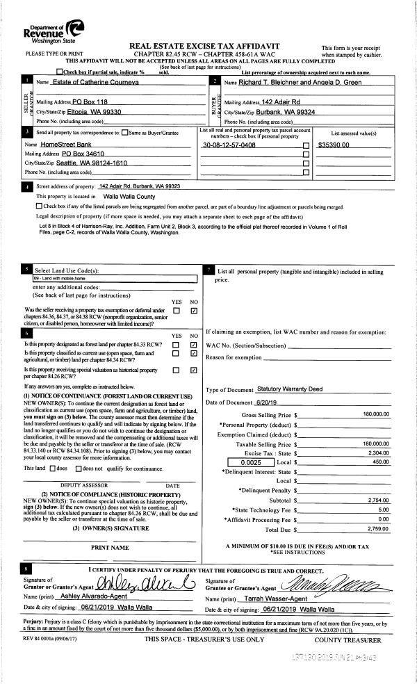
| 1 | 06/21/2019 | SWD | STATUTORY WARRANTY DEED | COURNEYA CATHERINE S ESTATE OF | BLEICHNER RICHARD T | | | $180,000.00 | 137130 | 2019-04403 |
| 2 | 12/10/2002 | WARRANTY D | WARRANTY DEED | CITIFINANCIAL MTG COMPANY,LLC | COURNEYA, CATHERINE S | | | $58,000.00 | 100986 | 2002-14107 |
Payout Agreement
| No payout information available.. |