Property
Account |
| Property ID: | 24570 | Abbreviated Legal Description: | HARRISON SAGE SUBD. PARCEL 2 BLK 2 |
| Parcel Number: | 300812560202 | Agent Code: | |
| Type: | Real | | |
| Tax Area: | 331 - 400-M-5-W4 | Land Use Code | 11 |
| Open Space: | N | DFL | N |
| Historic Property: | N | Remodel Property: | N |
| Multi-Family Redevelopment: | N | | |
| Township: | 8 | Section: | 12 |
| Range: | 30 |
Location |
| Address: | 541 W HUMORIST RD WA 99323 | Mapsco: | |
| Neighborhood: | Burbank A MH | Map ID: | |
| Neighborhood CD: | 213761 |
Owner |
| Name: | ADELE PROPERTIES LLC | Owner ID: | 58981 |
| Mailing Address: | 452 BASIN DR BURBANK, WA 99323 | % Ownership: | 100.0000000000% |
| | | Exemptions: | |
Taxes and Assessment Details
Property Tax Information as of
02/21/2026
Click on "Statement Details" to expand or collapse a tax statement.
* Please enter a valid date ** Please enter a valid date *
Statement Details |
| | TOTAL: | $0.00 | $0.00 | $0.00 | $0.00 | $0.00 | $0.00 |
|
| | $0.00 | $0.00 | $0.00 | $0.00 | $0.00 | $0.00 |
Values
| (+) Improvement Homesite Value: | + | $0 | |
| (+) Improvement Non-Homesite Value: | + | $83,120 | |
| (+) Land Homesite Value: | + | $0 | |
| (+) Land Non-Homesite Value: | + | $59,720 | |
| (+) Curr Use (HS): | + | $0 | $0 |
| (+) Curr Use (NHS): | + | $0 | $0 |
| | | -------------------------- | |
| (=) Market Value: | = | $142,840 | |
| (–) Productivity Loss: | – | $0 | |
| | | -------------------------- | |
| (=) Subtotal: | = | $142,840 | |
| (+) Senior Appraised Value: | + | $0 | |
| (+) Non-Senior Appraised Value: | + | $142,840 | |
| | | -------------------------- | |
| (=) Total Appraised Value: | = | $142,840 | |
| (–) Senior Exemption Loss: | – | $0 | |
| (–) Exemption Loss: | – | $0 | |
| | | -------------------------- | |
| (=) Taxable Value: | = | $142,840 | |
Taxing Jurisdiction
| Owner: | ADELE PROPERTIES LLC | | |
| % Ownership: | 100.0000000000% | | |
| Total Value: | $142,840 | | |
| Tax Area: | 331 - 400-M-5-W4 |
| CERFD | CURRENT EXPENSE REFUND 010 | 0.0000000000 | $142,840 | $142,840 | $0.00 | | |
| CURREXP | CURRENT EXPENSE 010 | 1.0175366760 | $142,840 | $142,840 | $145.34 | | |
| HUMNSERV | HUMAN SERVICES 119 | 0.0250000000 | $142,840 | $142,840 | $3.57 | | |
| SLDREL | SOLDIERS RELIEF 121 | 0.0155990005 | $142,840 | $142,840 | $2.23 | | |
| EMERGSER | EMS 147 | 0.3792580840 | $142,840 | $142,840 | $54.17 | | |
| EMSRFD | EMS REFUND 147 | 0.0000000000 | $142,840 | $142,840 | $0.00 | | |
| FD5EXP | FD #5 EXPENSE 689 | 1.2045331840 | $142,840 | $142,840 | $172.06 | | |
| RLBRFD | RURAL LIBRARY REFUND 623 | 0.0000000000 | $142,840 | $142,840 | $0.00 | | |
| RURALLIB | RURAL LIBRARY 623 | 0.3710609029 | $142,840 | $142,840 | $53.00 | | |
| PORTRFD | PORT REFUND 640 | 0.0000000000 | $142,840 | $142,840 | $0.00 | | |
| PORTWWGEN | PORT OF WW 640 | 0.2460186015 | $142,840 | $142,840 | $35.14 | | |
| SD400BOND | SD #400 BOND 793 | 0.0000000000 | $142,840 | $142,840 | $0.00 | | |
| SD400CAP | SD #400 CP 792 | 0.3443722657 | $142,840 | $142,840 | $49.19 | | |
| SD400GEN | SD #400 GENERAL 790 | 1.9278469916 | $142,840 | $142,840 | $275.37 | | |
| ST2 | STATE SCHOOL PART 2 600 | 0.8131451643 | $142,840 | $142,840 | $116.15 | | |
| STATESCHL | STATE SCHOOL 600 | 1.5158548041 | $142,840 | $142,840 | $216.52 | | |
| STREFUND | STATE REFUND LEVY 603 | 0.0000000000 | $142,840 | $142,840 | $0.00 | | |
| COROAD | COUNTY ROAD 115 | 1.6549953990 | $142,840 | $142,840 | $236.40 | | |
| CRPRD | COUNTY ROAD REFUND 115 | 0.0000000000 | $142,840 | $142,840 | $0.00 | | |
| | Total Tax Rate: | 9.5152210736 | | | | | |
| | | | | Taxes w/Current Exemptions: | $1,359.14 | | |
| | | | | Taxes w/o Exemptions: | $1,359.14 | | |
Improvement / Building
| Improvement #1: | MANUFACTURED HOME | State Code: | 11 | 872.0 sqft | Value: | $83,120 |
| Exterior Wall: | RIBBED ALUMINUM | Heating/Cooling: | REV-HEAT-PUMP-W/DUCT | | Number of Bathrooms: | 2 | Number of Bedrooms: | 2 | | Plumbing: | 8 | Roof Covering: | GALVANIZED METAL |
|
| | Type | Description | Class CD | Sub Class CD | Year Built | Area |
| | MOBHOME | MANUFACTURD HOMES | 1 | 30 | 1981 | 872.0 |
| | MI1 | MH SET-UP COSTS | 1 | 30 | 1981 | 1.0 |
| | WDR | WOOD DECK W/ROOF | 1 | 30 | 1981 | 384.0 |
| | POL2 | POLE BUILDING-CONCRETE | 1 | 30 | 1981 | 600.0 |
Sketch
Property Image
Land
| 1 | RES 1 | Converted: Residential | 0.2893 | 12600.00 | 0.00 | 0.00 | 1.00 | $59,720 | $0 |
Roll Value History
| 2026 | N/A | N/A | N/A | N/A | N/A |
| 2025 | $83,120 | $59,720 | $0 | $142,840 | $142,840 |
| 2024 | $83,120 | $59,720 | $0 | $142,840 | $142,840 |
| 2023 | $83,120 | $59,720 | $0 | $142,840 | $142,840 |
| 2022 | $83,120 | $59,720 | $0 | $142,840 | $142,840 |
| 2021 | $55,410 | $59,720 | $0 | $115,130 | $115,130 |
| 2020 | $45,850 | $22,800 | $0 | $68,650 | $68,650 |
| 2019 | $45,850 | $22,800 | $0 | $68,650 | $68,650 |
| 2018 | $45,850 | $22,800 | $0 | $68,650 | $68,650 |
| 2017 | $45,850 | $22,800 | $0 | $68,650 | $68,650 |
| 2016 | $41,680 | $22,800 | $0 | $64,480 | $64,480 |
| 2015 | $52,100 | $22,800 | $0 | $74,900 | $74,900 |
| 2014 | $52,100 | $22,800 | $0 | $74,900 | $74,900 |
| 2013 | $52,100 | $22,800 | $0 | $74,900 | $74,900 |
| 2012 | $52,100 | $22,800 | $0 | $0 | $0 |
| 2011 | $52,100 | $22,800 | $0 | $0 | $0 |
| 2010 | $52,100 | $22,800 | $0 | $0 | $0 |
| 2009 | $60,100 | $18,500 | $0 | $0 | $0 |
| 2008 | $33,900 | $18,500 | $0 | $0 | $0 |
| 2007 | $33,900 | $18,500 | $0 | $0 | $0 |
Deed and Sales History
| 1 | 06/21/2016 | QCD | QUIT CLAIM DEED | SHEPARD DENNIS & HAZEL | ADELE PROPERTIES LLC | | | $0.00 | 130463 | 2016-04771 |
| 2 | 05/08/2015 | MH AFFIDAV | MOBILE HOME AFFIDAVIT | MC FARLAND MELVIN K ESTATE OF | SHEPARD DENNIS & HAZEL | | | $20,000.00 | 127921 | MHAFF-127921 |
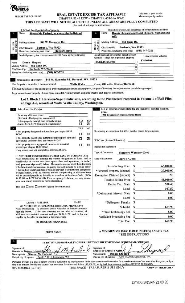
| 3 | 04/21/2015 | SWD | STATUTORY WARRANTY DEED | MC FARLAND SHEENA | SHEPARD DENNIS & HAZEL | | | $43,000.00 | 127805 | 2015-03173 |
| 4 | 07/02/2014 | DPR | DEED OF PERSONAL REPRESENTATIVE | MC FARLAND MELVIN K ESTATE OF | MC FARLAND SHEENA | | | | 126186 | 2014-04590 |
Payout Agreement
| No payout information available.. |