Property
Account |
| Property ID: | 2456 | Abbreviated Legal Description: | CUMMINS LOTS 4 THRU 6 BLK 7 |
| Parcel Number: | 330734520717 | Agent Code: | |
| Type: | Real | | |
| Tax Area: | 323 - 300-6-TM | Land Use Code | 11 |
| Open Space: | N | DFL | N |
| Historic Property: | N | Remodel Property: | N |
| Multi-Family Redevelopment: | N | | |
| Township: | 7 | Section: | 34 |
| Range: | 33 |
Location |
| Address: | 144 CENTER ST WA 99360 | Mapsco: | |
| Neighborhood: | A Touchet/Lowden SFR | Map ID: | |
| Neighborhood CD: | 213611 |
Owner |
| Name: | CARDWELL HARVEY D | Owner ID: | 62664 |
| Mailing Address: | 21 MAIDEN RD TOUCHET, WA 99360 | % Ownership: | 100.0000000000% |
| | | Exemptions: | |
Taxes and Assessment Details
Values
| (+) Improvement Homesite Value: | + | $0 | |
| (+) Improvement Non-Homesite Value: | + | $187,540 | |
| (+) Land Homesite Value: | + | $0 | |
| (+) Land Non-Homesite Value: | + | $48,010 | |
| (+) Curr Use (HS): | + | $0 | $0 |
| (+) Curr Use (NHS): | + | $0 | $0 |
| | | -------------------------- | |
| (=) Market Value: | = | $235,550 | |
| (–) Productivity Loss: | – | $0 | |
| | | -------------------------- | |
| (=) Subtotal: | = | $235,550 | |
| (+) Senior Appraised Value: | + | $0 | |
| (+) Non-Senior Appraised Value: | + | $235,550 | |
| | | -------------------------- | |
| (=) Total Appraised Value: | = | $235,550 | |
| (–) Senior Exemption Loss: | – | $0 | |
| (–) Exemption Loss: | – | $0 | |
| | | -------------------------- | |
| (=) Taxable Value: | = | $235,550 | |
Taxing Jurisdiction
| Owner: | CARDWELL HARVEY D | | |
| % Ownership: | 100.0000000000% | | |
| Total Value: | $235,550 | | |
| Tax Area: | 323 - 300-6-TM |
| CERFD | CURRENT EXPENSE REFUND 010 | 0.0000000000 | $235,550 | $235,550 | $0.00 | | |
| CURREXP | CURRENT EXPENSE 010 | 1.0175366760 | $235,550 | $235,550 | $239.68 | | |
| HUMNSERV | HUMAN SERVICES 119 | 0.0250000000 | $235,550 | $235,550 | $5.89 | | |
| SLDREL | SOLDIERS RELIEF 121 | 0.0155990005 | $235,550 | $235,550 | $3.67 | | |
| EMERGSER | EMS 147 | 0.3792580840 | $235,550 | $235,550 | $89.33 | | |
| EMSRFD | EMS REFUND 147 | 0.0000000000 | $235,550 | $235,550 | $0.00 | | |
| FD6EXP | FD #6 EXPENSE 693 | 0.6692985746 | $235,550 | $235,550 | $157.65 | | |
| RLBRFD | RURAL LIBRARY REFUND 623 | 0.0000000000 | $235,550 | $235,550 | $0.00 | | |
| RURALLIB | RURAL LIBRARY 623 | 0.3710609029 | $235,550 | $235,550 | $87.40 | | |
| PORTRFD | PORT REFUND 640 | 0.0000000000 | $235,550 | $235,550 | $0.00 | | |
| PORTWWGEN | PORT OF WW 640 | 0.2460186015 | $235,550 | $235,550 | $57.95 | | |
| SD300BOND | SD #300 BOND 783 | 1.8964951620 | $235,550 | $235,550 | $446.72 | | |
| SD300GEN | SD #300 GENERAL 780 | 2.1198322866 | $235,550 | $235,550 | $499.33 | | |
| ST2 | STATE SCHOOL PART 2 600 | 0.8131451643 | $235,550 | $235,550 | $191.54 | | |
| STATESCHL | STATE SCHOOL 600 | 1.5158548041 | $235,550 | $235,550 | $357.06 | | |
| STREFUND | STATE REFUND LEVY 603 | 0.0000000000 | $235,550 | $235,550 | $0.00 | | |
| COROAD | COUNTY ROAD 115 | 1.6549953990 | $235,550 | $235,550 | $389.83 | | |
| CRPRD | COUNTY ROAD REFUND 115 | 0.0000000000 | $235,550 | $235,550 | $0.00 | | |
| | Total Tax Rate: | 10.7240946555 | | | | | |
| | | | | Taxes w/Current Exemptions: | $2,526.05 | | |
| | | | | Taxes w/o Exemptions: | $2,526.05 | | |
Improvement / Building
| Improvement #1: | RESIDENTIAL | State Code: | 11 | 1288.0 sqft | Value: | $187,540 |
| Exterior Wall: | PLYWOOD | Foundation: | SLAB FOUNDATION | | Heating/Cooling: | WARM & COOLED AIR | Number of Bathrooms: | 1 | | Number of Bedrooms: | 3 | Plumbing: | 6 | | Roof Covering: | COMP SHINGLE |   |   |
|
| | Type | Description | Class CD | Sub Class CD | Year Built | Area |
| | MA | Main Area | 1 | 30 | 1978 | 1288.0 |
| | SI1 | SITE IMPROVEMENT | 1 | 30 | 1978 | 1.0 |
| | WOD | Wood Deck | 1 | 30 | 1978 | 200.0 |
| | RPO | OPEN PORCH W/ROOF | 1 | 30 | 1978 | 64.0 |
Sketch
Property Image
Land
| 1 | RES 1 | Converted: Residential | 0.4373 | 19050.00 | 0.00 | 0.00 | 1.00 | $48,010 | $0 |
Roll Value History
| 2026 | N/A | N/A | N/A | N/A | N/A |
| 2025 | $187,540 | $48,010 | $0 | $235,550 | $235,550 |
| 2024 | $187,540 | $48,010 | $0 | $235,550 | $235,550 |
| 2023 | $187,540 | $48,010 | $0 | $235,550 | $235,550 |
| 2022 | $163,080 | $48,010 | $0 | $211,090 | $211,090 |
| 2021 | $108,720 | $48,010 | $0 | $156,730 | $156,730 |
| 2020 | $112,080 | $36,000 | $0 | $148,080 | $148,080 |
| 2019 | $112,080 | $36,000 | $0 | $148,080 | $148,080 |
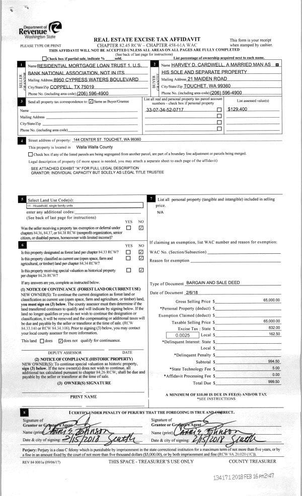
| 2018 | $93,400 | $36,000 | $0 | $129,400 | $129,400 |
| 2017 | $93,400 | $36,000 | $0 | $129,400 | $129,400 |
| 2016 | $93,400 | $36,000 | $0 | $129,400 | $129,400 |
| 2015 | $93,400 | $36,000 | $0 | $129,400 | $129,400 |
| 2014 | $93,400 | $36,000 | $0 | $129,400 | $129,400 |
| 2013 | $93,400 | $36,000 | $0 | $129,400 | $129,400 |
| 2012 | $93,400 | $36,000 | $0 | $0 | $0 |
| 2011 | $93,400 | $36,000 | $0 | $0 | $0 |
| 2010 | $93,400 | $36,000 | $0 | $0 | $0 |
| 2009 | $119,000 | $20,100 | $0 | $0 | $0 |
| 2008 | $82,900 | $20,100 | $0 | $0 | $0 |
| 2007 | $82,900 | $20,100 | $0 | $0 | $0 |
Deed and Sales History
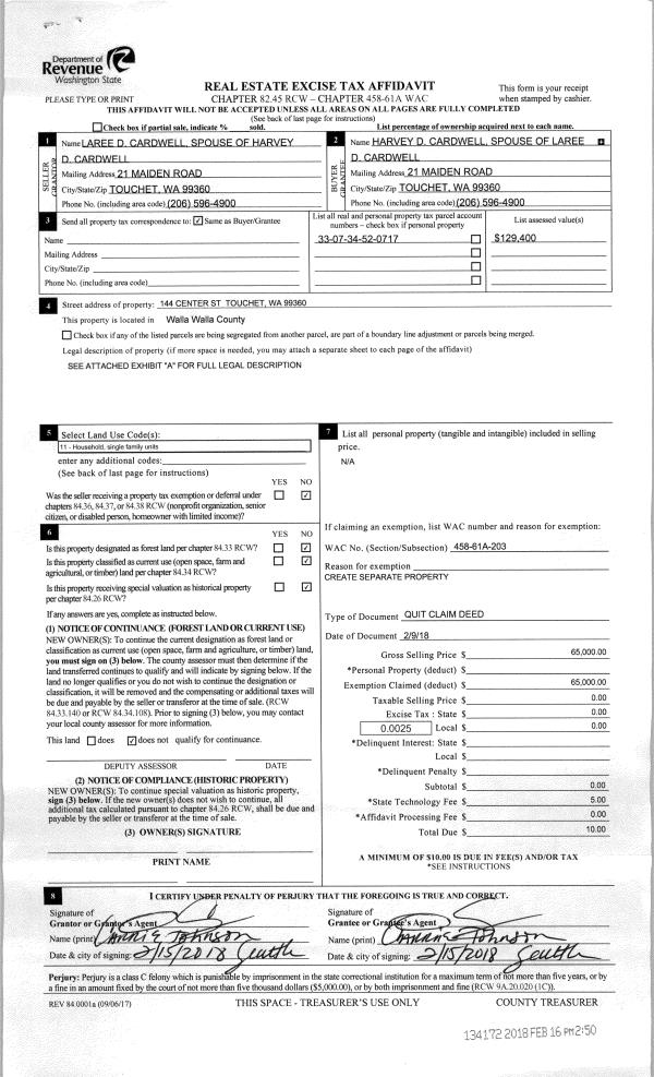
| 1 | 02/16/2018 | QCD | QUIT CLAIM DEED | CARDWELL LAREE D | CARDWELL HARVEY D | | | | 134172 | 2018-01364 |
| 2 | 02/16/2018 | BARGAIN & | BARGAIN & SALE DEED | RESIDENTIAL MORTGAGE LOAN TRUST I | CARDWELL HARVEY D | | | $65,000.00 | 134171 | 2018-01363 |
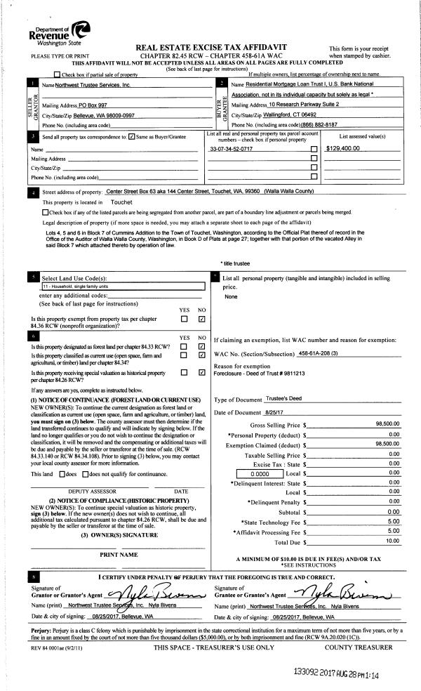
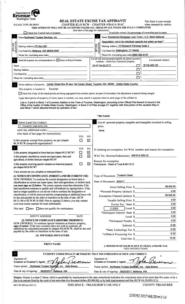
| 3 | 08/28/2017 | TRUSTEES D | TRUSTEE'S DEED | CITIMORTGAGE INC | RESIDENTIAL MORTGAGE LOAN TRUST I | | | $98,500.00 | 133092 | 2017-06723 |
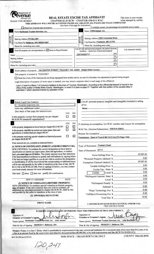
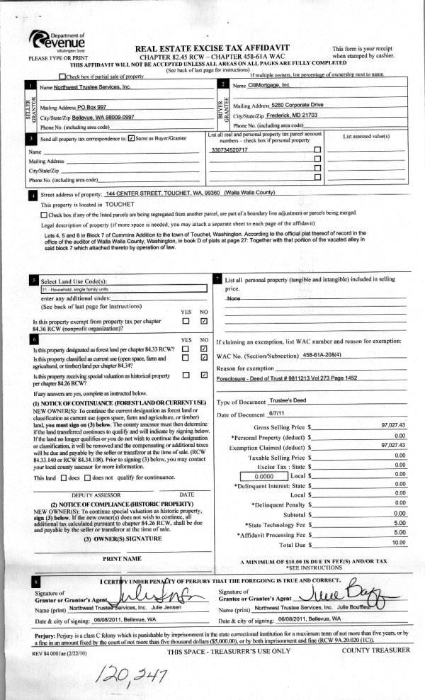
| 4 | 06/10/2011 | WARRANTY D | WARRANTY DEED | NORTHWEST TRUSTEE SERVICES INC | CITIMORTGAGE INC | | | $97,027.00 | 120247 | 2011-04485 |
| 5 | 09/30/1998 | WARRANTY D | WARRANTY DEED | | | | | $85,900.00 | 91346 | 2739-811212 |
Payout Agreement
| No payout information available.. |