Property
Account |
| Property ID: | 24545 | Abbreviated Legal Description: | HANSON'S PARCEL #6 BLK 16 |
| Parcel Number: | 330734541606 | Agent Code: | |
| Type: | Real | | |
| Tax Area: | 318 - 300-6-TM | Land Use Code | 11 |
| Open Space: | N | DFL | N |
| Historic Property: | N | Remodel Property: | N |
| Multi-Family Redevelopment: | N | | |
| Township: | 7 | Section: | 34 |
| Range: | 33 |
Location |
| Address: | 254 TOUCHET GARDENA RD WA 99360 | Mapsco: | |
| Neighborhood: | A Touchet/Lowden MH | Map ID: | |
| Neighborhood CD: | 213661 |
Owner |
| Name: | EILERTSON TRAVIS L & APRIL A | Owner ID: | 68771 |
| Mailing Address: | 254 TOUCHET GARDENA RD TOUCHET, WA 99360 | % Ownership: | 100.0000000000% |
| | | Exemptions: | |
Taxes and Assessment Details
Property Tax Information as of
02/21/2026
Click on "Statement Details" to expand or collapse a tax statement.
* Please enter a valid date ** Please enter a valid date *
Statement Details |
| | TOTAL: | $0.00 | $0.00 | $0.00 | $0.00 | $0.00 | $0.00 |
|
| | $0.00 | $0.00 | $0.00 | $0.00 | $0.00 | $0.00 |
Values
| (+) Improvement Homesite Value: | + | $0 | |
| (+) Improvement Non-Homesite Value: | + | $192,480 | |
| (+) Land Homesite Value: | + | $0 | |
| (+) Land Non-Homesite Value: | + | $61,070 | |
| (+) Curr Use (HS): | + | $0 | $0 |
| (+) Curr Use (NHS): | + | $0 | $0 |
| | | -------------------------- | |
| (=) Market Value: | = | $253,550 | |
| (–) Productivity Loss: | – | $0 | |
| | | -------------------------- | |
| (=) Subtotal: | = | $253,550 | |
| (+) Senior Appraised Value: | + | $0 | |
| (+) Non-Senior Appraised Value: | + | $253,550 | |
| | | -------------------------- | |
| (=) Total Appraised Value: | = | $253,550 | |
| (–) Senior Exemption Loss: | – | $0 | |
| (–) Exemption Loss: | – | $0 | |
| | | -------------------------- | |
| (=) Taxable Value: | = | $253,550 | |
Taxing Jurisdiction
| Owner: | EILERTSON TRAVIS L & APRIL A | | |
| % Ownership: | 100.0000000000% | | |
| Total Value: | $253,550 | | |
| Tax Area: | 318 - 300-6-TM |
| CERFD | CURRENT EXPENSE REFUND 010 | 0.0000000000 | $253,550 | $253,550 | $0.00 | | |
| CURREXP | CURRENT EXPENSE 010 | 1.0175366760 | $253,550 | $253,550 | $258.00 | | |
| HUMNSERV | HUMAN SERVICES 119 | 0.0250000000 | $253,550 | $253,550 | $6.34 | | |
| SLDREL | SOLDIERS RELIEF 121 | 0.0155990005 | $253,550 | $253,550 | $3.96 | | |
| EMERGSER | EMS 147 | 0.3792580840 | $253,550 | $253,550 | $96.16 | | |
| EMSRFD | EMS REFUND 147 | 0.0000000000 | $253,550 | $253,550 | $0.00 | | |
| FD6EXP | FD #6 EXPENSE 693 | 0.6692985746 | $253,550 | $253,550 | $169.70 | | |
| RLBRFD | RURAL LIBRARY REFUND 623 | 0.0000000000 | $253,550 | $253,550 | $0.00 | | |
| RURALLIB | RURAL LIBRARY 623 | 0.3710609029 | $253,550 | $253,550 | $94.08 | | |
| PORTRFD | PORT REFUND 640 | 0.0000000000 | $253,550 | $253,550 | $0.00 | | |
| PORTWWGEN | PORT OF WW 640 | 0.2460186015 | $253,550 | $253,550 | $62.38 | | |
| SD300BOND | SD #300 BOND 783 | 1.8964951620 | $253,550 | $253,550 | $480.86 | | |
| SD300GEN | SD #300 GENERAL 780 | 2.1198322866 | $253,550 | $253,550 | $537.48 | | |
| ST2 | STATE SCHOOL PART 2 600 | 0.8131451643 | $253,550 | $253,550 | $206.17 | | |
| STATESCHL | STATE SCHOOL 600 | 1.5158548041 | $253,550 | $253,550 | $384.34 | | |
| STREFUND | STATE REFUND LEVY 603 | 0.0000000000 | $253,550 | $253,550 | $0.00 | | |
| COROAD | COUNTY ROAD 115 | 1.6549953990 | $253,550 | $253,550 | $419.62 | | |
| CRPRD | COUNTY ROAD REFUND 115 | 0.0000000000 | $253,550 | $253,550 | $0.00 | | |
| | Total Tax Rate: | 10.7240946555 | | | | | |
| | | | | Taxes w/Current Exemptions: | $2,719.09 | | |
| | | | | Taxes w/o Exemptions: | $2,719.09 | | |
Improvement / Building
| Improvement #1: | MANUFACTURED HOME | State Code: | 11 | 1344.0 sqft | Value: | $192,480 |
| Exterior Wall: | HARDBOARD | Heating/Cooling: | FORCED AIR | | Number of Bathrooms: | 2 | Number of Bedrooms: | 3 | | Plumbing: | 8 | Roof Covering: | COMP SHINGLE |
|
| | Type | Description | Class CD | Sub Class CD | Year Built | Area |
| | MOBHOME | MANUFACTURD HOMES | 1 | 30 | 1987 | 1344.0 |
| | MI1 | MH SET-UP COSTS | 1 | 30 | 0 | 1.0 |
| | POL3 | POLE BUILDING-CON,ELEC,INSU | 1 | 30 | 2008 | 576.0 |
| | WDR | WOOD DECK W/ROOF | 1 | 30 | 1987 | 672.0 |
| | WOD | Wood Deck | 1 | 30 | 1987 | 490.0 |
| | ATG | Attached Garage | 1 | 30 | 1987 | 720.0 |
Sketch
Property Image
Land
| 1 | RES 1 | Converted: Residential | 1.2200 | 0.00 | 0.00 | 0.00 | 1.00 | $61,070 | $0 |
Roll Value History
| 2026 | N/A | N/A | N/A | N/A | N/A |
| 2025 | $192,480 | $61,070 | $0 | $253,550 | $253,550 |
| 2024 | $192,480 | $61,070 | $0 | $253,550 | $253,550 |
| 2023 | $192,480 | $61,070 | $0 | $253,550 | $253,550 |
| 2022 | $183,310 | $61,070 | $0 | $244,380 | $244,380 |
| 2021 | $159,400 | $61,070 | $0 | $220,470 | $220,470 |
| 2020 | $148,280 | $45,800 | $0 | $194,080 | $194,080 |
| 2019 | $148,280 | $45,800 | $0 | $194,080 | $194,080 |
| 2018 | $141,220 | $45,800 | $0 | $187,020 | $187,020 |
| 2017 | $141,220 | $45,800 | $0 | $187,020 | $187,020 |
| 2016 | $128,380 | $45,800 | $0 | $174,180 | $174,180 |
| 2015 | $128,380 | $45,800 | $0 | $174,180 | $174,180 |
| 2014 | $91,700 | $45,800 | $0 | $137,500 | $137,500 |
| 2013 | $91,700 | $45,800 | $0 | $137,500 | $137,500 |
| 2012 | $91,700 | $45,800 | $0 | $0 | $0 |
| 2011 | $91,700 | $45,800 | $0 | $0 | $0 |
| 2010 | $91,700 | $45,800 | $0 | $0 | $0 |
| 2009 | $93,000 | $35,500 | $0 | $0 | $0 |
| 2008 | $63,900 | $35,500 | $0 | $0 | $0 |
| 2007 | $63,900 | $35,500 | $0 | $0 | $0 |
Deed and Sales History
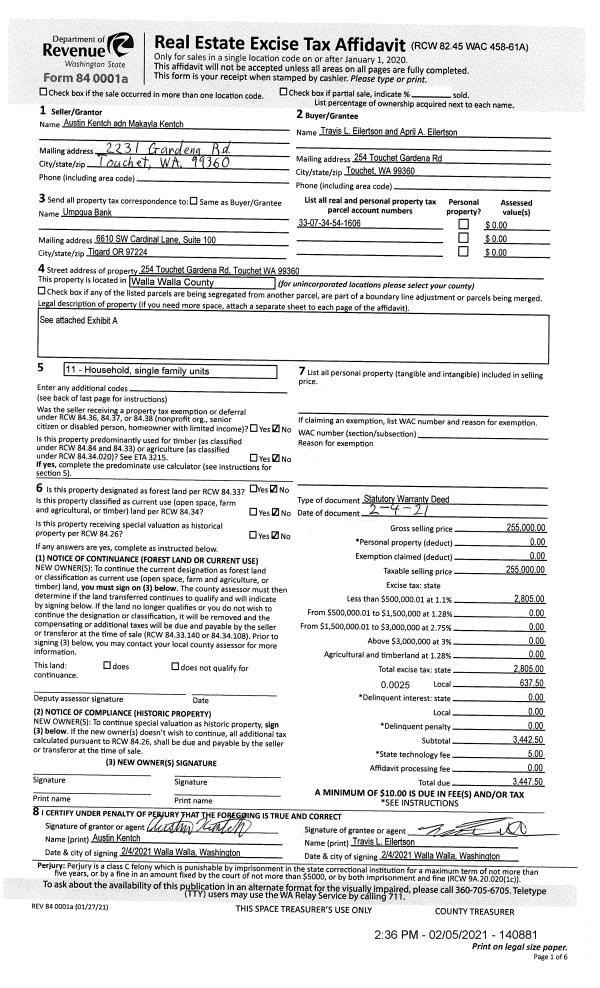
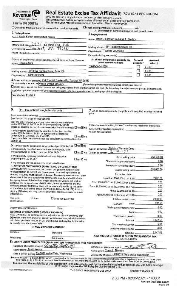
| 1 | 02/05/2021 | SWD | STATUTORY WARRANTY DEED | KENTCH AUSTIN & MAKAYLA | EILERTSON TRAVIS L & APRIL A | | | $255,000.00 | 140881 | 2021-01456 |
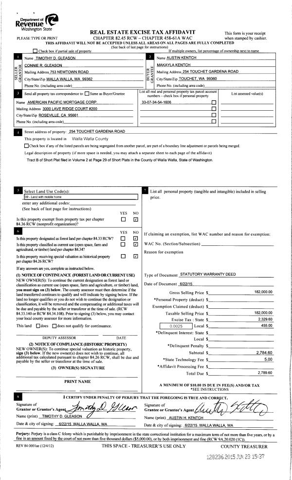
| 2 | 06/23/2015 | SWD | STATUTORY WARRANTY DEED | GLEASON TIMOTHY D & CONNIE R | KENTCH AUSTIN & MAKAYLA | | | $182,000.00 | 128236 | 2015-05302 |
Payout Agreement
| No payout information available.. |