Property
Account |
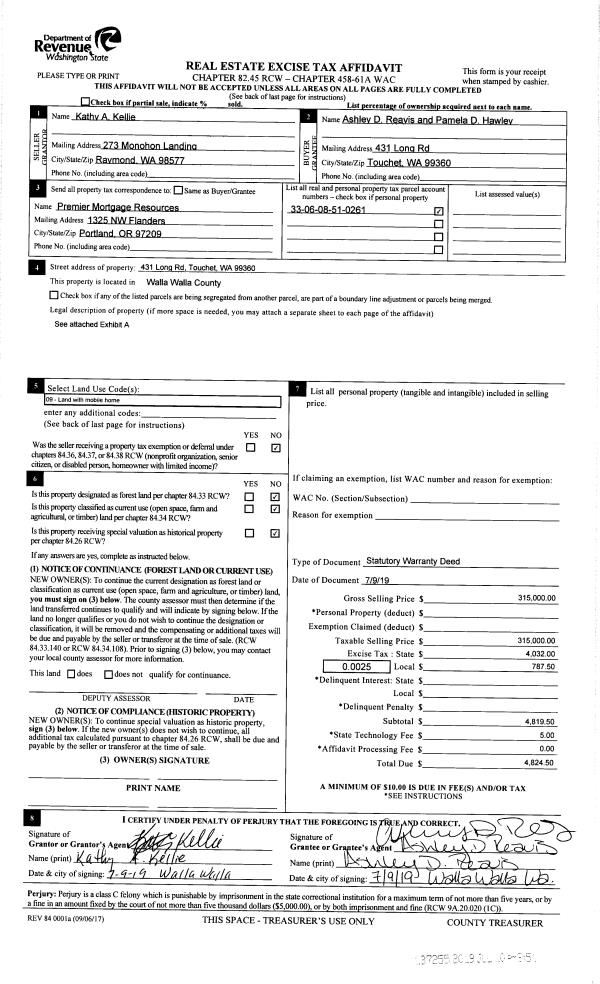
| Property ID: | 24534 | Abbreviated Legal Description: | GARDENA 1ST LOT 217 (LESS PTN. IN N) SM. PTN. LOT 210, SM. PTN. LOT209, & SM. WLY. PTN. LOT 218 |
| Parcel Number: | 330608510261 | Agent Code: | |
| Type: | Real | | |
| Tax Area: | 318 - 300-6-TM | Land Use Code | 11 |
| Open Space: | N | DFL | N |
| Historic Property: | N | Remodel Property: | N |
| Multi-Family Redevelopment: | N | | |
| Township: | 6 | Section: | 8 |
| Range: | 33 |
Location |
| Address: | 431 LONG RD WA 99360 | Mapsco: | |
| Neighborhood: | A Touchet/Lowden MH Rural | Map ID: | |
| Neighborhood CD: | 213663 |
Owner |
| Name: | REAVIS ASHLEY D | Owner ID: | 65468 |
| Mailing Address: | PAMELA D HAWLEY 431 LONG RD TOUCHET, WA 99360 | % Ownership: | 100.0000000000% |
| | | Exemptions: | |
Taxes and Assessment Details
Values
| (+) Improvement Homesite Value: | + | $0 | |
| (+) Improvement Non-Homesite Value: | + | $408,980 | |
| (+) Land Homesite Value: | + | $0 | |
| (+) Land Non-Homesite Value: | + | $91,500 | |
| (+) Curr Use (HS): | + | $0 | $0 |
| (+) Curr Use (NHS): | + | $0 | $0 |
| | | -------------------------- | |
| (=) Market Value: | = | $500,480 | |
| (–) Productivity Loss: | – | $0 | |
| | | -------------------------- | |
| (=) Subtotal: | = | $500,480 | |
| (+) Senior Appraised Value: | + | $0 | |
| (+) Non-Senior Appraised Value: | + | $500,480 | |
| | | -------------------------- | |
| (=) Total Appraised Value: | = | $500,480 | |
| (–) Senior Exemption Loss: | – | $0 | |
| (–) Exemption Loss: | – | $0 | |
| | | -------------------------- | |
| (=) Taxable Value: | = | $500,480 | |
Taxing Jurisdiction
| Owner: | REAVIS ASHLEY D | | |
| % Ownership: | 100.0000000000% | | |
| Total Value: | $500,480 | | |
| Tax Area: | 318 - 300-6-TM |
| CERFD | CURRENT EXPENSE REFUND 010 | 0.0000000000 | $500,480 | $500,480 | $0.00 | | |
| CURREXP | CURRENT EXPENSE 010 | 1.0175366760 | $500,480 | $500,480 | $509.26 | | |
| HUMNSERV | HUMAN SERVICES 119 | 0.0250000000 | $500,480 | $500,480 | $12.51 | | |
| SLDREL | SOLDIERS RELIEF 121 | 0.0155990005 | $500,480 | $500,480 | $7.81 | | |
| EMERGSER | EMS 147 | 0.3792580840 | $500,480 | $500,480 | $189.81 | | |
| EMSRFD | EMS REFUND 147 | 0.0000000000 | $500,480 | $500,480 | $0.00 | | |
| FD6EXP | FD #6 EXPENSE 693 | 0.6692985746 | $500,480 | $500,480 | $334.97 | | |
| RLBRFD | RURAL LIBRARY REFUND 623 | 0.0000000000 | $500,480 | $500,480 | $0.00 | | |
| RURALLIB | RURAL LIBRARY 623 | 0.3710609029 | $500,480 | $500,480 | $185.71 | | |
| PORTRFD | PORT REFUND 640 | 0.0000000000 | $500,480 | $500,480 | $0.00 | | |
| PORTWWGEN | PORT OF WW 640 | 0.2460186015 | $500,480 | $500,480 | $123.13 | | |
| SD300BOND | SD #300 BOND 783 | 1.8964951620 | $500,480 | $500,480 | $949.16 | | |
| SD300GEN | SD #300 GENERAL 780 | 2.1198322866 | $500,480 | $500,480 | $1,060.93 | | |
| ST2 | STATE SCHOOL PART 2 600 | 0.8131451643 | $500,480 | $500,480 | $406.96 | | |
| STATESCHL | STATE SCHOOL 600 | 1.5158548041 | $500,480 | $500,480 | $758.66 | | |
| STREFUND | STATE REFUND LEVY 603 | 0.0000000000 | $500,480 | $500,480 | $0.00 | | |
| COROAD | COUNTY ROAD 115 | 1.6549953990 | $500,480 | $500,480 | $828.29 | | |
| CRPRD | COUNTY ROAD REFUND 115 | 0.0000000000 | $500,480 | $500,480 | $0.00 | | |
| | Total Tax Rate: | 10.7240946555 | | | | | |
| | | | | Taxes w/Current Exemptions: | $5,367.20 | | |
| | | | | Taxes w/o Exemptions: | $5,367.20 | | |
Improvement / Building
| Improvement #1: | MANUFACTURED HOME | State Code: | 11 | 1934.0 sqft | Value: | $408,980 |
| Exterior Wall: | HARDBOARD | Heating/Cooling: | FORCED AIR | | Number of Bathrooms: | 2 | Number of Bedrooms: | 3 | | Plumbing: | 9 | Roof Covering: | COMP SHINGLE |
|
| | Type | Description | Class CD | Sub Class CD | Year Built | Area |
| | MOBHOME | MANUFACTURD HOMES | 1 | 40 | 1998 | 1934.0 |
| | MI1 | MH SET-UP COSTS | 1 | 40 | 0 | 1.0 |
| | POL1 | POLE BUILDING-GRAVEL | 1 | 30 | 0 | 960.0 |
| | GUH | GUEST HOUSE | 1 | 25 | 0 | 720.0 |
Sketch
Property Image
Land
| 1 | RES 1 | Converted: Residential | 10.0000 | 0.00 | 0.00 | 0.00 | 1.00 | $91,500 | $0 |
Roll Value History
| 2026 | N/A | N/A | N/A | N/A | N/A |
| 2025 | $408,980 | $91,500 | $0 | $500,480 | $500,480 |
| 2024 | $408,980 | $91,500 | $0 | $500,480 | $500,480 |
| 2023 | $408,980 | $91,500 | $0 | $500,480 | $500,480 |
| 2022 | $314,600 | $91,500 | $0 | $406,100 | $406,100 |
| 2021 | $210,720 | $91,500 | $0 | $302,220 | $302,220 |
| 2020 | $195,430 | $76,500 | $0 | $271,930 | $271,930 |
| 2019 | $195,430 | $76,500 | $0 | $271,930 | $271,930 |
| 2018 | $186,120 | $76,500 | $0 | $262,620 | $262,620 |
| 2017 | $186,120 | $76,500 | $0 | $262,620 | $262,620 |
| 2016 | $186,120 | $76,500 | $0 | $262,620 | $262,620 |
| 2015 | $169,200 | $76,500 | $0 | $245,700 | $245,700 |
| 2014 | $112,800 | $76,500 | $0 | $189,300 | $189,300 |
| 2013 | $112,800 | $76,500 | $0 | $189,300 | $189,300 |
| 2012 | $112,800 | $76,500 | $0 | $0 | $0 |
| 2011 | $112,800 | $76,500 | $0 | $0 | $0 |
| 2010 | $112,800 | $76,500 | $0 | $0 | $0 |
| 2009 | $125,500 | $55,700 | $0 | $0 | $0 |
| 2008 | $101,900 | $55,700 | $0 | $0 | $0 |
| 2007 | $101,900 | $55,700 | $0 | $0 | $0 |
Deed and Sales History
| 1 | 09/03/2025 | QCD | QUIT CLAIM DEED | REAVIS ASHLEY D | REAVIS ASHLEY D | | | | 149940 | 2025-05257 |
| 2 | 07/10/2019 | SWD | STATUTORY WARRANTY DEED | KELLIE KATHY A | REAVIS ASHLEY D | | | $315,000.00 | 137255 | 2019-04932 |
| 3 | 04/23/2004 | QCD | QUIT CLAIM DEED | LINDQUIST, RANDY D | KELLIE, KATHY A | | | | 104577 | 2004-04342 |
| 4 | 07/18/2003 | WARRANTY D | WARRANTY DEED | LINDQUIST, RANDY D | KELLIE, KATHY A | | | | 0 | 03-3-00106 1 |
| 5 | 01/14/1997 | WARRANTY D | WARRANTY DEED | | | | | $40,000.00 | 87546 | 2489-700386 |
Payout Agreement
| No payout information available.. |