Property
Account |
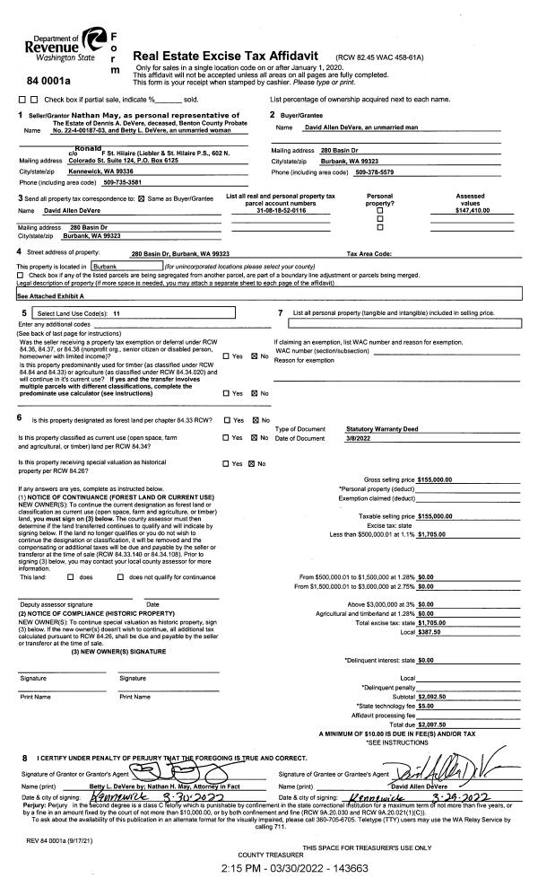
| Property ID: | 24468 | Abbreviated Legal Description: | SOUTH BURBANK INDUS. PARK SLY. PTN. LOT 4 BLK 1 |
| Parcel Number: | 310818520116 | Agent Code: | |
| Type: | Real | | |
| Tax Area: | 328 - 400-M-5 | Land Use Code | 11 |
| Open Space: | N | DFL | N |
| Historic Property: | N | Remodel Property: | N |
| Multi-Family Redevelopment: | N | | |
| Township: | 8 | Section: | 18 |
| Range: | 31 |
Location |
| Address: | 280 BASIN DR WA 99323 | Mapsco: | |
| Neighborhood: | G BURBANK MH | Map ID: | |
| Neighborhood CD: | 214761 |
Owner |
| Name: | DEVERE DAVID ALLEN | Owner ID: | 71408 |
| Mailing Address: | 280 BASIN DR BURBANK, WA 99323 | % Ownership: | 100.0000000000% |
| | | Exemptions: | |
Taxes and Assessment Details
Property Tax Information as of
02/21/2026
Click on "Statement Details" to expand or collapse a tax statement.
* Please enter a valid date ** Please enter a valid date *
Statement Details |
| | TOTAL: | $0.00 | $0.00 | $0.00 | $0.00 | $0.00 | $0.00 |
|
| | $0.00 | $0.00 | $0.00 | $0.00 | $0.00 | $0.00 |
Values
| (+) Improvement Homesite Value: | + | $0 | |
| (+) Improvement Non-Homesite Value: | + | $193,350 | |
| (+) Land Homesite Value: | + | $0 | |
| (+) Land Non-Homesite Value: | + | $90,360 | |
| (+) Curr Use (HS): | + | $0 | $0 |
| (+) Curr Use (NHS): | + | $0 | $0 |
| | | -------------------------- | |
| (=) Market Value: | = | $283,710 | |
| (–) Productivity Loss: | – | $0 | |
| | | -------------------------- | |
| (=) Subtotal: | = | $283,710 | |
| (+) Senior Appraised Value: | + | $0 | |
| (+) Non-Senior Appraised Value: | + | $283,710 | |
| | | -------------------------- | |
| (=) Total Appraised Value: | = | $283,710 | |
| (–) Senior Exemption Loss: | – | $0 | |
| (–) Exemption Loss: | – | $0 | |
| | | -------------------------- | |
| (=) Taxable Value: | = | $283,710 | |
Taxing Jurisdiction
| Owner: | DEVERE DAVID ALLEN | | |
| % Ownership: | 100.0000000000% | | |
| Total Value: | $283,710 | | |
| Tax Area: | 328 - 400-M-5 |
| CERFD | CURRENT EXPENSE REFUND 010 | 0.0000000000 | $283,710 | $283,710 | $0.00 | | |
| CURREXP | CURRENT EXPENSE 010 | 1.0175366760 | $283,710 | $283,710 | $288.69 | | |
| HUMNSERV | HUMAN SERVICES 119 | 0.0250000000 | $283,710 | $283,710 | $7.09 | | |
| SLDREL | SOLDIERS RELIEF 121 | 0.0155990005 | $283,710 | $283,710 | $4.43 | | |
| EMERGSER | EMS 147 | 0.3792580840 | $283,710 | $283,710 | $107.60 | | |
| EMSRFD | EMS REFUND 147 | 0.0000000000 | $283,710 | $283,710 | $0.00 | | |
| FD5EXP | FD #5 EXPENSE 689 | 1.2045331840 | $283,710 | $283,710 | $341.74 | | |
| RLBRFD | RURAL LIBRARY REFUND 623 | 0.0000000000 | $283,710 | $283,710 | $0.00 | | |
| RURALLIB | RURAL LIBRARY 623 | 0.3710609029 | $283,710 | $283,710 | $105.27 | | |
| PORTRFD | PORT REFUND 640 | 0.0000000000 | $283,710 | $283,710 | $0.00 | | |
| PORTWWGEN | PORT OF WW 640 | 0.2460186015 | $283,710 | $283,710 | $69.80 | | |
| SD400BOND | SD #400 BOND 793 | 0.0000000000 | $283,710 | $283,710 | $0.00 | | |
| SD400CAP | SD #400 CP 792 | 0.3443722657 | $283,710 | $283,710 | $97.70 | | |
| SD400GEN | SD #400 GENERAL 790 | 1.9278469916 | $283,710 | $283,710 | $546.95 | | |
| ST2 | STATE SCHOOL PART 2 600 | 0.8131451643 | $283,710 | $283,710 | $230.70 | | |
| STATESCHL | STATE SCHOOL 600 | 1.5158548041 | $283,710 | $283,710 | $430.06 | | |
| STREFUND | STATE REFUND LEVY 603 | 0.0000000000 | $283,710 | $283,710 | $0.00 | | |
| COROAD | COUNTY ROAD 115 | 1.6549953990 | $283,710 | $283,710 | $469.54 | | |
| CRPRD | COUNTY ROAD REFUND 115 | 0.0000000000 | $283,710 | $283,710 | $0.00 | | |
| | Total Tax Rate: | 9.5152210736 | | | | | |
| | | | | Taxes w/Current Exemptions: | $2,699.57 | | |
| | | | | Taxes w/o Exemptions: | $2,699.57 | | |
Improvement / Building
| Improvement #1: | MANUFACTURED HOME | State Code: | 11 | 1680.0 sqft | Value: | $193,350 |
| Exterior Wall: | HARDBOARD | Heating/Cooling: | HEAT PUMP | | Number of Bathrooms: | 2 | Number of Bedrooms: | 3 | | Plumbing: | 9 | Roof Covering: | COMP SHINGLE |
|
| | Type | Description | Class CD | Sub Class CD | Year Built | Area |
| | MOBHOME | MANUFACTURD HOMES | 1 | 30 | 2022 | 1680.0 |
| | MI1 | MH SET-UP COSTS | 1 | 30 | 2022 | 1.0 |
| | DTG | Detached Garage | 1 | 20 | 1973 | 672.0 |
| | UTST | Utility Storage Shed | 1 | 20 | 1973 | 570.0 |
Sketch
Property Image
Land
| 1 | RES 1 | Converted: Residential | 2.0700 | 0.00 | 0.00 | 0.00 | 1.00 | $90,360 | $0 |
Roll Value History
| 2026 | N/A | N/A | N/A | N/A | N/A |
| 2025 | $299,690 | $90,360 | $0 | $390,050 | $390,050 |
| 2024 | $299,690 | $90,360 | $0 | $390,050 | $390,050 |
| 2023 | $193,350 | $90,360 | $0 | $283,710 | $283,710 |
| 2022 | $184,140 | $90,360 | $0 | $274,500 | $274,500 |
| 2021 | $57,050 | $90,360 | $0 | $147,410 | $147,410 |
| 2020 | $75,260 | $43,100 | $0 | $118,360 | $118,360 |
| 2019 | $75,260 | $43,100 | $0 | $118,360 | $118,360 |
| 2018 | $75,260 | $43,100 | $0 | $118,360 | $118,360 |
| 2017 | $71,680 | $43,100 | $0 | $114,780 | $114,780 |
| 2016 | $44,800 | $43,100 | $0 | $87,900 | $87,900 |
| 2015 | $44,800 | $43,100 | $0 | $87,900 | $87,900 |
| 2014 | $44,800 | $43,100 | $0 | $87,900 | $87,900 |
| 2013 | $44,800 | $43,100 | $0 | $87,900 | $87,900 |
| 2012 | $44,800 | $43,100 | $0 | $0 | $0 |
| 2011 | $44,800 | $43,100 | $0 | $0 | $0 |
| 2010 | $44,800 | $43,100 | $0 | $0 | $0 |
| 2009 | $44,000 | $39,800 | $0 | $0 | $0 |
| 2008 | $40,000 | $39,800 | $0 | $0 | $0 |
| 2007 | $40,000 | $39,800 | $0 | $0 | $0 |
Deed and Sales History
| 1 | 03/30/2022 | SWD | STATUTORY WARRANTY DEED | DEVERE DENNIS A & BETTY L | DEVERE DAVID ALLEN | | | $155,000.00 | 143663 | 2022-02650 |
Payout Agreement
| No payout information available.. |