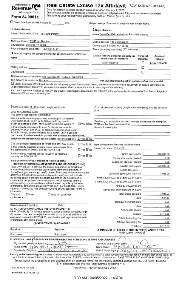
Property
Account |
| Property ID: | 24437 | Abbreviated Legal Description: | SAGE VIEW ADD LOT 13 |
| Parcel Number: | 300812580013 | Agent Code: | |
| Type: | Real | | |
| Tax Area: | 331 - 400-M-5-W4 | Land Use Code | 11 |
| Open Space: | N | DFL | N |
| Historic Property: | N | Remodel Property: | N |
| Multi-Family Redevelopment: | N | | |
| Township: | 8 | Section: | 12 |
| Range: | 30 |
Location |
| Address: | 188 COLUMBIA RD WA 99323 | Mapsco: | |
| Neighborhood: | Burbank A MH | Map ID: | |
| Neighborhood CD: | 213761 |
Owner |
| Name: | PERCIFIELD DEVIN & ALYSSA | Owner ID: | 71412 |
| Mailing Address: | 188 COLUMBIA RD BURBANK, WA 99323 | % Ownership: | 100.0000000000% |
| | | Exemptions: | |
Taxes and Assessment Details
Values
| (+) Improvement Homesite Value: | + | $0 | |
| (+) Improvement Non-Homesite Value: | + | $208,740 | |
| (+) Land Homesite Value: | + | $0 | |
| (+) Land Non-Homesite Value: | + | $59,660 | |
| (+) Curr Use (HS): | + | $0 | $0 |
| (+) Curr Use (NHS): | + | $0 | $0 |
| | | -------------------------- | |
| (=) Market Value: | = | $268,400 | |
| (–) Productivity Loss: | – | $0 | |
| | | -------------------------- | |
| (=) Subtotal: | = | $268,400 | |
| (+) Senior Appraised Value: | + | $0 | |
| (+) Non-Senior Appraised Value: | + | $268,400 | |
| | | -------------------------- | |
| (=) Total Appraised Value: | = | $268,400 | |
| (–) Senior Exemption Loss: | – | $0 | |
| (–) Exemption Loss: | – | $0 | |
| | | -------------------------- | |
| (=) Taxable Value: | = | $268,400 | |
Taxing Jurisdiction
| Owner: | PERCIFIELD DEVIN & ALYSSA | | |
| % Ownership: | 100.0000000000% | | |
| Total Value: | $268,400 | | |
| Tax Area: | 331 - 400-M-5-W4 |
| CERFD | CURRENT EXPENSE REFUND 010 | 0.0000000000 | $268,400 | $268,400 | $0.00 | | |
| CURREXP | CURRENT EXPENSE 010 | 1.0175366760 | $268,400 | $268,400 | $273.11 | | |
| HUMNSERV | HUMAN SERVICES 119 | 0.0250000000 | $268,400 | $268,400 | $6.71 | | |
| SLDREL | SOLDIERS RELIEF 121 | 0.0155990005 | $268,400 | $268,400 | $4.19 | | |
| EMERGSER | EMS 147 | 0.3792580840 | $268,400 | $268,400 | $101.79 | | |
| EMSRFD | EMS REFUND 147 | 0.0000000000 | $268,400 | $268,400 | $0.00 | | |
| FD5EXP | FD #5 EXPENSE 689 | 1.2045331840 | $268,400 | $268,400 | $323.30 | | |
| RLBRFD | RURAL LIBRARY REFUND 623 | 0.0000000000 | $268,400 | $268,400 | $0.00 | | |
| RURALLIB | RURAL LIBRARY 623 | 0.3710609029 | $268,400 | $268,400 | $99.59 | | |
| PORTRFD | PORT REFUND 640 | 0.0000000000 | $268,400 | $268,400 | $0.00 | | |
| PORTWWGEN | PORT OF WW 640 | 0.2460186015 | $268,400 | $268,400 | $66.03 | | |
| SD400BOND | SD #400 BOND 793 | 0.0000000000 | $268,400 | $268,400 | $0.00 | | |
| SD400CAP | SD #400 CP 792 | 0.3443722657 | $268,400 | $268,400 | $92.43 | | |
| SD400GEN | SD #400 GENERAL 790 | 1.9278469916 | $268,400 | $268,400 | $517.43 | | |
| ST2 | STATE SCHOOL PART 2 600 | 0.8131451643 | $268,400 | $268,400 | $218.25 | | |
| STATESCHL | STATE SCHOOL 600 | 1.5158548041 | $268,400 | $268,400 | $406.86 | | |
| STREFUND | STATE REFUND LEVY 603 | 0.0000000000 | $268,400 | $268,400 | $0.00 | | |
| COROAD | COUNTY ROAD 115 | 1.6549953990 | $268,400 | $268,400 | $444.20 | | |
| CRPRD | COUNTY ROAD REFUND 115 | 0.0000000000 | $268,400 | $268,400 | $0.00 | | |
| | Total Tax Rate: | 9.5152210736 | | | | | |
| | | | | Taxes w/Current Exemptions: | $2,553.89 | | |
| | | | | Taxes w/o Exemptions: | $2,553.89 | | |
Improvement / Building
| Improvement #1: | MANUFACTURED HOME | State Code: | 11 | 1248.0 sqft | Value: | $208,740 |
| Exterior Wall: | HARDBOARD | Heating/Cooling: | REV-HEAT-PUMP-W/DUCT | | Number of Bathrooms: | 2 | Number of Bedrooms: | 3 | | Plumbing: | 8 | Roof Covering: | COMP SHINGLE |
|
| | Type | Description | Class CD | Sub Class CD | Year Built | Area |
| | MOBHOME | MANUFACTURD HOMES | 1 | 30 | 1997 | 1248.0 |
| | MI1 | MH SET-UP COSTS | 1 | 30 | 1997 | 1.0 |
Sketch
Property Image
Land
| 1 | RES 1 | Converted: Residential | 0.2871 | 12508.00 | 0.00 | 0.00 | 1.00 | $59,660 | $0 |
Roll Value History
| 2026 | N/A | N/A | N/A | N/A | N/A |
| 2025 | $219,170 | $59,660 | $0 | $278,830 | $278,830 |
| 2024 | $208,740 | $59,660 | $0 | $268,400 | $268,400 |
| 2023 | $208,740 | $59,660 | $0 | $268,400 | $268,400 |
| 2022 | $181,510 | $59,660 | $0 | $241,170 | $241,170 |
| 2021 | $106,770 | $59,660 | $0 | $166,430 | $166,430 |
| 2020 | $131,600 | $22,800 | $0 | $154,400 | $154,400 |
| 2019 | $131,600 | $22,800 | $0 | $154,400 | $154,400 |
| 2018 | $105,280 | $22,800 | $0 | $128,080 | $128,080 |
| 2017 | $95,710 | $22,800 | $0 | $118,510 | $118,510 |
| 2016 | $87,010 | $22,800 | $0 | $109,810 | $109,810 |
| 2015 | $87,010 | $22,800 | $0 | $109,810 | $109,810 |
| 2014 | $79,100 | $22,800 | $0 | $101,900 | $101,900 |
| 2013 | $79,100 | $22,800 | $0 | $101,900 | $101,900 |
| 2012 | $69,800 | $22,800 | $0 | $0 | $0 |
| 2011 | $69,800 | $22,800 | $0 | $0 | $0 |
| 2010 | $69,800 | $22,800 | $0 | $0 | $0 |
| 2009 | $90,900 | $18,400 | $0 | $0 | $0 |
| 2008 | $57,000 | $18,400 | $0 | $0 | $0 |
| 2007 | $57,000 | $18,400 | $0 | $0 | $0 |
Deed and Sales History
| 1 | 04/05/2022 | SWD | STATUTORY WARRANTY DEED | GRANT SHANNON M | PERCIFIELD DEVIN & ALYSSA | | | $275,000.00 | 143704 | 2022-02820 |
| 2 | 11/25/2009 | WARRANTY D | WARRANTY DEED | MOORE, JAMES D & TERESA L | GRANT, SHANNON M | | | $105,000.00 | 117728 | 2009-11552 |
| 3 | 06/17/1997 | WARRANTY D | WARRANTY DEED | | | | | $18,500.00 | 88361 | 2539-705458 |
Payout Agreement
| No payout information available.. |