Property
Account |
| Property ID: | 24419 | Abbreviated Legal Description: | HARRISON & RAY INC ADD LOT 7 BLK 4 |
| Parcel Number: | 300812570407 | Agent Code: | |
| Type: | Real | | |
| Tax Area: | 331 - 400-M-5-W4 | Land Use Code | 11 |
| Open Space: | N | DFL | N |
| Historic Property: | N | Remodel Property: | N |
| Multi-Family Redevelopment: | N | | |
| Township: | 8 | Section: | 12 |
| Range: | 30 |
Location |
| Address: | 122 ADAIR RD WA 99323 | Mapsco: | |
| Neighborhood: | Burbank A MH | Map ID: | |
| Neighborhood CD: | 213761 |
Owner |
| Name: | HERNANDEZ SALVADOR LEON | Owner ID: | 69384 |
| Mailing Address: | WENDY BOLANOS 122 ADAIR RD BURBANK, WA 99323 | % Ownership: | 100.0000000000% |
| | | Exemptions: | |
Taxes and Assessment Details
Values
| (+) Improvement Homesite Value: | + | $0 | |
| (+) Improvement Non-Homesite Value: | + | $54,150 | |
| (+) Land Homesite Value: | + | $0 | |
| (+) Land Non-Homesite Value: | + | $60,190 | |
| (+) Curr Use (HS): | + | $0 | $0 |
| (+) Curr Use (NHS): | + | $0 | $0 |
| | | -------------------------- | |
| (=) Market Value: | = | $114,340 | |
| (–) Productivity Loss: | – | $0 | |
| | | -------------------------- | |
| (=) Subtotal: | = | $114,340 | |
| (+) Senior Appraised Value: | + | $0 | |
| (+) Non-Senior Appraised Value: | + | $114,340 | |
| | | -------------------------- | |
| (=) Total Appraised Value: | = | $114,340 | |
| (–) Senior Exemption Loss: | – | $0 | |
| (–) Exemption Loss: | – | $0 | |
| | | -------------------------- | |
| (=) Taxable Value: | = | $114,340 | |
Taxing Jurisdiction
| Owner: | HERNANDEZ SALVADOR LEON | | |
| % Ownership: | 100.0000000000% | | |
| Total Value: | $114,340 | | |
| Tax Area: | 331 - 400-M-5-W4 |
| CERFD | CURRENT EXPENSE REFUND 010 | 0.0000000000 | $114,340 | $114,340 | $0.00 | | |
| CURREXP | CURRENT EXPENSE 010 | 1.0175366760 | $114,340 | $114,340 | $116.35 | | |
| HUMNSERV | HUMAN SERVICES 119 | 0.0250000000 | $114,340 | $114,340 | $2.86 | | |
| SLDREL | SOLDIERS RELIEF 121 | 0.0155990005 | $114,340 | $114,340 | $1.78 | | |
| EMERGSER | EMS 147 | 0.3792580840 | $114,340 | $114,340 | $43.36 | | |
| EMSRFD | EMS REFUND 147 | 0.0000000000 | $114,340 | $114,340 | $0.00 | | |
| FD5EXP | FD #5 EXPENSE 689 | 1.2045331840 | $114,340 | $114,340 | $137.73 | | |
| RLBRFD | RURAL LIBRARY REFUND 623 | 0.0000000000 | $114,340 | $114,340 | $0.00 | | |
| RURALLIB | RURAL LIBRARY 623 | 0.3710609029 | $114,340 | $114,340 | $42.43 | | |
| PORTRFD | PORT REFUND 640 | 0.0000000000 | $114,340 | $114,340 | $0.00 | | |
| PORTWWGEN | PORT OF WW 640 | 0.2460186015 | $114,340 | $114,340 | $28.13 | | |
| SD400BOND | SD #400 BOND 793 | 0.0000000000 | $114,340 | $114,340 | $0.00 | | |
| SD400CAP | SD #400 CP 792 | 0.3443722657 | $114,340 | $114,340 | $39.38 | | |
| SD400GEN | SD #400 GENERAL 790 | 1.9278469916 | $114,340 | $114,340 | $220.43 | | |
| ST2 | STATE SCHOOL PART 2 600 | 0.8131451643 | $114,340 | $114,340 | $92.98 | | |
| STATESCHL | STATE SCHOOL 600 | 1.5158548041 | $114,340 | $114,340 | $173.32 | | |
| STREFUND | STATE REFUND LEVY 603 | 0.0000000000 | $114,340 | $114,340 | $0.00 | | |
| COROAD | COUNTY ROAD 115 | 1.6549953990 | $114,340 | $114,340 | $189.23 | | |
| CRPRD | COUNTY ROAD REFUND 115 | 0.0000000000 | $114,340 | $114,340 | $0.00 | | |
| | Total Tax Rate: | 9.5152210736 | | | | | |
| | | | | Taxes w/Current Exemptions: | $1,087.98 | | |
| | | | | Taxes w/o Exemptions: | $1,087.98 | | |
Improvement / Building
| Improvement #1: | MANUFACTURED HOME | State Code: | 11 | 924.0 sqft | Value: | $54,150 |
| Exterior Wall: | RIBBED ALUMINUM | Heating/Cooling: | FORCED AIR | | Number of Bathrooms: | 1 | Number of Bedrooms: | 3 | | Plumbing: | 5 | Roof Covering: | GALVANIZED METAL |
|
| | Type | Description | Class CD | Sub Class CD | Year Built | Area |
| | MOBHOME | MANUFACTURD HOMES | 1 | 20 | 1975 | 924.0 |
| | MI1 | MH SET-UP COSTS | 1 | 20 | 1975 | 1.0 |
| | CPC | COVERED CARPORT/PATIO | 1 | 20 | 1975 | 276.0 |
| | CPC | COVERED CARPORT/PATIO | 1 | 20 | 1975 | 160.0 |
Sketch
Property Image
Land
| 1 | RES 1 | Converted: Residential | 0.3177 | 13837.00 | 0.00 | 0.00 | 1.00 | $60,190 | $0 |
Roll Value History
| 2026 | N/A | N/A | N/A | N/A | N/A |
| 2025 | $59,560 | $60,190 | $0 | $119,750 | $119,750 |
| 2024 | $54,150 | $60,190 | $0 | $114,340 | $114,340 |
| 2023 | $54,150 | $60,190 | $0 | $114,340 | $114,340 |
| 2022 | $49,220 | $60,190 | $0 | $109,410 | $109,410 |
| 2021 | $20,510 | $60,190 | $0 | $80,700 | $80,700 |
| 2020 | $11,640 | $23,400 | $0 | $35,040 | $35,040 |
| 2019 | $11,640 | $23,400 | $0 | $35,040 | $35,040 |
| 2018 | $19,400 | $23,400 | $0 | $42,800 | $42,800 |
| 2017 | $19,400 | $23,400 | $0 | $42,800 | $42,800 |
| 2016 | $9,700 | $23,400 | $0 | $33,100 | $33,100 |
| 2015 | $9,700 | $23,400 | $0 | $33,100 | $33,100 |
| 2014 | $9,700 | $23,400 | $0 | $33,100 | $33,100 |
| 2013 | $9,700 | $23,400 | $0 | $33,100 | $33,100 |
| 2012 | $11,400 | $23,400 | $0 | $0 | $0 |
| 2011 | $11,400 | $23,400 | $0 | $0 | $0 |
| 2010 | $11,400 | $23,400 | $0 | $0 | $0 |
| 2009 | $21,300 | $19,500 | $0 | $0 | $0 |
| 2008 | $11,900 | $19,500 | $0 | $0 | $0 |
| 2007 | $11,900 | $19,500 | $0 | $0 | $0 |
Deed and Sales History
| 1 | 09/30/2025 | MH AFFIDAV | MOBILE HOME AFFIDAVIT | WENDY Y BOLANOS MARTINEZ | HERNANDEZ SALVADOR E LEON | | | | 150108 | MHAFF-150108 |
| 2 | 05/08/2024 | MH AFFIDAV | MOBILE HOME AFFIDAVIT | MARTINEZ WENDY Y BOLANOS | HERNANDEZ SALVADOR E LEON | | | | 147532 | MHAFF-147532 |
| 3 | 05/08/2024 | QCD | QUIT CLAIM DEED | HERNANDEZ SALVADOR LEON | HERNANDEZ SALVADOR E LEON | | | | 147531 | 2024-02437 |
| 4 | 05/14/2021 | MH AFFIDAV | MOBILE HOME AFFIDAVIT | MORALES LUIS | HERNANDEZ SALVADOR LEON | | | | 141549 | MHAFF-141549 |
| 5 | 05/14/2021 | SWD | STATUTORY WARRANTY DEED | MORALES LUIS | HERNANDEZ SALVADOR LEON | | | $115,000.00 | 141548 | 2021-05799 |
| 6 | 06/11/2019 | MH AFFIDAV | MOBILE HOME AFFIDAVIT | KRAMER DEBBE | MORALES LUIS | | | | 137051 | MHAFF-137051 |
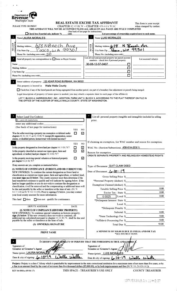
| 7 | 06/11/2019 | QCD | QUIT CLAIM DEED | MORALES MIREYA | MORALES LUIS | | | | 137052 | 2019-04049 |
| 8 | 06/11/2019 | QCD | QUIT CLAIM DEED | MORALES LAURA | MORALES LUIS | | | | 137053 | 2019-04050 |
| 9 | 06/11/2019 | SWD | STATUTORY WARRANTY DEED | KRAMER DEBBE | MORALES LUIS | | | $25,000.00 | 137050 | 2019-04048 |
| 10 | 06/11/2019 | LOPA | LACK OF PROBATE AFFIDAVIT | KRAMER KELLY & DEBBE | KRAMER DEBBE | | | $0.00 | 137049 | 2019-04047 |
Payout Agreement
| No payout information available.. |